Planungsideen

mare

Mitglied
Beiträge
48
Hallo,

jetzt ist es soweit. Wir haben uns für eine Nolte Glasfront entschieden und mit Neff Geräten ein Angebot erstellen lassen.

Die Dunstabzugshaube macht mir besonders Sorgen. Gerne hätte ich sie in der Flucht mit den Hängern, nur der Abstand zwischen Haube und Arbeitsplatte ist nach jetziger Planung deutlich zu niedrig. Habt ihr dazu Alternativen? Evtl. eine andere Haube-/ Kopffreihaube?
Mülleimer unter Arbeitsplatte hat sich leider auch nicht realisieren lassen.
LeManns will ich haben, auch wenn ihr micht jetzt steinigt. Ich find es praktisch!

Folgende Geräte wurden ausgesucht:
Backofen :
http://www.neff.de/produkte/herde-ba.../B16P42N3.html

Backofen mit Pyrolyse :
http://www.neff.de/produkte/mikrowel.../C67P70N3.html

Kochfeld:
Neff - PRODUKTE - Kochfelder - Elektro-Kochfelder,autark - T15T42X2

Wandesse:
Mega-Komfort - Neff Wand-Dunsthaube DBS 7745 N (D77S45N0)

Kühlschrank:
https://www.berlinelektro.biz/artike...287?spiderId=9

oder: https://www.berlinelektro.biz/artike...599?spiderId=9

Geschirrspüler :
https://www.konzept-kuechen.de/Shop/...an-454030.html



Für Änderungsvorschläge und Anregungen wäre ich euch allen sehr dankbar.

Folgen Bilder kann ich euch zur Verfügung stellen!



Checkliste zur Küchenplanung von mare

Anzahl Personen im Haushalt : 3
Davon Kinder? : keine
Körpergrössen aller Hauptbenutzer (wegen Arbeitshöhe ) in cm : 156
Art des Gebäudes? : Bestandsbau, Umbauten ausgeschlossen
Brüstungshöhe des Fensters (in cm) : 85
Fensterhöhe (in cm) : 140
Raumhöhe in cm: : 2,61
Heizung : Heizkörper wie im Grundriss
Sanitäranschlüsse : fix
Ausführung Kühlgerät? : Integriert im Hochschrank (60cm)
Kühlgerät Größe : bis 122 cm Höhe
Ausführung Tiefkühl (TK)-Gerät : Im Kühlschrank als kleines Fach oben
Dunstabzugshaube? : Abluft
Hochgebauter Backofen ? : Ja
Hochgebauter Geschirrspüler ? : ja
Kochfeldart? : Ceran (herkömmlich)
Kochfeldbreite ca. (in cm)? : 60
Spülenform: : 1 Becken mit Abtropffläche
Weitere geplante Heißgeräte : Einbaumikrowelle
Küchenstil? : modern
Sitzmöglichkeit in der Küche / im Küchenbereich als : Gesonderter Tisch
Sitzmöglichkeit: Für wieviel Personen? : für 4 Personen
Sitzmöglichkeit: Tisch - wenn gesonderter Tisch oder offene Küche : Vorhandener Tisch
Gewünschte o. vorhandene Tischgröße : 90*120
Wofür soll der Sitzplatz in der Küche genutzt werden? Wie häufig? : Täglich alle Mahlzeiten
Welche Arbeitshöhe ist angedacht (in cm)? : 89
Was steht auf der Arbeitsplatte oder soll dort stehen? : Kaffeevollautomat, Wasserkocher, Obstschale
Welche weiteren Küchenmaschinen müssen in der Küche untergebracht werden? : Küchenmaschine, Toaster, Schneidemaschine (z. B. in Schublade), Handrührgerät, Mixer, Pürierstab, Eierkocher
Was soll in der Küche außer den Standards untergebracht werden? : Geschirr komplett (nichts in Ess-/Wohnzimmer)
Welchen Stauraum gibt es sonst noch? : Speisekammer, Keller
Was/wie wird gekocht? (Alltagsküche, Menüs, Snacks usw) : Alltagsküche, täglich warm, es wird gern gebacken
Wie häufig wird gekocht? : (fast) täglich 1x warm
Wird alleine gekocht? Oder auch gemeinsam? Mit und für Gäste? : Ja, aber auch für Gäste
Was stört an der bisherigen Küche und was soll die neue Küche unbedingt können? Warum? : Backofen und Geschirrspüler möglichst hochgebaut
Steht schon ein Küchenhersteller fest oder wird bevorzugt? : Nolte
Steht schon ein Gerätehersteller fest oder wird bevorzugt? : Neff
Preisvorstellung (Budget) : bis 15.000,-
 
AW: Planungsideen

Hi mare:welcome:

Die Bilder kann man nicht sehen. Entweder steht dein Album auf privat oder du hast hinterher die Bilder wieder gelöscht.

Erste Frage. Warum möchtest du nur ein normales Ceranfeld? Wenn du schon ein neues kaufst, ist doch Induktion wesentlich praktischer und schneller.

Naja, wenn du einen Lemans praktischer findest? Nur mit 2 Ebenen, einem schmaler zulaufenden Boden, der noch nicht mal den Platz in der Ecke voll ausnutzt?

Einen Auszug für deine Töpfe hast du aber schneller offen und hast schnelleren Zugriff auf die Töpfe:-)
 
AW: Planungsideen

Hallo Tara,
schön so nett begrüßt zu werden.
Aber wo sind meine Bilder hin? Da hab ich wohl was falsch gemacht.
Induktion mag ich nicht, da es eine gepulste Strahlung ist und aus medizinischen Gründen für uns nicht günstig wäre.Töpfe würden alle funktionieren.

Grüße Mare
 
AW: Planungsideen

Habt ihr beim Arzt selber mal nachgefragt? Denn selbst mit Herzschrittmacher müsste man sich schon mit dem Oberkörper auf den Herd legen, damit eine Herdpatte überhaupt reagieren kann.
 
AW: Planungsideen

So jetzt hab ich es nochmal mit den Bilder versucht. Ich hoffe ihr könnt sie jetzt sehen!
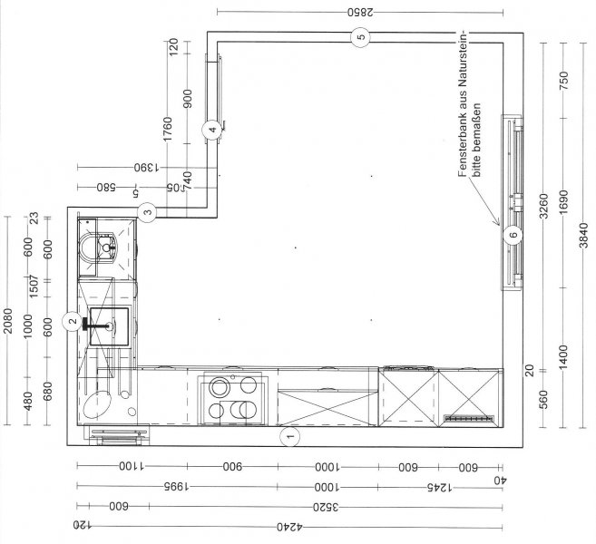
Villeicht noch eine kleine Information: das kleine Fenster hat eine Brüstungshöhe von 112 cm und eine Breite von 59 cm.

Die Arbeitsplatte und RÜckwand wird mit dunklem Granit belegt.

Aber nochmal zu meiner Frage: Die Dunstabzugshaube hängt mir zu tief. Kommt sie nach oben verlier ich die Flucht mit dem Hängeschrank. Sieht das nicht blöd aus? Und taugt die Neff überhaupt?

LG mare
 

Anhänge

  • IMG.jpg
    IMG.jpg
    51,8 KB · Aufrufe: 616
  • IMG_0001.jpg
    IMG_0001.jpg
    50,9 KB · Aufrufe: 662
  • IMG_0002.jpg
    IMG_0002.jpg
    48,8 KB · Aufrufe: 249
AW: Planungsideen

Hallo,???????????
niemand zu Hause???????

Meine Küchenplanung ist wohl nicht sehr spektakulär. Aber vielleicht erbarmt sich einer und sag mir wie hoch man gewöhnlich den Abstand zwischen Arbeitsplatte und Hänger / Abzugshaube einplant.??
Eine durchgehende Flucht wäre mir wichtig,aber dann hängt die Haube auf Augenhöhe. Hänge ich alles höher, kann ich kaum noch in den Hänger greifen,ODER?

Wie habe all die anderen kleinen Leute das gelöst????

LG
Mare
 
AW: Planungsideen

Hi mare, hier ist viel los und deine Bilder sind erst jetzt zu sehen und meine Frage hast du auch nicht beantwortet.

Keine Angst das wird schon werden, aber ein bissel Zeit musst du uns schon geben, und wenn wir ignoriert werden, denken wir halt, das Interesse ist doch nicht so groß.

Aber wart nur ab....das wird schon....
 
AW: Planungsideen

Hallo Mare,

nach Aussage meines :kfb: beträgt der "Standardabstand" zwischen Unter- und Hängeschränke ca. 55cm. Wir haben 60 cm, da unsere Hängeschränke nur 39 cm hoch sind und ich etwas mehr Abstand haben wollte, damit es auch mit der Optik passt und ich trotzdem noch gut an die Schränke komme. Die Höhe der Hänger kannst du letztendlich selbst bestimmen. Oft hängt die DAH höher als Unterkante Hängeschränke. Ist halt die Frage, ob du mehr Wert legst auf Optik oder darauf, dass es praktisch ist...

Viele Grüße,
Silke
 
AW: Planungsideen

mich stören eher die beiden niedrigen Hochschränke, die so gar nicht in der Flucht zu den Oberschränken stehen...
 
AW: Planungsideen

Danke euch Beiden.

Tara entuldiege bitte ich wollte dich nicht ignorieren. Ich dachte nur mein gesundheitichen Probleme wären hier nicht relevant. Und ja ich habe gefragt.Der Prof rät dringend ab. Im übrigen liegt das Problem also die Spule im Herd und nicht in einem medizinischen Implantat. D.h. ich wäre die Leidtragende und nicht der Herd.Das ist auch der Grund warum ich bei Flügen nicht durch den Scanner darf. Darum keine Induktion.Früher sollte man auch Microwellen meiden, das ist heute anders und bestimmt ist Induktion in einigen Jahren auch kein Problem mehr. Aber jeizt möchte ich gerne eine neue Küche.
Also bitte nicht böse sein.
Hättest du sonst noch Vorschläge?

mare
 
AW: Planungsideen

Nochmal an Tara,
ich mag den Kontrast zwischen ganz neuen Dingen und ganz modernen. Die Schränke sind auch deshalb erstmal so niedrig geworden weil ich ein bischen neuen Kram da abstellen wollte. Aber du hast Recht. Leider komme ich mit dem Alnoplaner nicht klar.Hab schon probiert da nochmal eine Lifttüre draufzusetzen, sieht auch blöd aus.

mare
 
AW: Planungsideen

Zum Kernproblem .. DAH nicht vorm Kopf zu haben:
131991d1391595084-planungsideen-img_0001.jpg



Das geht eigentlich immer nur so, dass man die Hängeschränke auf die Höhe setzt, die praktikabel ist. Da sind Nischenhöhen von 45 bis 60 cm üblich. Ich bevorzuge die höhere Variante, weil die Sachen, die dann unter den Hängeschränken stehen, in aller Regel auch noch bedient werden können. (Wasser in die Kaffeemaschine oder so).

Und die DAH richtet man in der Höhe dann eigentlich so aus, dass einerseits der vorgeschriebene Mindestabstand Kochfeld/Unterkante DAH berücksichtigt ist, andererseits die Mindestschachtlänge erreicht werden kann und idealerweise die DAH nicht direkt vorm Kopf steht.

Die andere Variante ist, Hängeschränke und DAH auf einer Unterkantenlinie und dann mal prüfen, wie hoch man geht. Das geht dann aber in aller Regel entweder zu Lasten der Bedienbarkeit der Hängeschränke oder der stoßfreien Benutzung der DAH.
__________________________
Ich finde ja, dass du etwas wenig Platz zwischen Spüle und Kochfeld hast. Gerade beim Backen kann man ja auch mal mehr Platz vertragen.
131990d1391595054-planungsideen-img.jpg



Ich würde planlinks:
- 1,6 cm Wange
- 60 cm GSP
- 1,6 cm Wange
- 30er MUPL
- 115er Spüleneckschrank --> - nur andersherum .. da hat dann ein großer Behälter Gelber Sack Müll Platz und es gibt noch Abstellfläche

Unten dann von links nach dem Eckschrank:
- 100er Auszugsunterschrank
- 90er Auszugsunterschrank für Kochfeld
- 45er Auszugsunterschrank eher so Sachen wie Gewürze etc.
- 60er Backofenhochschrank
- 60er Kühlschrankhochschrank

Damit könnte z. B. die Küchenmaschine über der Ecke stehen und jederzeit mit auf die Haupt-APL vorm Fenster bleiben. Und der LeMans wäre weg ;-)

Was passiert eigentlich mit dem Rest des Raumes?
 
AW: Planungsideen

Mal spontan zurGestaltung.Der Granitspiegel ist sehr dominant.
Wenn der Abstand noch grösser wird umso dominanter.
Deswegen nur so hoch wie die Fensterbank,würde um einiges
leichter und eleganter wirken.Den Reststreifen kann man
abwaschbar streichen oder im Bereich der DAH mit Glas versehen.Die Hochschränke eher hoch und das Kochfeld,
wie Kerstin schon vorgeschlagen hat,weiter nach links.
Auf den Hängeschrank evtl ganz verzichten.
LG Bibbi
 
AW: Planungsideen

Super gute Ideen, DANKE euch ganz herzlich.

inden Raum kommt dann noch unser wirklich neuer Tisch mit neuen Stühlen etwa vor das große Fenster. Der ist ausziehbar und reicht dann auch für gut 10 Personen. Da war mir auch der höhere Schrank zu prominent, darum hab ich mich erstmal für die niedrige Höhe entschieden. Aber so ganz auf Hänger wollte ichwegen Stauraum auch nicht verzichten. Die 60 cm Abstand fände ich gut und werde sie wohl auch so übernehmen. Mit der Nischenrückwand muß ich noch mal erfragen wie die Stärke der beiden unterschiedlichen Materialien ist. Einen Absatz würde mir glaube ich auch nicht so gut gefallen.
Grüße
Mare
 
AW: Planungsideen

Könntest du einmal Bilder deiner neuen Möbel einstellen.

Auf den Bilder erschlägt mich die hohe dunkle Nischenwand. Wenn du dich für wirkliche HS entscheiden könntest, könntest du auf den Oberschrank verzichten und stattdessen Regale für deine neuen Sachen anbringen.
 
Zuletzt bearbeitet:
AW: Planungsideen

Wie Mela bin auch ich der Meinung, dass die Küche zu schwarz werden wird, dunkler Boden, dunkle AP, dunkle Rückwand. Unser Steinmetz hatte eine Kundin, die partout auch die Rückwand schwarz wollte, selber Stein wie AP. Der Boden war auch schwarz gefliest. Er hatte ihr abgeraten. Als dann alles eingebaut war, war die Frau ziemlich schockiert von dem "Höhlencharakter" ihrer Küche. Die Rückwand und AP wurden wieder ausgebaut und gegen etwas "freundlicheres" ausgetauscht. Sie trug die Kosten.
 
AW: Planungsideen

So, da bin ich wieder

den Boden habe ich gleich zu Anfang gegen hellere Fliesen ausgetauscht. Leider konnte ich das auf dem Bild nicht ändern. Die Farbe kann ich nicht wirklich bescheiben, so zwischen cappuccino- und grau- farben. Meine Schwester sagt das wäre das neue nudefarben.
Leider war unsere nette Beraterin nicht da. Ich wollte wie vorgeschlagen den Herd etwas nach links schieben nur glaube ich das das Abzugsloch der Haube dann nicht mehr passt.
Ich halte euch aber auf dem laufenden.

bis bald
mare
 
AW: Planungsideen

Hallo,
ich war noch ein bischen unterwegs.Die Idee mit dem Mupl finde ich super - aber gibts im Spüleneckschrank auch Innenleben?? oder wie nüizt man den. Ich möchte gerne Handtuchstangen.
Nach eurem Vorschlag würde doch der Herd weiter nach links rutschen, dann komm ich doch mit dem Borloch der Haube nicht mehr zurecht. Die Haube wird übrigens eine Berbel mit 60 cm Abstand zur AH. So wäre schon mal ein Problem gelöst.

Über weitere Anregungen freut sich
Mare
 
AW: Planungsideen

Hallo Kerstin,
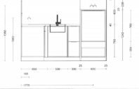
hier bin ich wieder! Ich hab mich mal hier dran gehangen mit folgendem Bild..

Nochmals meine Frage: Wie kann ich den Spülenunterschrank gestalten? Auszugsschrank mit fester innerer Blende. Ich hätte gerne einen Geschirrtuchhalter und dann???
Welche Möglichkeiten gäbe es, um den Stauraum gut auszunutzen?
Müll ist ja jetzt rechts neben der Spüle hochgebaut.

Freu mich auf deine/eure hilfreichen Ideen.
LG, mare
 

Anhänge

  • IMG (2).jpg
    IMG (2).jpg
    32,7 KB · Aufrufe: 244
AW: Planungsideen

Hallo,
ich habe neben dem Müll (weil ich keinen Platz für den MUPL habe:() noch Putzzeugs, ein Handtuch, Schwämme, Lappen, Salatschleuder, ...
Für das Handtuch haben wir eine Krawattenstange an die Tür geschraubt und für den Kleinkram so ein Aufbewahrungsteil aus Edelstahl aus der Badabteilung vom Baummarkt:cool:, da hänge ich auch den Spüllappen auf, damit der nicht irgendwo liegt und an Leben gewinnt;-)
Die Aufbwahrungsteile direkt für Küchen waren uns schlichtweg zu teuer.

Die Position deines MUPLS finde ich etwas unglücklich, besser wäre der links neben der Spüle aufgehoben, wo du auch schnippelst, aber immer noch besser, als keine zu haben;-)
 
Neff Hausgeräte Ballerina Küchen Blum Bewegungstechnologie Weibel - Intelligente Küchenlüftung

Neff Spezial

Blum Zonenplaner

Weibel Abluft-Tuning

Weibel Abluft-Tuning
Zurück
Oben