Küchenplanung Neue Küche - Planungsideen gesucht

Der Sofa so wie @Melanie 75 im letzen Post gezeichnet hat ist sowohl von den Laufwege als auch für den Raum an sich perfekt positioniert, bewahrt den offenen Raumcharakter und man hat auch keine störenden Reflektionen auf dem Fernseher (falls gewünscht).
 
Hi!

Zur Küche planunten; versuche einmal zwei Ansätze aus.
Das Erste wäre ein U; Arbeitsfläche unter dem Fenster (gut), dafür weniger Arbeitsfläche auf der Insel (Nachteil). Drei HS, GS, Spüle, Ecke, US, Ecke, US, US mit Kochfeld. Das Kochfeld müsste etwas mehr weg vom Rand.
 

Anhänge

  • IMG_0409.jpeg
    IMG_0409.jpeg
    115 KB · Aufrufe: 49
Vielen Dank für die ganzen Ideen – das hilft mir wirklich weiter.

Die Couch-Variante hatte ich so ähnlich auch schon getestet. Dann stellt sich aber sofort die Frage, wo TV, Lowboard und die Standlautsprecher hin sollen. Ein Teil der Couch müsste ohnehin weg, drei Module könnten wir den Kindern ins Zimmer stellen.

Zur Einordnung:
Unser jetziges Haus hat ein sehr großes Wohnzimmer, das wir kaum nutzen und dafür eine kleine Küche (240 × 370 cm) mit zwei Durchgängen. Da wir viel kochen, ist es dort zu zweit schnell zu eng. Wahrscheinlich entsteht genau daraus der Wunsch nach mehr Platz und etwas Großzügigerem.

Ich schaue mir die Vorschläge später in Ruhe nochmal detailliert an. Das muss ich erst einmal gedanklich sortieren.
 
Da sich das Raummaß doch noch an einigen Stellen ändern wird, werde ich den Ausgang der Tragwerksplanung abwarten und mich dann wieder melden.
 
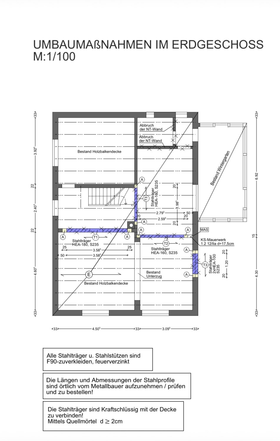
Anbei die Zeichnung vom Statiker.
Küche soll nach langem hin und her im jetzigen Bereich der Küche entstehen.
Ich werde mich später noch mal dran setzen.
 

Anhänge

  • IMG_0216.jpeg
    IMG_0216.jpeg
    153 KB · Aufrufe: 91
Hi!
Das heißt, alle lila Balken kommen weg? Schwieriger als die Küche finde ich den Wohnbereich mit Fernseher und Co unterzubringen. Hast du eine Idee, wie du das Sofa gerne stellen möchtest?
Und wie lange ist dieses Maß?
 

Anhänge

  • IMG_0430.jpeg
    IMG_0430.jpeg
    123,5 KB · Aufrufe: 58
Hi!

Das Fenster links unten kommt nicht raus. Das würde sonst bedeuten, noch weniger Platz zum Stellen.
Der Rest ist nach dem Motto:
Alles kann, nichts muss. Die Statik dient ja genau dazu jetzt die Optionen auf dem Tisch zu haben und das Beste draus zu machen.


Es steht dort nicht wie lang der Unterzug ist . Nach dem alten Plan ungefähr 3,39.

Ich habe mir das auf die Liste gesetzt und werde es nachmessen.

Eine weitere Idee war übrigens das Fenster in der Küche gegen eine Tür/Schiebetür zu tauschen und den hinteren Eingang dicht zu machen.
Ist bereits in Klärung.
 
...und was ist eigentlich mit diesem Wintergarten? Wo ihr ohnehin schon so viel Stahl verplant, könnte man nochmal auf Null setzten und neu denken?
Was passiert planoben mit dem WC, das soll aber bleiben, nehme ich stark an, oder? Was bedeuten die X Markierungen bei der WC Wand jetzt?
Habt ihr einen Architekten, der euch begleitet? Mir fehlt ein bisschen das Gesamtkonzept, was aus der Etage werden soll, ein Schlafzimmer bleibt planlinks oben? Dann einfach nur alle Innenwände entfernen muss nicht unbedingt der grosse Wurf sein.
Leider hattest du ja bereits die Forengemeinde auf ihre vermeintliche Kernkompetenz : Küche, Kühlschrank, Kochfeld zurück verwiesen. Insofern....Schulter Zuck....
 
Welche der Wände werden tatsächlich fallen?
Mir kommt das so vor, als wird einfach überlesen was ich schreibe:
Alles kann, nichts muss. Die Statik dient ja genau dazu jetzt die Optionen auf dem Tisch zu haben und das Beste draus zu machen.
Meine Ideen stehen auch schon weiter oben. Und ebenfalls dort schrieb ich:
Ich werde mich später noch mal dran setzen.
Da nach genauem hinsehen aber aufgefallen ist:
Die Maße aus dem Grundriss weichen erheblich von dem des Statikers ab, muss ich mir das vor Ort einmal selbst angucken. Vorher bringt das doch alles nichts.
Wo ihr ohnehin schon so viel Stahl verplant, könnte man nochmal auf Null setzten und neu denken?
Was meinst du damit?
Was passiert planoben mit dem WC, das soll aber bleiben, nehme ich stark an, oder?
Ja
Was bedeuten die X Markierungen bei der WC Wand jetzt?
Keine tragende Wände. Könnte man problemlos entfernen. Aufgrund des Badezimmers ist das aber nicht vorgesehen. Der Nebenraum ist Stand jetzt ein planloses Stück Raum.
Mir fehlt ein bisschen das Gesamtkonzept, was aus der Etage werden soll, ein Schlafzimmer bleibt planlinks oben?
Die Etage ist und bleibt das was sie ist. Ein Schlafzimmer, ein Wohnzimmer, ein Esszimmer, eine Küche und ein Bad.
Schlafzimmer oben links lässt sich nicht ändern. Das Bad auch nicht. Der Rest, ob nun Wohnzimmer im Essbereich oder Küche im Wohnzimmer wäre, ist absolut offen gewesen.

Das ist der Grund, weshalb ich nur danach geschaut habe, wo die Küche für uns ihren Zweck am besten erfüllt. Und da sind wir wieder im jetzigen Bereich der Küche gelandet.

Die angrenzenden Wände sind vorhanden, können aber im Zuge der Küchenplanung angepasst oder entfernt werden um sie optimal auszurichten oder stellen zu können.
Leider hattest du ja bereits die Forengemeinde auf ihre vermeintliche Kernkompetenz : Küche, Kühlschrank, Kochfeld zurück verwiesen. Insofern....Schulter Zuck....
Das war keine Absicht. Ich war der Meinung es sei besser für alle, da offensichtlich totales Chaos bezüglich der Grundrisszeichnungen herrscht. Das ist absolut nachvollziehbar und mein Verschulden. Sorry dafür.
 
Mir kommt das so vor, als wird einfach überlesen was ich schreibe:
Doch gelesen habe ich, aber nicht verstanden, was du willst. Und wenn du schreibst:
Alles kann, nichts muss.
muss man doch nachfragen dürfen, wo denn nun die Küche geplant werden soll. Das solltest du schon ausreichend deutlich kommunizieren. "Alles kann, nichts muss", kann alles mögliche bedeuten.
Küche soll nach langem hin und her im jetzigen Bereich der Küche entstehen
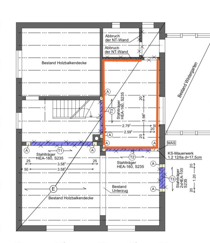
dann soll die Küche also also an Ort und Stelle bleiben, planoben unterhalb des Bades? Ich hab das mal Orange markiert. Da wird es dann interessant, welche Wände tatsächlich fallen, wo Türen und Fenster sind.
1764085809023.jpeg
 
Du darfst alles fragen! ☺️
In dem von dir markierten Bereich sieht man auch, welche Wände weg können und bis wo hin.
Das sind die blau/lila markierten Bereiche. Eine vor der Treppe und eine planunten zwischen Küche und Esszimmer.
Das Fenster in der Küche planrechts wurde vom Statiker gar nicht aufgenommen. Da gab es die Idee noch nicht, daraus eine Tür zu machen. Finde ich aber super.
Das wird nun statisch nachgeholt. Dann würde planoben rechts, in der jetzigen Kammer, die Tür weg fallen.
 
Guten Abend

Das Raummaß der Küche beträgt 4,615 x 2,92
Woher diese Abweichungen kommen kann ich mir nicht erklären. Vielleicht hat der eine nur bis Türzarge gemessen oder der andere nur bis zu den Fußleisten? Aber das was da vom Statiker steht passt unmöglich. Auch nicht mit viel gutem Willen.
Das von mir genannte ist das absolute Maß von Wand zu Wand.

Der Abstand zwischen Wohnzimmer und Esszimmer (Bestand Unterzug) beträgt 3,14.

Morgen habe ich mehr Zeit und gucke mir den Rest genauer an.
 
Zuletzt bearbeitet:

Ähnliche Beiträge

Neff Hausgeräte Ballerina Küchen Blum Bewegungstechnologie Weibel - Intelligente Küchenlüftung

Neff Spezial

Blum Zonenplaner

Weibel Abluft-Tuning

Weibel Abluft-Tuning
Zurück
Oben