AW: Neue Küche in unserer Wohnung
Hallo allerseits,
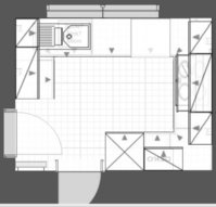
wir haben diese Idee auch mal im Alnoplaner nachgestellt, inklusive des 6rastrigen XXL-Geschirrspülers mit der höheren Arbeitsfläche für M., siehe Dateien unten.
Wir waren schon sehr beeindruckt, dass ein 60cm x 40cm großes Schneide (Hack-)brett als Arbeitshöhenausgleich rund EUR 330 kosten soll.
Auch die Spüle auf 99 cm hochzulegen ist keine Möglichkeit, da sich F. mit den 97 cm in Ms. derzeitiger Küche schon schwertut.
Was den Backwagen angeht hatten wir verstanden, dass es nur Herde, aber keine Backöfen mit Backwagen gibt. Das mag aber falsch sein... Und es hieß ja irgendwo im Forum auch, Auszüge seien die moderne Weiterentwicklung der vor 30 Jahren chicen Backwagen...
Von der Variante 35 haben wir erst einmal abgesehen. Auch bei einem Kompaktbackofen würde in dieser Variante ja die Unterkante des Ofens auf 99cm/86 cm liegen, was immer noch oberhalb der genannten 80 cm Maximaleinbauhöhe liegt. Zudem sind 22 bis 25 cm Höhe der Backröhre ja nicht wirklich viel. Mit unserem großen Bräter dürfte das ziemlich eng werden, oder beim Plätzchenbacken mit mehreren Blechen. Der Bräter ist gerade leider verliehen, so dass wir nicht nachmessen können...
Welche Anordnung an der Fensterseite seht Ihr eigentlich als sinnvoller an? a) Spüle - Auszugsschrank - Ofen oder b) Spüle - Ofen - Auszugsschrank? a) hätte den Vorteil, dass sich dann das Kochfeld als Ablage für Heißes aus dem Ofen anbietet, bei b) käme man von allen Seiten an den Ofen heran.
Als Kochfeld haben wir mal ein 80er eingezeichnet. Das scheint uns mehr Flexibilität zu bieten als ein 60er-Feld. Welche Größe würdet Ihr denn empfehlen (sogar 90 cm)? Gäbe es denn Probleme beim Einbau, da das Feld ja schon ein wenig in die tote Ecke hineinragt. Oder sollten wir es linksbündig im 100er Schrank bleiben?
Lohnt sich außerdem eine fünfte Platte, als Kochplatte, nicht nur zum Warmhalten? So ein oder zweimal im Jahr passiert es schon, wenn wir mal aufwändiger kochen, dass uns die vier Platen nicht ausreichen. Oder später mal, wenn zum normalen Essen für uns noch der Topf für die Babynahrung dazukommt (so sagt eine gute Freundin).
Außerdem stehen wir noch vor der Frage
Induktion oder nicht... Bislang haben wir Ceran bzw noch die guten neuen Stahlplatten. Wie ist denn das Summen oder Brummen zu bewerten, das man öfters als Nachteil liest? Und eine kurze Suche brachte jetzt irgendwie keine gute Induktionsalternative für unsere gute, beschichtete 29cm Bialetti Aluminium-Hi-Base-Pfanne? Habt Ihr da Empfehlungen?
Viele Grüße aus Südhessen
F. und M.