Unbeendet Neue Küche in U-Form

peroh

Mitglied
Beiträge
8
Hallo zusammen,

für eine aktuell noch in Bau befindliche Wohnung beschäftige ich mich u. a. mit dem Thema "Küche" und bin auf euer wirklich tolles Forum (weil sehr fachlich fundiert und unabhängig) gestossen.

Ich wollte nun die Chance nutzen und möglichst viele Meinungen und Tipps für die Planung bekommen. Da ich hier neu bin, hoffe ich auch, dass mir der eine oder andere Fehler in der Aufbereitung und Kommunikation verziehen wird.... :-)

Checkliste zur Küchenplanung

Anzahl Personen im Haushalt: 2
Davon Kinder?: 1
Art des Gebäudes?: Neu-/Umbau, Planänderungen möglich
Körpergrössen aller Hauptbenutzer (wegen Arbeitshöhe ) in cm: 189 und 135
Brüstungshöhe des Fensters (in cm): 120
Fensterhöhe (in cm): 100
Raumhöhe in cm: 242
Heizung: Fussbodenheizung
Sanitäranschlüsse: vollkommen variabel
Ausführung Kühlgerät: Integriert im Hochschrank (60cm)
Kühlgerät Größe: bis 178 cm Höhe
Ausführung Tiefkühl (TK)-Gerät: Im Kühlschrank bis 2 Schubladen unten
Dunstabzugshaube: Umluft
Backofen etc. hochgebaut?: Ja
Hochgebauter Geschirrspüler ?: Wenn möglich
Kochfeldart: Ceran (herkömmlich)
Kochfeldbreite ca. (in cm)?: 80
Spülenform: 1,5 Becken mit Abtropffläche
Geplante Heißgeräte: Backofen
Küchenstil: Grifflos
Sitzmöglichkeit in der Küche / im Küchenbereich: Überstehende Arbeitsplatte
Sitzmöglichkeit: Für wieviel Personen?: für 2 Personen
Sitzmöglichkeit: Tisch - wenn gesonderter Tisch oder offene Küche: Keiner
Gewünschte o. vorhandene Tischgröße:
Wofür soll der Sitzplatz in der Küche genutzt werden? Wie häufig?: Eher zum "Unterhalten" beim Kochen..... und eher selten
Welche Arbeitshöhe ist angedacht (in cm)?: ca. 91 cm
Was steht auf der Arbeitsplatte oder soll dort stehen?: Kaffeemaschine
Welche weiteren Küchenmaschinen müssen in der Küche untergebracht werden?: Küchenmaschine, Wasserkocher, Toaster, Handrührgerät, Eierkocher, Sonstiges (evtl. im Beitragstext benennen)
Was soll in der Küche außer den Standards untergebracht werden?: ALLE Vorräte, Getränkekisten, Geschirr komplett (nichts in Ess-/Wohnzimmer)
Welchen Stauraum gibt es sonst noch?: Hauswirtschaftsraum, Keller
Was/wie wird gekocht? (Alltagsküche, Menüs, Snacks usw): eher "Alltagsküche" und einfache Gerichte ......
Wie häufig wird gekocht?: ab und zu
Wird alleine gekocht? Oder auch gemeinsam? Mit und für Gäste?: i. d. R. wird alleine gekocht
Was stört an der bisherigen Küche und was soll die neue Küche unbedingt können? Warum?: - Ein hoch eingebauter Geschirrspüler wäre schön (wenn mit grifflos und der Wandbreite machbar).
- Kochfeld mit Muldenabluft oder Tischablufthaube

Welche Mülltrennung soll in der Küche vorgehalten werden?: Gelber Sack Müll, Restmüll
Steht schon ein Küchenhersteller fest oder wird bevorzugt?: Ballerina oder Nolte
Steht schon ein Gerätehersteller fest oder wird bevorzugt?: NEFF oder Siemens
Preisvorstellung (Budget): bis 15.000,-
 

Anhänge

  • Bild 1 Wohnungsplan.gif
    Bild 1 Wohnungsplan.gif
    190 KB · Aufrufe: 486
  • Bild 3 Abmessungen.gif
    Bild 3 Abmessungen.gif
    53 KB · Aufrufe: 572
  • Bild 4 Küchenplan alternativ.gif
    Bild 4 Küchenplan alternativ.gif
    63,4 KB · Aufrufe: 608
  • Bild 5 Ansicht 1.gif
    Bild 5 Ansicht 1.gif
    146,8 KB · Aufrufe: 2.013
  • Bild 6 Ansicht 2.gif
    Bild 6 Ansicht 2.gif
    139,3 KB · Aufrufe: 3.721
....in Ergänzung. Fragestellungen meinerseits wären

- Ist ein (Qualitäts-)Unterschied zwischen Ballerina (GL3450) und Nolte (Nova Lack) bei einem zwei Personenhaushalt (Vater mit Kind) und "verhaltener" Küchennutzung merkbar?
- ist ein Le Mans - Eckschrank zwischen Spüle und "Halbinsel" sinnvoll?
- Dunstabzug per Mulden- oder Tischlüfter oder doch besser Dunstabzugshaube?
- Geschirrspüler im Hochschrank ? Problem "grifflose" Küche?
- Evtl. alternativ "modularer Geschirrspüler "?
- Welche Arbeitshöhe würdet ihr empfehlen?
- Sieht die Planung für euch "schlüssig" aus oder gibt's Änderungs-/Verbesserungsvorschläge?
- ............

Danke nochmals.
 
Hallo @peroh und ein herzliches :welcome: im Küchenforum!

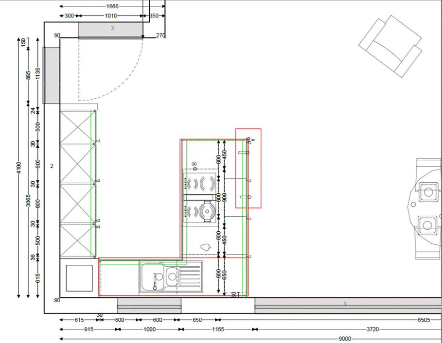
Ich bin mir nicht ganz sicher, ob ich die Planungsbilder richtig interpretiere, aber ich meine, dass das U in der Planung um 90° gedreht sei in Bezug auf das Grundrissbild. Ich bin zwar kein U-Fan, aber die ursprüngliche Drehung wäre besser sowohl für die Eingangssituation (man würde nicht direkt beim Eintreten im Arbeitsbereich stehen) als auch für den Ess-/Wohnraum, weil man nicht erst um die Barriere laufen musste, um in den Ess-/Wohnbereich zu treten. Dann wäre die Öffnung tatsächlich auch offen.

Zu Deinen Fragen (nur die, die ich auch beantworten kann):
  • zum LeMans etwas Lesestoff: * Tote Ecken - gute Ecken *
  • Muldenabzug bedeutet Stauraumverlust im Unterschrank und bietet sich an, wenn das Kochfeld zum Raum geplant ist. M.E. besser und günstiger, auch im Preis, ist es das Kochfeld zur Wand mit einer Wand-DAH zu planen
  • GSP im Hochschrank gut und möglich, in der Kombi mit Grifflos evtl. knifflig in der Planung aber machbar. Grundsätzlich sollte man Grifflos bez. Komfort und Stauraum hinterfragen. Aber einem Mann Grifflos und Muldenlüfter auszureden ist so gut wie aussichtslos, das weiß ich schon
  • Zur Bestimmung der optimalen Arbeitshöhe ein paar Faustregeln:
    ARBEITSHÖHE ermitteln
    3 Methoden haben sich da etabliert:
    - abgewinkelter Ellbogen bis Boden messen und 15 cm abziehen
    - Höhe Beckenknochen messen
    - z. B. Bügelbrett nehmen und in verschiedenen Höhen Probeschnippeln und messen, wenn es einem am bequemsten erscheint, wobei dies der wichtigste Test ist.
    Idealerweise ergeben alle 3 Methoden ca. denselben Wert
    Ausführlicher in
    Optimale Arbeitshöhen beschrieben.
 
Hi Isabella,

danke für Dein schnelles Feedback. Das "offene" U in Richtung Wohnungstür hatte ich in der Hoffnung geplant, dass dadurch der Raum "größer" wirkt.... auf die Idee das U zu "drehen" bin ich jedenfalls noch nicht gekommen - aber ein interessanter Ansatz. Man ist halt doch etwas in "seinem Denken" gefangen.... :-)

Ich interpretiere mal, dass Du den LeMans - Unterschrank eher nicht empfehlen würdest. Leuchtet aber auch nach der Lektüre des Lesestoffs ein und werde den wieder rausplanen lassen.

Den Mulden- oder Tischabzug ziehe ich rein wegen der "freien" Sicht / "Kopffreiheit" in Erwägung. Soll also keine technische Spielerei sein :-) - Wenn das Kochfeld zur Wand installiert wäre, wüßte ich nicht mehr, wo die Hochschränke unterzubringen wären..... daher hatte ich diese Alternative erst mal gedanklich nicht weiter verfolgt, obwohl besser, da ich dann die Abluft in den Schacht leiten könnte. Ansonsten müsste ich mich mit Umluft begnügen.

Ja, auf die "grifflose" Variante habe ich mich tasächlich schon zeimlich festgelegt. Wenn man schon die Küche nicht dauernd nutzt, soll sie ja wenigstens optisch was hermachen.... :-)
Aber gib' mir bitte noch mal einen Tipp, wo den der Unterschied bezüglich des Stauraums zwischen grifflos und mit Griffen ist. ich dachte Korpus etc. wäre doch gleich?

Viele Grüße
Peter.
 
Du musst dir nur mal kurz überlegen, wo der Platz für deine Finger/ die Griffmulde herkommt ;-)
Ich bin inzwischen froh, dass wir die großen Griffe genommen haben. Die Kinder bekommen so auch schwere Schubladen mit Geschirr viel besser auf und das nasse Handtuch kann übergangsweise schnell mal zum Trocknen darüber gehängt werden.
 
Zuletzt bearbeitet:
Ja, das und außerdem ist man gezwungen, damit es auch gut aussieht, auf einer strikter Linienführung zu achten und verliert damit die Freiheit, die Auszüge bedarfsgerecht einzuteilen.
Kühlschränke und GSP brauchen außerdem spezielle Lösungen je nach Art der Grifflosigkeit.
Griffe können übrigens auch gezielt als Gestaltungselemente ausgesucht werden oder auch dezent unauffällig, je nach Geschmack.
 
Mmh, da muss ich mir wohl doch noch Gedanken machen, ob Komfort und Zweckmäßigkeit über Design siegen.... Ihr macht mich da echt nachdenklich..... Hatte irgendwie die grifflose schon gedanklich "gesetzt".

Habt Ihr vielleicht noch einen Hinweis zur Qualität von Ballerina (GL3450) vs. Nolte (Nova Lack)?

Danke noch mal.
 
Zwei Griffmulden brauchen knapp 12cm der Höhe des Schrankkorpus. Hieße von einem 78er Schrank wären nur 66cm der Höhe nutzbar.

Dazu ist die Aufteilung auf max. 3 direkt zugängliche Auszüge pro Schrank beschränkt. Bei Griffleisten oder P2O wären es bis 6.

Schau also im Zweifel einfach mal in den fertigen Küchen was es noch für optisch ansprechende Lösungen gibt

Nachtrag: Und statt eines Muldenlüfters ist eine Deckenhaube eine gute Alternative, da sie genauso unauffällig ist, aber keinen Platz im Schrank beansprucht
 
Zuletzt bearbeitet:
Ja, die Nolte Matrix 900 habe ich mir schon mal angeschaut. Wenn dann aber doch mal jemand "Kleineres" in der Küche stehen würde, wäre das mit Sockel und Arbeitsplatte schon ziemlich hoch...... aber die 81,5 cm würden Sinn machen......
 
Du solltest Dir deswegen Gedanken über die Arbeitshöhe machen und auch überlegen, wie lange die kleinere Person noch klein bleibt. Ich bin 1,68 "groß" und arbeite sehr bequem auf 92 cm Arbeitshöhe.
 
Ja, 92 cm würde auch gut passen. Habe ja die Hoffnung
auf evtl. "zweite" kleinere Person (noch) nicht aufgegeben... :-)

Habe eben mal nach Deckenhauben geschaut. Das würde natürlich insbesondere in die Decke integriert gut aussehen. Dazu müsste der Trockenbauer aber Hand anlegen und daruaf würde ich gerne verzichten......

Haben denn die Tischhauben und/oder Muldenlüfter "technische" Nachteile oder ist das tatsächlich im wesentlichen "nur" der Stauraumverlust?
 
Der hier aktive Profi "moebelprofis" sagt gerne, eine Muldenlüftung funktioniert, wenn sie sorgfältig geplant und montiert ist.

Eine Umluft-Deckenhaube braucht natürlich auch einen Luftauslass, das wird mit flächenbündig in der Decke also eh etwas schwierig. Eine Haube wie die Capa von Gutmann lässt sich da viel leichter einfach an die Decke hängen, hat aber auch ihren Preis.
 
Nachteile oder ist das tatsächlich im wesentlichen "nur" der Stauraumverlust?

"Nur" trifft es hier nicht ganz, wohl eher "kriegsentscheidend", da sich unterm Kochfeld der einzig breite Schrank in dieser Küche befinden wird

Alternativ könnte man übrigens an der Wand oben rechts neben der Tür 2 Hochschränke stellen und dahinter noch einen Mini-Abstellraum oder Vorratsbereich schaffen.
 

Ähnliche Beiträge

Neff Hausgeräte Ballerina Küchen Blum Bewegungstechnologie Weibel - Intelligente Küchenlüftung

Neff Spezial

Blum Zonenplaner

Weibel Abluft-Tuning

Weibel Abluft-Tuning
Zurück
Oben