Neue Küche in U-Form

Cbella

Mitglied
Beiträge
6
Hallo alle miteinander,

ich habe nun eine erste Küchenplanung und möchte Euch bitten einen Blick darauf zu werfen und mir Eure Meinung dazu mitzuteilen. Was ist gut, was ist schlecht, was würdet ihr anders (besser) machen.

Es wird eine Systhema Küche. Ich weiß, dass Systhema keine eigenständige Küchenmarke ist, aber wir haben uns jetzt für diese Küche entschieden.

Geplant ist eine Küche mit Lackoberfläche, gefallen würde mir auch noch eine Glasoberfläche, da ist aber die Farbauswahl stark eingeschränkt. Anders als auf den Fotos soll es nun eine trüffelbraune oder steingraue Küche werden. Arbeitsplatte aus Stein, und Rückwand aus Glas.

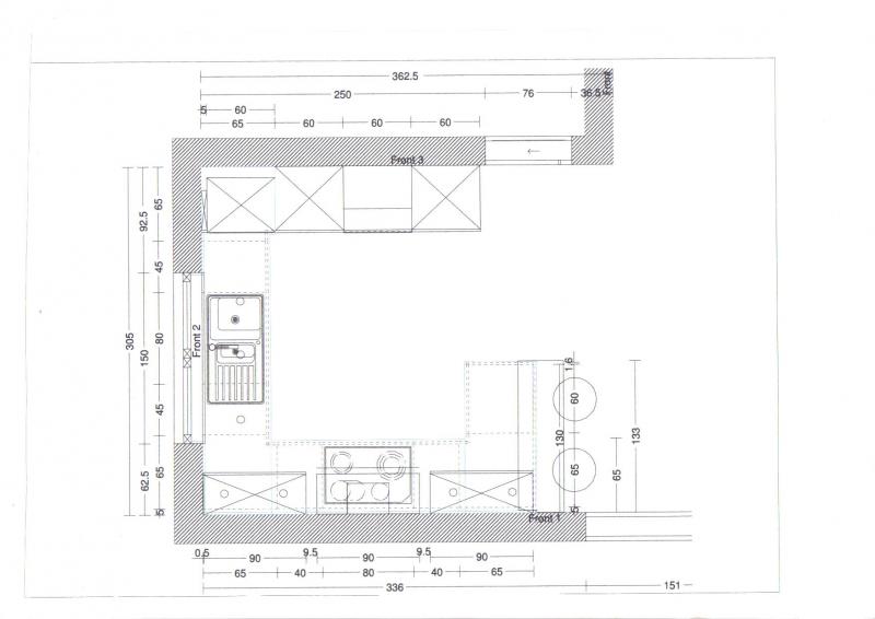
Neben der Schiebetür zur Speisekammer ist ein Kühlschrank vorgesehen, nicht ganz so groß, wie auf der Zeichnung, sondern nur 140 cm, darunter eine Schublade, oben darüber eine Tür. Neben dem Kühlschrank ist der hochgestellte Geschirrspüler , darunter ebenfalls eine Schublade, oben darüber ein offenes Regal (wir wollen ev. eine satinierte Glastür). Daneben der hochgestellte Backofen . Dampfgarer haben wir gestrichen, ich glaube, den würde ich nicht so sehr nutzen. Darunter ebenfalls Schublade, darüber ebenfalls Tür. Im Eck soll ein Jalousienschrank hinkommen, aber vorgesetzt, damit es eine einheitliche Front gibt.

Dann vor dem Fenster soll die Spüle hin, geplant ist ein 80er Spülenschrank, was ich etwas groß finde. Rechts und links davon sind Auszugschränke mit 45 cm. 55 cm breite Auszugschränke gibt es leider nicht. Deswegen hat das Küchenstudio eben einen 80er Spülenschrank und die zwei 45er Schränke geplant.

Die Ecken sind jeweils tote Ecken.

Dann auf der Seite vom Induktionskochfeld, ist unter dem Kochfeld ein 80er Auszugschrank, rechts und links davon 40er Auszugschränke.

Und dann so als Abgrenzung zum Eßzimmer hin, ein quergestellter 60er Auszugschrank mit toter Ecke.
Auf die Abgrenzung kommt eine aufgelegte Holzplatte, so als Eßtresen, für ein schnelles Essen ab und zu.
Ich hoffe, ich habe alles und auch das mit den Plänen ist vollständig. Wenn nicht, gebt bitte kurz Bescheid.

Das, was jetzt alles auf der Arbeitsfläche rumsteht, soll eigentlich verschinden, z. B. im Jalousienschrank bzw. in der Speisekammer. Es sollte eigentlich nur noch der Kaffeevollautomat, Obstschale auf der Arbeitsfläche stehen, wäre mein Wunschgedanke. grundriss_k.jpgnord2.jpgnord1.jpgost.jpgsued.jpgwest.jpg

Viele Grüße
Cbella





Checkliste zur Küchenplanung von Cbella

Anzahl Personen im Haushalt : 4
Davon Kinder? : 2
Körpergrössen aller Hauptbenutzer (wegen Arbeitshöhe ) in cm : 175 cm und 178 cm
Art des Gebäudes? : Neu-/Umbau, Planänderungen nicht möglich
Brüstungshöhe des Fensters (in cm) : 95 cm
Fensterhöhe (in cm) : 120 cm
Raumhöhe in cm: : 241 cm
Heizung : Fussbodenheizung
Sanitäranschlüsse : variabel an aktueller Wand
Ausführung Kühlgerät? : Integriert im Hochschrank (60cm)
Kühlgerät Größe : bis 140 cm Höhe
Ausführung Tiefkühl (TK)-Gerät : Nicht erforderlich bzw. steht woanders
Dunstabzugshaube? : Abluft
Hochgebauter Backofen ? : Wenn möglich
Hochgebauter Geschirrspüler ? : wenn möglich
Kochfeldart? : Induktion
Kochfeldbreite ca. (in cm)? : 80 cm
Spülenform: : 1,5 Becken mit Abtropffläche
Weitere geplante Heißgeräte :
Küchenstil? : klassisch
Sitzmöglichkeit in der Küche / im Küchenbereich als : Überstehende Arbeitsplatte
Sitzmöglichkeit: Für wieviel Personen? : für 2 Personen
Sitzmöglichkeit: Tisch - wenn gesonderter Tisch oder offene Küche : Keine
Gewünschte o. vorhandene Tischgröße : Tisch für 6 -8 Personen, steht aber im angrenzenden offenen Küchen-, Eß-, Wohnbereich
Wofür soll der Sitzplatz in der Küche genutzt werden? Wie häufig? : Der Eßplatz am Tresen soll ev. als Frühstücksplatz für die Kinder genutzt werden oder mal zum Mittagessen, wenn ein Kind später aus der Schule kommt.
Welche Arbeitshöhe ist angedacht (in cm)? : 95 cm
Was steht auf der Arbeitsplatte oder soll dort stehen? : Kaffeevollautomat, Wasserkocher, Küchenmaschine, Toaster, Brotbehälter, Obstschale
Welche weiteren Küchenmaschinen müssen in der Küche untergebracht werden? :
Was soll in der Küche außer den Standards untergebracht werden? : Geschirr komplett (nichts in Ess-/Wohnzimmer)
Welchen Stauraum gibt es sonst noch? : Speisekammer, Keller
Was/wie wird gekocht? (Alltagsküche, Menüs, Snacks usw) : Alltagsküche, Snacks, manchmal Menüs
Wie häufig wird gekocht? : (fast) täglich 1x warm
Wird alleine gekocht? Oder auch gemeinsam? Mit und für Gäste? : meistens allein, ab und zu mit Besuch
Was stört an der bisherigen Küche und was soll die neue Küche unbedingt können? Warum? : Arbeitsfläche ist jetzt zu vollgestellt.
Steht schon ein Küchenhersteller fest oder wird bevorzugt? : Systhema
Steht schon ein Gerätehersteller fest oder wird bevorzugt? : Miele bzw. Siemens , Kühlschrank aber Liebherr und Dunstabzug Berbel , wegen Lüftungsanlage.
Preisvorstellung (Budget) : bis 20.000,-
 
AW: Neue Küche in U-Form

Hallo Cbella!
:welcome: im Küchenforum! Gönnst du uns evtl auch einen Gesammtgrundriss damit man mal die Laufwege und die Abstände zu den anderen Möbeln erkennen kann?

Was mir als allererstes aufgefallen ist, das du sehr viele hohe Auszüge hast. Hast du mal eine Stauraumplanung gemacht was du wo unterbringen möchtest? Die meisten Dinge passen gut in 2er Auszüge und wenn man in 3ern das Stapeln anfängt ist das auch nicht komfortabel.
Dann die beiden 40er beim Kochfeld. Was soll da rein? Man könnte auch 2 80er nehmen und das Kochfeld mittig drauf setzen.

Das mit dem Kühlschrank hab ich jetzt nicht so ganz gecheckt.

LG
Sabine
 
AW: Neue Küche in U-Form

Hallo,

das mit dem Kühlschrank habe ich vielleicht etwas unglücklich ausgedrückt, ist aber vielleicht auch nicht so wichtig. Das Küchenstudio hat in dem ersten Hochschrank nach der Tür zur Speisekammer einen sehr großen Kühlschrank vorgesehen. Der ganze Hochschrank wäre nur Kühlschrank gewesen. Das ist uns aber zu groß.

Wir möchten in diesem Hochschrank nur einen Kühlschrank mit 235 l Nutzinhalt, Maße sind 139,7 / 141,3 / 55/57 und dann bleiben eben noch Platz für eine Schublade unten und eine Tür oben, dachte ich zumindest.

Plan vom gesamten Erdgeschoß mache ich noch.

Viele Grüße
cbella
 
AW: Neue Küche in U-Form

Hallo

Ich bin kein besonderer Fan von G-Küchen (verschärfte U-Küche ;-)) - man hat maximale Kosten ohne mehr Stauraum zu generien.

Ebenfalls fehlt mir in Deiner Planung eine übertiefe Arbeitsfläche, an welcher man Teig auswallen, Strudeln, Nudeln machen, Plätzchen ausstechen etc. kann. Uebertiefe APL sind GOLD wert - ausgesprochen komfortabel um daran zu arbeiten etc.

Die Wurmfortsätze mit Thekenaufsatz sprechen mich auch nicht an; meist sieht es dann doch nur aus wie: wir wollten noch unbedingt eine Theke haben - aber der Platz fehlt für was Richtiges :rolleyes:... Ich befürchte bei euch wird das eher mickrig aussehen.
 
AW: Neue Küche in U-Form

Hallo Vanessa,

eine übertiefe Arbeitsplatte möchte ich nicht haben. Bis jetzt bin ich eigentlich rein vom Platz der Arbeitsfläche her für die Arbeiten, sehr gut zurecht gekommen. Auch beim Teigausrollen, Plätzchenbacken, Pizza machen und so weiter, war das noch nie ein Problem. Nein, ich denke, die Arbeitsplatte ist schon okay so.

Und der "G" Schenkel ist eigentlich nicht als Stauraum gedacht, mir ist schon klar, dass man da nicht so viel unterbringen kann, aber bei uns ist Küche, Eßzimmer und auch Wohnzimmer alles offen und ich hätte halt gerne so eine kleine optische Trennung zum Eßzimmer hin.

Aber vielen Dank schon mal für deine Anregungen.

Cbella
 
AW: Neue Küche in U-Form

ich würde den hochschrank mit den öfen ein raster nach rechts schieben.
da gehen die türen besser auf, d.h. du kannst von beiden seiten an
die backofentüren rangehen.

so schlecht finde ich die planung insgesamt nicht vom grundriss her.
aber ich denke auch, dass du nicht so viele 3-er schübe brauchst.
in die zweier-schübe geht fast alles rein mit ausnahme von flaschen.



hanna
 
AW: Neue Küche in U-Form

Der Backofen muß links bleiben, das ander ist der GSP und wenn der nach links wandert geht der Schrank rechts der Spüle nicht mehr auf. Und so kann man den GSP auch während der Koch- und Backaktionen offen stehen lassen ohne das er stört. Einen Backofen lässt man ja seltener die ganze Zeit offen.
Warum soll sie von beiden Seiten an den Backofen können müssen? Also ich bediene meinen meistens von vorn. Und Bleche kann man ja auch ein Stück raus ziehen. ;-)

LG
Sabine
 
AW: Neue Küche in U-Form

Hallo Cbella,

ich persönlich würde den Rolladenschran gegen eine Art "Ulla-Schrank" austauschen.
Hier meine Argumente:

- optisch (damit es ruhiger wirkt, ist natürlich Geschmackssache)

- putztechnisch (ich gehe davon aus, dass man über eine Front leider putzt als über diese Lamellen)

- technisch (ich könnte mir vorstellen, dass diese Schränke einfach anfälliger sind)


EDIT: Dieses offene Element über den GSP für Bücher etc. ist nicht unbedingt soooo praktisch, das würde ich lieber geschlossen haben wollen.

Bei einem Ullaschrank hättest Du ja verschiedene Möglichkeiten, diesen zu
bestücken. Also z.B. Drehtüre, Lifttüre, Schubladen.

Ganz unten ein Bild aus meiner Küche mit Drehtüre

Und hier ein Beispiel bei den fertigen Küchen mit Schublade, wobei evtl. Lifttüren bei Dir sinnvoller wären.
Schichtstoff Hochglanz Weiß - Fertiggestellte Küchen - Alno ALNOCHIC Schichtstoff Hochglanz Weiß
 

Anhänge

  • Küche_100%-18.JPG
    Küche_100%-18.JPG
    99,8 KB · Aufrufe: 197
Zuletzt bearbeitet:
AW: Neue Küche in U-Form

Hallo,
was mir ins Aauge fällt, ist die Herdseite mit 1x 80cm und 2x 40cm US.

Mit 2 80iger Schränken hättest Du sicherlich mehr Stauraum, als mit zwei kleinen Schränken.

2x 80cm und den Herd in der Mitte einbauen läßt sich i.d.R. machen.

Außerdem wäre die Überlegung, ob Du soviele 3 rastige Auszüge benötigst. Evtl. käme eine 1-1-2-2 Aufteilung, statt 1-2-3 für Dich in Frage.

LG Bine
 
AW: Neue Küche in U-Form

Hallo an alle,

vielen Dank schon mal für euere Überlegungen.

Backofen und Geschirrspüler müssen so bleiben, weil man dann den Geschirrspüler von beiden Seiten erreichen kann und auch mal offen stehen lassen kann. Das erscheint mir besser, als beim Backofen . Denn den Geschirrspüler brauche ich mehrmals am Tag, den Backofen nur ab und zu und da reicht es, glaube ich, wenn man nur von einer Seiter ran kann.

Das mit dem Ullaschrank ist gar keine so schlechte Idee. So ein Jalousienschrank gefällt mir zwar, aber sie sind nicht so leicht zu putzen, da habt ihr schon recht und außerdem sehr teuer. Da muß ich mal wegen einem "Ullaschrank" nachfragen. Das würde mir auch gefallen.

Mit dem offenen Regal über dem Geschirrspüler bin ich auch zwiespältig. Ich weiß nicht, ob man das ganze hier durch das offene Regal auflockern soll, oder ob eine geschlossene Front besser aussieht. Das muß ich mir noch überlegen.

Herdseite die Auszüge eventuell in zwei 80er umwandeln und Kochfeld mittig, habe ich schon notiert. Das erscheint mir auf jeden Fall besser, als zwei 40er Schränke.

Dann muß ich leider mal nachfragen, ich weiß es wirklich nicht, was sind denn 1-1-2-2 Schränke, bzw. Auszüge.

Viele Grüße
cbella
 
AW: Neue Küche in U-Form

Hallo,

Du musst Dir so einen Unterschrank vorstellen, dass da rein theoretisch 6 Schubladen passen würden. Also 6/6 sozusagen. Erinnere dich an Bruchrechnen ;-)
Bei Raster 1 - 2 - 3 bedeutet das z.B.
1 Schublade (1/6) + Auszug (2/6) + auszug (3/6)
 
AW: Neue Küche in U-Form

so meint das Magnolia: ==> 6rasterig:
full

Typische Korpushöhen für 5-rasterig: 65cm, 70 cm, 72 cm, 75cm.
Typische Korpushöhen für 6-rasterig: 78cm, 79,8cm, 86,4cm
Der größte und auch für Laien sichtbare Unterschied ist das Raster und das spricht eindeutig für den 78 cm Korpus . So kann eine Stauraumoptimierung erreicht werden.
Selbst größere Töpfe bekommt man in 26cm hohen Auszügen unter, bei 30cm Auszügen hast du einfach 4cm mehr Luft, also ungenutzten Stauraum dazu.
In die hohen 39cm Auszüge bekommst du dafür zB Flaschen, Mixeraufsätze, Cornflakesschachteln, die aber für 30cm Auszüge wiederum zu hoch sind.
Und dein Besteck braucht auch keine 15cm hohe Schublade, 13cm reichen
In Korpushöhen - Rastermaße - Auszugs-Innenmaße - Stauraumplanung sind diverse Hersteller mit ihren Standardkorpushöhen verlinkt.

Wenn man dann z. B. einen 78cm hohen Korpus wählt, ergeben sich z.B. folgende Maße
- 78 cm Korpushöhe
- 4 cm APL-Höhe
- 12 cm Sockelhöhe
-----------------
= 94 cm Gesamthöhe=Arbeitshöhe
 
AW: Neue Küche in U-Form

Hallo wieder mal,

vielen Dank für Euere Erklärungen wegen der Aufteilung der Auszüge, jetzt habe ich verstanden, was mit der Aufteilung gemeint ist.

Das muß ich mir dann auch noch genauer überlegen. Das Ganze ist ja schon ein bißchen kompliziert für jemanden, der wenig Ahnung von einer Küchenplanung hat.

Viele Grüße
Cbella
 

Ähnliche Beiträge

Neff Hausgeräte Ballerina Küchen Blum Bewegungstechnologie Weibel - Intelligente Küchenlüftung

Neff Spezial

Blum Zonenplaner

Weibel Abluft-Tuning

Weibel Abluft-Tuning
Zurück
Oben