Unbeendet Neue Küche gewünscht

Kat78

Mitglied
Beiträge
12
Neue Küche gewünscht

Hallo in die Runde! Wir haben vor 13 Jahren unser Haus gekauft und die Küche unserer Vorbesitzer übernommen. Diese möchten wir nun austauschen und planen unsere erste eigene Küche. Wir sind also noch unerfahren, haben aber hier schon fleißig gelesen und einiges erfahren. Jetzt möchten wir den Entwurf des Küchenstudios teilen und um eure Meinung dazu bitten.

Wir sind mein Mann und ich und unsere beiden Teenie-Töchter.
Ich bin gespannt auf eure Meinungen und Ideen!

Checkliste zur Kuechenplanung

Personenkriterien und Ergonomie
Anzahl Personen im Haushalt:
4
Davon Kinder: 2
Körpergrößen aller Hauptbenutzer in cm (wegen Arbeitshoehe): 158 180
Welche Arbeitshöhe ist angedacht (in cm)?: 90

Gebäudekriterien
Art des Gebäudes:
Bestandsbau > Umbauten ausgeschlossen, Eigentum
Bruestungshöhe des Fensters (in cm): 95
Fensterhöhe (in cm): 115
Raumhöhe in cm: 250
Heizung: Fußbodenheizung
Sanitäranschlüsse: fix (Bitte Position im Grundriss vermaßt angeben)

Einbaugerätekriterien
Ausführung Kühlgerät:
Integriert im Hochschrank (60cm)
Einbaukühlgerät Größe: Noch unbekannt
Ausführung Tiefkühl (TK)-Gerät: Im Kühlschrank bis 2 Schubladen unten
Dunstabzugshaube: keine
Hochgebauter Backofen : ja
Geplante Heißgeräte: Einbaumikrowelle, Backofen
Hochgebauter Geschirrspüler : nein
Art des Kochfeldes: Induktionskochfeld
Kochfeldbreite (ca. in cm) : 80

Sitzmöglichkeiten
Sitzmöglichkeit in der Küche / im Küchenbereich:
Separater Tisch
Sitzmöglichkeit: Für wieviel Personen?: Für 8 Personen
Sitzmöglichkeit: Tisch - wenn gesonderter Tisch oder offene Küche: Vorhandener Tisch
Gewünschte oder vorhandene Tischgröße: 200x100
Wofür soll der Sitzplatz in der Küche genutzt werden und wie häufig:

Stauraum-Planung
Was steht auf der Arbeitsplatte oder soll dort stehen?:
Kaffeevollautomat, Küchenmaschine, Allesschneider, Toaster
Welche weiteren Küchenmaschinen müssen in der Küche untergebracht werden: Handrührgerät, Mixer, Pürierstab, Eierkocher
Was soll in der Küche außer den Standards untergebracht werden: N. a.
Welchen Stauraum gibt es sonst noch: Geschirr/Gläserschrank im Wohn-/Esszimmer, Keller

Kochgewohnheiten
Was/wie wird gekocht? (Alltagsküche, Menüs, Snacks usw):
Alltagsküche
Wie häufig wird gekocht: (fast) täglich 1x warm
Wird alleine gekocht? Oder auch gemeinsam? Mit und für Gäste?: Primär alleine, teilweise auch gemeinsam

Spülen und Müll
Spülenform:
1 Becken ohne Abtropffläche
Welche Mülltrennung soll in der Küche vorgehalten werden: Altpapier, Biomüll, Gelber Sack Müll, Restmüll

Sonstiges
Steht schon ein Küchenhersteller fest oder wird bevorzugt:
Steht schon ein Gerätehersteller fest oder wird bevorzugt:
Küchenstil:
Grifflose Küche
Was stört an der bisherigen Küche und was soll die neue Küche unbedingt können? Warum?: Granit AP

Spülmaschine neben der Spüle

MUPL

grifflose Fronten

Koch(halb)insel

Preisvorstellung (Budget): Bis 25000

Angehängte Dateien
 

Anhänge

  • Screenshot_20241228_100533_Samsung Notes.jpg
    Screenshot_20241228_100533_Samsung Notes.jpg
    83,5 KB · Aufrufe: 197
  • Screenshot_20241228_100546_Samsung Notes.jpg
    Screenshot_20241228_100546_Samsung Notes.jpg
    149,7 KB · Aufrufe: 174
  • Screenshot_20241228_100557_Samsung Notes.jpg
    Screenshot_20241228_100557_Samsung Notes.jpg
    110,5 KB · Aufrufe: 188
  • Screenshot_20241228_100505_Samsung Notes.jpg
    Screenshot_20241228_100505_Samsung Notes.jpg
    138,5 KB · Aufrufe: 194
Zuletzt bearbeitet:
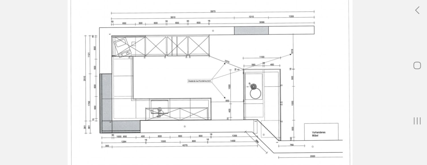
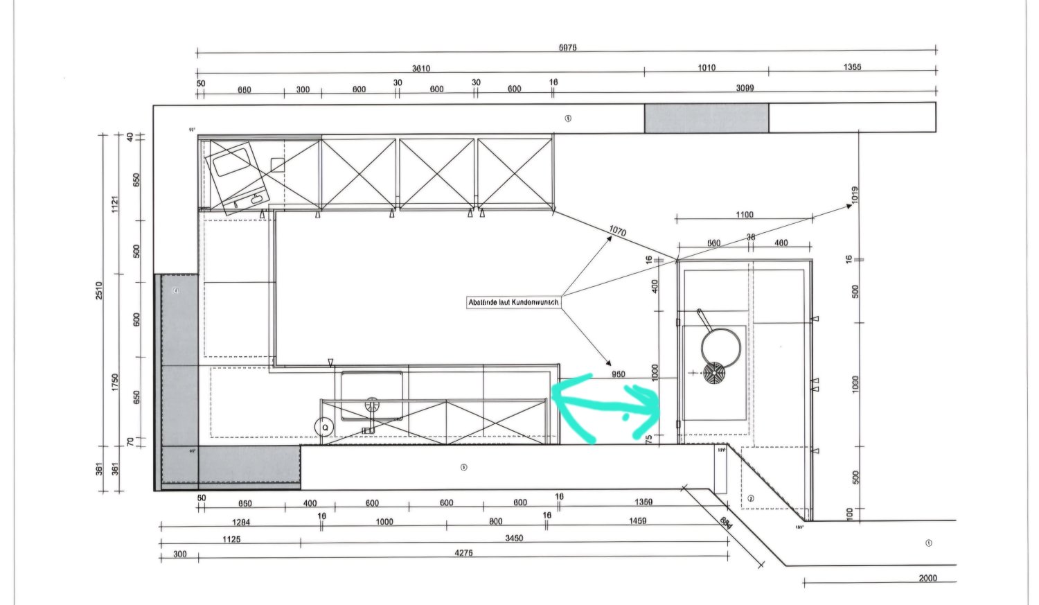
Hallo @Kat78

In deinem angefügten Plan lassen sich die Maße schlecht lesen.

Plan oben die Tür geht wohin?
Pan unten und links ist ein Eckfenter und rechts wohl offen in den Wohn/Essbereich.

Ideal wäre ein vermaßter, gut leserlicher Etagenplan, der die komplette Siruation zeigt. Zudem wäre gut, die Position des Wasseranschluß einzuzeichnen und zu bemaßen.

Du schreibst dass Umbauten ausgeschlossen sind, wie sieht es da mit der Elektroinstallation aus, kann die verändert werden oder müssen vorhandene Steckdosen berücksichtigt werden? Wenn ja, dann auch diese im Plan einzeichnen.

Wenn keine Abzugshaube gewünscht ist, dann wohl im Kochfeld integriert, so wie in der Planung zu sehen ist ein Bora , Umluft oder Abluft? Abluft wäre besser und wie ich sehe auch möglich da die Insel in deinem Plan an die Aussenwand andockt.

Ausser dem kleinen Apotheker finde ich die Planung schon mal nicht so schlecht.

Was ihr euch bewusst sein müsst ist, dass grifflose Schränke mit Stauraumverlust einhergeht.

Hier mal ein Beispiel (Korpushöhe 78cm, Schrankbreite 80cm)
Stauraum Grifflos.PNG
 
Zuletzt bearbeitet:
Hallo Sigi,
Vielen Dank für deine Nachricht!
Die Türe planoben geht zum Flur, rechts ist der offene Ess- und Wohnbereich.
Planunten links ist ein Eckfenster.

Ich hänge den Grundriss/Etagenplan an, da ist auch der Wasseranschluss markiert. (Da wo auch die Spüle geplant ist.)
Außerdem ein Bild vom Essplatz Richtung Küche.

Elektroinstallation/Steckdosen müssen nicht übernommen werden.

Den kleinen Apotheker stellen wir uns tatsächlich als Auszug mit Innenauszügen vor.

Ich frage mich, ob der GS an der Stelle gut untergebracht ist, allerdings fällt mir auch nichts Besseres ein, da ich Spüle und GS nebeneinander haben möchte.

Wir haben auch überlegt, ob anstelle des U eine zweizeilige Küche sinnvoll wäre?
Dann hätten wir keine (toten) Ecken und könnten den GS planlinks an die Außenwand setzen und die Spüle daneben und dann den MUPL .
Der Küchenplaner hält es nicht für vorteilhaft, zumal dann AP wegfallen würde.

Viele Grüße Kathrin
 

Anhänge

  • 20241120_201040.jpg
    20241120_201040.jpg
    273,5 KB · Aufrufe: 178
  • 20241228_212229.jpg
    20241228_212229.jpg
    247,4 KB · Aufrufe: 173
  • 20241228_211404.jpg
    20241228_211404.jpg
    192 KB · Aufrufe: 162
  • Screenshot_20241228_211155_Samsung Notes.jpg
    Screenshot_20241228_211155_Samsung Notes.jpg
    69,6 KB · Aufrufe: 168
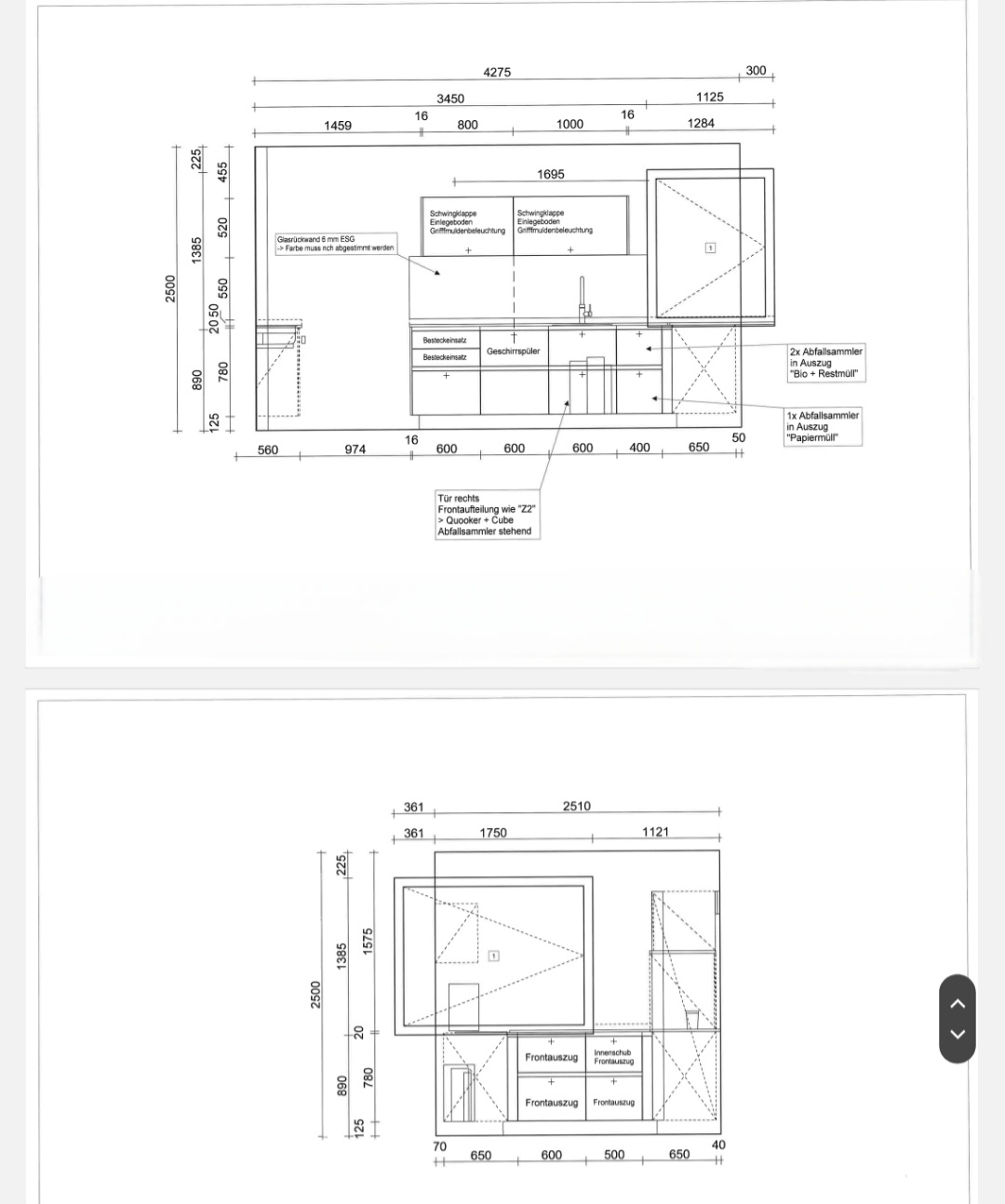
Hallo,

die Planung ist nicht schlecht.

Ich würde KS und Vorratsschrank tauschen. Der Durchgang an der Insel wäre mir zu sehr "Slalom". Wäre es meine Küche, würde ich US bis zur Ecke planunten stellen, inkl Kochfeld, und als Insel dann 120 aber vom Esstisch zugängig.

Die HS Zeile könnte dann etwas länger werden.

Den GSP wollte ich nach der toten Ecke planoben links.

Von welchem Hersteller ist die KFB Planung?
 
Zuletzt bearbeitet:
@Evelin Vielen Dank für deine Ideen! Kühlschrank und Vorratsschrank möchte ich auch tauschen.

Über den Vorschlag GS planoben links haben wir auch schon nachgedacht, dann ginge auch erhöht, allerdings wäre er dann nicht neben der Spüle, was ich unbedingt möchte.

Ich bin mir nicht sicher, ob ich deine Idee bzgl Kochfeld und Insel richtig verstanden habe - du meinst Kochfeld an die Wand und die Insel weiter in den Raum gerückt? Und dann als Arbeitsinsel?
Weiter nach rechts kann die Insel nicht, da steht dann ein Schrank, der auch bleiben soll.
 

Anhänge

  • Screenshot_20241229_102901_Samsung Notes.jpg
    Screenshot_20241229_102901_Samsung Notes.jpg
    76,8 KB · Aufrufe: 76
ne, nicht weiter ins Wohnzimmer rücken, den Schrank rechts habe ich gesehen.

Sowas in der Art wäre meine Wahl, wenn ich frei wählen könnteScreenshot 2024-12-29 183630.jpg
1735468266838.png

vorab, ignoriere die HS Zeile und Fenster, hab einfach was hingestellt. Was mir fehlt ist die Länge des Raumes von planlinks bis zur Ecke, wo der Raum breiter ist. Denn den Grundriss kann man jetzt besser lesen, aber auch nicht sehr gut.

Beide Pläne passen aber bei dir nicht, weil die Wasseranschlüsse ungünstig sind.

Da das Haus älter ist, wäre es gut, wenn du noch mal nachmisst. Die 251 cm sind vermutlich weniger und Wasser etwas genauer messen. Also ab planlinks bis Mitte kalt bis Mitte warm.

Am meisten bei der KFB Planung würde mich der Slalom stören und dann genau im Türbereich. Ich könnte damit leben, wenn der GSP wie in der Planung links von der Spüle ist. Fehlen würde mir aber dann der MUPL .

Mess erst mal.
 
Die Breite des Raumes sind 248cm.
Die Türe ist eine Schiebetür, das hätte ich gleich anmerken sollen. Das verbessert die Situation wahrscheinlich etwas ;-)
Wasseranschluss bei ca 120 ab Wand
 
danke, Schiebetür macht es einfacher.

248 cm wären zB mit Spüle und GSP planlinks nicht machbar. Die toten Ecken sind mit Greifraumprofil min 635 mm, also schon sehr knapp und mit Muldenlüfter planunten in der Zeile nicht machbar.

Also Spüle muss planunten bleiben.


1735474007064.png

besser ist es andersherum, also links der Spüle der Müllauszug (MUPL), rechts von der Spüle den GSP. Die Hauptarbeitsfläche ist zwischen Kochfeld und Spüle, man kann Reste einfach in Müll schieben.

So ginge es, GSP-60-45 (MUPL)-90-90 und die Insel dann so lang, dass min 100 cm Durchgang verbleiben.

1735474622628.png

Das Kochfeld in der KFB Planung ist schon sehr am Rand an einer Stelle, wo die Hauptverkehrsader lang führt. Er hat es mittig in einen 100er US eingebaut.

Die andere Sache ist die, die Insel ist mit dem Kochfeld belegt, was nur wenige Zeit in Betrieb ist. Eine nackte Insel ist vielleicht sinnvoller. Man kann Einkäufe zB ablegen.
 
Zuletzt bearbeitet:
Ich würde auf #11 gehen, @Evelin hat bez. Kochfeld recht und so wie sie das gezeichnet hat, ist die Küche auch besser nutzbar, die Wege sind nicht so unnötig lang.

Ich persönlich würde keine Möblierung an der kurzen Wand wollen, man gewinnt wenig Abstellfläche und erzeugt zwei Stellen an denen man sich selbst im Weg steht. Aber wenn ein U, aus welchem Grund auch immer, präferiert wird, dann eher #11.
 
Das Kochfeld in der KFB Planung ist schon sehr am Rand an einer Stelle, wo die Hauptverkehrsader lang führt. Er hat es mittig in einen 100er US eingebaut.
Ursprünglich war das Kochfeld und der 40er US vertauscht, wäre das geschickter? Reichen die 95cm hinter dem Kochfeld zur Spülenzeile?
 
Ist das so rum besser?
 

Anhänge

  • Screenshot_20241230_185358_Samsung Notes.jpg
    Screenshot_20241230_185358_Samsung Notes.jpg
    125,2 KB · Aufrufe: 61
Warum planst du das Kochfeld nicht mit an die Spülenwand und schliesst eine freie Halbinsel im Eck an? Ist weniger Heberei, weniger Getropfe von der Spüle/ Vorbereitung zum Kochfeld hin und es wäre ein super freier Arbeitsbereich, der universell von allen Seiten nutzbar ist.
 
Zuletzt bearbeitet:
@Sabine Ohneplan du meinst also #11?
Ich glaube, mir gefällt das rein optisch nicht so gut. Außerdem sehe ich eine freie Insel nicht lange frei :rofl: Ich fürchte, da würde ganz schnell ganz viel abgelegt....aber das liegt dann natürlich an uns selbst
 
Ja, genau #11, hatte ich wohl überblättert.
Was meinst du mit der Optik? Findest du den Blick auf die schwarze Glasfläche des Kochfeldes per se schön?
 
Zuletzt bearbeitet:

Ähnliche Beiträge

Neff Hausgeräte Ballerina Küchen Blum Bewegungstechnologie Weibel - Intelligente Küchenlüftung

Neff Spezial

Blum Zonenplaner

Weibel Abluft-Tuning

Weibel Abluft-Tuning
Zurück
Oben