Meinung,Kritik, Tips zu Küchenplan erwünscht

chrisl126

Mitglied
Beiträge
4
Hallo Ihr Küchenexperten:cool:,

Könntet Ihr mir eventuell ein paar Tips zu meinem Küchenplan geben.
->siehe angehängte Files.

Prinzipiell möchte ich diese Aufteilung so lassen, gefällt mir so ganz gut.

Ein paar Kleinigkeiten stören mich aber noch:

1) Kochinsel:

Bin noch am überlegen wie breit bzw. tief die Insel wird:

Raumbreite ist 4,25m, dh. von der Nischenwand bis zur Hebeschiebetür.
Planer hätte mir eine 2,3m (2x60er +1x80er Kästchen +Rand =2,30m) x 1,2m Insel eingezeichnet.

Optisch würden mir jetzt 2 laengere (statt 3) Laden besser gefallen.
-> siehe hier Schwab - Küche -> Bild 9
Mit nur zwei Laden vorne, komme ich auf die Länge von 2,10 m. Jetzt bin ich mir aber nicht sicher, ob doch eine längere Kochinsel von 2,30 m besser ist (was bedeutet, dass die Variante mit nur zwei Laden nicht geht - dann wäre vorne eine Dreiteilung). Oder glaubt ihr ist eine Insel von 2,10 x 1,20 groß genug?

2) Grifflose Küche:

Habe damals mir das Modell DAN "Andros" ausgesucht.
Nun würde mir aber optisch auch die Lionga zusagen.
Problem ist jetzt die Nische (ist schon vorhanden).
Diese ist 181cm breit und lt.Planer würde ich 198cm beim Lionga Modell für
3 60er Schränke benötigen. Gibts da eine Möglichkeit das irgendwie trotzdem zu realisieren?

Habt Ihr sonst noch ein paar Tips auf Lager?

attachment.php

attachment.php

attachment.php


attachment.php


lg Chrisl:-)


Checkliste zur Küchenplanung von chrisl126

Anzahl Personen im Haushalt : 2
Davon Kinder? : keine
Körpergrössen aller Hauptbenutzer (wegen Arbeitshöhe ) in cm : 180, 166
Art des Gebäudes? : Neu-/Umbau, Planänderungen möglich
Brüstungshöhe des Fensters (in cm) : 1
Fensterhöhe (in cm) : 0
Raumhöhe in cm: : 275
Heizung : Fussbodenheizung
Sanitäranschlüsse : fix
Ausführung Kühlgerät? : Integriert im Hochschrank (60cm)
Kühlgerät Größe : bis 175 cm Höhe
Ausführung Tiefkühl (TK)-Gerät : Nicht erforderlich bzw. steht woanders
Dunstabzugshaube? : Umluft
Hochgebauter Backofen ? : Ja
Hochgebauter Geschirrspüler ? : ja
Kochfeldart? : Induktion
Kochfeldbreite ca. (in cm)? : 80
Spülenform: : 1,5 Becken mit Abtropffläche
Weitere geplante Heißgeräte : Dampfgarer ohne Wasseranschluß
Küchenstil? : modern
Sitzmöglichkeit in der Küche / im Küchenbereich als : Keine
Sitzmöglichkeit: Für wieviel Personen? : nein
Sitzmöglichkeit: Tisch - wenn gesonderter Tisch oder offene Küche : Keine
Gewünschte o. vorhandene Tischgröße : 140x90
Wofür soll der Sitzplatz in der Küche genutzt werden? Wie häufig? : kein Sitzplatz
Welche Arbeitshöhe ist angedacht (in cm)? : 90cm
Was steht auf der Arbeitsplatte oder soll dort stehen? : Kaffeemaschine
Welche weiteren Küchenmaschinen müssen in der Küche untergebracht werden? : Eierkocher
Was soll in der Küche außer den Standards untergebracht werden? : Sonstiges (evtl. im Beitragstext benennen)
Welchen Stauraum gibt es sonst noch? : Hauswirtschaftsraum, Keller
Was/wie wird gekocht? (Alltagsküche, Menüs, Snacks usw) : Alltagsküche, Snacks, menüs
Wie häufig wird gekocht? : (fast) täglich 1x warm
Wird alleine gekocht? Oder auch gemeinsam? Mit und für Gäste? : mit Gäste
Was stört an der bisherigen Küche und was soll die neue Küche unbedingt können? Warum? : Kochinsel;-)
Steht schon ein Küchenhersteller fest oder wird bevorzugt? : DAN
Steht schon ein Gerätehersteller fest oder wird bevorzugt? : Siemens
Preisvorstellung (Budget) : bis 15.000,-
 

Anhänge

  • Küche_3D.jpg
    Küche_3D.jpg
    32,9 KB · Aufrufe: 1.133
  • Küche_Seite.jpg
    Küche_Seite.jpg
    14,1 KB · Aufrufe: 698
  • Küche_Vorderansicht.jpg
    Küche_Vorderansicht.jpg
    17,6 KB · Aufrufe: 846
  • Unbenannt.jpg
    Unbenannt.jpg
    42,2 KB · Aufrufe: 902
Zuletzt bearbeitet:
AW: Meinung,Kritik, Tips zu Küchenplan erwünscht

:welcome:

schöne Vorstellung :2daumenhoch: Bitte stelle doch noch einen Gesamtgrundriss von dem Geschoss ein, damit man die Laufwege und die Anbindung der Küche erkennen kann.
 
AW: Meinung,Kritik, Tips zu Küchenplan erwünscht

Vermutlich hat das Modell Lionga bei den Hochschränken Vertikal-Griffleisten, die zusätzlich Platz kosten. Von daher wird da wohl nichts möglich sein. Frage doch mal deinen KFB wie sich die 198 cm zusammensetzen.

Wg. Inselbreite etc. wäre halt wirklich ein Gesamtgrundriss gut, damit man sieht wie die Wege sind.

Grundsätzlich finde ich einen etwas schmaleren Unterschrank an einem Kochfeld auch nicht so unpraktisch .. sehr gut für Gewürze, Öle/Essige etc. geeignet. Ich würde dann immer
schmal (60)-breit mit Kochfeld (80) - breit (80)

aufteilen.

Und von der Rückseite der Insel dann 80-60-80
 
AW: Meinung,Kritik, Tips zu Küchenplan erwünscht

hallo Chrisl,

181cm für drei mal 60cm Hochschränke ist sehr sportlich gedacht! Da müssen die Wände schon perfekt gerade sein, was eigentlich nie der Fall ist. Wenn ihr die Möglichkeit habt, dann lasst die Nische auf 185cm mauern, dann seid ihr auf der sicheren Seite.
 
AW: Meinung,Kritik, Tips zu Küchenplan erwünscht

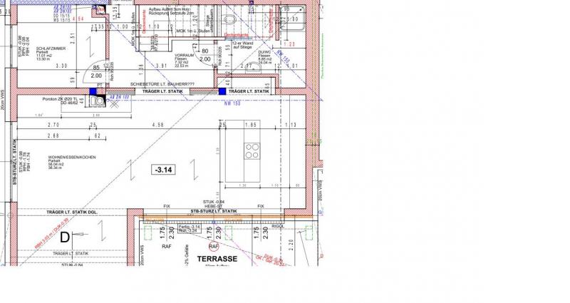
Hallo nochmal,

hab jetzt einen Grundrissplan EG angehängt.
leider ist die qualität ein bisschen mies, hoff es ist trotzdem halbwegs okay....

Ich möchte dazu anmerken dass der Eingang im OG ist da Hanglage vorhanden.

@KerstinB
ja so hats mir der Planer auch erklärt, wegen den vertikalen Griffleisten...
schade wird wohl nix mehr mit der grifflosen Küche, die Nische ist schon gemauert
:(....

Nun bitte um eure Meinung mit Kenntniss des Grundrissplanes
:danke:

btw, dieses Forum ist echt klasse
:2daumenhoch:, schade das ich es erst jetzt entdeckt habe......


lg Chrisl



 
AW: Meinung,Kritik, Tips zu Küchenplan erwünscht

Die Küchenplanung paßt gut zu dem Raum.

Ich würde ein paar Sachen ändern:
86033d1342281089-meinung-kritik-tips-zu-kuechenplan-erwuenscht-kueche_3d.jpg




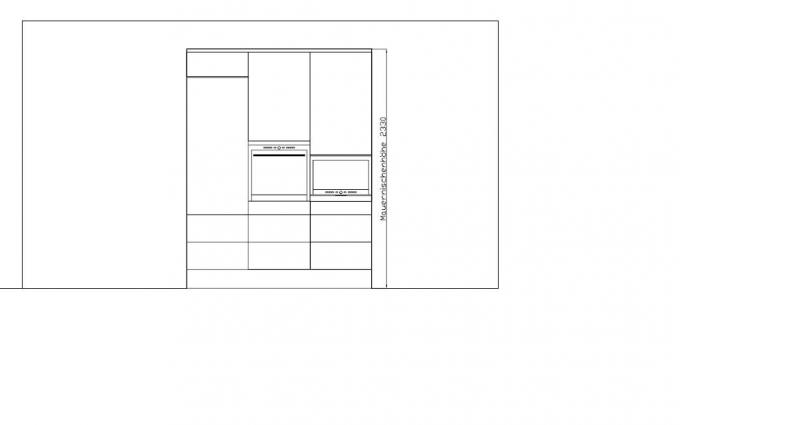
Hochschranknische:
- Heißgeräte auseinander und den Schrank dazwischen.

Wasserzeile:
- GSP, die Wangen ausklinken, also so:
73968d1331746473-bitte-um-hilfe-bei-wangen-und-rueckwand-wange-ausgeklinkt.jpg

und nicht so:
73969d1331746473-bitte-um-hilfe-bei-wangen-und-rueckwand-wange-normal.jpg

- Schrank unter Spüle zweiteilen, Spüle evtl. ohne Abtropfe. Links von Spüle Müll unter der APL... der zweite Auszug unten ist Stauraum:
full

- Spüle und Kochfeld leicht versetzt und nicht total symmetrisch ggü. Mit der halben Drehung landet man dann besser am Gegenüber.
- 60er Schrank von Küchenseite in Insel auch mit einem hohen Auszug wg. Öl-Essigflaschen, drüber dann die Gewürze.

Wie du an der Darstellung im Alnoplaner siehst, sieht man von Ferne weniger die vertikalen Linien sondern eher die horizontalen Linien, daher können da auch gut 3 Unterschränke stehen.
 

Anhänge

  • kf_chrisl126_20120715_KSueberarb.POS
    9,2 KB · Aufrufe: 274
  • kf_chrisl126_20120715_KSueberarb_Ansicht1.jpg
    kf_chrisl126_20120715_KSueberarb_Ansicht1.jpg
    72 KB · Aufrufe: 278
  • kf_chrisl126_20120715_KSueberarb_Ansicht2.jpg
    kf_chrisl126_20120715_KSueberarb_Ansicht2.jpg
    71,3 KB · Aufrufe: 282
  • kf_chrisl126_20120715_KSueberarb_Ansicht3.jpg
    kf_chrisl126_20120715_KSueberarb_Ansicht3.jpg
    42,2 KB · Aufrufe: 274
  • kf_chrisl126_20120715_KSueberarb_Ansicht4.jpg
    kf_chrisl126_20120715_KSueberarb_Ansicht4.jpg
    94,7 KB · Aufrufe: 273
  • kf_chrisl126_20120715_KSueberarb_Ansicht5.jpg
    kf_chrisl126_20120715_KSueberarb_Ansicht5.jpg
    97,9 KB · Aufrufe: 273
  • kf_chrisl126_20120715_KSueberarb_Grundriss.jpg
    kf_chrisl126_20120715_KSueberarb_Grundriss.jpg
    96,2 KB · Aufrufe: 277
  • kf_chrisl126_20120715_KSueberarb.KPL
    4,1 KB · Aufrufe: 267
AW: Meinung,Kritik, Tips zu Küchenplan erwünscht

Lese gerade, eines soll ein Dampfgarer sein, den würde ich dann eher rechts in der Hochschrankwand setzen und dann den Backofen nach links.
 
AW: Meinung,Kritik, Tips zu Küchenplan erwünscht

Wooooow VIELEN DANK für deine Hilfe Kerstin!!!
Bin echt begeisert:clap::2daumenhoch:

Wasserzeile:
Ja das mit den Wangen sehe ich auch so-> werden eliminiert.

Müll neben der Spüle:
Was hat denn das für einen Vorteil den Müll neben der Spüle zu montieren?

Kochinsel:
vielleicht ist die 3fach Unterschrank Variante doch die bessere Lösung.
Glaub mittlerweile das eine 2,3m Kochinsel besser wirkt als eine 2,1m breite.

Hochschranknische:
Hab letztes mal mit meinen KFB ausgemacht die Heißgeräte übereinader zu platzieren. Wäre das auch okay oder wäre es besser auseinander?

lg Chrisl
 
AW: Meinung,Kritik, Tips zu Küchenplan erwünscht

Hast du dir das Foto mal angesehen?
full



Insbesonder Bio-/Restmüll soweit oben hat den Vorteil, du schnippelst irgendetwas auf der APL, Reste können einfach in der Müll geschoben werden. Ich habe den Müllschrank ja in Richtung GSP orientiert .. wenn man Teller etc. einräumt, können auch Reste (Saucenreste etc. oder Servietten, Zahnstocher ) bequem und zielgenau in den Müll abgestrichen werden und dann kommt der Teller in die GSP. Sehr bequem.

Heißgeräte auseinander hat den Vorteil, dass jedes der beiden Geräte in der angenehmsten Höhe platziert ist. Und, der Stauraum untendrunter ist hinter Türen gut für Innenauszüge mit Vorräten etc. nutzbar.
 
AW: Meinung,Kritik, Tips zu Küchenplan erwünscht

In meiner vorherigen Küche hatte ich die Heissgeräte übereinander :rolleyes:.

Der DG war zu hoch - ich konnte ihn kaum putzen - und beim raus und reinheben schwappte schonmal die heisse Sosse über mich :-X und der BO war so niedrig, dass ich um diesen zu putzen, mich auch auf einen Stuhl setzen musste, sonst brach mir der Rücken ab. Nun habe ich sie nebeneinander und beide Geräte sind optimal zu Bedienen und zu Reinigen.

Die oberste Schiene von Heissgeräten sollte nicht höher als Schulterhöhe sein - höher ist sicheres Heben ergonomisch nicht mehr machbar.

Abgesehen davon rate ich euch sehr von einem reinen DG ab und statt dessen zu einem DGC
DG versus DGC
Ich zitiere mich mal selber: hier.
DGC versus Microwelle von JOstertag (sehr gut geschrieben)
Ich zitiere mal JO: hier
 
AW: Meinung,Kritik, Tips zu Küchenplan erwünscht

okay, danke euch zwei für die tollen Ratschläge:clap:

werde das in den Planungen berücksichtigen.....
möchte den Plan jetzt dann finalisieren...am 21.Sept wird die Küche aufgebaut:-)

kann ich das jetzt so verstehen das ausser diesen paar Sachen der Plan
gar ned so schlecht ist, und vom unabhängigen Küchenforum als tauglich befunden wird? ;D

lg Chrisl
 
AW: Meinung,Kritik, Tips zu Küchenplan erwünscht

Hallo Chrisl,

ich finde die Küche tauglich :top: und die Anregungen des KF sind gut.

Konform gehe ich jedoch nicht mit den ausgeklinkten Wangen. Ich würde sie korpushoch ausführen und den Sockel umlaufend.

Ansonsten: Da kommt doch wohl kein Kranzprofil drauf? :w00t: :-X ;D

@menorca: 181 cm Nischenbreite ist schon in Ordnung oder wolltest Du seitlich noch Handtücher zum Trocknen aufhängen? :cool: ;-)
 
AW: Meinung,Kritik, Tips zu Küchenplan erwünscht

wenn die 181cm tatsächlich überall unten mittig oben vorne hinten gegeben sind, okay. Ich kenne nur genügend Mauern, wo das eben nicht der Fall ist.
 
Neff Hausgeräte Ballerina Küchen Blum Bewegungstechnologie Weibel - Intelligente Küchenlüftung

Neff Spezial

Blum Zonenplaner

Weibel Abluft-Tuning

Weibel Abluft-Tuning
Zurück
Oben