Lack- U-Küche für kleinen Raum mit nicht ganz einfachen Maßen..

anfu307

Mitglied
Beiträge
17
Hallo,

ich möchte hier um Hilfe/Rat bitten nachdem ich 2 tage hierziemlich viel gelesen habe. Erstmal Kompliment für das viele Wissen hier!! :-):top:

Und zwar geht es um eineneue Küche für unser Eigenheim. Es handelt sich um einen Neubau von 2012,gekauft Mitte 2012 inkl. einer neuen eingepassten Einbauküche. Für den Übergangok, aber seht selbst anhander Bilder (Panaromabild, Problemecke, Übergang zum Wohn/Essbereich).

Habe erst einmal vermessen und online geplant. Auch mit demAlno-Planer, siehe anhängendes Bild, mit dem kam ich aber leider gar nicht klar:-\:-[. Daherauch bessere Planung mit einem anderen Planer.

Unser Wunsch ist eine helle (weiß, nochlieber cremefarben) Lackküche mit dunkler Granitabeitsplatte Star Galaxymit aufgesetzten (also unauffälligen) Griffleisten. Nobilia Lux hat uns daangesprochen, siehe anhängendes Muster :kiss:.
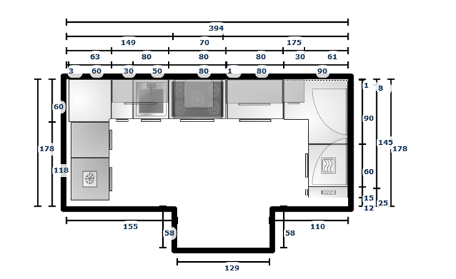
Nun haben wir das Problem, dass die Küchenmaße 3,94 x1,78 m sind. Den ursprünglichen Traum einer verbauten Wand mithochgesetzter Kühlkombi und Hochschank mit Backofen und Spülmaschine haben wirwegen mangeldem Platz widerwillig verworfen :'(:'(:'(:'(:'(.Meine Planung hab ich trotzdem angehangen. Vielleich hat ja jemand neIdee? Wir waren bei 2 Küchenplanern denen leider nichts eingefallen ist und dann abgebrochen haben. Die beiden waren aber auch die Motivation pur:stocksauer:

Alternativplan ist mit Eckspüle und nur einem Hochschrank .Finden wir mittlerweile ganz schön, aber nicht ganz perfekt. DieAnordnung Geschirrspüler (statt neben Spüle in Richtung Fenster undKochfeld mittig) und Herd wollen wir wahrscheinlich doch ändern. unsschwebt ein flächenbündiges 80er Induktionsfeld mit 80er Kopffreihabein Edelstahl/ Schwarzglas vor.

Spüle mit einem Becken aus Edelstahl soll unterbaut werden,ein Tropfschale in den Granit eingefräst werden.

Jetzt würde ich mich über Verbesserungsvorschläge oder gar eine ganz andere Idee zur Gestaltung freuen!!!
vielen, vielen Dank schonmal. Wenn ich etwas vergessen habe,reiche ich das gerne nach.
LG andrea



Checkliste zur Küchenplanung von anfu307

Anzahl Personen im Haushalt : 2
Davon Kinder? : keine
Körpergrössen aller Hauptbenutzer (wegen Arbeitshöhe ) in cm : 173 & 190
Art des Gebäudes? : Neu-/Umbau, Planänderungen nicht möglich
Brüstungshöhe des Fensters (in cm) : 100
Fensterhöhe (in cm) : 135
Raumhöhe in cm: : 260
Heizung : Fussbodenheizung
Sanitäranschlüsse : fix
Ausführung Kühlgerät? : Integriert im Hochschrank (60cm)
Kühlgerät Größe : bis 158 cm Höhe
Ausführung Tiefkühl (TK)-Gerät : Eigenständiges Gerät bis 88 cm Höhe
Dunstabzugshaube? : Umluft
Hochgebauter Backofen ? : Wenn möglich
Hochgebauter Geschirrspüler ? : wenn möglich
Kochfeldart? : Induktion
Kochfeldbreite ca. (in cm)? : 80-90 cm
Spülenform: : 1 Becken mit Abtropffläche
Weitere geplante Heißgeräte :
Küchenstil? : modern
Sitzmöglichkeit in der Küche / im Küchenbereich als : Keine
Sitzmöglichkeit: Für wieviel Personen? : nein
Sitzmöglichkeit: Tisch - wenn gesonderter Tisch oder offene Küche : Keine
Gewünschte o. vorhandene Tischgröße : keiner
Wofür soll der Sitzplatz in der Küche genutzt werden? Wie häufig? : keiner
Welche Arbeitshöhe ist angedacht (in cm)? :
Was steht auf der Arbeitsplatte oder soll dort stehen? : Messerblock, Küchenmaschine, Obstschale
Welche weiteren Küchenmaschinen müssen in der Küche untergebracht werden? : Wasserkocher, Toaster, Handrührgerät, Mixer, Pürierstab
Was soll in der Küche außer den Standards untergebracht werden? : ALLE Vorräte
Welchen Stauraum gibt es sonst noch? : Geschirr/Gläserschrank im Wohn-/Esszimmer, Hauswirtschaftsraum
Was/wie wird gekocht? (Alltagsküche, Menüs, Snacks usw) : Snacks bis etwas aufwendiger
Wie häufig wird gekocht? : (fast) täglich 1x warm
Wird alleine gekocht? Oder auch gemeinsam? Mit und für Gäste? : allein oder zu zweit
Was stört an der bisherigen Küche und was soll die neue Küche unbedingt können? Warum? : Unterbau-Kühlschrank :-(, Optik, Alter

--> modern, passend zum Neubau, möglichst Hochbaugeräte, das gilt mindestens für Kühl-Kombi!
Steht schon ein Küchenhersteller fest oder wird bevorzugt? : Nobilia Lux gefällt gut, Alternativen möglich
Steht schon ein Gerätehersteller fest oder wird bevorzugt? : NEFF in erster Überlegung, abe noch nicht fix
Preisvorstellung (Budget) : bis 20.000,-
 
AW: Lack- U-Küche für kleinen Raum mit nicht ganz einfachen Maßen..

sorry, ich bekomme die jpg nicht hochgeladen :(???. Ich versuche es später nochmal. Heute klappt auch NIX :stocksauer:
 
AW: Lack- U-Küche für kleinen Raum mit nicht ganz einfachen Maßen..

Bilder
 

Anhänge

  • Bild2.png
    Bild2.png
    139,1 KB · Aufrufe: 344
  • Alnoplaner.PNG
    Alnoplaner.PNG
    127,9 KB · Aufrufe: 407
  • Bild1.png
    Bild1.png
    226,9 KB · Aufrufe: 334
  • Bild4.png
    Bild4.png
    53,3 KB · Aufrufe: 352
  • Bild3.png
    Bild3.png
    73,4 KB · Aufrufe: 317
  • 2013-09-01 18.54.56.jpg
    2013-09-01 18.54.56.jpg
    29,7 KB · Aufrufe: 315
  • 2013-09-08 14.05.40.jpg
    2013-09-08 14.05.40.jpg
    49,3 KB · Aufrufe: 309
  • 2013-09-09 17.03.56.jpg
    2013-09-09 17.03.56.jpg
    33,1 KB · Aufrufe: 299
  • 2013-09-09 17.04.10.jpg
    2013-09-09 17.04.10.jpg
    56,8 KB · Aufrufe: 305
  • 2013-09-09 17.04.54.jpg
    2013-09-09 17.04.54.jpg
    33,7 KB · Aufrufe: 310
AW: Lack- U-Küche für kleinen Raum mit nicht ganz einfachen Maßen..

So, Donnerstag 16:00 nächster Planungstermin in einem kleinen Küchenstudio . Hoffentlich geraten wir endlich mal an einen motivierteren Berater....

Vielleicht hat bis dahin ja noch jemand hier eine Idee.

Hab auch noch weitere Grundrisse ausgetestet um irgendwie an meine Hochschrankwand mit den Geräten zu kommen, zb. an der Seite mit der "offenen Tür". Aber dann bleiben nur 58 cm, eher weniger, zum bewegen. auch nix :-\
 
AW: Lack- U-Küche für kleinen Raum mit nicht ganz einfachen Maßen..

Sag mal, das Wasser - das ist wirklich ganz fix? Oder könnte der Anschluss vielleicht doch verlegt werden? Die Aufteilung der Unterschränke macht mich noch gar nicht froh.

Unabhängig davon hab ich mal den Backofen hochgesetzt, mit einer Sonderanfertigung - ob sich das so realisieren lässt, weiß ich zwar nicht, aber mein Vertrauen zu Schreinern ist grenzenlos, die können alles. :cool: Ich stell mir vor, dass neben den Kühlschrank ein 50er-Unterschrank kommt, und auf diesen dann ein 60er für den Backofen und Stauraum darüber. Drunter eine Blende, damit der Ofen nicht mit der Arbeitsplatte kollidiert, die gerade in die Schrankwand läuft. Daneben gefiele mir ein Ullaschrank besser als ein Rollladenschrank, aber dem würde wohl die Spülenarmatur im Wege sein. Ich hab trotzdem einen hingebastelt. ;D

Der Rest, also Unter- und Hängeschränke, hat nur Platzhalterfunktion, gefällt mir so noch nicht. :-[

anfu307_t01_hswand.jpganfu307_t01_draufsicht.jpganfu307_t01_grundriss.JPG
 

Anhänge

  • anfu307_t01.POS
    16,1 KB · Aufrufe: 278
  • anfu307_t01.KPL
    3,9 KB · Aufrufe: 277
AW: Lack- U-Küche für kleinen Raum mit nicht ganz einfachen Maßen..

Hallo Taylor,

vielen Dank für Idee für die Ecke! Das wäre es ja. :dance: Hoffentlich kriegen wir mit irgend einem Studio diese Lösung hin!


Als Aufsatzschank würde ich ein Glasrollo vorziehen (ähnlich wie auf dem Bild), dann wäre die Spüle kein Problem. Laut Schwiegerpapa wäre das Versetzen vom Wasseranschluss (mit ihm zusammen) kein Problem. Spüle dennoch links und Geschirrspüler rechts in die Ecke? hmmmm

Zum Rest:
Unterschränke habe ich auch noch nicht so ganz DIE Idee (insbesondere wg. Raster). Die Arbeitsplatte soll möglichst hoch kommen, durch das Fenster sind wir auf 100 cm limitiert.

Oberschränke würde ich wenn ich mir Dein Bild anschaue relativ locker gestalten. 2 80er Oberschränke mit Glaslamellen passend zum Rollo-Schrank. Dazwischen dann die Kopffrei-Dunstabzugshaube.

Könnte das was aussehen? Was meinst Du?

Mehr Stauraum als bisher bekommen wir ja ohnehin durch die Ecke rechts, da ist ja bislang nur die Arbeitsplatte (und der Müll)

Vielen Dank schonmal!

LG
andrea
 

Anhänge

  • Glasrollladen5.jpg
    Glasrollladen5.jpg
    12,9 KB · Aufrufe: 372
AW: Lack- U-Küche für kleinen Raum mit nicht ganz einfachen Maßen..

So ein Glasrollo sieht wirklich stylisch aus, aber hast du mal überlegt, wie du das Glas von innen putzen kannst? Mir würde da jetzt nicht so richtig einfallen wie...:-\ :cool:...außerdem befürchte ich, das du den nicht in der Breite bekommst, wie du ihn dann brauchen würdest. ;-)
 
AW: Lack- U-Küche für kleinen Raum mit nicht ganz einfachen Maßen..

Hab jetzt grad keine Zeit, das hübsch in den Alno reinzubasteln, aber wenns vom Wasseranschluss her machbar wäre, tät ich die Spülmaschine planoben links hinsetzen. Dann 60er-Spülenschrank, 40 MUPL , 100er, tote Ecke, 100er mit Kochfeld, breite Blende (oder 90er Kochfeld und schmaler Schrank für Tabletts etc). Kochen vorm Fenster müsste frau dafür halt mögen. ;-)
 
AW: Lack- U-Küche für kleinen Raum mit nicht ganz einfachen Maßen..

planoben links? das kann ich mir gerade nicht so recht vorstellen? ???

Vielleicht hast du später dazu ja Zeit??? ;-)

Kochen ist bei uns Männersache :-) aber nicht vorm Fenster, sondern mit an der Wand. sorry für die Einschränkung. aber das ließe sich ja tauschen!

Was ist denn ein MUPL ?!

@ Glasrollo: Fairer Punkt mit dem Putzen - das ist nämlich leider mein Job.
--> Lappen reinstopfen, hoch und runterschieben und ganz feste hoffen, dass sich nichts verklemmt :2daumenhoch:
 
AW: Lack- U-Küche für kleinen Raum mit nicht ganz einfachen Maßen..

Was ich mich frage: Hat man mit dem Glasrollo nicht nur alle Nachteile, aber keines der Vorteile?

Anders als in der Deko kann ich mir das kaum schön vorstellen. Mit Kaffeemaschine, Küchenmaschine und noch zwei Sache stelle ich mir das schon gruschig vor, selbst wenn es schöne Teile sind. Also hat man nicht den Vorteil, dass man sein Chaos elegant verschwinden lässt.

Aber Putzen muss man trotzdem, denn wenn man die Küchenmaschine vorzieht und dort arbeitet, verspritzt man entweder das Rollo oder wenn es offen ist, das Innere des Regals. Putzen muss man also auch. :-\


Aber mit genau 8 Schüsseln ist es schick, das finde ich auch. :-)
 
AW: Lack- U-Küche für kleinen Raum mit nicht ganz einfachen Maßen..

ja, ich trage Eure Bedenken mit. Bliebe noch milchglas, bzw. farbiges, nahezu undurchsichtiges Gas - wenn es das überhaupt gibt. Geputzt werden muss es aber weiterhin...

Hat denn niemand hier sowas und kann bestätigen, dass man sich darüber nur ärgert?
 
AW: Lack- U-Küche für kleinen Raum mit nicht ganz einfachen Maßen..

Ha - Google weiß Rat bzgl. Reinigung ;D

"Dank des mitgelieferten Reinigungsmagneten ist das Thema Sauberkeit und Hygiene ebenfalls praktisch gelöst. Wie bei einem Aquarium lassen sich damit die Scheiben von innen und außen perfekt reinigen"
 
AW: Lack- U-Küche für kleinen Raum mit nicht ganz einfachen Maßen..

...glaubst du wirklich, das es damit perfekt wird? :w00t: Ich würde es erst glauben, wenn es mir einer vormacht und ich mich vom Ergebnis überzeugen kann. ;-)
Im Aquarium befindet sich Wasser, es gibt dort also keine Putzstreifen, beim Glasrollo ist es etwas anders...:cool:
 
AW: Lack- U-Küche für kleinen Raum mit nicht ganz einfachen Maßen..

...glaubst du wirklich, das es damit perfekt wird? :w00t: Ich würde es erst glauben, wenn es mir einer vormacht und ich mich vom Ergebnis überzeugen kann. ;-)
Im Aquarium befindet sich Wasser, es gibt dort also keine Putzstreifen, beim Glasrollo ist es etwas anders...:cool:

ich glaube nichts, deswegen hoffe ich ja auf Erfahungswerte. Und ich hoffe, dass die im Küchenstudio am Donnerstag einen solchen Rollo haben. Den werde ich dann mal GANZ genau inspizieren. Für Samstag haben wir übrigens noch einen weiteren Termin in einem Küchenstudio. ich bin sehr gespannt, ob die es schaffen Taylors Vorschlag umzusetzen!
 
AW: Lack- U-Küche für kleinen Raum mit nicht ganz einfachen Maßen..

So viel zum Thema Milchglas:





LG
Sabine
 
AW: Lack- U-Küche für kleinen Raum mit nicht ganz einfachen Maßen..

Hallo,

also das mit dem Glasrollo sehe ich genauso wie meine Vorrednerinnen.
Nur Nachteile, absolut keine Vorteile und optisch finde generell (weil evtl. bei Dir nicht möglich) einen Ullaschrank (z.B. mit Lifttüren, damit nicht so viel Platz nach vorne wie bei Drehtüren benötigt wird) viel ansprechender. ;-)

Natürlich sehen die Schrankküchenschränke ordentlich aus, da nur Deko darin untergebracht. Bei normalem Geschirr sieht das auch hübsch aus, aber Kaffeemaschine etc .........:-X das wird nur "bunt".

Damit Glasschränke mit Geschirr nicht ganz verteufelt werden hier ein Foto aus meinem Esszimmer mit satiniertem Glas-Schrank. Allerdings sind da aussschließlich Weingläser und gutes Geschirr drin ;D:

PS: Als Stauraum in der Küche kommen die Fotos von Bodybiene oben der Realität bei den Leuten leider sehr nahe.
 

Anhänge

  • DSCN1788.jpg
    DSCN1788.jpg
    48,3 KB · Aufrufe: 283
Zuletzt bearbeitet:
AW: Lack- U-Küche für kleinen Raum mit nicht ganz einfachen Maßen..

Taylor :top: .. und ich habe mal verfeinert.

Wenn Wasser verlegbar ist, dann würde ich es nach planrechts verlegen. Da dies vermutlich Aufputz geschehen muss, die planobere Zeile 5 cm von der Wand abgerückt, daher APL-Tiefe dort 65 cm.

Planlinks dann:
- 3 cm Blende .. das sollte bei den aufgesetzten Griffen gerade so reichen. Man kann evtl. noch 1 cm von der Blende der toten Ecke dazunehmen.
- Kühlschrank
- 45er Unterschrank Raster 2-2-2, dadrauf noch eine Schublade, also 7rasterig, daneben 15 cm Blende in der 7rasterigen Höhe. Dadrüber dann der Backofen und nochmal obendrüber ein 65 cm hohes Schrankfach
- Auf der APL, die dort in den Schrank geführt werden sollte, ein ca. 64 cm hoher Ullaschrank in 50 cm Breite. Dahinter kann die Küchenmaschine einsatzbereit stehen. Obendrüber ein 15 cm breiter Schrank in Hochschranktiefe, Optik der Drehtür wie die Hängeschränke daneben. Fach ist geeignet, gerade nicht benötigte Backbleche senkrecht aufzunehmen. In der Ecke tot

Dann unten weiter mit:
- 60er Auszugsunterschrank Raster 1-1-2-2
- 80er Auszugsunterschrank Raster 1-1-2-2 fürs Kochfeld
- 80er Auszugsunterschrank Raster 1-1-2-2 für Küchenhelfer, Schüsseln, Teller etc.
- 45er Spülenschrank mit kleinem Brett innen für die küchenüblichen Putzmittel, im Auszug ein großer Behälter für gelber Sack, kleinerer Behälter Altpapier oder so.
- tote Ecke
- 45er Bio/Restmüll unter der APL, unten Stauraum
- 60er GSP ... die damit schön am Rand steht und man kann in eine Richtung ausräumen und muss nicht immer um die Klappe rum. Das ist nämlich der entscheidende Nachteil deiner bisherigen Gedanken, die GSP in die Mitte der Zeile zu stellen.

Oben dann nach der Hochschrankecke einen 45er Hängeschrank mit Fneutür nach oben, dann
- 120er ziemlich hoch hängender Hängeschrank, dort ein Lüfterbaustein wie die Novy Minihighline eingebaut. Das gewährleistet Kopffreiheit, beruhigt aber in dieser kleinen Küche die Hängeschransicht und ist auch putzfreundlicher. Das kann dann so ähnlich wie hier in Martins Küche aussehen:
83258d1340301107-7-88m-brauchen-viel-stauraum-pict3053.jpg


Danach dann noch 2x39 Klapptürschränke in 120 cm Breite übereinander gehängt.

Dies alles sollte bei dem euch vorliegendem Budget problemlos machbar sein.

Solltet ihr noch mit dem Gedanken einer Mikrowelle spielen, wäre zu überlegen, den 60 cm hohen Backofen gegen einen 45 cm hohen Kompaktbackofen mit int. Mikrowelle auszutauschen.
 

Anhänge

  • anfu307_20130911_kb1.POS
    17 KB · Aufrufe: 268
  • anfu307_20130911_kb1.kpl
    3,9 KB · Aufrufe: 261
  • anfu307_20130911_kb1_Grundriss.jpg
    anfu307_20130911_kb1_Grundriss.jpg
    61,1 KB · Aufrufe: 410
  • anfu307_20130911_kb1_Ansicht5.jpg
    anfu307_20130911_kb1_Ansicht5.jpg
    118,8 KB · Aufrufe: 283
  • anfu307_20130911_kb1_Ansicht4.jpg
    anfu307_20130911_kb1_Ansicht4.jpg
    95,7 KB · Aufrufe: 280
  • anfu307_20130911_kb1_Ansicht3.jpg
    anfu307_20130911_kb1_Ansicht3.jpg
    135,3 KB · Aufrufe: 271
  • anfu307_20130911_kb1_Ansicht2.jpg
    anfu307_20130911_kb1_Ansicht2.jpg
    79,6 KB · Aufrufe: 289
  • anfu307_20130911_kb1_Ansicht1.jpg
    anfu307_20130911_kb1_Ansicht1.jpg
    106,5 KB · Aufrufe: 295
AW: Lack- U-Küche für kleinen Raum mit nicht ganz einfachen Maßen..

Die Bilder sprechen für sich!

wir standen heute morgen auch nochmal in der küche und haben überlegt. Sollten wir Taylors Lösung hinbekommen wäre das wirklich super. Mal seine Idee GS plan links oben ausgeblendet (weil nicht verstanden) käme die Spüle (60er, ev. 80er) links hin. Die Unterbauspüle soll 40x40 sein, die Armatur könnte weiterhin rechts auf der Ecke sein. damit wäre ein Ullaschrank sogar mit auszügen/Tür halbswegs zu öffenen, mit Klappe sowieso.

dann noch ein 60er, eine 80er oder 90er Kochstelle, dann die GS, ums Eck und und rechts in die Ecke dann den MUPL - Ich weiß jetzt was das ist ;D Ziemlich genial. Allein das war es wert, mich hier anzumelden!!!! Danke! :kiss:

Vor dem Fenster ist unsere Lieblingsarbeitsfläche, deswegen die Überlegung den MUPL dort hin zu packen.

Taylor hat ja jetzt ne Möglichkeit gezeigt wie unser Wunsch für die Ecke machbar wäre. Haltet ihr diesen Grundriss denn generell für sinnvoll oder würdet ihr die Küche komplett anders planen??
 
AW: Lack- U-Küche für kleinen Raum mit nicht ganz einfachen Maßen..

Von Glas würde ich in diesem Fall auch abraten - einfach, weil der Raum nicht wirklich groß ist. Und je mehr Kram da sichtbar ist, umso kleiner wirkt die Küche optisch. Aber wenn das nicht stört ... ist ja Geschmackssache.

Ich hab mal das Wasser verlegt und die Unterschränke rumgeschubst. ;D

Hochschrankseite dadurch insofern verändert, als wegen der vorgezogenen Arbeitszeile unterm Backofen jetzt nur noch ein 40er-Schrank ist, im Raster 1-2-3 - damit steht ein Auszug für hohe Ölflaschen etc zur Verfügung.

Planoben links dann die Spülmaschine, daneben ein 100er fürs Kochfeld, nochmal 100, tote Ecke, 60er Spülenschrank, 40er. Bei der Spüle müsste man halt schauen, dass die Armatur mittig vors Fenster kommt, damit sich das auch ohne Gedöns mit umklappbarer Armatur öffnen lässt.

Hängeschränke hab ich (noch) keine verplant, weil: Die dafür verfügbare Wandfläche ist doch eher mager, wenn eine Wandhaube gewünscht ist. Und so ein Mickerschränkchen links der Haube und ein etwas größeres rechts sähe imho nicht wirklich prickelnd aus. Andererseits wird vermutlich der Stauraum dringend benötigt - von daher würd ich eher dazu tendieren, den Dunstabzug in einen Hänger zu integrieren, damit das Ganze nicht so unmotiviert ausschaut.

anfu307_t02_draufsicht.jpganfu307_t02_vonfenster.jpganfu307_t02_grundriss.JPG
 

Anhänge

  • anfu307_t02.KPL
    3,9 KB · Aufrufe: 261
  • anfu307_t02.POS
    15,9 KB · Aufrufe: 280
Neff Hausgeräte Ballerina Küchen Blum Bewegungstechnologie Weibel - Intelligente Küchenlüftung

Neff Spezial

Blum Zonenplaner

Weibel Abluft-Tuning

Weibel Abluft-Tuning
Zurück
Oben