Kunterbunter
Mitglied
- Beiträge
- 4
- Wohnort
- Düsseldorf
Küchenplanung für Mietwohnung - 8,8 m²
Hallo,
aufgrund eines anstehenden Umzugs in eine neue Mietwohnung steht für uns erstmalig ein Küchenkauf an, da die neue Wohnung keine Einbauküche hat.
Bei Besichtigung der Wohnung waren wir noch ganz zuversichtlich, dass das doch gar nicht so schwer sein kann ... doch als wir uns dann erstmalig am Alno -Planer (und auch dem IKEA Planer) versucht haben, kam dann doch schnell die Einsicht, dass das wohl nicht so einfach wird
.
Und wenn wie beim Küchenkauf dann noch die Preisintransparenz dazu kommt, wurde schnell klar, dass wir uns doch intensiver mit diesem Thema beschäftigen müssen, um die ideale Küche für den besten Preis zu finden.
Wir sind beide sehr rational (und somit eher nicht emotional) denkende Menschen, klassischerweise stellen wir uns also den idealen Einkaufsvorgang für Großanschaffungen so vor, wie wir das auch z.B. im Beruf machen:
1) Kriterien mitteilen (Küche, Raummaße, konkrete Wünsche)
2) Angebote und Ideen einholen
3) Für eine Aufteilung entscheiden
4) Konkrete Preise für diese Aufteilung erfragen
5) Den Anbieter auswählen, der die beste Mischung aus Preis und Leistung (dazu zählt für uns definitv auch die Planungsleistung) bietet
Idealerweise würden wir uns eine Art "Honorarküchenberatung" wünschen, um den Angebotserstellungsprozess vom Verkaufsprozess zu trennen und so Fehlanreize zu vermeiden. Aber das ist leider in Deutschland derzeit keine Realität.
Wir haben also gestern und heute erstmalig Küchenstudios besucht und mussten schnell feststellen, dass das wohl etwas komplexer wird. Während wir uns bei IKEA sehr gut aufgehoben gefühlt haben und uns auch einige gute Tipps gegeben wurden, hatten wir in einem anderen Küchenstudio das klassische Verkaufsgespräch mit anschließendem Unter-Druck-setzen (wir wollen ja auch verkaufen; sie gehen aber nicht zur Konkurrenz; ich schreibe Ihnen jetzt einen neuen Preis auf und dann gehe ich weg und sie teilen mir danach mit, ob sie heute kaufen), obwohl wir direkt klar machten, dass wir definitiv heute nicht kaufen wollen.
Dienstag Abend sind wir nochmal in einem kleinen Küchenstudio vor Ort (Düsseldorf), in das wir ehrlich gesagt relativ hohe Hoffnungen auf eine faire Beratung setzen.
Wir haben die IKEA-Planung einmal in den Alno-Planer übertragen, da uns diese aktuell relativ gut gefallen hat, würden uns aber über konstruktive Rückmeldungen sehr freuen.
Einige kleine Anmerkungen:
1) Beim Kühlschrank ist auch ein Standalone Gerät möglich, sofern sich das gut in den Raum stellen lässt.
2) Die Hochschränke hinter der Tür wurden uns bei der IKEA-Planung empfohlen und in Form eines Vitrinenschranks (Schrank oben Glasvitrine, unten geschlossene Front) und eines komplett geschlossenen Schranks eingeplant. Leider ließ sich das bei Alno nicht so gut darstellen (oder wir waren zu doof dafür
), das können wir sonst aber ggf. auch separat kaufen.
3) Bei den Fronten sind wir flexibel, bevorzugt werden helle Farben. Im Küchenstudio hatten wir heute z.B. Lacklaminat magnolia supermatt als angenehm empfunden. Die Arbeitsplatte hatten wir uns in holzfarben (Wildeiche, Eibenholz) Nachbildung als Schichtstoff vorgestellt, da wir eine bessere Nutzung (Wasser, Spritzer) im Gegensatz zu Massivholz erwarten. Auch hier sind wir über Empfehlungen gerade in Bezug auf Langlebigkeit und Praktikabilität dankbar.
4) Die Schrankbreiten etc. sind nicht fix, wir freuen uns über Vorschläge. In unserer aktuellen Küche haben wir nur Drehtürenschränke, womit wir sehr gut zurecht kommen, sodass Schubladen (außer Besteck
) nicht zwingend erforderlich sind.
5) Das Warmwasser kommt aus einem Durchlauferhitzer im Bad.
6) Es steht noch ein relativ großer Keller zur Verfügung, in dem bei Bedarf eine große Tiefkühltruhe aufgestellt werden kann.
7) Da wir bereits in einem Monat umziehen, sind wir zeitlich leider nicht ganz so flexibel. Ein überstürzter Kauf kommt für uns jedoch keinesfalls in Frage, sodass wir schon davon ausgehen, erstmal ein paar Wochen ohne Küche wohnen zu müssen.
8) Wir sind prinzipiell auch in Richtung Landhaus-Stil offen, allerdings wirkt das auf 8,8 m² vermutlich leider nicht so gut.
9) Wir besitzen noch ein Highboard aus Wildeiche Massivholz (BxHxT = 173x140x45 cm), welches im Wohn-/Esszimmer stehen soll. Falls sich das gut in die Küche integrieren lässt, wären wir aber auch nicht abgeneigt.
10) Wir möchten gerne Kinder haben (deshalb auch die 4-Zimmer-Wohnung), bis es aber soweit ist, werden wir vermutlich ein separates Esszimmer haben.
11) Die Abfalltrennung haben wir bisher über separate auswaschbare Behälter (Eimer, IKEA-Box) erledigt, was sehr gut funktioniert (d.h. ohne spezielle Schienen/Einbauten).
Der Preis bei IKEA wäre ohne Aufbau aktuell bei circa 6.000 Euro (circa 3.500 Euro Möbel), wobei wir hier einfach erstmal die Standard-Elektrogeräte geplant haben. Wir überlegen, ob wir diese ggf. je nach Preis auch separat kaufen.
Im Küchenstudio war der Listenpreis ohne die Hochschränke (dafür mit Vitrinenunterschränken an dieser Stelle) und GSP/Spüle vor den Fenstern bei über 16.000 Euro, der letzte Angebotspreis (ohne Handeln nach Abzug diverser seltsamer Rabatte) bei circa 8.000 Euro inklusive Geräte (alles Junker, nur GSP von Miele ).
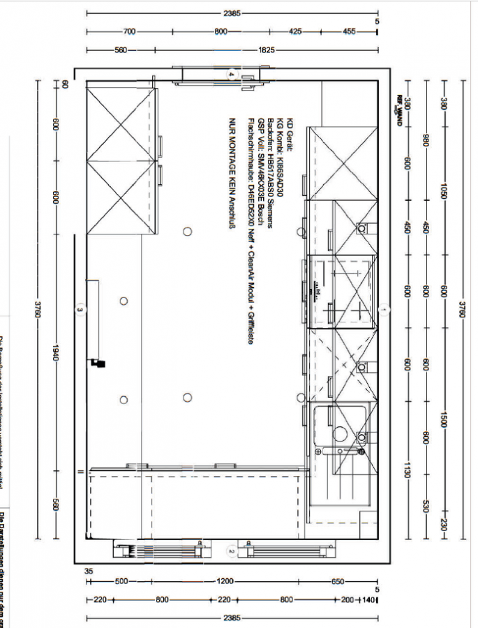
Ergänzungen zum Grundriss:
1) Der Wasseranschluss liegt fast direkt an der Säule beim Fenster
2) Der Herdanschluss liegt im vorderen Drittel des Fliesenspiegels von der Tür aus gesehen (leider keine konkrete Lage bekannt)
3) Die Lage der Tür, des Heizkörpers sowie der Säulen ist korrekt im Alno-Planer eingetragen.
Jetzt ist es leider doch relativ viel Text geworden, deshalb anbei ein kurzes Fazit:
Wir suchen eine Küche mit einem sehr guten Preis-/Leistungsverhältnis. Wir sind bereit, für Sonderwünsche (z.B. Induktionsherd) Aufpreise zu bezahlen; für Dinge, die uns eigentlich egal sind, jedoch nicht.
Wir freuen uns auf eure Rückmeldungen.
Vielen lieben Dank und viele Grüße
Anna & Sebastian
Checkliste zur Küchenplanung
Personenkriterien und Ergonomie
Anzahl Personen im Haushalt: 2
Davon Kinder: keine
Körpergrößen aller Hauptbenutzer in cm (wegen Arbeitshöhe ): 172 und 163 cm; Kinder geplant
Welche Arbeitshöhe ist angedacht (in cm)?: noch nicht festgelegt; derzeit arbeiten wir auf 91cm, was ganz gut funktioniert
Gebäudekriterien
Art des Gebäudes: Bestandsbau > Umbauten ausgeschlossen, Miete
Brüstungshöhe des Fensters (in cm): 132
Fensterhöhe (in cm): circa 100 (haben wir aufgrund der Fensterhöhe nicht genau vermessen)
Raumhöhe in cm: 270
Heizung: Heizkörper wie im Grundriss
Sanitäranschlüsse: fix
Einbaugerätekriterien
Ausführung Kühlgerät: Integriert im Hochschrank (60cm)
Einbaukühlgerät Größe: 178cm
Ausführung Tiefkühl (TK)-Gerät: Im Kühlschrank ab 3 Schubladen unten
Dunstabzugshaube: Umluft
Hochgebauter Backofen : wenn möglich
Geplante Heißgeräte: Standmikrowelle, Backofen
Hochgebauter Geschirrspüler : nein
Art des Kochfeldes: Induktion
Kochfeldbreite (ca. in cm): 4 Herdplatten (ansonsten flexibel)
Sitzmöglichkeiten
Sitzmöglichkeit in der Küche / im Küchenbereich: Arbeitsplatte in Tischhöhe
Sitzmöglichkeit: Für wieviel Personen?: Für 2 Personen
Sitzmöglichkeit: Tisch - wenn gesonderter Tisch oder offene Küche: N. a.
Gewünschte oder vorhandene Tischgröße:
Wofür soll der Sitzplatz in der Küche genutzt werden und wie häufig: Für ein kurzes schnelles Frühstück oder als verlängerter Arbeitsort bei Besuch oder größeren Gerichten (z.B. zum Schnippeln von Gemüse); wir hatten uns hier Barhocker vorgestellt
Stauraumplanung
Was steht auf der Arbeitsplatte oder soll dort stehen?: Kaffeemaschine, Wasserkocher, Toaster, Brotbehälter
Welche weiteren Küchenmaschinen müssen in der Küche untergebracht werden: Handrührgerät
Was soll in der Küche außer den Standards untergebracht werden: ALLE Vorräte
Welchen Stauraum gibt es sonst noch: Geschirr/Gläserschrank im Wohn-/Esszimmer, Hauswirtschaftsraum, Keller
Kochgewohnheiten
Was/wie wird gekocht? (Alltagsküche, Menüs, Snacks usw): Klassische Alltagsküche für tägliche Gerichte (Hauptgericht mit Beilage)
Wie häufig wird gekocht: (fast) täglich 1x warm
Wird alleine gekocht? Oder auch gemeinsam? Mit und für Gäste?: Fast immer alleine
Spülen und Müll
Spülenform: 1 Becken mit Abtropffläche
Welche Mülltrennung soll in der Küche vorgehalten werden: Altpapier, Bio/Restmüll ungetrennt, Gelber Sack Müll, Restmüll
Sonstiges
Steht schon ein Küchenhersteller fest oder wird bevorzugt: Nein, wir sind flexibel
Steht schon ein Gerätehersteller fest oder wird bevorzugt: Nein, nach Möglichkeit auch hier bestes Preis-/Leistungsverhältnis gewünscht
Küchenstil: Klassisch
Was stört an der bisherigen Küche und was soll die neue Küche unbedingt können? Warum?: Mehr Arbeitsfläche als die alte in der jetzigen Mietwohnung bieten, da diese bisher zum Kochen nur bedingt ausgereicht hat.
Preisvorstellung (Budget): Wir haben hier mangels Vorstellung was was kostet kein konkretes Budget, idealerweise so günstig wie möglich. Nach den ersten Recherchen sehen wir uns bei ungefähr 5.000 Euro, jedoch realistischerweise erstmal nicht über 10.000 Euro
Angehängte Dateien
Hallo,
aufgrund eines anstehenden Umzugs in eine neue Mietwohnung steht für uns erstmalig ein Küchenkauf an, da die neue Wohnung keine Einbauküche hat.
Bei Besichtigung der Wohnung waren wir noch ganz zuversichtlich, dass das doch gar nicht so schwer sein kann ... doch als wir uns dann erstmalig am Alno -Planer (und auch dem IKEA Planer) versucht haben, kam dann doch schnell die Einsicht, dass das wohl nicht so einfach wird
Und wenn wie beim Küchenkauf dann noch die Preisintransparenz dazu kommt, wurde schnell klar, dass wir uns doch intensiver mit diesem Thema beschäftigen müssen, um die ideale Küche für den besten Preis zu finden.
Wir sind beide sehr rational (und somit eher nicht emotional) denkende Menschen, klassischerweise stellen wir uns also den idealen Einkaufsvorgang für Großanschaffungen so vor, wie wir das auch z.B. im Beruf machen:
1) Kriterien mitteilen (Küche, Raummaße, konkrete Wünsche)
2) Angebote und Ideen einholen
3) Für eine Aufteilung entscheiden
4) Konkrete Preise für diese Aufteilung erfragen
5) Den Anbieter auswählen, der die beste Mischung aus Preis und Leistung (dazu zählt für uns definitv auch die Planungsleistung) bietet
Idealerweise würden wir uns eine Art "Honorarküchenberatung" wünschen, um den Angebotserstellungsprozess vom Verkaufsprozess zu trennen und so Fehlanreize zu vermeiden. Aber das ist leider in Deutschland derzeit keine Realität.
Wir haben also gestern und heute erstmalig Küchenstudios besucht und mussten schnell feststellen, dass das wohl etwas komplexer wird. Während wir uns bei IKEA sehr gut aufgehoben gefühlt haben und uns auch einige gute Tipps gegeben wurden, hatten wir in einem anderen Küchenstudio das klassische Verkaufsgespräch mit anschließendem Unter-Druck-setzen (wir wollen ja auch verkaufen; sie gehen aber nicht zur Konkurrenz; ich schreibe Ihnen jetzt einen neuen Preis auf und dann gehe ich weg und sie teilen mir danach mit, ob sie heute kaufen), obwohl wir direkt klar machten, dass wir definitiv heute nicht kaufen wollen.
Dienstag Abend sind wir nochmal in einem kleinen Küchenstudio vor Ort (Düsseldorf), in das wir ehrlich gesagt relativ hohe Hoffnungen auf eine faire Beratung setzen.
Wir haben die IKEA-Planung einmal in den Alno-Planer übertragen, da uns diese aktuell relativ gut gefallen hat, würden uns aber über konstruktive Rückmeldungen sehr freuen.
Einige kleine Anmerkungen:
1) Beim Kühlschrank ist auch ein Standalone Gerät möglich, sofern sich das gut in den Raum stellen lässt.
2) Die Hochschränke hinter der Tür wurden uns bei der IKEA-Planung empfohlen und in Form eines Vitrinenschranks (Schrank oben Glasvitrine, unten geschlossene Front) und eines komplett geschlossenen Schranks eingeplant. Leider ließ sich das bei Alno nicht so gut darstellen (oder wir waren zu doof dafür
3) Bei den Fronten sind wir flexibel, bevorzugt werden helle Farben. Im Küchenstudio hatten wir heute z.B. Lacklaminat magnolia supermatt als angenehm empfunden. Die Arbeitsplatte hatten wir uns in holzfarben (Wildeiche, Eibenholz) Nachbildung als Schichtstoff vorgestellt, da wir eine bessere Nutzung (Wasser, Spritzer) im Gegensatz zu Massivholz erwarten. Auch hier sind wir über Empfehlungen gerade in Bezug auf Langlebigkeit und Praktikabilität dankbar.
4) Die Schrankbreiten etc. sind nicht fix, wir freuen uns über Vorschläge. In unserer aktuellen Küche haben wir nur Drehtürenschränke, womit wir sehr gut zurecht kommen, sodass Schubladen (außer Besteck
5) Das Warmwasser kommt aus einem Durchlauferhitzer im Bad.
6) Es steht noch ein relativ großer Keller zur Verfügung, in dem bei Bedarf eine große Tiefkühltruhe aufgestellt werden kann.
7) Da wir bereits in einem Monat umziehen, sind wir zeitlich leider nicht ganz so flexibel. Ein überstürzter Kauf kommt für uns jedoch keinesfalls in Frage, sodass wir schon davon ausgehen, erstmal ein paar Wochen ohne Küche wohnen zu müssen.
8) Wir sind prinzipiell auch in Richtung Landhaus-Stil offen, allerdings wirkt das auf 8,8 m² vermutlich leider nicht so gut.
9) Wir besitzen noch ein Highboard aus Wildeiche Massivholz (BxHxT = 173x140x45 cm), welches im Wohn-/Esszimmer stehen soll. Falls sich das gut in die Küche integrieren lässt, wären wir aber auch nicht abgeneigt.
10) Wir möchten gerne Kinder haben (deshalb auch die 4-Zimmer-Wohnung), bis es aber soweit ist, werden wir vermutlich ein separates Esszimmer haben.
11) Die Abfalltrennung haben wir bisher über separate auswaschbare Behälter (Eimer, IKEA-Box) erledigt, was sehr gut funktioniert (d.h. ohne spezielle Schienen/Einbauten).
Der Preis bei IKEA wäre ohne Aufbau aktuell bei circa 6.000 Euro (circa 3.500 Euro Möbel), wobei wir hier einfach erstmal die Standard-Elektrogeräte geplant haben. Wir überlegen, ob wir diese ggf. je nach Preis auch separat kaufen.
Im Küchenstudio war der Listenpreis ohne die Hochschränke (dafür mit Vitrinenunterschränken an dieser Stelle) und GSP/Spüle vor den Fenstern bei über 16.000 Euro, der letzte Angebotspreis (ohne Handeln nach Abzug diverser seltsamer Rabatte) bei circa 8.000 Euro inklusive Geräte (alles Junker, nur GSP von Miele ).
Ergänzungen zum Grundriss:
1) Der Wasseranschluss liegt fast direkt an der Säule beim Fenster
2) Der Herdanschluss liegt im vorderen Drittel des Fliesenspiegels von der Tür aus gesehen (leider keine konkrete Lage bekannt)
3) Die Lage der Tür, des Heizkörpers sowie der Säulen ist korrekt im Alno-Planer eingetragen.
Jetzt ist es leider doch relativ viel Text geworden, deshalb anbei ein kurzes Fazit:
Wir suchen eine Küche mit einem sehr guten Preis-/Leistungsverhältnis. Wir sind bereit, für Sonderwünsche (z.B. Induktionsherd) Aufpreise zu bezahlen; für Dinge, die uns eigentlich egal sind, jedoch nicht.
Wir freuen uns auf eure Rückmeldungen.
Vielen lieben Dank und viele Grüße
Anna & Sebastian
Checkliste zur Küchenplanung
Personenkriterien und Ergonomie
Anzahl Personen im Haushalt: 2
Davon Kinder: keine
Körpergrößen aller Hauptbenutzer in cm (wegen Arbeitshöhe ): 172 und 163 cm; Kinder geplant
Welche Arbeitshöhe ist angedacht (in cm)?: noch nicht festgelegt; derzeit arbeiten wir auf 91cm, was ganz gut funktioniert
Gebäudekriterien
Art des Gebäudes: Bestandsbau > Umbauten ausgeschlossen, Miete
Brüstungshöhe des Fensters (in cm): 132
Fensterhöhe (in cm): circa 100 (haben wir aufgrund der Fensterhöhe nicht genau vermessen)
Raumhöhe in cm: 270
Heizung: Heizkörper wie im Grundriss
Sanitäranschlüsse: fix
Einbaugerätekriterien
Ausführung Kühlgerät: Integriert im Hochschrank (60cm)
Einbaukühlgerät Größe: 178cm
Ausführung Tiefkühl (TK)-Gerät: Im Kühlschrank ab 3 Schubladen unten
Dunstabzugshaube: Umluft
Hochgebauter Backofen : wenn möglich
Geplante Heißgeräte: Standmikrowelle, Backofen
Hochgebauter Geschirrspüler : nein
Art des Kochfeldes: Induktion
Kochfeldbreite (ca. in cm): 4 Herdplatten (ansonsten flexibel)
Sitzmöglichkeiten
Sitzmöglichkeit in der Küche / im Küchenbereich: Arbeitsplatte in Tischhöhe
Sitzmöglichkeit: Für wieviel Personen?: Für 2 Personen
Sitzmöglichkeit: Tisch - wenn gesonderter Tisch oder offene Küche: N. a.
Gewünschte oder vorhandene Tischgröße:
Wofür soll der Sitzplatz in der Küche genutzt werden und wie häufig: Für ein kurzes schnelles Frühstück oder als verlängerter Arbeitsort bei Besuch oder größeren Gerichten (z.B. zum Schnippeln von Gemüse); wir hatten uns hier Barhocker vorgestellt
Stauraumplanung
Was steht auf der Arbeitsplatte oder soll dort stehen?: Kaffeemaschine, Wasserkocher, Toaster, Brotbehälter
Welche weiteren Küchenmaschinen müssen in der Küche untergebracht werden: Handrührgerät
Was soll in der Küche außer den Standards untergebracht werden: ALLE Vorräte
Welchen Stauraum gibt es sonst noch: Geschirr/Gläserschrank im Wohn-/Esszimmer, Hauswirtschaftsraum, Keller
Kochgewohnheiten
Was/wie wird gekocht? (Alltagsküche, Menüs, Snacks usw): Klassische Alltagsküche für tägliche Gerichte (Hauptgericht mit Beilage)
Wie häufig wird gekocht: (fast) täglich 1x warm
Wird alleine gekocht? Oder auch gemeinsam? Mit und für Gäste?: Fast immer alleine
Spülen und Müll
Spülenform: 1 Becken mit Abtropffläche
Welche Mülltrennung soll in der Küche vorgehalten werden: Altpapier, Bio/Restmüll ungetrennt, Gelber Sack Müll, Restmüll
Sonstiges
Steht schon ein Küchenhersteller fest oder wird bevorzugt: Nein, wir sind flexibel
Steht schon ein Gerätehersteller fest oder wird bevorzugt: Nein, nach Möglichkeit auch hier bestes Preis-/Leistungsverhältnis gewünscht
Küchenstil: Klassisch
Was stört an der bisherigen Küche und was soll die neue Küche unbedingt können? Warum?: Mehr Arbeitsfläche als die alte in der jetzigen Mietwohnung bieten, da diese bisher zum Kochen nur bedingt ausgereicht hat.
Preisvorstellung (Budget): Wir haben hier mangels Vorstellung was was kostet kein konkretes Budget, idealerweise so günstig wie möglich. Nach den ersten Recherchen sehen wir uns bei ungefähr 5.000 Euro, jedoch realistischerweise erstmal nicht über 10.000 Euro
Angehängte Dateien
Anhänge
-
Alno Küchengrundriss.PNG118,5 KB · Aufrufe: 269 -
Alno Küchenplaner Blick auf Fenster.PNG798,9 KB · Aufrufe: 275 -
Alno Küchenplaner Blick auf Tür.PNG626,5 KB · Aufrufe: 284 -
Küche Entwurf 1.KPL3,6 KB · Aufrufe: 138
-
Küche Entwurf 1.POS8,5 KB · Aufrufe: 132
-
Grundriss Wohnung.jpg184,9 KB · Aufrufe: 274 -
Küche.jpg59,4 KB · Aufrufe: 267
