Max123
Mitglied
- Beiträge
- 13
Hallo liebe Küchenplaner,
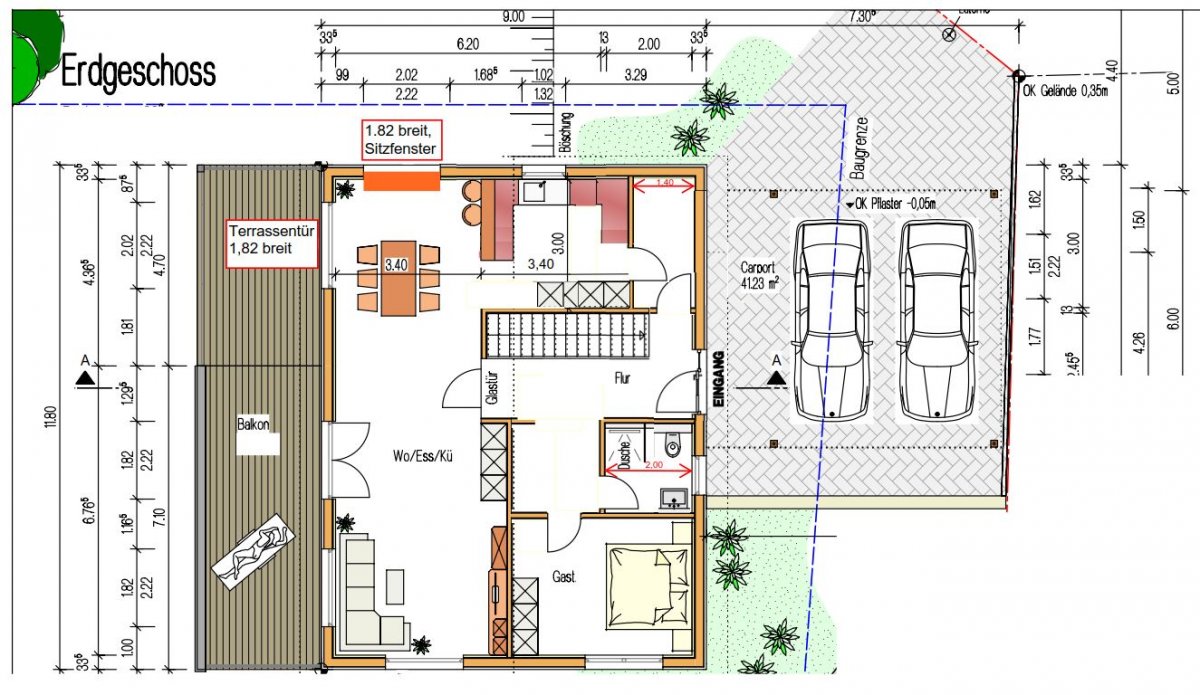
wir planen für unseren Neubau gerade unsere Küche. Aktuell können die Innenwände und Fenster/Türen noch komplett geändert werden.
Demnächst muss die Entscheidung über die Fenster gefallen werden. Beim Küchenfenster wissen wir gerade nicht, wie wir es gestalten sollen. Wir hoffen, dass wir hier dafür Hilfe bzw. Vorschläge bekommen.
Als Kühlschrank planen wir einen stand-alone Külschrank mit 2,02m Höhe. Auch hier sind wir uns noch nicht sicher, wo wir ihn platzieren.
Wir haben daher zwei Planungsversionen mit dem Alno -Planer erstellt.
Version 1:
- langes, schmales Fenster über Arbeitsfläche
- Kühlschrank am Küchenblock
Version 2:
- "normal" breites Fenster bei der Spüle
- Kühlschrank neben den Hochschränken
Welche Version macht aus eurer Sicht mehr Sinn?
Auch wenn einige den Apotherschrank für nicht so sinnvoll erachten, möchte meine Frau unbedingt einen. Des weiteren möchte sie in der Ecke zum Kochfeld einen Le Mans -Schrank. Diese zwei Schränke sind also schon mal fix.
Die Tür zum Abstellraum konnte ich im Alnoplan leider nicht um 180° drehen. Aktuell ist geplant, dass sie zum Abstellraum aufgeht.
Der Abstellraum ist leider ziemlich klein geraten, dass war der Kompromiss, um der Küche mehr Platz zu geben. Eine bessere Lösung dazu habe ich nicht.
Checkliste zur Küchenplanung
Anzahl Personen im Haushalt: 2
Davon Kinder?: 2
Art des Gebäudes?: Neu-/Umbau, Planänderungen möglich
Körpergrössen aller Hauptbenutzer (wegen Arbeitshöhe ) in cm: 168 und 178
Brüstungshöhe des Fensters (in cm): Höhe Arbeitsfläche
Fensterhöhe (in cm): bis max 2,22 Raumhöhe möglich
Raumhöhe in cm: 2,45
Heizung: Fussbodenheizung
Sanitäranschlüsse: vollkommen variabel
Ausführung Kühlgerät: Stand-Alone bis 60 cm Breite
Kühlgerät Größe: bis 178 cm Höhe
Ausführung Tiefkühl (TK)-Gerät: Im Kühlschrank ab 3 Schubladen unten
Dunstabzugshaube: Umluft
Backofen etc. hochgebaut?: Ja
Hochgebauter Geschirrspüler ?: Nein
Kochfeldart: Induktion
Kochfeldbreite ca. (in cm)?: 80
Spülenform: 1,5 Becken mit Abtropffläche
Geplante Heißgeräte: Dampfbackofen (DGC) ohne Wasseranschluß
Küchenstil: Klassisch
Sitzmöglichkeit in der Küche / im Küchenbereich: Keine
Sitzmöglichkeit: Für wieviel Personen?: für 6 Personen
Sitzmöglichkeit: Tisch - wenn gesonderter Tisch oder offene Küche: Wird nach Bedarf neu gekauft
Gewünschte o. vorhandene Tischgröße:
Wofür soll der Sitzplatz in der Küche genutzt werden? Wie häufig?: Sitzplätze nur im Essbereich
Welche Arbeitshöhe ist angedacht (in cm)?: 92
Was steht auf der Arbeitsplatte oder soll dort stehen?: Kaffeevollautomat, Wasserkocher, Messerblock, Toaster, Obstschale
Welche weiteren Küchenmaschinen müssen in der Küche untergebracht werden?: Handrührgerät, Pürierstab
Was soll in der Küche außer den Standards untergebracht werden?: Geschirr komplett (nichts in Ess-/Wohnzimmer)
Welchen Stauraum gibt es sonst noch?: Speisekammer, Keller
Was/wie wird gekocht? (Alltagsküche, Menüs, Snacks usw): klassisches Mittagessen / Abendessen
Wie häufig wird gekocht?: (fast) täglich 1x warm
Wird alleine gekocht? Oder auch gemeinsam? Mit und für Gäste?: zu zweit oder mit Gästen
Was stört an der bisherigen Küche und was soll die neue Küche unbedingt können? Warum?: Unsere aktuelle Küche ist sehr klein, bietet aber trotzdem viel Stauraum, sie hat aber wenig Arbeitsfläche...
Wir würden daher in der neuen Küche genügend Arbeitsfläche haben.
Welche Mülltrennung soll in der Küche vorgehalten werden?: Biomüll, Restmüll
Steht schon ein Küchenhersteller fest oder wird bevorzugt?: Nolte
Steht schon ein Gerätehersteller fest oder wird bevorzugt?: Neff für Backofen und Kochfeld, der Rest von Siemens
Preisvorstellung (Budget): bis 15.000,-
wir planen für unseren Neubau gerade unsere Küche. Aktuell können die Innenwände und Fenster/Türen noch komplett geändert werden.
Demnächst muss die Entscheidung über die Fenster gefallen werden. Beim Küchenfenster wissen wir gerade nicht, wie wir es gestalten sollen. Wir hoffen, dass wir hier dafür Hilfe bzw. Vorschläge bekommen.
Als Kühlschrank planen wir einen stand-alone Külschrank mit 2,02m Höhe. Auch hier sind wir uns noch nicht sicher, wo wir ihn platzieren.
Wir haben daher zwei Planungsversionen mit dem Alno -Planer erstellt.
Version 1:
- langes, schmales Fenster über Arbeitsfläche
- Kühlschrank am Küchenblock
Version 2:
- "normal" breites Fenster bei der Spüle
- Kühlschrank neben den Hochschränken
Welche Version macht aus eurer Sicht mehr Sinn?
Auch wenn einige den Apotherschrank für nicht so sinnvoll erachten, möchte meine Frau unbedingt einen. Des weiteren möchte sie in der Ecke zum Kochfeld einen Le Mans -Schrank. Diese zwei Schränke sind also schon mal fix.
Die Tür zum Abstellraum konnte ich im Alnoplan leider nicht um 180° drehen. Aktuell ist geplant, dass sie zum Abstellraum aufgeht.
Der Abstellraum ist leider ziemlich klein geraten, dass war der Kompromiss, um der Küche mehr Platz zu geben. Eine bessere Lösung dazu habe ich nicht.
Checkliste zur Küchenplanung
Anzahl Personen im Haushalt: 2
Davon Kinder?: 2
Art des Gebäudes?: Neu-/Umbau, Planänderungen möglich
Körpergrössen aller Hauptbenutzer (wegen Arbeitshöhe ) in cm: 168 und 178
Brüstungshöhe des Fensters (in cm): Höhe Arbeitsfläche
Fensterhöhe (in cm): bis max 2,22 Raumhöhe möglich
Raumhöhe in cm: 2,45
Heizung: Fussbodenheizung
Sanitäranschlüsse: vollkommen variabel
Ausführung Kühlgerät: Stand-Alone bis 60 cm Breite
Kühlgerät Größe: bis 178 cm Höhe
Ausführung Tiefkühl (TK)-Gerät: Im Kühlschrank ab 3 Schubladen unten
Dunstabzugshaube: Umluft
Backofen etc. hochgebaut?: Ja
Hochgebauter Geschirrspüler ?: Nein
Kochfeldart: Induktion
Kochfeldbreite ca. (in cm)?: 80
Spülenform: 1,5 Becken mit Abtropffläche
Geplante Heißgeräte: Dampfbackofen (DGC) ohne Wasseranschluß
Küchenstil: Klassisch
Sitzmöglichkeit in der Küche / im Küchenbereich: Keine
Sitzmöglichkeit: Für wieviel Personen?: für 6 Personen
Sitzmöglichkeit: Tisch - wenn gesonderter Tisch oder offene Küche: Wird nach Bedarf neu gekauft
Gewünschte o. vorhandene Tischgröße:
Wofür soll der Sitzplatz in der Küche genutzt werden? Wie häufig?: Sitzplätze nur im Essbereich
Welche Arbeitshöhe ist angedacht (in cm)?: 92
Was steht auf der Arbeitsplatte oder soll dort stehen?: Kaffeevollautomat, Wasserkocher, Messerblock, Toaster, Obstschale
Welche weiteren Küchenmaschinen müssen in der Küche untergebracht werden?: Handrührgerät, Pürierstab
Was soll in der Küche außer den Standards untergebracht werden?: Geschirr komplett (nichts in Ess-/Wohnzimmer)
Welchen Stauraum gibt es sonst noch?: Speisekammer, Keller
Was/wie wird gekocht? (Alltagsküche, Menüs, Snacks usw): klassisches Mittagessen / Abendessen
Wie häufig wird gekocht?: (fast) täglich 1x warm
Wird alleine gekocht? Oder auch gemeinsam? Mit und für Gäste?: zu zweit oder mit Gästen
Was stört an der bisherigen Küche und was soll die neue Küche unbedingt können? Warum?: Unsere aktuelle Küche ist sehr klein, bietet aber trotzdem viel Stauraum, sie hat aber wenig Arbeitsfläche...
Wir würden daher in der neuen Küche genügend Arbeitsfläche haben.
Welche Mülltrennung soll in der Küche vorgehalten werden?: Biomüll, Restmüll
Steht schon ein Küchenhersteller fest oder wird bevorzugt?: Nolte
Steht schon ein Gerätehersteller fest oder wird bevorzugt?: Neff für Backofen und Kochfeld, der Rest von Siemens
Preisvorstellung (Budget): bis 15.000,-
Anhänge
-
Grundriss_EG.jpg172,7 KB · Aufrufe: 312 -
Version2_Grundriss.jpg92,3 KB · Aufrufe: 301 -
Version2_1.jpg92,1 KB · Aufrufe: 321 -
Version2_2.jpg89,9 KB · Aufrufe: 283 -
Version1_1.jpg90,9 KB · Aufrufe: 274 -
Version1_2.jpg66,9 KB · Aufrufe: 281 -
PLAN2.KPL3,6 KB · Aufrufe: 161
-
PLAN1.KPL3,6 KB · Aufrufe: 163
