guhl089
Mitglied
- Beiträge
- 6
Hallo zusammen,
für den Erstbezug eines Mietshauses müssen wir eine Küche beschaffen. Also wir sind die Mieter
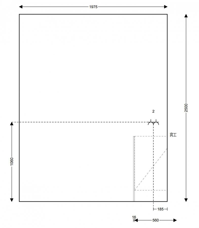
So schaut das Erdgeschoss als ganzes aus:
Ich hab zwar einen Grundriss einer Planung, der ist aber von der anderen DHH, also spiegelverkehrt.
Darum hab ich hier einen per Hand erstellten, seiten-richtigen Plan:
Hinweis: Es ist sowohl links als auch rechts ein Herdanschluss vorhanden.
Die spiegelverkehrten Pläne sind ebenfalls angehangen (Grundriss1 bis Grundriss5).
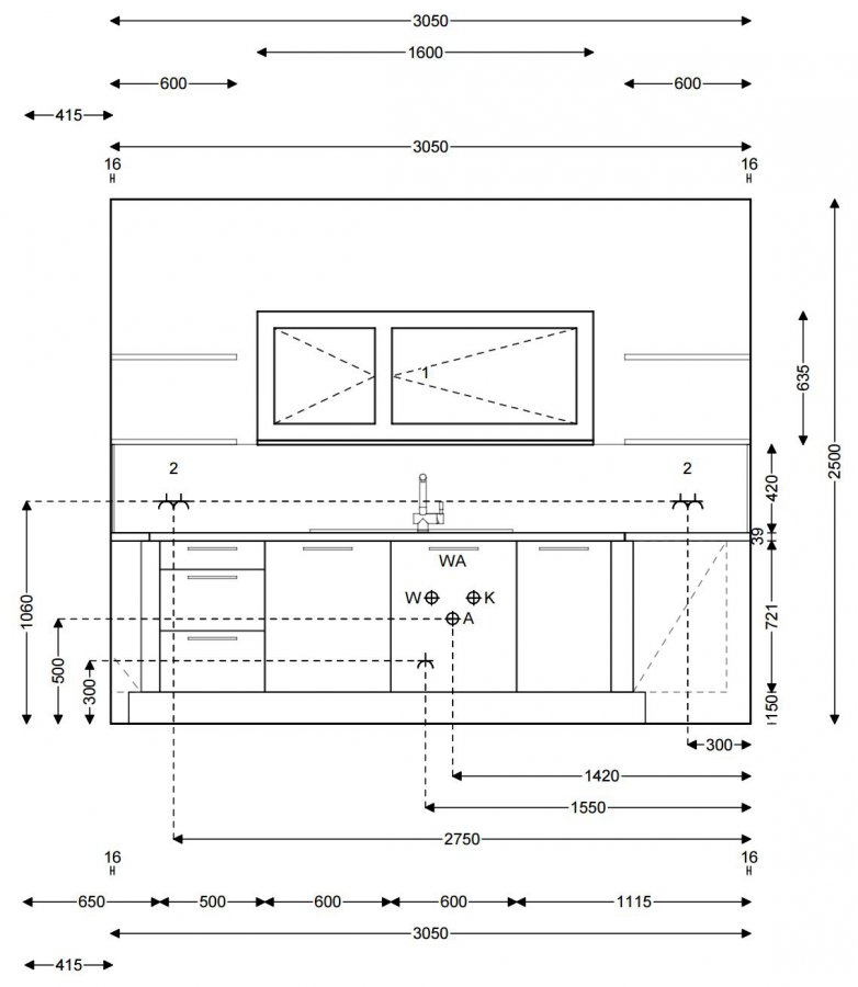
Dazu habe ich noch einen Planungsentwurf für unsere Küche (als Link, sonst reichen die 10 Bilder hier nicht
)
https://goo.gl/photos/NGKzq6oE6NzdXotv5
Und hier noch Fotos vom Rohbau:
https://goo.gl/photos/3efHsPCS2ieFtXBG7
Was meint ihr zu der Planung?
vg
Andreas
Checkliste zur Küchenplanung
Anzahl Personen im Haushalt: 4
Davon Kinder?: 2
Art des Gebäudes?: Neu-/Umbau, Planänderungen nicht möglich
Körpergrössen aller Hauptbenutzer (wegen Arbeitshöhe ) in cm: 182 und 186cm
Brüstungshöhe des Fensters (in cm):
Fensterhöhe (in cm):
Raumhöhe in cm:
Heizung: Fussbodenheizung
Sanitäranschlüsse: fix
Ausführung Kühlgerät: Integriert im Hochschrank (60cm)
Kühlgerät Größe: bis 178 cm Höhe
Ausführung Tiefkühl (TK)-Gerät: Nicht erforderlich bzw. steht woanders
Dunstabzugshaube: Umluft
Backofen etc. hochgebaut?: Ja
Hochgebauter Geschirrspüler ?: Nein
Kochfeldart: Induktion
Kochfeldbreite ca. (in cm)?: 80
Spülenform: 1 Becken mit Abtropffläche
Geplante Heißgeräte: Einbaumikrowelle, Backofen
Küchenstil: Modern
Sitzmöglichkeit in der Küche / im Küchenbereich: Überstehende Arbeitsplatte
Sitzmöglichkeit: Für wieviel Personen?: für 3 Personen
Sitzmöglichkeit: Tisch - wenn gesonderter Tisch oder offene Küche: Keiner
Gewünschte o. vorhandene Tischgröße:
Wofür soll der Sitzplatz in der Küche genutzt werden? Wie häufig?: gemeinsames Kochen / Backen mit den Kindern, kurze Brotzeit
Welche Arbeitshöhe ist angedacht (in cm)?: ca. 93cm
Was steht auf der Arbeitsplatte oder soll dort stehen?: Kaffeemaschine, Wasserkocher, Küchenmaschine, Toaster, Brotbehälter, Obstschale
Welche weiteren Küchenmaschinen müssen in der Küche untergebracht werden?:
Was soll in der Küche außer den Standards untergebracht werden?: Staubsauger/Wischer etc.
Welchen Stauraum gibt es sonst noch?: Geschirr/Gläserschrank im Wohn-/Esszimmer, Keller
Was/wie wird gekocht? (Alltagsküche, Menüs, Snacks usw): Alltagsküche, abends gern Brotzeit, Kindertauglich.
Wie häufig wird gekocht?: Sonstiges (evtl. im Beitragstext benennen)
Wird alleine gekocht? Oder auch gemeinsam? Mit und für Gäste?: Meist alleine
Was stört an der bisherigen Küche und was soll die neue Küche unbedingt können? Warum?:
Welche Mülltrennung soll in der Küche vorgehalten werden?: Altglas, Biomüll, Gelber Sack Müll, Restmüll
Steht schon ein Küchenhersteller fest oder wird bevorzugt?:
Steht schon ein Gerätehersteller fest oder wird bevorzugt?:
Preisvorstellung (Budget): bis 15.000,-
für den Erstbezug eines Mietshauses müssen wir eine Küche beschaffen. Also wir sind die Mieter
So schaut das Erdgeschoss als ganzes aus:
Ich hab zwar einen Grundriss einer Planung, der ist aber von der anderen DHH, also spiegelverkehrt.
Darum hab ich hier einen per Hand erstellten, seiten-richtigen Plan:
Hinweis: Es ist sowohl links als auch rechts ein Herdanschluss vorhanden.
Die spiegelverkehrten Pläne sind ebenfalls angehangen (Grundriss1 bis Grundriss5).
Dazu habe ich noch einen Planungsentwurf für unsere Küche (als Link, sonst reichen die 10 Bilder hier nicht
https://goo.gl/photos/NGKzq6oE6NzdXotv5
Und hier noch Fotos vom Rohbau:
https://goo.gl/photos/3efHsPCS2ieFtXBG7
Was meint ihr zu der Planung?
vg
Andreas
Checkliste zur Küchenplanung
Anzahl Personen im Haushalt: 4
Davon Kinder?: 2
Art des Gebäudes?: Neu-/Umbau, Planänderungen nicht möglich
Körpergrössen aller Hauptbenutzer (wegen Arbeitshöhe ) in cm: 182 und 186cm
Brüstungshöhe des Fensters (in cm):
Fensterhöhe (in cm):
Raumhöhe in cm:
Heizung: Fussbodenheizung
Sanitäranschlüsse: fix
Ausführung Kühlgerät: Integriert im Hochschrank (60cm)
Kühlgerät Größe: bis 178 cm Höhe
Ausführung Tiefkühl (TK)-Gerät: Nicht erforderlich bzw. steht woanders
Dunstabzugshaube: Umluft
Backofen etc. hochgebaut?: Ja
Hochgebauter Geschirrspüler ?: Nein
Kochfeldart: Induktion
Kochfeldbreite ca. (in cm)?: 80
Spülenform: 1 Becken mit Abtropffläche
Geplante Heißgeräte: Einbaumikrowelle, Backofen
Küchenstil: Modern
Sitzmöglichkeit in der Küche / im Küchenbereich: Überstehende Arbeitsplatte
Sitzmöglichkeit: Für wieviel Personen?: für 3 Personen
Sitzmöglichkeit: Tisch - wenn gesonderter Tisch oder offene Küche: Keiner
Gewünschte o. vorhandene Tischgröße:
Wofür soll der Sitzplatz in der Küche genutzt werden? Wie häufig?: gemeinsames Kochen / Backen mit den Kindern, kurze Brotzeit
Welche Arbeitshöhe ist angedacht (in cm)?: ca. 93cm
Was steht auf der Arbeitsplatte oder soll dort stehen?: Kaffeemaschine, Wasserkocher, Küchenmaschine, Toaster, Brotbehälter, Obstschale
Welche weiteren Küchenmaschinen müssen in der Küche untergebracht werden?:
Was soll in der Küche außer den Standards untergebracht werden?: Staubsauger/Wischer etc.
Welchen Stauraum gibt es sonst noch?: Geschirr/Gläserschrank im Wohn-/Esszimmer, Keller
Was/wie wird gekocht? (Alltagsküche, Menüs, Snacks usw): Alltagsküche, abends gern Brotzeit, Kindertauglich.
Wie häufig wird gekocht?: Sonstiges (evtl. im Beitragstext benennen)
Wird alleine gekocht? Oder auch gemeinsam? Mit und für Gäste?: Meist alleine
Was stört an der bisherigen Küche und was soll die neue Küche unbedingt können? Warum?:
Welche Mülltrennung soll in der Küche vorgehalten werden?: Altglas, Biomüll, Gelber Sack Müll, Restmüll
Steht schon ein Küchenhersteller fest oder wird bevorzugt?:
Steht schon ein Gerätehersteller fest oder wird bevorzugt?:
Preisvorstellung (Budget): bis 15.000,-
Anhänge

