Kleine Küche neue Planung

AW: Kleine Küche neue Planung

Hallo,

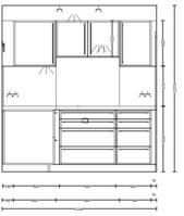
wir haben nun noch einmal geändert, wir nehmen jetzt 52 cm Oberschränke. So das die Nische ca. 70 cm. hoch ist, oder wäre das dann wieder zu hoch?

gruss
 
AW: Kleine Küche neue Planung

Hmmm ...
117647d1374776405-kleine-kueche-neue-planung-herd.jpg



52 cm ... wenn man identisch hoch hängt, wäre die Nische dann 74 cm.

Was mir gerade auffällt, der 80er oder 90er Hängeschrank links, sollte so sein, dass beide Türen den Griff rechts haben. So kommst du da nicht gut ran.

Welche Haube wird es denn?

Wäre nicht
- ca. 12 bis 15 cm Blende
- 60er Hängeschrank in 78 oder 65 cm Höhe
- 90er Hängeschrank in 52 cm Höhe für DAH
- 45er Hängeschrank in 78 oder 65 cm Höhe
- Blende

sinnvoller?
 
AW: Kleine Küche neue Planung

Guten Abend,

wir haben die Planung wie vorgeschlagen noch einmal angepasst.

Ich glaube nun ist es praktischer.

Vielen lieben Dank für eure Unterstützung, :rose:wir werden morgen das ganze dann so in Auftrag geben.

Gruß
 

Anhänge

  • Herd.JPG
    Herd.JPG
    29,2 KB · Aufrufe: 97

Ähnliche Beiträge

Neff Hausgeräte Ballerina Küchen Blum Bewegungstechnologie Weibel - Intelligente Küchenlüftung

Neff Spezial

Blum Zonenplaner

Weibel Abluft-Tuning

Weibel Abluft-Tuning
Zurück
Oben