karomiz
Mitglied
- Beiträge
- 4
Hallo Kuechen-Forum-Gemeinde,
wir stehen kurz vor der Einreichung unseres Eingabeplans und bekommen gerade den ein oder anderen Zweifel...
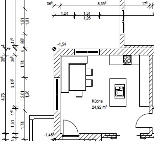
Eigentlich (dachten wir zumindest) haben wir alles recht großzügig geplant - zumindest auf dem Papier lesen sich 25m² Küche (inklusive Frühstücksbereich) und 32,9 m² Wohn-/Esszimmer nicht so schlecht. Beim 'Möblieren' kommt uns nun aber beides recht knapp vor - vielleicht ist der Schnitt der Zimmer nicht ideal?!?
Wie schon erwähnt, haben wir bisher nur den Plan, dementsprechend lässt sich über alles noch reden (Fenster, Türen, etc; nur die Aussenwände und den Eingangsbereich würden wir dann doch gerne fix lassen
). Vorgestellt hatten wir uns (nicht wie im Plan) eine U-förmige Küche.
In unserem neuen Haus hatten wir schon eine U-förmige Küche (ca. 2,5m - 4m - 3m), wobei die 3m frei im Raum standen, von vorn und von hinten Stauraum boten und das Kochfeld sowie eine Theke darauf waren (Zur Verdeutlichung habe ich ein Foto angehängt). Den Inhalt dieser Küche hätten wir natürlich gerne auch wieder in unserer neuen untergebracht.
Neben der Küche hatten wir angedacht einen kleinen Essplatz fürs Frühstück, bzw. irgendwann mal für Hausaufgaben oder ähnliches einzurichten. Zur Zeit sind wir zu viert mit zwei kleinen Kindern (1 Monat und 2,5 Jahre) - ein drittes Kind haben wir noch nicht ausgeschlossen (mit jeder schlaflosen Nacht wird's unwahrscheinlicher...).
Für's Abendessen mit der ganzen Family und für Feiern sollte dann der Essbereich im Wohn-/Esszimmer herhalten.
Meint Ihr wir kriegen Küche und Essplatz sinnvoll in der derzeitigen Planung unter? Denkt Ihr das Wohn-/Esszimmer ist zu klein/unglücklich geschnitten? Wenn ja, hättet Ihr vielleicht Vorschläge es besser zu machen?
Vielleicht kann der Essplatz auch komplett in die Küche verlegt werden (bei gleichzeitigem Wegfall des Frühstücksplatze dann natürlich)?
Vielen Dank schonmal für die Hilfe,
karomiz
Checkliste zur Küchenplanung von karomiz
Anzahl Personen im Haushalt : 4
Davon Kinder? : 2
Körpergrössen aller Hauptbenutzer (wegen Arbeitshöhe ) in cm : 170
Art des Gebäudes? : Neu-/Umbau, Planänderungen möglich
Brüstungshöhe des Fensters (in cm) : Anpassbar
Fensterhöhe (in cm) : 126
Raumhöhe in cm: : 248
Heizung : Fussbodenheizung
Sanitäranschlüsse : vollkommen variabel
Ausführung Kühlgerät? : Side by Side
Kühlgerät Größe : noch unbekannt
Ausführung Tiefkühl (TK)-Gerät : Nicht erforderlich bzw. steht woanders
Dunstabzugshaube? : Abluft
Hochgebauter Backofen ? : Ja
Hochgebauter Geschirrspüler ? : wenn möglich
Kochfeldart? : Induktion
Kochfeldbreite ca. (in cm)? : 80
Spülenform: : 1 Becken mit Abtropffläche
Weitere geplante Heißgeräte : Standmikrowelle
Küchenstil? : modern
Sitzmöglichkeit in der Küche / im Küchenbereich als : Gesonderter Tisch
Sitzmöglichkeit: Für wieviel Personen? : für 4 Personen
Sitzmöglichkeit: Tisch - wenn gesonderter Tisch oder offene Küche : Wird nach Bedarf neu gekauft
Gewünschte o. vorhandene Tischgröße : 120x80
Wofür soll der Sitzplatz in der Küche genutzt werden? Wie häufig? : Frühstück, Hausaufgaben u.ä.
Welche Arbeitshöhe ist angedacht (in cm)? : 105
Was steht auf der Arbeitsplatte oder soll dort stehen? : Kaffeemaschine, Wasserkocher, Messerblock, Allesschneider, Toaster, Brotbehälter
Welche weiteren Küchenmaschinen müssen in der Küche untergebracht werden? : Küchenmaschine, Handrührgerät, Mixer, Pürierstab, Eierkocher, Sonstiges (evtl. im Beitragstext benennen)
Was soll in der Küche außer den Standards untergebracht werden? : Sonstiges (evtl. im Beitragstext benennen)
Welchen Stauraum gibt es sonst noch? : Geschirr/Gläserschrank im Wohn-/Esszimmer, Speisekammer, Keller
Was/wie wird gekocht? (Alltagsküche, Menüs, Snacks usw) : Alltagsküche, gerne auch mal für Feiern mit mehreren Gästen
Wie häufig wird gekocht? : (fast) täglich 1x warm
Wird alleine gekocht? Oder auch gemeinsam? Mit und für Gäste? : Gekocht wird meist alleine - Gäste, bzw. Familie ist aber gerne mit dabei
Was stört an der bisherigen Küche und was soll die neue Küche unbedingt können? Warum? : Die Küche sollte ausreichend Arbeitsfläche haben, möglichst auch in der Nähe des Kochfelds.
Preisvorstellung (Budget) : bis 15.000,-
wir stehen kurz vor der Einreichung unseres Eingabeplans und bekommen gerade den ein oder anderen Zweifel...
Eigentlich (dachten wir zumindest) haben wir alles recht großzügig geplant - zumindest auf dem Papier lesen sich 25m² Küche (inklusive Frühstücksbereich) und 32,9 m² Wohn-/Esszimmer nicht so schlecht. Beim 'Möblieren' kommt uns nun aber beides recht knapp vor - vielleicht ist der Schnitt der Zimmer nicht ideal?!?
Wie schon erwähnt, haben wir bisher nur den Plan, dementsprechend lässt sich über alles noch reden (Fenster, Türen, etc; nur die Aussenwände und den Eingangsbereich würden wir dann doch gerne fix lassen
In unserem neuen Haus hatten wir schon eine U-förmige Küche (ca. 2,5m - 4m - 3m), wobei die 3m frei im Raum standen, von vorn und von hinten Stauraum boten und das Kochfeld sowie eine Theke darauf waren (Zur Verdeutlichung habe ich ein Foto angehängt). Den Inhalt dieser Küche hätten wir natürlich gerne auch wieder in unserer neuen untergebracht.
Neben der Küche hatten wir angedacht einen kleinen Essplatz fürs Frühstück, bzw. irgendwann mal für Hausaufgaben oder ähnliches einzurichten. Zur Zeit sind wir zu viert mit zwei kleinen Kindern (1 Monat und 2,5 Jahre) - ein drittes Kind haben wir noch nicht ausgeschlossen (mit jeder schlaflosen Nacht wird's unwahrscheinlicher...).
Für's Abendessen mit der ganzen Family und für Feiern sollte dann der Essbereich im Wohn-/Esszimmer herhalten.
Meint Ihr wir kriegen Küche und Essplatz sinnvoll in der derzeitigen Planung unter? Denkt Ihr das Wohn-/Esszimmer ist zu klein/unglücklich geschnitten? Wenn ja, hättet Ihr vielleicht Vorschläge es besser zu machen?
Vielleicht kann der Essplatz auch komplett in die Küche verlegt werden (bei gleichzeitigem Wegfall des Frühstücksplatze dann natürlich)?
Vielen Dank schonmal für die Hilfe,
karomiz
Checkliste zur Küchenplanung von karomiz
Anzahl Personen im Haushalt : 4
Davon Kinder? : 2
Körpergrössen aller Hauptbenutzer (wegen Arbeitshöhe ) in cm : 170
Art des Gebäudes? : Neu-/Umbau, Planänderungen möglich
Brüstungshöhe des Fensters (in cm) : Anpassbar
Fensterhöhe (in cm) : 126
Raumhöhe in cm: : 248
Heizung : Fussbodenheizung
Sanitäranschlüsse : vollkommen variabel
Ausführung Kühlgerät? : Side by Side
Kühlgerät Größe : noch unbekannt
Ausführung Tiefkühl (TK)-Gerät : Nicht erforderlich bzw. steht woanders
Dunstabzugshaube? : Abluft
Hochgebauter Backofen ? : Ja
Hochgebauter Geschirrspüler ? : wenn möglich
Kochfeldart? : Induktion
Kochfeldbreite ca. (in cm)? : 80
Spülenform: : 1 Becken mit Abtropffläche
Weitere geplante Heißgeräte : Standmikrowelle
Küchenstil? : modern
Sitzmöglichkeit in der Küche / im Küchenbereich als : Gesonderter Tisch
Sitzmöglichkeit: Für wieviel Personen? : für 4 Personen
Sitzmöglichkeit: Tisch - wenn gesonderter Tisch oder offene Küche : Wird nach Bedarf neu gekauft
Gewünschte o. vorhandene Tischgröße : 120x80
Wofür soll der Sitzplatz in der Küche genutzt werden? Wie häufig? : Frühstück, Hausaufgaben u.ä.
Welche Arbeitshöhe ist angedacht (in cm)? : 105
Was steht auf der Arbeitsplatte oder soll dort stehen? : Kaffeemaschine, Wasserkocher, Messerblock, Allesschneider, Toaster, Brotbehälter
Welche weiteren Küchenmaschinen müssen in der Küche untergebracht werden? : Küchenmaschine, Handrührgerät, Mixer, Pürierstab, Eierkocher, Sonstiges (evtl. im Beitragstext benennen)
Was soll in der Küche außer den Standards untergebracht werden? : Sonstiges (evtl. im Beitragstext benennen)
Welchen Stauraum gibt es sonst noch? : Geschirr/Gläserschrank im Wohn-/Esszimmer, Speisekammer, Keller
Was/wie wird gekocht? (Alltagsküche, Menüs, Snacks usw) : Alltagsküche, gerne auch mal für Feiern mit mehreren Gästen
Wie häufig wird gekocht? : (fast) täglich 1x warm
Wird alleine gekocht? Oder auch gemeinsam? Mit und für Gäste? : Gekocht wird meist alleine - Gäste, bzw. Familie ist aber gerne mit dabei
Was stört an der bisherigen Küche und was soll die neue Küche unbedingt können? Warum? : Die Küche sollte ausreichend Arbeitsfläche haben, möglichst auch in der Nähe des Kochfelds.
Preisvorstellung (Budget) : bis 15.000,-
Anhänge
















