Unbeendet Herausforderung Küchenplanung

Myrmecophaga

Mitglied
Beiträge
48
Hallo Küchenforum,

bei verschiedenen Internet-Suchen bei Fragen zur Küchenplanung bin ich immer wieder auf die Seiten des Küchenforums gestoßen - echt toll, hier wird einem geholfen. Nachdem ich mich jetzt 2 Tage mit dem Alno -Küchenplaner vertraut gemacht habe, wage ich es mal meine Planungsideen hier zur Diskussion zu stellen und freue mich über zahlreiche Alternativ- und Verbesserungsvorschläge. :dance:

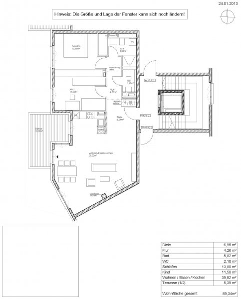
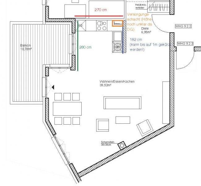
Grundsätzlich soll es eine moderne, weiß-matte Küche mit Metall- und Milchglaselementen werden - im Prinzip optisch wie in meinen Planungsvorschlägen. Es ist eine offene Küche, Pläne habe ich beigefügt. Etwas unklar ist noch der Einfluss des Versorgungsschachts im rechten hinteren Eck der Küche - da es sich um die DG-Wohnung handelt könnte ich mir vorstellen, dass er auch unter der Höhe der Arbeitssfläche enden könnte. Jetzt will ich aber nicht durch lange Einführungstexte langweilen und präsentiere mal meine drei Planungsvorschläge ;-):

Zunächst mal die Grundrisse der Wohnung bzw. des Küchenbereichs zur Orientierung

Hier ein Planungsvorschlag von mir (PLAN 1):

Plan1 links.jpgPlan1 front.jpgPlan1 rechts.jpg

Plan 1.jpg

Zweiter Planungsvorschlag (PLAN 2) folg in gesondertem Thread, da die Anlagenzahl begrenzt ist...

Freue mich auch Rückmeldung... Danke!!!













Checkliste zur Küchenplanung von Myrmecophaga

Anzahl Personen im Haushalt : 2
Davon Kinder? : keine
Körpergrössen aller Hauptbenutzer (wegen Arbeitshöhe ) in cm : 180
Art des Gebäudes? : Neu-/Umbau, Planänderungen möglich
Brüstungshöhe des Fensters (in cm) : 90
Fensterhöhe (in cm) :
Raumhöhe in cm: : 240 (glaube ich)
Heizung : Fussbodenheizung
Sanitäranschlüsse : vollkommen variabel
Ausführung Kühlgerät? : Integriert im Hochschrank (60cm)
Kühlgerät Größe : noch unbekannt
Ausführung Tiefkühl (TK)-Gerät : Im Kühlschrank als kleines Fach oben
Dunstabzugshaube? : Umluft
Hochgebauter Backofen ? : Ja
Hochgebauter Geschirrspüler ? : nein
Kochfeldart? : Ceran (herkömmlich)
Kochfeldbreite ca. (in cm)? : 60-90
Spülenform: : 1,5 Becken mit Abtropffläche
Weitere geplante Heißgeräte :
Küchenstil? : modern
Sitzmöglichkeit in der Küche / im Küchenbereich als : Überstehende Arbeitsplatte
Sitzmöglichkeit: Für wieviel Personen? : für 2 Personen
Sitzmöglichkeit: Tisch - wenn gesonderter Tisch oder offene Küche : Keine
Gewünschte o. vorhandene Tischgröße : extra Essbereich - Thekenlösung für Snacks
Wofür soll der Sitzplatz in der Küche genutzt werden? Wie häufig? : selten, Theke für Snacks
Welche Arbeitshöhe ist angedacht (in cm)? : muss noch ermittelt werden
Was steht auf der Arbeitsplatte oder soll dort stehen? : Wasserkocher, Messerblock
Welche weiteren Küchenmaschinen müssen in der Küche untergebracht werden? : Küchenmaschine, Toaster, Handrührgerät, Mixer, Pürierstab
Was soll in der Küche außer den Standards untergebracht werden? : ALLE Vorräte
Welchen Stauraum gibt es sonst noch? : Geschirr/Gläserschrank im Wohn-/Esszimmer, Keller
Was/wie wird gekocht? (Alltagsküche, Menüs, Snacks usw) : Alltagsküche, Snacks
Wie häufig wird gekocht? : ab und zu
Wird alleine gekocht? Oder auch gemeinsam? Mit und für Gäste? : häufig 1-2 Personen auch mit Gästen
Was stört an der bisherigen Küche und was soll die neue Küche unbedingt können? Warum? : die neue Küche war eine Modul- und keine Einbauküche. Die neue Küche sollte funktional, ergonomisch, modern, optisch ansprechend, preiswert, haltbar, stauraumreich, ... sein!
Steht schon ein Küchenhersteller fest oder wird bevorzugt? : nein
Steht schon ein Gerätehersteller fest oder wird bevorzugt? : Siemens , Bosch , Miele (sonst keine Erfahrungen)
Preisvorstellung (Budget) : bis 10.000,-
 

Anhänge

  • Wohnungsgrundriss final.jpg
    Wohnungsgrundriss final.jpg
    35,7 KB · Aufrufe: 307
  • Grundriss Wohnung mit Maßangaben.jpg
    Grundriss Wohnung mit Maßangaben.jpg
    57 KB · Aufrufe: 385
  • Plan 1.POS
    11,2 KB · Aufrufe: 279
  • Plan 1.KPL
    3,9 KB · Aufrufe: 274
  • Plan 2 links.jpg
    Plan 2 links.jpg
    40,9 KB · Aufrufe: 267
  • Plan 2 front.jpg
    Plan 2 front.jpg
    44,2 KB · Aufrufe: 292
Zuletzt bearbeitet:
AW: Herausforderung Küchenplanung

...so, wie angekündigt hier mein zweiter Planungsvorschlag (PLAN 2):
 

Anhänge

  • Plan 2 links.jpg
    Plan 2 links.jpg
    40,9 KB · Aufrufe: 269
  • Plan 2 front.jpg
    Plan 2 front.jpg
    44,2 KB · Aufrufe: 277
  • Plan 2 rechts.jpg
    Plan 2 rechts.jpg
    42,3 KB · Aufrufe: 268
  • Plan 2.jpg
    Plan 2.jpg
    34,3 KB · Aufrufe: 278
  • PLAN 2.KPL
    3,9 KB · Aufrufe: 261
  • PLAN 2.POS
    10,7 KB · Aufrufe: 274
AW: Herausforderung Küchenplanung

und mein letzter Vorschlag (PLAN 3):
 

Anhänge

  • Plan 3 front.jpg
    Plan 3 front.jpg
    42,5 KB · Aufrufe: 268
  • Plan 3 links.jpg
    Plan 3 links.jpg
    42,2 KB · Aufrufe: 268
  • Plan 3 rechts.jpg
    Plan 3 rechts.jpg
    42,3 KB · Aufrufe: 273
  • Plan 3.POS
    10,8 KB · Aufrufe: 260
  • Plan 3.KPL
    3,9 KB · Aufrufe: 255
  • Plan 3.jpg
    Plan 3.jpg
    34,9 KB · Aufrufe: 272
AW: Herausforderung Küchenplanung

Hallo und herzlich willkommen.

Version 3 finde ich nicht so gut, du hast wenig Platz am Kochfeld und die Inselhaube versperrt auch viel Sicht auf die übrige Küche.

Die Glasoberschränke sehen auch nur im leeren Zustand gut aus.
Wahrscheinlich werden dir die Mädels hier noch abschreckende Bilder
von vollgestellten Glasschränken zeigen.
 
AW: Herausforderung Küchenplanung

Hallo Hannalena,

danke für die Rückmeldung! Dann käme für Dich also auch Plan 1 nicht in Frage - hat ja auch die Inselhaube!?
Bin mir da auch noch sehr unsicher - optisch finde ich es sehr ansprechend, ein freier Blick in bzw. aus der Küche ist aber auch nicht zu verachten. Die Räumlichkeiten dürften auch großzügiger wirken...

Die "unruhige" Wirkung der Glasfronten habe ich auch gerade erst in einem anderen Beitrag gesehen. Aber das ist dann ja das geringste Problem - ich suche ja noch nach der groben Verteilung der Schränke bzw. Geräte...

Danke, fränkische Grüße, Nic :top:
 
AW: Herausforderung Küchenplanung

...so, noch mal ein Paar Varianten von mir - wie Ihr erkönnen könnt, nichts wirklich Neues!!! Bin wohl schon zu festgefahren und brauche kreativen Input ;-)

PLAN 4:

(Bild von rechts hats wohl nicht mehr in die dropbox geschafft! :rolleyes:)
 

Anhänge

  • Plan 4 front.jpg
    Plan 4 front.jpg
    38,9 KB · Aufrufe: 251
  • Plan 4.POS
    11,3 KB · Aufrufe: 258
  • Plan 4.KPL
    3,9 KB · Aufrufe: 281
  • Plan 4.jpg
    Plan 4.jpg
    29,4 KB · Aufrufe: 255
  • Plan 4 links.jpg
    Plan 4 links.jpg
    37,1 KB · Aufrufe: 251
AW: Herausforderung Küchenplanung

Hallo,
auf Grundlage deines Plan 2 habe ich mal ein bisschen geschubst:

Planrechts unten beginnend:
  • dünner Trockenbau oder Sichtseite für Hochschränke
  • Kühli
  • BO-Schrank
  • tote Ecke mit Rolloschrank
  • 60-er 1-1-2-2
  • 80-er 1-1-2-2 mit 80-er Herd (Herd auf der Insel ist viel zu eng und man spritzt rund rum alles voll)
  • tote Ecke
  • 80-er 1-1-2-2
  • 30-er 3-3 für Müll unter APL
  • 60-er Spüle (ich würde zwei Becken ohne Abtropfe nehmen)
  • 60 von der Wohnzimmerseite aus zu bedienen
  • GSP hat an dieser Stelle zwar den leichten Nachteil, dass sie die Spüle versperrt, aber man kommt an den 30-er Müll, so dass man gut die Reste abstreifen kann und die GSP steht nicht im Wege zwischen Herd und Spüle, das ganze muss aber auch von der WZ-Seite aus verkleidet werden!
  • Plattenüberstand 20 cm, die Stange auf dem Boden signalisiert den 90 cm Durchgang, viel weniger sollte es echt nicht sein
  • Hängeschränke mit integrierter DAH

myrme-1-1.jpg
myrme-1-3.jpg
myrme-1-2.jpg

Vorteil ggü. deiner Planung: genügend Arbeitsfläche zwischen Spüle und Herd (Hauptarbeitsplatz), zwei breite Auszügsschränke und der Durchgang ist auch breit genug, das ist in deinen Planungen zu eng.
 

Anhänge

  • myrme-1.KPL
    3,9 KB · Aufrufe: 258
  • myrme-1.POS
    11,2 KB · Aufrufe: 260
AW: Herausforderung Küchenplanung

PLAN 5:

Komisch im "Bearbeitungsmodus" sieht man die Bilder, dann erscheinen sie kurz und verschwinden beim erneuten Laden der Seite - mal sehen was passiert, wenn man hier diesen Text hinzu schreibt!?
 
AW: Herausforderung Küchenplanung

Hallo Angelika,

vielen Dank für Deine Planungen - auf den ersten Blick gefällt mir die Idee mit der Spüle links vom Fenster und dem Platz um das Kochfeld schon mal sehr gut :top:

Der schmale Durchgang war mir auch schon immer ein Dorn im Auge - bin gerade dabei noch ein paar Varianten hochzuladen - dann schaue ich mir mal die Dateien im Alno -Planer an...

Vielen, vielen Dank schon mal für Deine Mühen!!! :clap:

Beste Grüße, Nic
 
AW: Herausforderung Küchenplanung

...hmm, keine Ahnung warum in dem einen Beitrag die Bilder nicht angezeigt werden - mal ein neuer Versuch:

PLAN 5:
 

Anhänge

  • Plan 5 rechts.jpg
    Plan 5 rechts.jpg
    40 KB · Aufrufe: 255
  • Plan 5 links.jpg
    Plan 5 links.jpg
    37,4 KB · Aufrufe: 255
  • Plan 5 front.jpg
    Plan 5 front.jpg
    40,5 KB · Aufrufe: 251
  • Plan 5.jpg
    Plan 5.jpg
    29,5 KB · Aufrufe: 253
  • Plan 5.POS
    11,2 KB · Aufrufe: 259
  • Plan 5.KPL
    3,9 KB · Aufrufe: 249
AW: Herausforderung Küchenplanung

...und mein vorerst letzter Vorschlag - dann sammle ich erstmal weitere Ideen:

PLAN 6:
 
AW: Herausforderung Küchenplanung

...hab noch nicht ganz verstanden warum er die Bilder mal anzeigt und mal nicht!? Egal, dann halt nochmal:

PLAN 6:
 

Anhänge

  • Plan 6 rechts.jpg
    Plan 6 rechts.jpg
    40,4 KB · Aufrufe: 249
  • Plan 6 front.jpg
    Plan 6 front.jpg
    39,7 KB · Aufrufe: 272
  • Plan 6 links.jpg
    Plan 6 links.jpg
    38,1 KB · Aufrufe: 270
  • Plan 6.jpg
    Plan 6.jpg
    29,3 KB · Aufrufe: 256
  • Plan 6.KPL
    3,9 KB · Aufrufe: 245
  • Plan 6.POS
    11,2 KB · Aufrufe: 260
AW: Herausforderung Küchenplanung

...wo finde ich denn diese Eckblende für Unterschränke 65x65 zur Simulation von toten Ecken!? :-\
 
AW: Herausforderung Küchenplanung

Hi,

wie wäre sowas (sofern die Wand zumindest bei der einen Variante gekürzt werden kann), ja sorry ich liebe diese Varianten ;-).

LG
Muckelina
 

Anhänge

  • My02.JPG
    My02.JPG
    43,5 KB · Aufrufe: 285
  • My01.JPG
    My01.JPG
    51,9 KB · Aufrufe: 271
AW: Herausforderung Küchenplanung

Meinst Du das? mit F4 kannst Du es noch etwas anpassen ...
 

Anhänge

  • Ecke.JPG
    Ecke.JPG
    53,4 KB · Aufrufe: 276
AW: Herausforderung Küchenplanung

Hallo Muckelina,

erst mal Danke für Deinen Vorschlag. Das ist wirklich mal etwas vollig Innovatives!!! :2daumenhoch:
Ich habe allerdings noch ein paar Probleme mit dem Fachjargon - arbeite mich ja gerade erst in das Metier ein ;-)

Wenn ich Dich richtig verstehe würde dann diese Halbinsel von beiden Seiten her Schubladen bzw. Auszüge haben, oder? Aber das würde in der Variante 1 ja nicht funktionieren... und was sind eingekofferte Hochschränke!? :read:

Ach ja, genau das habe ich gesucht - danke!!!
 
AW: Herausforderung Küchenplanung

...so, hier die ersten von Euch inspirierten Küchenplanungen:

Plan 7 Edition Angelika:
 

Anhänge

  • Plan 7 Edition Angelika.POS
    11,3 KB · Aufrufe: 259
  • Plan 7 Edition Angelika.KPL
    3,9 KB · Aufrufe: 258
  • Plan 7 Edition Angelika.jpg
    Plan 7 Edition Angelika.jpg
    29,6 KB · Aufrufe: 250
  • Plan 7 Edition Angelika rechts.jpg
    Plan 7 Edition Angelika rechts.jpg
    41,2 KB · Aufrufe: 270
  • Plan 7 Edition Angelika front.jpg
    Plan 7 Edition Angelika front.jpg
    40,4 KB · Aufrufe: 255
  • Plan 7 Edition Angelika links.jpg
    Plan 7 Edition Angelika links.jpg
    37,7 KB · Aufrufe: 254
AW: Herausforderung Küchenplanung

...und hier, was wirklich Neues - inspiriert von Muckelina!

Plan 8 Edition Muckelina:


Dateien:
 
AW: Herausforderung Küchenplanung

...na dann noch einmal Edition Muckelina:
 

Anhänge

  • Plan 8 Edition Muckelina front.jpg
    Plan 8 Edition Muckelina front.jpg
    41,2 KB · Aufrufe: 253
  • Plan 8 Edition Muckelina rechts.jpg
    Plan 8 Edition Muckelina rechts.jpg
    39,8 KB · Aufrufe: 269
  • Plan 8 Edition Muckelina links.jpg
    Plan 8 Edition Muckelina links.jpg
    38,7 KB · Aufrufe: 256
  • Plan 8 Edition Muckelina.jpg
    Plan 8 Edition Muckelina.jpg
    29,3 KB · Aufrufe: 343
  • Plan 8 var. Muckelina.POS
    10,5 KB · Aufrufe: 254
  • Plan 8 var. Muckelina.KPL
    3,9 KB · Aufrufe: 237

Ähnliche Beiträge

Neff Hausgeräte Ballerina Küchen Blum Bewegungstechnologie Weibel - Intelligente Küchenlüftung

Neff Spezial

Blum Zonenplaner

Weibel Abluft-Tuning

Weibel Abluft-Tuning
Zurück
Oben