Ganz am Anfang - Küchenvariationen

govsky

Mitglied
Beiträge
17
Ganz am Anfang - Küchenvariationen - Hilfe benötigt

Hallo liebe Forums-Gemeinde! :-)

Ich wohne in einem Einfamilienhaus, die Küche haben wir übernommen, sie ist über 10 Jahre alt und leider garnicht mein Geschmack. Also muss eine neue Küche her.:dance:
Ich stehe noch ganz am Anfang der Planung, ich habe viele Ideen, aber weiß noch nicht genau was ich will. Über Hilfe und Anregungen würde ich mich sehr freuen!

Im Anhang die Bilder meiner ersten Überlegungen und Pläne. In erster Linie brauche ich Hilfe bzgl. der Raumplanung, damit diese wirklich Sinn macht und praktikabel ist (und optisch auch was hergibt).
Bzgl. Kühlschrank habe ich bis jetzt mit einem großen Einbau-Kühlgerät geplant, nachdem ich aber wegen Geräten recherchiert habe, wirds nun vermutlich doch eher ein Standgerät.


Checkliste zur Küchenplanung von govsky

Anzahl Personen im Haushalt : 2
Davon Kinder? : keine
Körpergrössen aller Hauptbenutzer (wegen Arbeitshöhe ) in cm : 168, 178
Art des Gebäudes? : Bestandsbau, (kleinere) Umbauten möglich
Brüstungshöhe des Fensters (in cm) : 115
Fensterhöhe (in cm) : 110
Raumhöhe in cm: : 260
Heizung : Fussbodenheizung
Sanitäranschlüsse : variabel an aktueller Wand
Ausführung Kühlgerät? : Stand-Alone bis 75 cm Breite
Kühlgerät Größe : bis 175 cm Höhe
Ausführung Tiefkühl (TK)-Gerät : Im Kühlschrank als kleines Fach oben
Dunstabzugshaube? : keine
Hochgebauter Backofen ? : Ja
Hochgebauter Geschirrspüler ? : nein
Kochfeldart? : Induktion
Kochfeldbreite ca. (in cm)? :
Spülenform: : 1 Becken mit Abtropffläche
Weitere geplante Heißgeräte :
Küchenstil? : modern
Sitzmöglichkeit in der Küche / im Küchenbereich als : Arbeitsplatte in Tischhöhe
Sitzmöglichkeit: Für wieviel Personen? : für 2 Personen
Sitzmöglichkeit: Tisch - wenn gesonderter Tisch oder offene Küche : Keine
Gewünschte o. vorhandene Tischgröße : 120x50
Wofür soll der Sitzplatz in der Küche genutzt werden? Wie häufig? : für 1-2 Personen, zum frühstücken, für Laptop, u.ä. (großer Esstisch ist in Nebenraum vorhanden)
Welche Arbeitshöhe ist angedacht (in cm)? :
Was steht auf der Arbeitsplatte oder soll dort stehen? : Kaffeemaschine, Wasserkocher, Messerblock, Küchenmaschine, Brotbehälter, Obstschale
Welche weiteren Küchenmaschinen müssen in der Küche untergebracht werden? : Wasserkocher, Toaster, Handrührgerät, Mixer, Pürierstab
Was soll in der Küche außer den Standards untergebracht werden? : ALLE Vorräte, Geschirr komplett (nichts in Ess-/Wohnzimmer)
Welchen Stauraum gibt es sonst noch? : Geschirr/Gläserschrank im Wohn-/Esszimmer, Hauswirtschaftsraum, Keller
Was/wie wird gekocht? (Alltagsküche, Menüs, Snacks usw) : koche täglich frisch, viel Gemüse
Wie häufig wird gekocht? : (fast) täglich 1x warm
Wird alleine gekocht? Oder auch gemeinsam? Mit und für Gäste? : oft zu zweit, gerne für Gäste
Was stört an der bisherigen Küche und was soll die neue Küche unbedingt können? Warum? : abgesehen vom Alter: Backofen nicht erhöht, Kühschrank schlecht platziert (Sitzplatz im Türbereich), wenig Arbeitsfläche, zu viele Hochschränke
Preisvorstellung (Budget) : bis 10.000,-
 

Anhänge

  • küche plan3a.jpg
    küche plan3a.jpg
    41,3 KB · Aufrufe: 306
  • küche plan2a.jpg
    küche plan2a.jpg
    24,6 KB · Aufrufe: 302
  • küche plan2.jpg
    küche plan2.jpg
    28,6 KB · Aufrufe: 307
  • küche plan1.jpg
    küche plan1.jpg
    31,4 KB · Aufrufe: 306
  • küche plan 4a.png
    küche plan 4a.png
    426,9 KB · Aufrufe: 277
  • küche plan 4.jpg
    küche plan 4.jpg
    22,8 KB · Aufrufe: 310
  • küche plan 1a.jpg
    küche plan 1a.jpg
    31,5 KB · Aufrufe: 301
  • küche grundriss.jpg
    küche grundriss.jpg
    22,4 KB · Aufrufe: 310
Zuletzt bearbeitet:
AW: Ganz am Anfang - Küchenvariationen

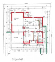
Achja, noch zur Errgänzung zum Grundriss:
Der Raum hat, wie man sieht, eine L-Form.
Oben gibt es eine Terassentür die nach innen aufgeht, wir benützen diese Türe aber so gut wie nie, also darauf muss man nur bedingt Rücksicht nehmen.
Am unteren Raumende gibt es einen Durchgang zum Wohnzimmer (155 breit).


und hier noch der grundriss vom gesamten erdgeschoss
Bild 2.jpg
 
Zuletzt bearbeitet:
help

Oh mann, ist das spannend... ich schau stündlich rein in der Hoffnung auf Rückmeldungen :rofl: fast 100 mal gelesen, und kein Kommentar?


Also füg ich noch ein paar Infos dazu, damits konkreter wird:
Was ich unbedingt haben will:
Glatte Rückwand, keine Fliesen (die hab ich jetzt)
Induktionskochfeld
Einbau-Backofen (erhöht)
grooooßer Kühlschrank (idealerweise mit viel Platz für Gemüse)
kleiner Tisch mit Sitzgelegenheit

mein Problem ist, dass ich natürlich möglichst viel Arbeitsfläche und Stauraum möchte, aber es sollte natürlich nichtt zu eng werden.
Mir würde ja so eine Halbinsel für die Kochplatte gefallen, aber ich bin nicht sicher, obs dann nicht zu eng wird....
Je mehr Pläne ich mache, desto unsicherer werde ich.... Hiiiiiilfe :rolleyes:
 
AW: Ganz am Anfang - Küchenvariationen

Hallo Govsky,

versuch doch mal dich von den ganzen Diagonalen (Eckschränke) in der Küche zu trennen. Das wirkt sehr konservativ und mehr Platz hast du dadurch auch nicht.

Mein Ansatz wäre, um das Kochen in die hintere Ecke des L zu verlagern, die Hochschränke neben den Tisch zu stellen. Nur als Idee.

Ansonsten hab bitte etwas Geduld. Wir haben hier momentan etwas Stress mit der Vielzahl der Planungen und da kann es schonmal etwas länger dauern.
 
AW: Ganz am Anfang - Küchenvariationen

Hallo Govsky,
du hast ja jetzt ziemlich kommentarlos diverse Planungen eingestellt.

Füge mal zu jeder für dich wirklich in Frage kommenden Planungen einen Beitrag an, verlinke dort den Grundriss oder lade ihn nochmal hoch und gebe mal ein paar Hinweise, was dir an der jeweiligen Kombination gefällt.

Dann kann man schneller mal konkret werden.

Ich unterschreibe allerdings auch bei Michael ;-)
 
AW: Ganz am Anfang - Küchenvariationen

boa Govsky,
nach 5 Std. schon unter Strom ?
und das am Sonntag ?.

Ich gebe mal zu bedenken, dass das hier fast alles Laien sind, die in ihrer Freizeit hier den Usern helfen.
Gerüchteweise habe ich gehört, es soll auch noch ein leben ausserhalb des I-Nets bestehen;-), also Geduuuuld, hier wurde noch jede(r) vermöbelt.

Am Besten vorab mal die Wünsche der Planerinnen hier erfüllen, so viel wie möglich an Details einstellen, vorallem deutlich vermaßte Grundrisse !

*winke*
Samy
der persönlich ein Schräg-Ecken-Fan ist... siehe meine Alben (Link in der Signatur)
 
AW: Ganz am Anfang - Küchenvariationen

Hi und Danke für die Kommentare
Wollte nicht ungeduldig wirken... Aber ihr wisst ja sicher alle, wie aufregend die Küchenplanung für die eigene Küche ist, und ich hab heute "sturmfrei" ;-)


Also dann hier mal meine Ideen kommentiert:

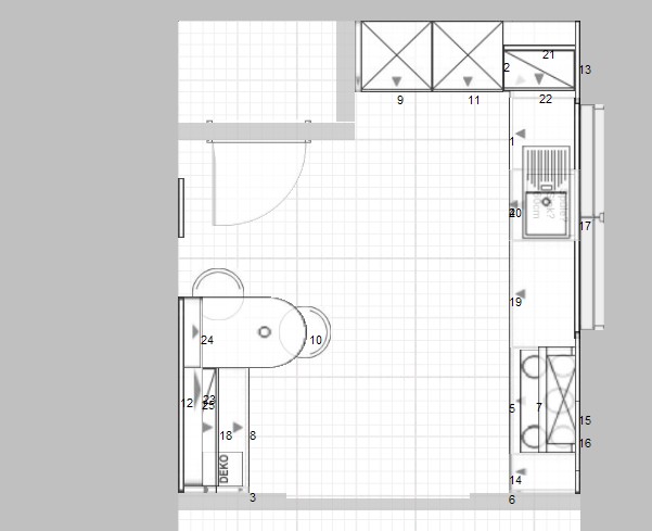
Das ist der ursprüngliche Plan. Die Terassentüre lässt sich nciht mehr ganz öffnen, aber das stört nicht. die Platzierung des Backofens stört mich ein bisschen, da ich es gerade in dem Eck mit den zwei Hochschränken sehr eng finde, außerdem ist das Eck damit sehr verbaut. So würde es von vorne aussehen:
küche plan 1a.jpg

Also so ganz glücklich bin ich damit nicht.



Die Variante gefällt mir am Plan am besten:
küche plan2.jpg

(bei mir passen die proportionen, aber irgendwie verzieht sich das bild, sobald ich es hier hochlade ???)
Pro: ich finde so Insel-Lösungen super, optisch gefällts mir total gut, aber ich befürchte, dass es in real total unpraktisch und störend ist beim kochen


Ja, die Ecklösungen sind fraglich, ich dachte halt, ich hätte einen Arbeitsflächen-gewinn ;-)


@Michael: welche Seite ist "die hintere des L"?

@Samy: die Ecklösungen in deinen Alben gefallen mir total gut und sieht ganz und garnicht koservativ aus :top:


Hier nochmal der Grundriss inkl. Maßen:

küche grundriss.jpg
 

Anhänge

  • küche plan1.jpg
    küche plan1.jpg
    31,4 KB · Aufrufe: 282
AW: Ganz am Anfang - Küchenvariationen

Ich meinte damit den Stummel, wo du jetzt die Hochschränke hast. Quasi rechts von der Tür und links von der Fensterseite.
 
AW: Ganz am Anfang - Küchenvariationen

Hallo Govsky,

hab mir mal die Mühe gemacht und Deine Planungen sowie die Anregung von Michael im Alno Planer umgesetzt. Die Maße des Fensters ist leider nur geschätzt, da in den pdf keine vorhanden sind.

So, jetzt können unsere Küchenplanungsprofis "Möbel-Tetris" spielen.:cool:

LG,

Gisela
 

Anhänge

  • govsky_Plan.POS
    6,9 KB · Aufrufe: 266
  • govsky_Plan.KPL
    4,1 KB · Aufrufe: 264
AW: Ganz am Anfang - Küchenvariationen

Achja, ok... Da habe ich das Kochfeld derzeit.
 
AW: Ganz am Anfang - Küchenvariationen

Danke Gisela!
Muss ich ein Programm downloaden, damit ich die Anhänge sehen kann?
Das Fenster ist zur linken Wand 70 cm entfernt, das Fenster selbst 115 cm vom Boden, Maße vom Fenster: 190 breit, 115 hoch (2 Flügel)
 
AW: Ganz am Anfang - Küchenvariationen

@Gisela, danke, dass du dich mit beteiligst. Es wäre aber nett, auch immer 1 oder 2 Ansichten und den Alnogrundriss einer Planung zu produzieren und anzuhängen. Wie das geht, steht in Alnohilfe Kapitel 3

@Govsky, du brauchst den Alnoplaner, dann mußt du die beiden Dateien, die Gisela angehängt hat, herunterladen, dann den Alnoplaner starten und dort die KPL-Datei öffnen. Das ist der Grund, warum wir zu einer Alnoplanung auch immer gerne 1 oder 2 Ansichten und den Alnogrundriss wollen, weil man dann gleich mal etwas sieht. Und die Profis haben den Alnoplaner gar nicht installiert.
 
AW: Ganz am Anfang - Küchenvariationen

Habe die Maße des Fensters jetzt angepasst.



LG,

Gisela
 

Anhänge

  • govsky_Plan.KPL
    4,1 KB · Aufrufe: 257
  • govsky_Plan.POS
    6,9 KB · Aufrufe: 268
  • govsky_2.jpg
    govsky_2.jpg
    44,4 KB · Aufrufe: 297
  • govsky_1.jpg
    govsky_1.jpg
    39,3 KB · Aufrufe: 278
  • govsky_Grundriss.JPG
    govsky_Grundriss.JPG
    39,5 KB · Aufrufe: 275
Zuletzt bearbeitet:
AW: Ganz am Anfang - Küchenvariationen

Nach Giselas prima Vorarbeit habe ich Möbel geschoben (ich liebe Tetris!;-))-

Hochschränke nach hinten, tote Ecke, GSP als erstes in der Zeile, dann stolpert keiner über die offene Klappe, Spüle, 90cm US, 90cm US mit Kochfeld, 30cm US.(Sorry, das Bild der langen Zeile hat eine andere Rückwandfarbe als die anderen Bilder).

An der anderen Wand einen 100cm US mit Arbeitsplattenverlängerung. Fast identisch habe ich das auch so :-):
 

Anhänge

  • kf_govsky_mca_V1_G.JPG
    kf_govsky_mca_V1_G.JPG
    43,7 KB · Aufrufe: 296
  • kf_govsky_mca_V1_A4.jpg
    kf_govsky_mca_V1_A4.jpg
    45 KB · Aufrufe: 297
  • kf_govsky_mca_V1_A3.jpg
    kf_govsky_mca_V1_A3.jpg
    42 KB · Aufrufe: 266
  • kf_govsky_mca_V1_A2.jpg
    kf_govsky_mca_V1_A2.jpg
    45 KB · Aufrufe: 285
  • kf_govsky_mca_V1.KPL
    4,1 KB · Aufrufe: 257
  • kf_govsky_mca_V1.POS
    10,4 KB · Aufrufe: 266
  • kf_govsky_mca_V1_A1.jpg
    kf_govsky_mca_V1_A1.jpg
    44,8 KB · Aufrufe: 292
AW: Ganz am Anfang - Küchenvariationen

Wie wäre es mit einem Bistro-Tisch (und 2 Barhockern) direkt vor der Terrassentür?

Könnte sich das jemand vorstellen? Ich frage, weil ich den zugegebener Maßen netten Tisch am Eingang ein wenig als Hindernis (Bis hier und nicht weiter!) empfinde. So, wie eine kleine Mauer, die einem beim reinkommen ausbremsen soll.

Nachtrag: vergeßt es, ich habe Zugänge verwürfelt.

neko
 
AW: Ganz am Anfang - Küchenvariationen

Also, der Tisch von Menorca sollte überhaupt nicht stören. Der Eingang in die Küche ist ja planunten, planoben links ist die Terrassentür.

Ich habe mal noch eine richtig große Halbinsel dazugepackt. Die könnte da eher stören und als Barriere gelten. Wäre aber gut erreichbarer Arbeitsplatz sowohl von Spüle als auch vom Kochfeld und bietet 2 dicke Sitzplätze.

Für gemeinsames Kochen auch für Gäste, gerade wenn es aufwändiger wird, vielleicht auch eine Option.
 

Anhänge

  • kf_govsky_20120116_kb_var1_Grundriss.jpg
    kf_govsky_20120116_kb_var1_Grundriss.jpg
    78,8 KB · Aufrufe: 249
  • kf_govsky_20120116_kb_var1_Ansicht3.jpg
    kf_govsky_20120116_kb_var1_Ansicht3.jpg
    112,4 KB · Aufrufe: 259
  • kf_govsky_20120116_kb_var1_Ansicht2.jpg
    kf_govsky_20120116_kb_var1_Ansicht2.jpg
    155,8 KB · Aufrufe: 263
  • kf_govsky_20120116_kb_var1_Ansicht1.jpg
    kf_govsky_20120116_kb_var1_Ansicht1.jpg
    77,3 KB · Aufrufe: 251
  • kf_govsky_20120116_kb_var1.POS
    11,5 KB · Aufrufe: 269
  • kf_govsky_20120116_kb_var1.kpl
    4,1 KB · Aufrufe: 253
AW: Ganz am Anfang - Küchenvariationen

Ja. Kerstin, Klassiker. Ich hab den Grundriß 'falsch' interpretiert und die vermeintliche Terrassentür ist der Zugang zum Essbereich :-)) Ich habe nur den Küchenraum genommen und habe die Tür oben links als Eingang zur Küche und planunten das Teil als Terrassenzugang gewertet...

neko
 
AW: Ganz am Anfang - Küchenvariationen

Falls die Terrassentüre verzichtbar wäre, könnte man stattdessen auch ein Fenster einbauen, oder (falls Miete) einfach Küchenmöbel davor möblieren :idee2:
 
AW: Ganz am Anfang - Küchenvariationen

Danke, danke, danke für die Anregungen!

@Gisela: Danke nochmal für das Einrichten mit dem Anloplaner, das erleichter scheinbar den Zugang für alle (auch wenn ich das Programm noch nicht ganz durchschaut habe ;-))

@Menorca: Der Tisch von dir schaut echt toll aus, das gefällt mir sehr gut und entspricht ziemlich genau dem, was ich mir vorstelle. Nicht zu groß und nicht zu klein - perfekt!

@Kerstin: mein jetziger Tisch reicht gute 160cm von der Wand weg in die Küche und ist ca 1 m breit. Der neue Tisch sollte jedenfalls kleiner werden, weil ich doch finde, dass es optisch sehr viel Raum einnimmt. Und spätestens, wenn man den Geschirrspüler öffnet, wird die Küche zum Hindernisparcour...
Und wenn schon eine Insel, hätte ich gerne das Kochfeld auf dieser 8aber ich glaube halt, dafür ist meine Küche zu klein)

Bzgl. der Terassentür: die Idee, die Türe gegen ein Fenster zu tauschen, hatte ich auch schon, aber die Tür passt optisch einfach besser, und ein solhcer Tausch wäre mir auch zu viel Arbeit.
Ich möchte die Türe nicht komplett verstellen, aber sie muss auch nicht ganz zu öffnen sein. Toll wären so ca. 50 cm Freiraum vor der Türe, so dass man sie notfalls oder zB zum Lüften noch etwas öffnen kann.

Ich bin ganz unschlüssig, was Kühlschrank und Backrohr betrifft.
Zur auswahl steht die Wand links, wo auch der Tisch hin soll.... Oder eben die Wand oben zwischen terassentür und Fenster, aber das wirkt auf den Bildern doch sehr eng und vorallem ist das Eck dann eigentlich unbrauchbar, oder?
 

Ähnliche Beiträge

Neff Hausgeräte Ballerina Küchen Blum Bewegungstechnologie Weibel - Intelligente Küchenlüftung

Neff Spezial

Blum Zonenplaner

Weibel Abluft-Tuning

Weibel Abluft-Tuning
Zurück
Oben