Unbeendet Familienküche

Heidelbeere

Mitglied
Beiträge
20
Liebes Forum,

nachdem wir nun schon seit Wochen über unserer Küchenplanung brüten und inzwischen selbst den Wald vor lauter Bäumen nicht mehr sehen, möchte ich euch um Hilfe bitten.

Wir planen den Umbau eines Hauses, die Küche soll in einen anderen Raum verlegt werden.
Die Spüle und der Geschirrspüler müssen an die Wand, die ich im Küchengrundriss markiert habe.
Leider wussten wir das nicht von Anfang an und mussten deshalb nun unsere bisherige Planung über den Haufen werfen :-(

Wir haben nun schon einen ersten Vorschlag vom Küchenstudio , auf dem wir aufbauen wollen.

Dabei soll ein L an der Wand entlang laufen, was ich grundsätzlich schon für eine gute Idee halte.
Der Schenkel des L´s, an dem sich die Spüle befindet, soll eine übertiefe Arbeitsplatte bekommen (75 cm) und wenn möglich (oder bezahlbar ;-)) auch übertiefe Schränke.

Das Kochfeld soll schräg in die Ecke gestellt werden (90er Induktionsfeld).
Irgendwie bin ich von der Idee noch nicht so begeistert- mir ist da die Arbeitsfläche zwischen Herd und Spüle zu klein.
Was meint ihr dazu?

Der zweite Punkt, den ich noch nicht so ideal finde, ist der Arbeitsinsel-Esstisch-Block.
Ich kann zwar nicht erklären warum ;-), aber irgendwie finde ich dieses Konstrukt noch verbesserungswürdig.

Für Kommentare und Ideen wäre ich euch sehr dankbar! :rose:


Liebe Grüße
Manuela

P.S.: Leider komme ich mit dem Alno -Planer nicht zurecht :-[
Dafür habe ich die Bilder des Küchenstudios angehängt- ich hoffe ihr könnt damit etwas anfangen?

Checkliste zur Küchenplanung

Anzahl Personen im Haushalt: 5
Davon Kinder?: 3
Art des Gebäudes?: Neu-/Umbau, Planänderungen möglich
Körpergrössen aller Hauptbenutzer (wegen Arbeitshöhe ) in cm: 160 und 175
Brüstungshöhe des Fensters (in cm): 92
Fensterhöhe (in cm): 127
Raumhöhe in cm: 240
Heizung: Fussbodenheizung
Sanitäranschlüsse: variabel an aktueller Wand
Ausführung Kühlgerät: Integriert im Hochschrank (60cm)
Kühlgerät Größe: bis 178 cm Höhe
Ausführung Tiefkühl (TK)-Gerät: Eigenständiges Gerät bis 72 cm Höhe
Dunstabzugshaube: Abluft
Backofen etc. hochgebaut?: Ja
Hochgebauter Geschirrspüler ?: Ja
Kochfeldart: Induktion
Kochfeldbreite ca. (in cm)?: 90
Spülenform: 1 Becken ohne Abtropffläche
Geplante Heißgeräte: Standmikrowelle, Dampfbackofen (DGC) ohne Wasseranschluß
Küchenstil: Modern
Sitzmöglichkeit in der Küche / im Küchenbereich: Gesonderter Tisch
Sitzmöglichkeit: Für wieviel Personen?: für 8 Personen
Sitzmöglichkeit: Tisch - wenn gesonderter Tisch oder offene Küche: Wird nach Bedarf neu gekauft
Gewünschte o. vorhandene Tischgröße: 100*180 cm
Wofür soll der Sitzplatz in der Küche genutzt werden? Wie häufig?: tägliche Nutzung von 5 Personen, es sollte Platz für regelmäßige Besucher sein (8 Personen)
Welche Arbeitshöhe ist angedacht (in cm)?: 90
Was steht auf der Arbeitsplatte oder soll dort stehen?: Kaffeemaschine, Küchenmaschine, Obstschale
Welche weiteren Küchenmaschinen müssen in der Küche untergebracht werden?: Toaster, Allesschneider (z. B. in Schublade), Handrührgerät, Eierkocher
Was soll in der Küche außer den Standards untergebracht werden?: ALLE Vorräte, Geschirr komplett (nichts in Ess-/Wohnzimmer)
Welchen Stauraum gibt es sonst noch?: Keller
Was/wie wird gekocht? (Alltagsküche, Menüs, Snacks usw): täglich Alltagsküche, am Wochenende auch gern Menüs und für Gäste
Wie häufig wird gekocht?: (fast) täglich 1x warm
Wird alleine gekocht? Oder auch gemeinsam? Mit und für Gäste?: alleine, zu zweit, regelmäßig auch zu fünft
Was stört an der bisherigen Küche und was soll die neue Küche unbedingt können? Warum?: Im Moment haben wir keine Arbeitsfläche für die Kinder (schneiden am Esstisch)
Welche Mülltrennung soll in der Küche vorgehalten werden?: Altpapier, Biomüll, Gelber Sack Müll, Restmüll
Steht schon ein Küchenhersteller fest oder wird bevorzugt?: Häcker oder Schüller
Steht schon ein Gerätehersteller fest oder wird bevorzugt?:
Preisvorstellung (Budget):
bis 25.000,-
--------------------
Im Threadverlauf hinzugekommen:
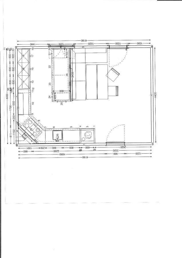
17.11.2015 Wohnraumgrundrissskizze gesamt mit Maßen (aus PDF gewandelt):

Heidelbeere_201511_Wohnraumgrundriss.jpg
 

Anhänge

  • Grundriss_EG_0001.jpg
    Grundriss_EG_0001.jpg
    125,9 KB · Aufrufe: 351
  • 3.jpg
    3.jpg
    252,9 KB · Aufrufe: 349
  • 2.jpg
    2.jpg
    199 KB · Aufrufe: 422
  • 1_0001.jpg
    1_0001.jpg
    315,1 KB · Aufrufe: 385
  • Vorschlag_Kuechenstudio.jpg
    Vorschlag_Kuechenstudio.jpg
    46,6 KB · Aufrufe: 342
  • Grundriss_Kueche.jpg
    Grundriss_Kueche.jpg
    35,5 KB · Aufrufe: 333
Zuletzt bearbeitet von einem Moderator:
:welcome:

sehr schöne Vorstellung mit fast allem was wir so benötigen :-)
Wie lang breit ist der Allraum?

Du arbeitest dann in der dunkelsten Ecke von dem Raum, während die Schränke schön beleuchtet sind - mhhh - findest Du das gut?

Warum MUSS der Wasseranschluss auf dem Wandstück sein? Eckkochfeld ist ziemlich doof - aus vielen Gründen - und ja, Deine Hauptarbeitsfläche wird winzig - das täte ich mir nicht an - die Insel ist auch zuweit vom Geschehen weg. Du arbeitest mit dem Rücken zum Fenster, zum Raum und zum Garten.

Warum wollt ihr die Küche verlegen? Grundsätzlich finde ich es ja schon gut, die Küche nahe an der Terrasse haben zu wollen, aber so ganz überzeugt die Planung im Moment noch nicht, da muss ich Dir Recht geben.

Könntest Du bitte den Hausgrundriss nochmal als *.pdf einstellen, so dass wir die Masse auch lesen können?
 
PS: bei der jetztigen Planung sollte es unbedingt eine Schiebetüre werden, das ist sonst funktioniert es mit dem Esstisch ganz schlecht.
 
Dacht ich mir ja, dass die Planung noch nicht optimal ist ;-)

Der Gesamtraum ist 43,8 qm groß und 10 Meter lang.
Auf der "Küchenseite" ist er 4,40m breit, auf der "Wohnzimmerseite" 4,10m (Wand macht einen Knick).
Was ich noch verschwiegen habe ist ein großer Kachelofen, der auf der Wohnzimmerseite direkt hinter der Tür liegt.
Deshalb kann die Tür nicht noch ein Stück verschoben werden.

Den Grundriss hänge ich nochmal an, allerdings stimmen die Maße nicht.
Das Haus wurde in den 70er Jahren gebaut, da nahm man es wohl noch nicht ganz so genau :-)


Wir möchten die Küche deshalb verlegen, weil sich da bei uns das Leben abspielt.
Die aktuelle Küche liegt im dunkelsten Eck Richtung Norden/Straße, und weg vom Garten :rolleyes:

Der Essbereich liegt aktuell im Durchgang zwischen Küche und Wohnzimmer.
Richtig viel Platz ist da nicht, und wir wünschen uns eigentlich einen großen Tisch und Platz für Gäste...


Die Spüle und den Schnippelplatz haben wir ursprünglich vor dem Fenster geplant.
Leider wird dann die Ablaufleitung zu lang.
Wir können zwar durch die Kellerdecke bohren, aber durch die Leitungslänge kommen wir dann bis ca. 25 cm unter die Kellerdecke. Im Keller sind dann noch Fenster und anderes Zeug im Weg, deshalb müssten wir mit dem Rohr mehrmals um die Ecke...
Deshalb haben unser Architekt und der Installateur uns von dieser Variante abgeraten:rolleyes:
 

Anhänge

  • Grundriss_EG.pdf
    550 KB · Aufrufe: 333
Ansatz 1: Küche bleibt wo sie ist - dann würde ich die Esszimmerwände rausreissen und dafür die Planlinke Küchenwand nach Planoben bis zu den Kaminen verlängern - so würde ein schön grosser Ess/Küchenbereich entstehen.

Ansatz 2: Umbau wie in Ansatz 1 mit Raumtausch - aus bisherige Küche/Essen würde Wohnen und aus Wohnen Küche/Essen - so würde z.B: das Gästezimmer erhalten bleiben. Dazu müssten wir aber noch die genauen Abmessungen des Ofens haben.
 
Ansatz 1 war auch unsere erste Idee ;-)

Leider bleibt das Problem dass die Küche nord-/straßenseitig ist und der Laufweg zum Garten lang.
Außerdem gewinnt man durch das Versetzen der Wand keinen Platz, denn der Durchgang Richtung Wohnzimmer müsste ja frei bleiben.


Ansatz 2 haben wir uns als nächstes überlegt.

Der Raum ließe sich aber nicht möblieren, weil man nichts in den Durchgang zwischn Tür und Garten stellen kann; rechts neben der Tür kommt der Kachelofen, der 1m weit in den Raum steht und 2m breit ist; dann kommt der Durchgang ins Nebenzimmer, in den man nichts stellen kann. Da bleibt nicht mehr viel Platz für eine Küche...
Außerdem hätten wir auch da wieder das Problem mit der Länge der Abwasserleitung.



Wir haben jetzt monatelang wirklich ALLE Varianten zig-mal durchgespielt und sind jetzt bei diesem Raum gelandet.
Kann man daraus denn wirklich keine familientaugliche Küche zaubern? :-(
 
Bitte erstelle nochmal einen Grundriss vom ganzen Raum mit präzise vermasstem Kamin - so dass man das im Alno richtig nachbauen kann.

Der Nordraum Planunten wäre ca 400x 545cm
Der Raum zur Terrasse als Küche vorgesehen wäre ca 440 x ? bis zum Kamin ? bzw. Mitte Terrassen-Schiebetüre? Der Kamin schränkt ja den Durchgang auch hier wieder ein, da sehe ich keinen grossen Unterschied.

Der Allraum ist eben auch nicht allzugross, von daher eben auch suboptimal..
 
Liebe Nice-nofret,

ich hab nochmal eine Skizze vom Raum gemacht- Foto vom Kachelofen hab ich leider keins :-[

Dass der Raum nicht optimal ist wissen wir.

Vielleicht hätte ich erwähnen sollen dass wir den Umbau seit Monaten planen und uns wirklich ewig den Kopf über die Raumaufteilung zerbrochen haben.
Wir haben auch alle!! Alternativen durchgespielt, mit Baumeister und Architekt besprochen und uns verschiedene Küchenplanungen für andere Räume machen lassen. Die waren auch absolut nicht zufriedenstellend, deshalb sind wir jetzt wieder bei diesem Raum gelandet.
Das ist immer noch die beste Lösung und irgendwie werden wir da schon eine schöne Küche hineinbasteln.

Im schlimmsten Fall lassen wir eine L-Küche an der Wand entlang laufen und stellen den Tisch in die Raummitte.
Dann wäre wenigstens das Prinzip "offene Küche" konsequent umgesetzt ;-)

Vielleicht gibt es aber auch noch eine andere Lösung...?
 

Anhänge

  • Grundriss_Allraum.pdf
    188,9 KB · Aufrufe: 300
Ach ja, und wegen der Sanitäranschlüsse:
Die sollten idealerweise an die Wand, die ich im ersten Beitrag markiert habe. Theoretisch auch in die Ecke der benachbarten Wand (die 440 cm), aber sie sollten nicht zu weit Richtung Aussenmauer rutschen und dürfen auch nicht an der Aussenmauer liegen, weil sonst wie gesagt die Leitungen zu lang werden und an der Kellerdecke nicht gut verlegt werden können.
 
Super - danke für die Vermassung - damit kann man nun was gescheites Anfangen.
 
Liebe Planungsprofis,


wir planen gerade an einer offenen Wohnküche (L-Küche eventuell mit Arbeits-Halbinsel).
Mein Planungsthema wäre hier: Familienküche

Nun haben wir das Problem, dass wir eine 5köpfige Familie sind, also fällt allein schon der Esstisch groß aus.
Außerdem kochen wir gern und viel, deshalb müssen unzählige Kochutensilien und Vorräte untergebracht werden- Stauraum wird definitiv benötigt ;-)

Hier im Forum finden sich ja schon unzählige tolle Tipps und kreative Vorschläge :kiss:

Deshalb habe ich auch schon eine Idee, in welche Richtung unsere Planung gehen soll (Bild im Anhang, das ist ein Vorschlag von Evelin im Thema "L-Küche oder eine Alternative"- die Planung finde ich voll schön :kiss:)


Ich fürchte jetzt bin ich abgeschweift :w00t:
Meine Fragen gehen nämlich eigentlich in Richtung "Optik".

Wie packe ich möglichst viel Stauraum in eine Küche, und lasse sie trotzdem ruhig, wohnlich und luftig wirken?
(Mir geht es da eher um allgemeine Tipps, deshalb ein neuer Beitrag im hoffentlich richtigen Unterforum ;-))


1. Besonders schwierig finde ich das Thema Hochschrankblock.
Ich fürchte, dass ein offener, eher kleiner Raum von einer riesigen Schrankwand total "erschlagen" werden könnte.

Gibt es dazu Orientierungswerte, wie breit ein Hochschrankblock sein darf, ohne zu massiv zu wirken (z.B. 3 Schränke sind ok, ab 4 wirds wuchtig?)

Es es grundsätzlich günstiger (unauffälliger) einen Hochschrankblock raumhoch zu gestalten, oder wirkt es mit etwas Abstand zur Decke luftiger?

Ich hab mir überlegt, den Hochschrankblock aufzuteilen- an einem Ende des "L" 3 Schränke, am anderen Ende 2 Schränke (ev. nur halbhoch).

Ist es grundsätzlich empfehlenswert Hochschränke über den Raum zu verteilen, oder ist es optisch schöner, wenn alle Schränke beieinander stehen?

Kann man hohe und halbhohe Schränke überhaupt kombinieren, oder schaut das komisch aus??


2. Der 2. Punkt sind Hängeschränke.
Ich habe mir überlegt an einer Wand die Hängeschränke wegzulassen, damit der Raum luftiger wird und nicht ganz so "küchig" aussieht.
(Die Arbeitsplattenbeleuchtung müsste man dann halt irgendwie anders lösen...)

Könnte es komisch aussehen, wenn neben einem raumhohen Hochschrankblock eine nackte Wand kommt?
Habt ihr Ideen, wie man eine leere Wand aufhübschen könnte? (bunt bedruckte Glasrückwand vielleicht?)


3. Habt ihr vielleicht allgemeine Tipps zum Thema "Küchenoptik", Linienführung, "niedrig wirkt luftiger als hoch" usw.?

Ich weiß, Funktionalität geht vor, aber ganz unansehnlich sollte unsere Küche auch nicht werden ;-)


Vielen Dank und liebe Grüße!
Manuela
 

Anhänge

  • Sonja1.JPG
    Sonja1.JPG
    67,7 KB · Aufrufe: 272
Ich hänge diesen Beitrag an deinen Planungsthread an. Alle Tipps sind immer relativ raumbezogen, da es ja auch um DEINE Küche gehen soll.
 
Upps, ich dachte allgemeine Fragen gehören in ein eigenes Thema :-[

Danke Kerstin fürs Verschieben!:rose:
 
Ich muss ja Vanessa zustimmen und habe doch nochmal etwas Raumschieben gespielt. Vielleicht hattet ihr diese Variante noch nicht.

Planoben rechts aus dem Fenster eine Terrassentür machen, planoben rechts dann die Küche, nah zur Terrasse. Dabei rechts 4 Hochschränke, dazwischen ca. 180 cm fürs Kochfeld. Das kann dann mit einer Decken-DAH analog Johaenes Küche (siehe Link unten) sehr unauffällig quasi als Wand gestaltet werden.

Beispiele für realisierte Deckenhauben
Und
Novy Deckenluefter-Montage und Installation- Thread von Michael
Decken-DAH-Montage bei Träumerle
Decken-DAH-Montage bei andrej
Oder aus Tinis Küche ... da gibt es ganz viele Aufbaubilder
Oder aus TheDudes Küche mit Schattenfuge der Abhängung und an der Fensterseite
Oder aus Toms Küche auch mit Schattenfuge der Abhängung. Hier ist die Abhängung einmal rundum geführt.
Oder aus Weis28 Küche ... in ganz besonderer Form
Oder ganz neu aus Johaenes Küche .. die schöne Wandkochzeile
und jetzt auch aus Lachmoewes Küche .. die Aufbaubilder
weiter mit Tom020361Küche .. gesamte Küche mit vorher/nachher

Dazu dann eine große Spülen-/Arbeits/Sitzinsel. Vielleicht läßt sich in diesem Bereich im Keller das Wasser besser dorthin führen. Links der Insel dann eine Sitzbank, wo die Kinder vor allem, so lange sie noch klein sind, auch knien können und in der Küche mitarbeiten können.

312 cm sind dort lt. deiner Zeichnung von Wand rechts bis Kamin:
- 60 cm Zeile rechts
- 110 cm Zeilenabstand
- 60 cm Unterschränke Insel
- 30 bis 40 cm überstehende APL nach links
- 42 bis 52 cm tiefe Sitzbank

Abtrennung Richtung Wohnen könnte ich mir dann mit halbhoher Wand (gerade hoch genug, um als Sitzbanklehne zu gelten) vorstellen. Im planoberen Bereich offen.

Im alten Essbereich die Wand nach links setzen, dann paßt ein riesiger Esstisch. Und planunten kann dann noch ein Gastzimmer sein.

Erstmal als Idee ... denn, der Tischbereich vorm Kamin bzw. an den Kaminbereich ranreichend ist vielleicht nicht so toll.

Heidelbeere_201511_KuecheVS1.jpg
 
Liebe Kerstin,

dankeschön, dass du dir die Mühe gemacht hast! :rose:

Leider ist deiner Planungswut ein Stück tragende Wand zum Opfer gefallen, das aus statischen Gründen bleiben muss, und der Kaminabzug, an den der Kachelofen angeschlossen ist ;-)


Ich weiß, dass unser Raum nicht optimal ist.
Wenn es einfach wäre, da drin Unmengen an Stauraum, Arbeitsplatte und einen gemütlichen Essbereich mit großem Tisch unterzubringen, hätte ich nicht in diesem super Forum nach Hilfe gefragt :top:

Aber schön langsam bekomme ich das Gefühl, die Planung ist so knifflig, dass sich niemand da ran wagt :-(
 
Warum ist tragende Wand weggefallen? Die Skizze ist jetzt halt nicht sehr genau, weil der Basisgrundriss nicht gerade ein Muster an Genauigkeit ist ;-)

Du hast
heidelbeere_201511_wohnraumgrundriss-jpg.198453


vom Kachelofen 312 cm nach planrechts angegeben und 411 cm Wandlänge rechts.

Von der Wand Richtung ehemaliges Esszimmer habe ich rechts ca. 60 cm als Einkofferung der Schränke stehen lassen. Sieht man auf der Skizze auch nicht so genau, aber soll zwischen Hochschrank "KS" und Bank sein.
heidelbeere_201511_kuechevs1-jpg.198461



Das Problem bei Küche rechts ist halt die Tischposition.

Die Terrasse ist doch auch eher rechts - oder? Sonst wäre für Küche links ja auch noch eine Idee, das linke Fenster zum Terrassenzugang zu machen, dann ist man mit dem Tisch in Raummitte etwas flexibler.
 
An der Wand neben dem Kachelofen ist jetzt ein Rundbogen, der zugemauert wird.
Von dem kann man nichts wegnehmen, wegen der Statik und weil der Kaminabzug drin verläuft, die Heizungsrohre aus dem Keller da hochkommen usw.

Die Abwasserführung über die Kellerdecke würde bei deiner Planung nicht funktionieren.

"Gästezimmer" klein und über die Küche erschlossen geht nicht, weil der Raum als Arbeitszimmer für 2 Personen benötigt wird (eine davon 40 Std/Wo).

Das Fenster als Terassenzugang zu benutzen haben wir auch schon überlegt. Aber dann verliert man im Wohnzimmer Stellmöglichkeiten für Möbel.

Bitte glaubt mir doch einfach, dass wir über alle Alternativen ausreichend nachgedacht haben :rolleyes:
 

Ähnliche Beiträge

Neff Hausgeräte Ballerina Küchen Blum Bewegungstechnologie Weibel - Intelligente Küchenlüftung

Neff Spezial

Blum Zonenplaner

Weibel Abluft-Tuning

Weibel Abluft-Tuning
Zurück
Oben