Ersatz für alte Küche

calron

Mitglied
Beiträge
5
Hallo Küchen-Forum,

wir beschäftigen uns zur Zeit mir unserer Küchenplanung .
Die neue Küche ist eine Nolte und ca. 28 Jahre alt.
Es soll nun eine moderne Landhausküche werden, entweder in weiss oder grau (kashmir).
Die Front soll eine "leichte" Kassette enthalten.

Wir sind dann bei einer Häcker Systemat Küche gelandet mit der AV3030 Front in kashmir.
Leider haben wir nun mitbekommen das es eine Folienfront ist, was wir nicht wollen.
Gibts andere Hersteller mit "leichten" Kassettenfronten in "Nichtfolie"? Mit 6er Raster?
Die erste Planung vom Berater lag leider 50 % über unserem Budget, nachdem von der Häckler
Classic (auch Folienfont) zur Systemat gewechselt wurde, wegen der geplanten APL Höhe von 97 cm.

Vielleicht gibts ja Optimierungsmöglichkeiten, ich finde an der jetzigen Planung (die ich im
Alnoplaner nachgebaut habe) wahrscheinlich zu wenig Arbeitsfläche.
Möglicherweise kann man den jetzigen SbS Kühlschrank noch weiterverwenden und in den "Waschküchenraum" stellen, ist sicherlich ein weiterer Weg zur Arbeitsplatte , das Gerät ist
allerdings erst 5 Jahre alt. Eingeplant war eine neue Kombination, die platztechnisch
aber ein Rückschritt wäre.
Gekocht wird hin und wieder am Abend und immer am Wochenende. Die Wände sollen
renoviert werden, neue Bodenfliesen sind geplant.

Ich konnte leider nicht alle Geräte (Abzugshaube und Herd) finden die Angeboten wurden.

gefrieren,kombination,kühlen,kühlschrank,sparsam,energieeffizienz - Bauknecht

Glaskeramik-Kochfeld mit Touch Control und Induktion, 77 cm breit ESMIF 8740 IN - Bauknecht

Produktsuche - Geschirrspülen - 60-cm-Geschirrspüler - Einbaugeräte (vollintegriert) - SN63D001EU

Ich hoffe das reicht erstmal für einen kurzen Überblick.

Calron

grundrisskueche.jpgerdgeschoss.jpg
ansicht1.jpgansicht3.jpgansicht2.jpg



Anhang anzeigen kueche1.KPL
Anhang anzeigen kueche1.POS


Checkliste zur Küchenplanung von calron

Anzahl Personen im Haushalt : 3
Davon Kinder? : 1
Körpergrössen aller Hauptbenutzer (wegen Arbeitshöhe ) in cm : 180
Art des Gebäudes? : Bestandsbau, Umbauten ausgeschlossen
Brüstungshöhe des Fensters (in cm) : 88
Fensterhöhe (in cm) : 122
Raumhöhe in cm: : 243
Heizung : Heizkörper wie im Grundriss
Sanitäranschlüsse : fix
Ausführung Kühlgerät? : Integriert im Hochschrank (60cm)
Kühlgerät Größe : bis 122 cm Höhe
Ausführung Tiefkühl (TK)-Gerät : Im Kühlschrank ab 3 Schubladen unten
Dunstabzugshaube? : Umluft
Hochgebauter Backofen ? : Ja
Hochgebauter Geschirrspüler ? : ja
Kochfeldart? : Induktion
Kochfeldbreite ca. (in cm)? : 80
Spülenform: : 1 Becken ohne Abtropffläche
Weitere geplante Heißgeräte :
Küchenstil? : Landhaus
Sitzmöglichkeit in der Küche / im Küchenbereich als : Gesonderter Tisch
Sitzmöglichkeit: Für wieviel Personen? : für 4 Personen
Sitzmöglichkeit: Tisch - wenn gesonderter Tisch oder offene Küche : Vorhandener Tisch
Gewünschte o. vorhandene Tischgröße : 160x90
Wofür soll der Sitzplatz in der Küche genutzt werden? Wie häufig? : Frühstück, Abendbrot täglich
Mittagessen eher Wochenende
Welche Arbeitshöhe ist angedacht (in cm)? : 97
Was steht auf der Arbeitsplatte oder soll dort stehen? : Kaffeemaschine, Wasserkocher, Messerblock, Allesschneider, Brotbehälter, Obstschale
Welche weiteren Küchenmaschinen müssen in der Küche untergebracht werden? : Küchenmaschine, Toaster
Was soll in der Küche außer den Standards untergebracht werden? : ALLE Vorräte, Geschirr komplett (nichts in Ess-/Wohnzimmer)
Welchen Stauraum gibt es sonst noch? : Hauswirtschaftsraum, Keller
Was/wie wird gekocht? (Alltagsküche, Menüs, Snacks usw) : Alltagsküche
Wie häufig wird gekocht? : Sonstiges (evtl. im Beitragstext benennen)
Wird alleine gekocht? Oder auch gemeinsam? Mit und für Gäste? : zu zweit
Was stört an der bisherigen Küche und was soll die neue Küche unbedingt können? Warum? : Mehr Stauraum, helle Optik
Steht schon ein Küchenhersteller fest oder wird bevorzugt? : Nein
Steht schon ein Gerätehersteller fest oder wird bevorzugt? : Nein
Preisvorstellung (Budget) : bis 10.000,-
 
Zuletzt bearbeitet:
AW: Ersatz für neue Küche

Hallöle und erst ein mal ganz herzlich :welcome: hier.

Schöne Threaderöffnung:top: .
Gut dass Du dich schon in den Alno eingearbeitet hast, die Probleme werden bald verschwunden sein.
Wichtig: wir benötigen die Dateien *.pos und *.kpl aus dem Alonoplaner.

So langsam gehts auf Weihnachten zu, und unsere Planerinen sind samt und sonders
engagierte "laien" mit einem realen Leben zu Hause, also bitte nicht ungeduldig werden,
wenn deine Planung heut abend noch nicht steht;-) .

Bis dahin wünsche ich viel Spass und viel nützlichen Input

Samy
 
AW: Ersatz für neue Küche

Ist das in deiner Planung planlinks ein neues Buffet, das mit in dem Küchenraum integriert werden soll?
 
AW: Ersatz für neue Küche

Nein, das ist neu geplant und gehört zur neuen Küche, wünscht sich meine Frau.

An der Stelle steht momentan der SbS Kühlschrank.

Die Eckbank ist im Gegensatz zur Darstellung im Alnoplaner braunes Leder
und der Tisch ist auch Dunkelbraun.
 
AW: Ersatz für neue Küche

Den SBS als einzigen Kühlschrank im HWR , halte ich für unpraktisch... Dann würde ich lieber noch einen kleinen Einbaukühlschrank in den Hochschränken einplanen.

Ihr habt in eurer Planung so gut wie keine Arbeitsfläche, das ist sehr ungünstig.... Wäre es möglich den Wasseranschluss an die Wand planoben zu verlegen?
 
AW: Ersatz für neue Küche

Habt ihr schon mal darüber nachgedacht, die Küche auf die Planlinke Seite des Raums zu verlegen? Wasser sollte man ja aus der Waschküche her bekommen oder wenn der Raum unterkellert ist, kann man Sanitär auch an der Kellerdecke verlegen.

Bei einem Raumtausch könnte man eine L-Küche Planlinke Wand und Planunten möblieren; an der Waschküchenwand zwei Seitenschränke und wenn ihr mögt noch eine Arbeitsinsel bzw. Büffetinsel.
 
AW: Ersatz für neue Küche

@conny

Die Idee mit dem kleinen Einbaukühlschrank werde ich weiterverfolgen, danke.
Ich habe nochmal hin und hergeschoben, wegen der Arbeitsfläche, jetzt
fällt aber Staufläche durch die fehlenden Hochschränke weg.

Anhang anzeigen kueche2.POS
Anhang anzeigen kueche2.KPL

@Nice-nofret

Die Küche ist nicht unterkellert, Abwasser und Wasser sind fix an der Plan-rechten Seite.
 
AW: Ersatz für neue Küche

Würdest du bitte auch ein paar Alnoansichten und den Grundriss mit hochladen...

Das mit dem BO funktioniert so nicht, wie willst du den so anständig bedienen?
 
AW: Ersatz für neue Küche

Funktionell passt das nicht mit dem BO? So hoch sitzt der ja nicht, das man keine
Kraft hätte da ein Blech rein- oder rauszuschieben. Man könnte heisse Bleche oder Auflaufformen dann gleich in einem Zug auf das Ceranfeld stellen. Installationstechnisch würde das funktionieren?


Hier noch die Ansichten.

ansicht4.jpgansicht5.jpg
 
AW: Ersatz für neue Küche

Ich halte das für unpraktisch, du musst den BO ja auch auswischen können, selbst wenn er Pyrolyse hätte. Wie willst du da ankommen?
 
AW: Ersatz für neue Küche

nicht nur unpraktisch wie ich ebenfalls finde, sondern auch noch gefährlich.... ;-)
 
AW: Ersatz für neue Küche

Ich hab einmal geschoben... Auch wenn du sagst das der Sanitäranschluss fix ist, habe ich ihn verlegt. :rose: Dies ist in meiner Planung aufputz angedacht. Mit dem Wandvorsprung in der Ecke ist es natürlich etwas unglücklich, ich hoffe das funktioniert trotzdem.

Der Wandvorsprung am Wandvorsprung, planoben in der Mitte, könnte man den evtl. soweit zurücknehmen, das er mit dem weiterzurückliegenden Wandvorsprung auf einer Höher liegt?

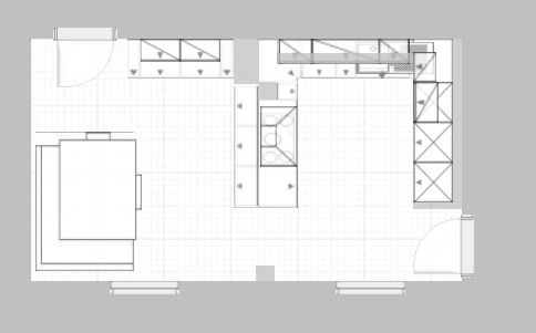
Nun zu meiner Planung...

- Hochschrank mit kleinem Kühlschrank für die nötigsten Dinge
- BO-Hochschrank
- Hochschrank mit hochgebauten GSP
- Stützwange

Alle Hochschränke etwa 15cm vorgezogen, damit der Sanitäranschluss durcht die Tote Ecke verlegt werden kann. Hochschränke eingekoffert.


- tote Ecke, darüber ein offenes Regal in Hängeschranktiefe. Für die Befestigung, muss der KFB sich etwas einfallen lassen...:cool: Ich habe angedacht, es an der Hochschrankwange zu befestigen und am Wandvorsprung.
- 80er Spülenschrank
- 30er Unterschrank im Raster 3-3 für Müll unter der APL
- 50er Unterschrank im Raster 1-2-3
- tote Ecke

- darüber Hängeschränke 45 - 100 - 50

- offenes Unterschrankregal etwa 25,5 cm breit, mindertief
- 100er Unterschrank im Raster 1-1-2-2, Kochfeld linksbündig aufgesetzt
- 60er Unterschrank im Raster 1-1-2-2
- Wange
- 3x 60er Raumteiler
- Blende
 

Anhänge

  • calron.jpg
    calron.jpg
    54,5 KB · Aufrufe: 220
  • calron1.jpg
    calron1.jpg
    56,3 KB · Aufrufe: 236
  • calron2.jpg
    calron2.jpg
    42,8 KB · Aufrufe: 212
  • calron grundriss.JPG
    calron grundriss.JPG
    21,6 KB · Aufrufe: 208
  • calron - conny 1.KPL
    3,9 KB · Aufrufe: 215
  • calron - conny 1.POS
    11,2 KB · Aufrufe: 234

Ähnliche Beiträge

Neff Hausgeräte Ballerina Küchen Blum Bewegungstechnologie Weibel - Intelligente Küchenlüftung

Neff Spezial

Blum Zonenplaner

Weibel Abluft-Tuning

Weibel Abluft-Tuning
Zurück
Oben