Varinia
Mitglied
- Beiträge
- 13
Hallo zusammen,
ich bin bei meiner Küchenrecherche hier gelandet und muss sagen, ich bin wirklich begeistert. Was ich bisher gelesen und gesehen habe – echt klasse!
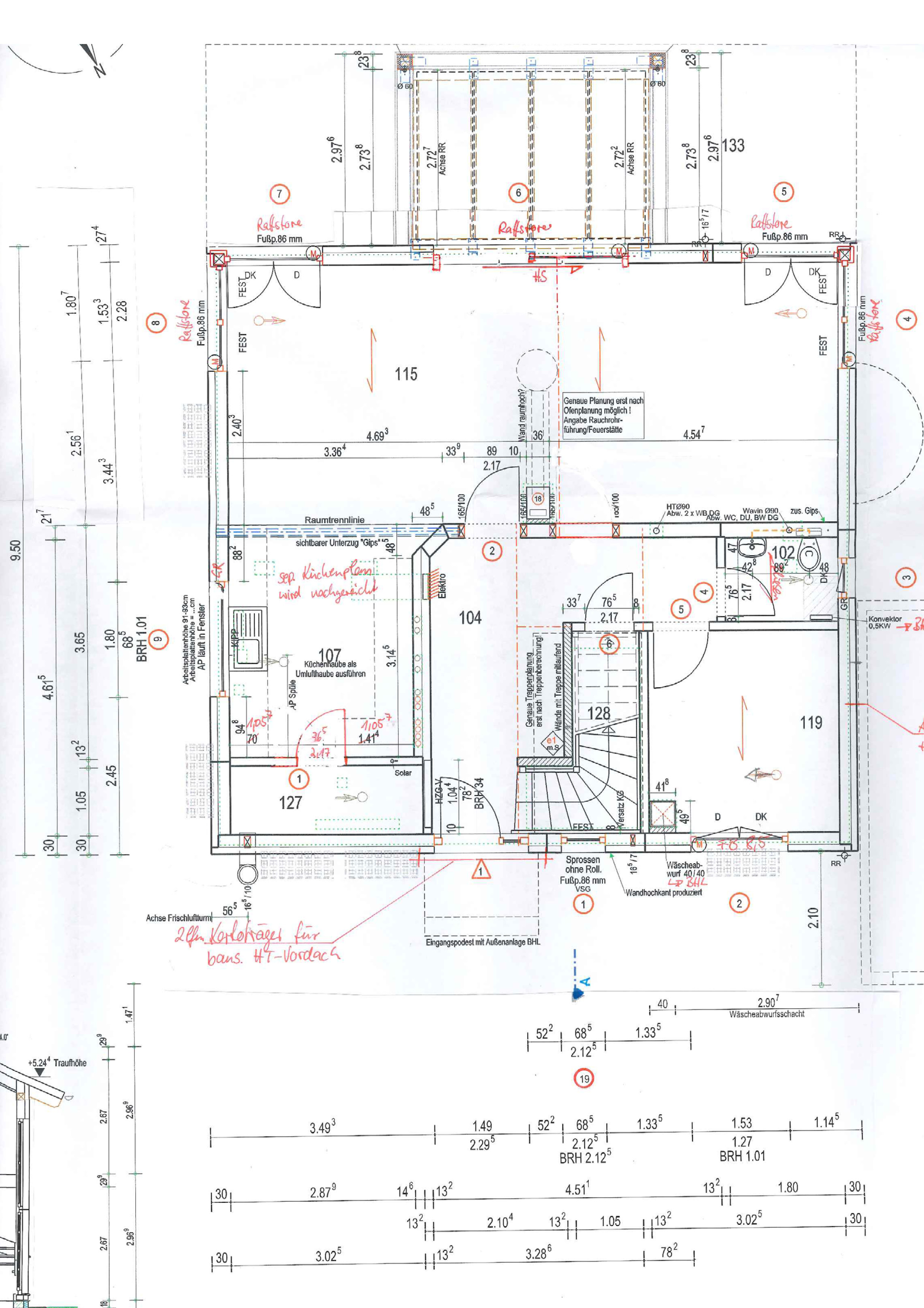
Nun dachte ich mir, ich wende mich mit unserer Küchenplanung auch an euch. Denn ehrlich? Ich habe versucht mit dem Ikea -Planer mal grob eine Küche zu planen, bin aber fast verzweifelt! Den Alno -Planer kannte ich vorher nicht, ich werde mir diesen aber die nächsten Tage ansehen und darin mit der Planung starten. Bevor ich das tue, möchte ich euch schon unseren Grundriss zeigen. Denn! Ich bin etwas ratlos, wie ich die Küche aufteilen soll.
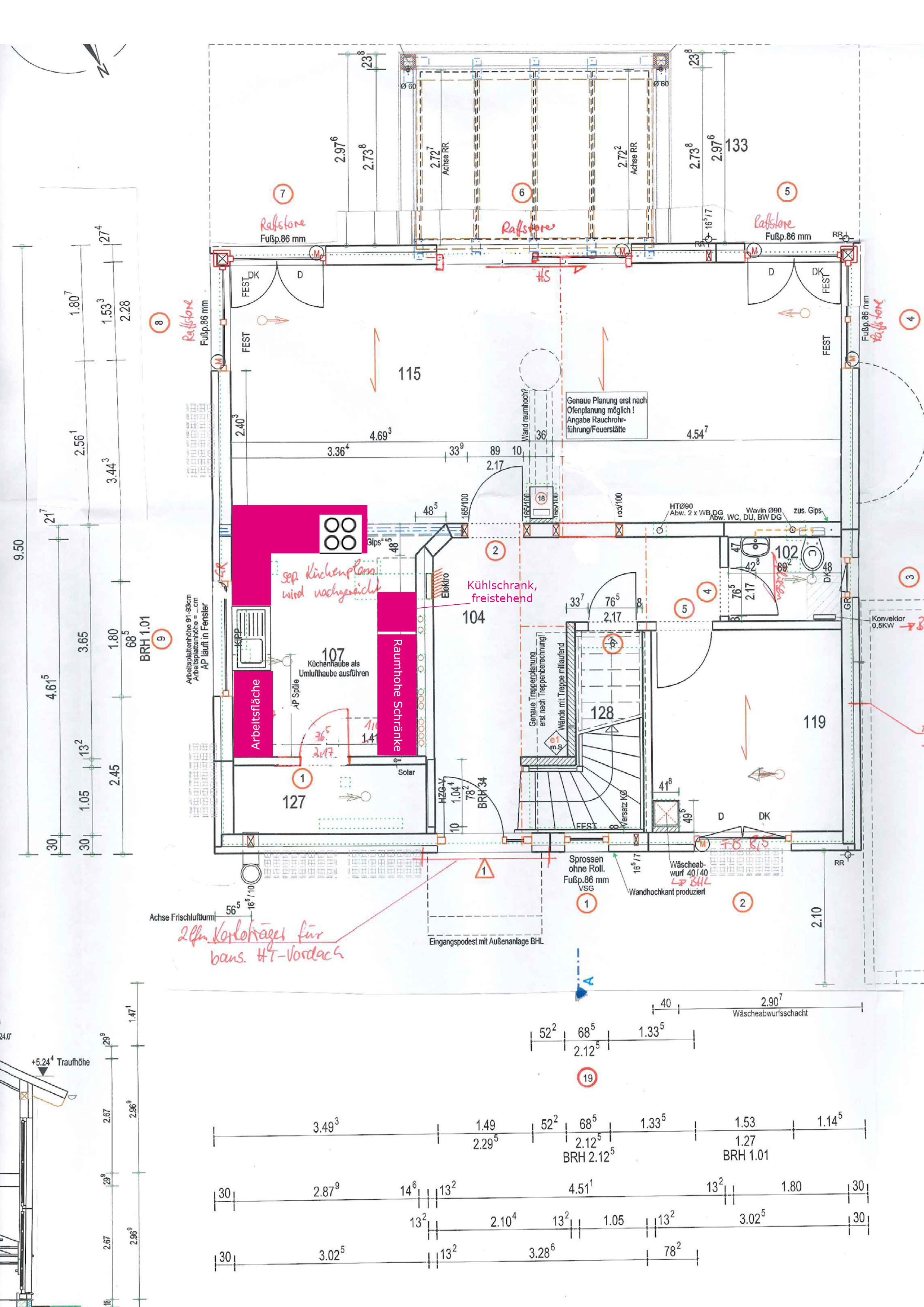
Wie ihr in dem Plan sehen könnt, haben wir eine geräumige Speisekammer. Darum war mein Wunsch, die Nordwand mit der Tür zur Kammer frei zu lassen. Auf der Südseite der Küche dachten wir, eine Insel einzuplanen. Darum haben wir auch diese Ecke an der Ostwand abgeschrägt, damit mehr Platz zum Laufen entsteht.
Ich habe mal eine grobe Aufteilung, die ich mir überlegt habe, anbei.
Macht das in euren Augen Sinn? Oder bin ich mit der Aufteilung auf dem Holzweg?
Problem wäre auch: Die Linie, bezeichnet mit „Raumtrennlinie - Unterzug sichtbar“ ist ein massiver Stahlträger, der sichtbar ist und niedriger als die Zimmerdecke. Ich bin nicht sicher, ob daran eine Abzugshaube befestigt werden kann.
Über dem Küchenfenster hätten wir gerne Hängeschränke – das Fenster bekommt auch keine Fensterbank, sondern die Arbeitsfläche soll ganz ran reichen.
Wir haben einen freistehenden Kühlschrank, den wir gerne mitnehmen möchten, ist aber nicht zwingend… Vielleicht macht ein Einbaukühlschrank in dieser Küche mehr Sinn??
Die Anschüsse sind natürlich auch noch völlig frei wählbar. Auch die Tür zur Speisekammer kann verschoben werden, wir haben sie jetzt mal mittig eingeplant.
Ich hoffe ihr könnt mir ein paar Anregungen liefern, wie die Küche sinnvoll aufgeteilt werden kann?!
Checkliste zur Küchenplanung
Anzahl Personen im Haushalt: 4
Davon Kinder?: 2
Art des Gebäudes?: Neu-/Umbau, Planänderungen möglich
Körpergrössen aller Hauptbenutzer (wegen Arbeitshöhe ) in cm: 181 und 176
Brüstungshöhe des Fensters (in cm): 91-93
Fensterhöhe (in cm): 68
Raumhöhe in cm: 251
Heizung: Fussbodenheizung
Sanitäranschlüsse: vollkommen variabel
Ausführung Kühlgerät: Stand-Alone bis 75 cm Breite
Kühlgerät Größe: bis 178 cm Höhe
Ausführung Tiefkühl (TK)-Gerät: Im Kühlschrank bis 2 Schubladen unten
Dunstabzugshaube: Umluft
Backofen etc. hochgebaut?: Nein
Hochgebauter Geschirrspüler ?:
Kochfeldart: Ceran (herkömmlich)
Kochfeldbreite ca. (in cm)?:
Spülenform: 2 Becken mit Abtropffläche
Geplante Heißgeräte: Backofen
Küchenstil: Modern
Sitzmöglichkeit in der Küche / im Küchenbereich: Keine
Sitzmöglichkeit: Für wieviel Personen?: Nein
Sitzmöglichkeit: Tisch - wenn gesonderter Tisch oder offene Küche:
Gewünschte o. vorhandene Tischgröße:
Wofür soll der Sitzplatz in der Küche genutzt werden? Wie häufig?:
Welche Arbeitshöhe ist angedacht (in cm)?:
Was steht auf der Arbeitsplatte oder soll dort stehen?: Kaffeemaschine, Wasserkocher, Messerblock, Toaster, Brotbehälter
Welche weiteren Küchenmaschinen müssen in der Küche untergebracht werden?: Handrührgerät, Mixer, Pürierstab, Eierkocher
Was soll in der Küche außer den Standards untergebracht werden?:
Welchen Stauraum gibt es sonst noch?: Geschirr/Gläserschrank im Wohn-/Esszimmer, Speisekammer, Keller
Was/wie wird gekocht? (Alltagsküche, Menüs, Snacks usw): Normale, gesunde Küche. Immer frisch, keine Fertigprodukte.
Wenig backen.
Wie häufig wird gekocht?(fast) täglich 1x warm[/COLOR]
Wird alleine gekocht? Oder auch gemeinsam? Mit und für Gäste?: Alleine oder zu zweit
Was stört an der bisherigen Küche und was soll die neue Küche unbedingt können? Warum?: Größeres Waschbecken (bisher 1 Becken, recht klein), mehrStauraum für Schüsseln und Töpfe, mehr Arbeitsfläche
Welche Mülltrennung soll in der Küche vorgehalten werden?: Biomüll, Gelber Sack Müll, Restmüll
Steht schon ein Küchenhersteller fest oder wird bevorzugt?: Nein
Steht schon ein Gerätehersteller fest oder wird bevorzugt?: Nein
Preisvorstellung (Budget): bis 5.000,-
ich bin bei meiner Küchenrecherche hier gelandet und muss sagen, ich bin wirklich begeistert. Was ich bisher gelesen und gesehen habe – echt klasse!
Nun dachte ich mir, ich wende mich mit unserer Küchenplanung auch an euch. Denn ehrlich? Ich habe versucht mit dem Ikea -Planer mal grob eine Küche zu planen, bin aber fast verzweifelt! Den Alno -Planer kannte ich vorher nicht, ich werde mir diesen aber die nächsten Tage ansehen und darin mit der Planung starten. Bevor ich das tue, möchte ich euch schon unseren Grundriss zeigen. Denn! Ich bin etwas ratlos, wie ich die Küche aufteilen soll.
Wie ihr in dem Plan sehen könnt, haben wir eine geräumige Speisekammer. Darum war mein Wunsch, die Nordwand mit der Tür zur Kammer frei zu lassen. Auf der Südseite der Küche dachten wir, eine Insel einzuplanen. Darum haben wir auch diese Ecke an der Ostwand abgeschrägt, damit mehr Platz zum Laufen entsteht.
Ich habe mal eine grobe Aufteilung, die ich mir überlegt habe, anbei.
Macht das in euren Augen Sinn? Oder bin ich mit der Aufteilung auf dem Holzweg?
Problem wäre auch: Die Linie, bezeichnet mit „Raumtrennlinie - Unterzug sichtbar“ ist ein massiver Stahlträger, der sichtbar ist und niedriger als die Zimmerdecke. Ich bin nicht sicher, ob daran eine Abzugshaube befestigt werden kann.
Über dem Küchenfenster hätten wir gerne Hängeschränke – das Fenster bekommt auch keine Fensterbank, sondern die Arbeitsfläche soll ganz ran reichen.
Wir haben einen freistehenden Kühlschrank, den wir gerne mitnehmen möchten, ist aber nicht zwingend… Vielleicht macht ein Einbaukühlschrank in dieser Küche mehr Sinn??
Die Anschüsse sind natürlich auch noch völlig frei wählbar. Auch die Tür zur Speisekammer kann verschoben werden, wir haben sie jetzt mal mittig eingeplant.
Ich hoffe ihr könnt mir ein paar Anregungen liefern, wie die Küche sinnvoll aufgeteilt werden kann?!
Checkliste zur Küchenplanung
Anzahl Personen im Haushalt: 4
Davon Kinder?: 2
Art des Gebäudes?: Neu-/Umbau, Planänderungen möglich
Körpergrössen aller Hauptbenutzer (wegen Arbeitshöhe ) in cm: 181 und 176
Brüstungshöhe des Fensters (in cm): 91-93
Fensterhöhe (in cm): 68
Raumhöhe in cm: 251
Heizung: Fussbodenheizung
Sanitäranschlüsse: vollkommen variabel
Ausführung Kühlgerät: Stand-Alone bis 75 cm Breite
Kühlgerät Größe: bis 178 cm Höhe
Ausführung Tiefkühl (TK)-Gerät: Im Kühlschrank bis 2 Schubladen unten
Dunstabzugshaube: Umluft
Backofen etc. hochgebaut?: Nein
Hochgebauter Geschirrspüler ?:
Kochfeldart: Ceran (herkömmlich)
Kochfeldbreite ca. (in cm)?:
Spülenform: 2 Becken mit Abtropffläche
Geplante Heißgeräte: Backofen
Küchenstil: Modern
Sitzmöglichkeit in der Küche / im Küchenbereich: Keine
Sitzmöglichkeit: Für wieviel Personen?: Nein
Sitzmöglichkeit: Tisch - wenn gesonderter Tisch oder offene Küche:
Gewünschte o. vorhandene Tischgröße:
Wofür soll der Sitzplatz in der Küche genutzt werden? Wie häufig?:
Welche Arbeitshöhe ist angedacht (in cm)?:
Was steht auf der Arbeitsplatte oder soll dort stehen?: Kaffeemaschine, Wasserkocher, Messerblock, Toaster, Brotbehälter
Welche weiteren Küchenmaschinen müssen in der Küche untergebracht werden?: Handrührgerät, Mixer, Pürierstab, Eierkocher
Was soll in der Küche außer den Standards untergebracht werden?:
Welchen Stauraum gibt es sonst noch?: Geschirr/Gläserschrank im Wohn-/Esszimmer, Speisekammer, Keller
Was/wie wird gekocht? (Alltagsküche, Menüs, Snacks usw): Normale, gesunde Küche. Immer frisch, keine Fertigprodukte.
Wenig backen.
Wie häufig wird gekocht?(fast) täglich 1x warm[/COLOR]
Wird alleine gekocht? Oder auch gemeinsam? Mit und für Gäste?: Alleine oder zu zweit
Was stört an der bisherigen Küche und was soll die neue Küche unbedingt können? Warum?: Größeres Waschbecken (bisher 1 Becken, recht klein), mehrStauraum für Schüsseln und Töpfe, mehr Arbeitsfläche
Welche Mülltrennung soll in der Küche vorgehalten werden?: Biomüll, Gelber Sack Müll, Restmüll
Steht schon ein Küchenhersteller fest oder wird bevorzugt?: Nein
Steht schon ein Gerätehersteller fest oder wird bevorzugt?: Nein
Preisvorstellung (Budget): bis 5.000,-
Zuletzt bearbeitet:



