der.extreme
Mitglied
- Beiträge
- 4
Hallo ihr,
nach unzähligen Stunden des Mitlesens, Planens und Gedanken machens ist es nun an der Zeit, euch um Mithilfe zu bitten.
Ich bin für jede Anregung dankbar; noch ist nichts fix...
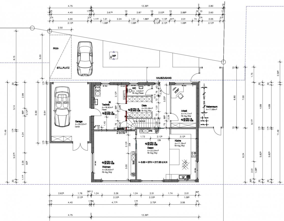
Allgemeines
- die beiden Zimmertüren sind Schiebetüren (in der Wand laufend)
- die Terassentür ist eine Hebe-Schiebe-Tür
- bis auf die oberen Bereiche der Hochschränke sind ausschließlich Schubladen geplant
- Spülen (Edelstahl) und autarkes Kochfeld sind flächenbündig
- Arbeitsplatte (an der Wand) ist 70 tief
- wir haben uns gegen eine Kochinsel entschieden, da wir eine Ablufthaube wollen, aber kein aufwändiges Abkoffern der Decke wollen
Erläuterungen zur vorliegenden Planung im Uhrzeigersinn, beginnend im Norden auf 12 Uhr.
- komplette nördliche Wand raumhoch 80cm tief abgekoffert
- 50er Hochschrank Richtung Esszimmer: unten Schubladen, oben Einlegeboden für alles was nicht in Schubladen Platz findet (z.B. Wein-, Sektgläser)
- Hochschrank li: 178er Kühlschrank ohne Gefrierfach
--------------------------
Variante 1:
- Hochschrank mi: 45er Dampfbackofen oder Dampfgarer, 60er Backofen , evtl. Wäremschublade
- Hochschrank re: kein Einbauschrank, sondern Zugang zur Mini-Speisekammer (ca.80*120), die bis zur Außenwand reicht
--------------------------
Variante 2:
- Hochschrank mi: 45er Dampfbackofen oder Dampfgarer, Wärmeschublade
- Hochschrank re: Backofen
- Arbeitsplatte läuft durch bis an die Innenwand, darüber im Eck ein Aufsatzschrank (mit Rolladen?) zum "Unsichtbarmachen" von Kleinkram
--------------------------
- 100er Unterschrank mit 60er Spülbecken ohne Abtropfläche (Vorbereitungsbecken, Abstellen der Gareinsätze, etc.)
- 40er Unterschrank
- 100er Unterschrank mit 90er Kochfeld, Kopffreihaube mit Abluft
- 3x 100er Unterschrank, tote Ecke
- 100er Unterschrank mit 70er Spülbecken ohne Abtropfläche (Abwaschbecken, Nähe zum Geschirrspüler )
- Geschirrspüler , hochgebaut
- Insel aus 4 100er Unterschränken, ohne Geräte, die beiden zum Esszimmer hin sollen alles Essgeschirr beherbergen
Geräteliste
Kühlschrank: Liebherr IKBP 3560-20
Dampfbackofen oder Dampfgarer: Siemens CS658GRS6 oder Siemens CD634GBS1
Wärmeschublade: Siemens BI630CNS1
Backofen : Siemens HB678GBS6
Spüle (Vorbereitung): Blanco Claron 550 IF/A
Armatur (Vorbereitung): Grohe Red Duo und Single Boiler
Kochfeld: Siemens EX901KXW1E
Kopffreihaube: Siemens LC91KWW60S
Spüle (Abwasch): Blanco Claron 700 IF/A
Armatur (Abwasch): Grohe Minta Touch
Spülmaschine: Siemens SX678X36TE
Offene Fragen
- grundsätzliche Planung und Aufteilung
- welche Hochschrankvariante (oder eine weitere, bessere)
- MUPL : einen an der Insel, einen auf der Wandseite. Wo ist es clever?
Bitte im Alno -Planer nicht so genau hinschauen, so manches ist quick'n'dirty...
*Hoffentlich nichts vergessen...*
Vorab vielen Dank und gute Nacht!
Checkliste zur Küchenplanung
Anzahl Personen im Haushalt: 5
Davon Kinder?: 3
Art des Gebäudes?: Neu-/Umbau, Planänderungen möglich
Körpergrössen aller Hauptbenutzer (wegen Arbeitshöhe ) in cm: 175, 183
Brüstungshöhe des Fensters (in cm): 125
Fensterhöhe (in cm): 108
Raumhöhe in cm: 250
Heizung: Fussbodenheizung
Sanitäranschlüsse: vollkommen variabel
Ausführung Kühlgerät: Integriert im Hochschrank (60cm)
Kühlgerät Größe: bis 178 cm Höhe
Ausführung Tiefkühl (TK)-Gerät: Nicht erforderlich bzw. steht woanders
Dunstabzugshaube: Abluft
Backofen etc. hochgebaut?: Ja
Hochgebauter Geschirrspüler ?: Ja
Kochfeldart: Induktion
Kochfeldbreite ca. (in cm)?: 90
Spülenform: 1 Becken ohne Abtropffläche
Geplante Heißgeräte: Dampfgarer ohne Wasseranschluß, Wärmeschublade, Backofen , Dampfbackofen (DGC) ohne Wasseranschluß
Küchenstil: Modern
Sitzmöglichkeit in der Küche / im Küchenbereich: Gesonderter Tisch
Sitzmöglichkeit: Für wieviel Personen?: für 8 Personen
Sitzmöglichkeit: Tisch - wenn gesonderter Tisch oder offene Küche: Wird nach Bedarf neu gekauft
Gewünschte o. vorhandene Tischgröße: 220, zum Ausziehen auf >300
Wofür soll der Sitzplatz in der Küche genutzt werden? Wie häufig?: mehrmals täglich, für Familie und Gäste
Welche Arbeitshöhe ist angedacht (in cm)?: 95
Was steht auf der Arbeitsplatte oder soll dort stehen?:
Welche weiteren Küchenmaschinen müssen in der Küche untergebracht werden?: Küchenmaschine, Mixer, Pürierstab
Was soll in der Küche außer den Standards untergebracht werden?: ALLE Vorräte, Getränkekisten, Geschirr komplett (nichts in Ess-/Wohnzimmer)
Welchen Stauraum gibt es sonst noch?: Speisekammer, Hauswirtschaftsraum
Was/wie wird gekocht? (Alltagsküche, Menüs, Snacks usw): Alltagsküche, für Gäste
Wie häufig wird gekocht?: (fast) täglich 1x warm
Wird alleine gekocht? Oder auch gemeinsam? Mit und für Gäste?: 1 bis viele
Was stört an der bisherigen Küche und was soll die neue Küche unbedingt können? Warum?: Geschirrspüler , Dampfgarer, Backofen erhöht
Spüle, GS, BO nicht so dicht beieinander
mehr Stauraum
größerer Kühlschrank
Welche Mülltrennung soll in der Küche vorgehalten werden?: Altglas, Altpapier, Biomüll, Restmüll
Steht schon ein Küchenhersteller fest oder wird bevorzugt?: nein
Steht schon ein Gerätehersteller fest oder wird bevorzugt?: BSH
Preisvorstellung (Budget):
nach unzähligen Stunden des Mitlesens, Planens und Gedanken machens ist es nun an der Zeit, euch um Mithilfe zu bitten.
Ich bin für jede Anregung dankbar; noch ist nichts fix...
Allgemeines
- die beiden Zimmertüren sind Schiebetüren (in der Wand laufend)
- die Terassentür ist eine Hebe-Schiebe-Tür
- bis auf die oberen Bereiche der Hochschränke sind ausschließlich Schubladen geplant
- Spülen (Edelstahl) und autarkes Kochfeld sind flächenbündig
- Arbeitsplatte (an der Wand) ist 70 tief
- wir haben uns gegen eine Kochinsel entschieden, da wir eine Ablufthaube wollen, aber kein aufwändiges Abkoffern der Decke wollen
Erläuterungen zur vorliegenden Planung im Uhrzeigersinn, beginnend im Norden auf 12 Uhr.
- komplette nördliche Wand raumhoch 80cm tief abgekoffert
- 50er Hochschrank Richtung Esszimmer: unten Schubladen, oben Einlegeboden für alles was nicht in Schubladen Platz findet (z.B. Wein-, Sektgläser)
- Hochschrank li: 178er Kühlschrank ohne Gefrierfach
--------------------------
Variante 1:
- Hochschrank mi: 45er Dampfbackofen oder Dampfgarer, 60er Backofen , evtl. Wäremschublade
- Hochschrank re: kein Einbauschrank, sondern Zugang zur Mini-Speisekammer (ca.80*120), die bis zur Außenwand reicht
--------------------------
Variante 2:
- Hochschrank mi: 45er Dampfbackofen oder Dampfgarer, Wärmeschublade
- Hochschrank re: Backofen
- Arbeitsplatte läuft durch bis an die Innenwand, darüber im Eck ein Aufsatzschrank (mit Rolladen?) zum "Unsichtbarmachen" von Kleinkram
--------------------------
- 100er Unterschrank mit 60er Spülbecken ohne Abtropfläche (Vorbereitungsbecken, Abstellen der Gareinsätze, etc.)
- 40er Unterschrank
- 100er Unterschrank mit 90er Kochfeld, Kopffreihaube mit Abluft
- 3x 100er Unterschrank, tote Ecke
- 100er Unterschrank mit 70er Spülbecken ohne Abtropfläche (Abwaschbecken, Nähe zum Geschirrspüler )
- Geschirrspüler , hochgebaut
- Insel aus 4 100er Unterschränken, ohne Geräte, die beiden zum Esszimmer hin sollen alles Essgeschirr beherbergen
Geräteliste
Kühlschrank: Liebherr IKBP 3560-20
Dampfbackofen oder Dampfgarer: Siemens CS658GRS6 oder Siemens CD634GBS1
Wärmeschublade: Siemens BI630CNS1
Backofen : Siemens HB678GBS6
Spüle (Vorbereitung): Blanco Claron 550 IF/A
Armatur (Vorbereitung): Grohe Red Duo und Single Boiler
Kochfeld: Siemens EX901KXW1E
Kopffreihaube: Siemens LC91KWW60S
Spüle (Abwasch): Blanco Claron 700 IF/A
Armatur (Abwasch): Grohe Minta Touch
Spülmaschine: Siemens SX678X36TE
Offene Fragen
- grundsätzliche Planung und Aufteilung
- welche Hochschrankvariante (oder eine weitere, bessere)
- MUPL : einen an der Insel, einen auf der Wandseite. Wo ist es clever?
Bitte im Alno -Planer nicht so genau hinschauen, so manches ist quick'n'dirty...
*Hoffentlich nichts vergessen...*
Vorab vielen Dank und gute Nacht!
Checkliste zur Küchenplanung
Anzahl Personen im Haushalt: 5
Davon Kinder?: 3
Art des Gebäudes?: Neu-/Umbau, Planänderungen möglich
Körpergrössen aller Hauptbenutzer (wegen Arbeitshöhe ) in cm: 175, 183
Brüstungshöhe des Fensters (in cm): 125
Fensterhöhe (in cm): 108
Raumhöhe in cm: 250
Heizung: Fussbodenheizung
Sanitäranschlüsse: vollkommen variabel
Ausführung Kühlgerät: Integriert im Hochschrank (60cm)
Kühlgerät Größe: bis 178 cm Höhe
Ausführung Tiefkühl (TK)-Gerät: Nicht erforderlich bzw. steht woanders
Dunstabzugshaube: Abluft
Backofen etc. hochgebaut?: Ja
Hochgebauter Geschirrspüler ?: Ja
Kochfeldart: Induktion
Kochfeldbreite ca. (in cm)?: 90
Spülenform: 1 Becken ohne Abtropffläche
Geplante Heißgeräte: Dampfgarer ohne Wasseranschluß, Wärmeschublade, Backofen , Dampfbackofen (DGC) ohne Wasseranschluß
Küchenstil: Modern
Sitzmöglichkeit in der Küche / im Küchenbereich: Gesonderter Tisch
Sitzmöglichkeit: Für wieviel Personen?: für 8 Personen
Sitzmöglichkeit: Tisch - wenn gesonderter Tisch oder offene Küche: Wird nach Bedarf neu gekauft
Gewünschte o. vorhandene Tischgröße: 220, zum Ausziehen auf >300
Wofür soll der Sitzplatz in der Küche genutzt werden? Wie häufig?: mehrmals täglich, für Familie und Gäste
Welche Arbeitshöhe ist angedacht (in cm)?: 95
Was steht auf der Arbeitsplatte oder soll dort stehen?:
Welche weiteren Küchenmaschinen müssen in der Küche untergebracht werden?: Küchenmaschine, Mixer, Pürierstab
Was soll in der Küche außer den Standards untergebracht werden?: ALLE Vorräte, Getränkekisten, Geschirr komplett (nichts in Ess-/Wohnzimmer)
Welchen Stauraum gibt es sonst noch?: Speisekammer, Hauswirtschaftsraum
Was/wie wird gekocht? (Alltagsküche, Menüs, Snacks usw): Alltagsküche, für Gäste
Wie häufig wird gekocht?: (fast) täglich 1x warm
Wird alleine gekocht? Oder auch gemeinsam? Mit und für Gäste?: 1 bis viele
Was stört an der bisherigen Küche und was soll die neue Küche unbedingt können? Warum?: Geschirrspüler , Dampfgarer, Backofen erhöht
Spüle, GS, BO nicht so dicht beieinander
mehr Stauraum
größerer Kühlschrank
Welche Mülltrennung soll in der Küche vorgehalten werden?: Altglas, Altpapier, Biomüll, Restmüll
Steht schon ein Küchenhersteller fest oder wird bevorzugt?: nein
Steht schon ein Gerätehersteller fest oder wird bevorzugt?: BSH
Preisvorstellung (Budget):
Anhänge




