Deckenhaube mit Umluft?

hg6806

Mitglied
Beiträge
48
Hallo zusammen,

eigentlich wollten wir in unsrer Küche die Decke leicht abhängen und eine Deckenhaube einsetzen mit einem externen Motor, der direkt nach außen bläst.
Jetzt hat aber der Schornsteinfeger gemeint, dass es eigentlich sinnlos ist, ein KFW70 Haus zu bauen und dann wie viel Kubikmeter Luft in der Minute hinauszublasen.
Habe ich auch eingesehen. Mit guten Aktivkohlefilter sollte auch gut Umluft gehen.
Doch wie realisiert man das am besten mit eine Deckenhaube, an der ich festhalten möchte?

Da muss doch die Decke min. 40cm abgehängt werden, damit der darauf sitzende Motor und Filter noch Platz haben. Der Luftaustritt würde ich dann seitlich machen.

Schöne Grüße
 
Du solltest evtl. mal einen Grundriss deiner Küchenplanung einstellen. Dazu auch die Umgebung, weil z. B. Hauben wie die Novy auch freie Bahn haben wollen, um die umgewälzte Luft wieder auszublasen. Und, 40 cm sind nicht notwendig, es dürften 30 cm reichen. Motor kann neben der Haube platziert werden usw. Aber, wie gesagt, das hängt ja auch vom Grundplan ab.
 
Und auch von gewählten DAH Modell würde ich sagen. Gutmann Capa liegt schon flacher an der Decke, denke ich.

Kerstin hat auch völlig Recht, dass es auch vom. Küchenplan auch abhängig. Wenn Du genau an der Seite des geplanten Luftauslässen Küchenzeile od Hochschränke hast in weniger als 3 m Abstand, dann kann es zur Querwirbelung kommen und ich glaube, es war Novys Anleitung, die unter m Abstand zu vermeiden empfiehlt.

VG,
 
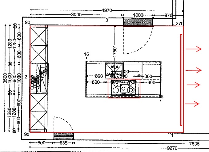
Anbei ein Bild des Grundrisses. Das Rote ist die abgehängte Decke und die DAH und der schmale Schlitz rechts die Ausströmung. So erstmal ein erster Gedankengang.
 

Anhänge

  • Küche_mit_abgehängter_Decke_und_DAH.jpg
    Küche_mit_abgehängter_Decke_und_DAH.jpg
    112,3 KB · Aufrufe: 280
Wenn die Pfeile die Ausblasrichtung symbolisieren, dürfte es funktionieren. In allen anderen Richtungen eher nicht. Aber so eine Umluftausblasbox ist schon ziemlich monströs.Dem hohen Durchlass geschuldet.
 
Neff Hausgeräte Ballerina Küchen Blum Bewegungstechnologie Weibel - Intelligente Küchenlüftung

Neff Spezial

Blum Zonenplaner

Weibel Abluft-Tuning

Weibel Abluft-Tuning
Zurück
Oben