Unbeendet offene Küche, die erste eigene!

AW: offene Küche, die erste eigene!

Ah ok. Man, ich muss wohl noch ein bißchen reinkommen hier;-)
also. Planunten das Fenster existiert nicht und hat nie existiert. Warum der Makler da ein Fenster gemalt hat weiss kein Mensch... sorry. Hab ich gar nicht auf dem Schirm gehabt, dass das da noch eingezeichnet ist. Die Fenster bleiben drin, die sind alle neu.
 
AW: offene Küche, die erste eigene!

ach so, was mir gerade noch einfällt:
glaubt ihr es gibt eine möglichkeit die essplätze um die ecke oder gegenüber anzuordnen? So nebeneinander finde ich immer so ungemütlich....
 
AW: offene Küche, die erste eigene!

Die Position der Essecke gefällt mir noch nicht. Vor allem wenn ích die Couch mit einplane. Welche Tiefe hat diese eigentlich. Handelt es sich bei dem Maßen der Couch um die Innen- oder Außenmaße?

Selbstverständlich können die Sitzplätze auch über Eck angeordnet werden. Deinen Einwand kann ich verstehen. Jedoch habe ich für heute genug geplant und morgen bin ich den ganzen Tag beschäftigt.

:n8:
 
AW: offene Küche, die erste eigene!

so. wir haben gestern nun nochmal stundenlang gebrütet. Ergebnis: Wir sind nicht klüger. Da die lange Wand noch da es, ist es im Moment schwer sich alles vorzustellen. Auf euren 3D Plänen geht das natürlich schon viel besser.
Ich ärgere mich, dass ich den doofen Also-Planer nicht ans laufen bekomme. Dann könnte ich auch mal etwas durch die Gegend schieben. Mit dem Ikeaplaner kommt man da ja irgendwie nicht so weit...
Mein Mann will immernoch die Essecke ins Esszimmer haben, davon bin ich aber mittlerweile ganz ab;-)Meine favorisierte Version momentan ist mit dem Statiker mal über die Wand zw. geplantem Wohn- und Esszimmer zu sprechen. Wenn man die auch noch ohne "viel" Aufwand rausnehmen kann oder den Durchgang verbreitern kann, könnte man das Wohnzimmer quasi verlängern und es wäre nicht zu eng.
Mela, die Couchmaße sind Außenmaße, die Tiefe ist geschätzt 60?
Ich wünsche euch einen schönen Tag!
Maike
 
AW: offene Küche, die erste eigene!

Huhu,
ich hab mich heute nochmal mit dem Essplatz an der Insel beschäftigt. Es gibt ja, so wie ich das sehe folgende Möglichkeiten:
- zwei Plätze nebeneinander, so dass man in die Küche guckt mit einer quasi überstehenden Arbeitsplatte
- eine überstehende Arbeitsplatte rechts oder links, das hätte den Vorteil das man auch über Eck sitzen könnte, oder? Wie viel kann man denn da überhaupt "schweben" lassen ohne Stütze?
- überstehende Arbeitsplatte rechts oder links, aber dann am Ende geschlossen, so dass man dort gegenübersitzt, dann erledigt sich die Frage nach einer Stütze.

Habt ihr da Erfahrungswerte? Was ist günstig, was eher ungünstig?

Da sich unsere Statiker noch nicht zurückgemeldet hat, bin ich mit der Esstischsache noch nicht weitergekommen. Da heisst es also gerade abwarten... (Das kann ich ja besonders gut *knirsch*
Liebe Herbstgrüße,
Maike
 
AW: offene Küche, die erste eigene!

Wie man am besten sitzt, hängt ja auch stark von der Küchenplanung ab. Ich finde jedenfalls jede Lösung, wo man möglichst über Eck etc. sitzt besser, als nebeneinander, zumindest, wenn man diesen Platz auch intensiv zum Essen etc. nutzen möchte.


Ich habe mal einen Versuch mit der Küche planunten gemacht :kiss:

Ganz planunten Kochfeldzeile in niedrigerer Arbeitshöhe umrahmt von den beiden Hochschränken. Rechts und links noch Platz für Dekoratives.

Davor eine Insel mit 135° Winkel.

Der planlinke Teil in höherer Arbeitshöhe mit
- 30er Auszugsunterschrank für Kleinkram
- 60er GSP
- 90er Spülenschrank, damit man statt 1 Becken und Abtropfe einfach 2 große Becken wählen kann. Abtropfen können Sachen auch in einem Becken, sie sind damit aber gleich etwas aus der Ansicht von Ess-/Wohnzimmer entfernt.
Im oberen Auszug dann noch Platz für eine kleine Putzreling, der untere Auszug ist Stauraum:



Dann Absenkung Arbeitsfläche wieder auf das niedrigere Niveau. Der 135° Winkel könnte auch offen sein und einen Handtuchhalter etc. aufnehmen.

Nach der Ecke gleich der 30er Müll unter der APL und dann noch ein 100er Auszugsunterschrank. Das geht dann in die angesetzt Tisch-APL über.

So können "gross" und "klein" gemeinsam an der Insel arbeiten. Auch für "klein" ist die höher liegende Spüle sehr angenehm und liegt gleich neben dem Arbeitsbereich von "klein".

Ich denke, so könnte man auch vom Sofa noch einen guten Blick in den Garten haben.

Der Essbereich kann dann dahin, wo er gedacht ist.

Wie auch immer ... auch diese Variante dürfte die 10000 Euro sprengen.:kiss:
 

Anhänge

  • maike_20131023_kb1-alt_Ansicht1.jpg
    maike_20131023_kb1-alt_Ansicht1.jpg
    102,4 KB · Aufrufe: 147
  • maike_20131023_kb1-alt.POS
    15 KB · Aufrufe: 130
  • maike_20131023_kb1-alt.KPL
    4,1 KB · Aufrufe: 163
  • maike_20131023_kb1-alt_Grundriss.jpg
    maike_20131023_kb1-alt_Grundriss.jpg
    60,9 KB · Aufrufe: 146
  • maike_20131023_kb1-alt_Ansicht6.jpg
    maike_20131023_kb1-alt_Ansicht6.jpg
    165,2 KB · Aufrufe: 156
  • maike_20131023_kb1-alt_Ansicht5.jpg
    maike_20131023_kb1-alt_Ansicht5.jpg
    96 KB · Aufrufe: 158
  • maike_20131023_kb1-alt_Ansicht4.jpg
    maike_20131023_kb1-alt_Ansicht4.jpg
    109,3 KB · Aufrufe: 155
  • maike_20131023_kb1-alt_Ansicht3.jpg
    maike_20131023_kb1-alt_Ansicht3.jpg
    133,9 KB · Aufrufe: 155
  • maike_20131023_kb1-alt_Ansicht2.jpg
    maike_20131023_kb1-alt_Ansicht2.jpg
    103,7 KB · Aufrufe: 155
Zuletzt bearbeitet von einem Moderator:
AW: offene Küche, die erste eigene!

Liebe Aufräumerin,
wow, das ist ja der Hammer! Da hast du ja eine super Traumküche geplant!
Ich bin ganz hin und weg. Vielen Dank für diese Planung

Leider gibt es zwei Abers: Zum Einen das Budget, daran lässt sich leider nicht rütteln (unser Dach ist gerade 10000 Euro teurer geworden als geplant, damit sind alle Puffer weg).
Und, nenn es unflexibel, aber ich will wenn es irgendgeht die Küche in den Raum mit den Fenstern zum Garten und das Wohnzimmer in den Raum mit den Türen. Wir verbringen sehr viel zeit im Wohnzimmer, da will ich einfach den direkten Gartenzugang haben.
Wenn die Küche nicht für mein Haus konkret wäre, wäre das meine Traumküche. Aber so... hmpf;( Ich brauche auf jeden Fall eine günstigere Lösung...

Liebe Grüße und einen schönen Tag!
Maike
 
AW: offene Küche, die erste eigene!

Halloooo,
so ich muss mal diesen neuen Thread wieder hervorkramen. Bei uns war ein wenig Pause, alles verzögerte sich ewig, aber jetzt können wir uns endlich wieder der Küchenplanung widmen. Und es ist jetzt auch schon ein bißchen konkreter.

Bei unseren Besuchen diverser Küchenstudios haben wir uns in unserer Vorstellung immer ungefähr an Melas Planung gehalten, da die für uns ziemlich gut passt.
Wir bleiben dabei, dass die Küche in diesen Raum kommt, das Esszimmer kommt auf jeden Fall in den dafür vorgesehen Raum planrechts unten.

Soviel also zu den Eckdaten. Wir hatten nun auch schonmal überlegt, ob man an die Insel irgendwie rechtwinklig noch etwas "anbauen" könnte um mehr Platz zum Essen im Alltag zu haben?
Achso, und unser Budget hat sich zwischenzeitlich auf 14000 erhöht :-)

So. Und jetzt kommen wir zum Konkreten. Wir haben uns nämlich verliebt. Ein Bild von der Küche seht ihr unten.

Aaaaaaber: Jetzt hat die Küche auf jeder Front ja so einen Rahmen. Das sieht hübsch aus, wenn eine Küche nur Türen hat, aber nicht, wenn man flache Auszüge möchte, oder? Der Verkäufer bot für dieses "Problem" Innenauszüge an. Die erscheinen mir aber auf den ersten Blick total unpraktisch, dann muss ich ja immer zwei Schubladen aufmachen?! Wirkt irgendwie bekloppt auf mich. Bedeutet dass dann, dass ich mich besser nach "glatten" Fronten umgucken sollte? Was sagt ihr? Wie machen das denn andere Leute mit solchen Fronten??

Nächste Sache, die Küche hat ja so breite Seitenteile. Die finden wir seeeeehr toll und wollen sie auf jeden Fall haben. Dann passt der Kühlschrank/Backofenschrank aber nicht an die geplante Stelle (Planunten rechts). Was denkt ihr darüber in planoben links zu stellen? Dann müsste die Spüle ja nach planunten rechts.

so, und drittens und letztens:
Die Küche hatte 2 Spülbecken. Das finde ich genial, aber dann kann darunter ja quasi kein Schrank, ne? Ist das dann sinnvoll oder vergebe ich mir damit zu viel Platz?

Leider habe ich, trotz erneuten Versuchen immernoch keine Möglichkeit gefunden den Alnoplaner auf meinem Mac ans Laufen zu bringen.
Wäre es hilfreich, wenn ich mal handschriftlich rummale, was ich mir mit den Schränken gedacht hab?

Liebe Grüße,
ich würd mich freuen wenn ihr mir weiter weiterhelft:-)
Maike
 

Anhänge

  • Foto.jpg
    Foto.jpg
    71,6 KB · Aufrufe: 186
Zuletzt bearbeitet von einem Moderator:
AW: offene Küche, die erste eigene!

Meine Rahmenfronten-Echtholzküche im Raster 1-1-2-2.

Die 80er Auszüge sind frontenmäßig optisch geteilt in 40-40 so wie eben auch die 40er Schränke.


------------------

2 Spülen können Sinn machen, z. B. in der Zeile und auf einer Arbeits/Spüleninsel. Doppelkeks hat das in ihrer Küche. Auch unter Spülen können Schränke mit Auszügen, z.b. 2-2-2. Da ist der obere dann sehr verkürzt, der mittlere noch leicht verkürzt, der unterste voll nutzbar.

Allerdings wird das Aufpreis kosten und Holzfronten sind auch nicht soooo günstig.

Und ja, es würde helfen, wenn du deinen gedachten Plan maßstabsgerecht und kurz beschriftet zu Papier bringen würdest :rose:
 
Zuletzt bearbeitet von einem Moderator:
AW: offene Küche, die erste eigene!

verlinkst du die Planung, die du meinst?

Warum sollte es die Front nicht für einzelne Schubladen geben? Das sieht auch sehr gut aus.:-)

Edit: ach, jetzt verstehe ich du meinst, dass die oberen glatt sind wie bei Kerstins Küche? Aber es passt und sieht gut aus.....
 
AW: offene Küche, die erste eigene!

Man muss sich halt auch im Klaren sein, dass das Putzen der Fronten aufwändiger ist, weil man diese Rahmenecken auch vom Staub befreien muss. Eine glatte Fläche hat da so ihre Vorteile ;-)
 
AW: offene Küche, die erste eigene!

hui, ihr seid aber schnell!
Planung hab ich verlinkt.
2 Spülbecken: Ich habs bescheuert beschrieben, ich meinte so 2 nebeneinander, also anstatt der Abtropffläche ein Becken. Das hätte dann ja zur Folge, dass das die Abtropfe nicht über den GSP könnte.

Fronten: Kerstin, das ist ja klug mit der Optik der 40er Schränke! Bei dir sehen die 1er Auszüge ja auch gut aus. da müsste ich nochmal fragen, wie sie bei dieser Küche aussehen würden.
Ohje, und ans Putzen hab ich dabei nun noch gar nicht gedacht! Das muss ich auf jeden Fall nochmal überlegen... Ich hasse putzen;-)

und: ich mach mich gleich ans zeichnen!
 
AW: offene Küche, die erste eigene!

2 Becken nebeneinander statt Becken und Abtropfe empfehlen wir oft. Ein zweites Becken ist multifunktional nutzbar. Geschirr kann da genauso gut abtropfen, man kann es aber auch als 2. Becken nutzen. Siehe auch die Ausführungen zu meiner Planung in Beitrag 26 ;-) ;-)
 
Zuletzt bearbeitet von einem Moderator:
AW: offene Küche, die erste eigene!

örgs. Entschuldigung. Du hast natürlich Recht, da stand schon alles... Also müsste es "nur" über diesen Auszügen planen und logischerweise nicht über der GSP.
 
AW: offene Küche, die erste eigene!

Maike,

die ausgesuchte Front gefällt mir gut. Ist diese aus Vollholz? Die breiten Wangen sehe gut aus, jedoch frage ich mich, ob sie bei einer Höhe von 212 cm immer noch so gut wirken. Wenn die Schiebetür nur 80 cm breit wird - dies ist ein ganz normales Maß für Zimmertüren - dann wären die Wangen zu verwirklichen.

Ich habe einmal versucht, deine Vorstellung im Alno umzusetzen. Wenn du dich für 2 Spülbecken entscheidest, so entfällt der MUPL und die Arbeitsfläche zwischen Spüle und Herd beträgt nur 60 cm. Um es zu verdeutlichen und der Alno nicht viele Holzfrontfarben im Angebot hat, habe ich die Wangen in Arbeitsplattenfarbe ausgeführt.

Die Insel um 90 Grad gedreht und verlängert. Nachteil hierbei ist, das zumindest einer mit dem Rücken zum Fenster sitzt.
 

Anhänge

  • Maike_Mela_Var2_HS.jpg
    Maike_Mela_Var2_HS.jpg
    73,8 KB · Aufrufe: 146
  • Maike_Mela_Var2.KPL
    3,9 KB · Aufrufe: 160
  • Maike_Mela_Var2.POS
    10,4 KB · Aufrufe: 127
  • Maike_Mela_Var2_Draufsicht.jpg
    Maike_Mela_Var2_Draufsicht.jpg
    75,1 KB · Aufrufe: 143
  • Maike_Mela_Var2_Grundriss.JPG
    Maike_Mela_Var2_Grundriss.JPG
    53,6 KB · Aufrufe: 147
  • Maike_Mela_Var2_Insel.jpg
    Maike_Mela_Var2_Insel.jpg
    67,1 KB · Aufrufe: 157
  • Maike_Mela_Var2_Zeile.jpg
    Maike_Mela_Var2_Zeile.jpg
    61,4 KB · Aufrufe: 156
AW: offene Küche, die erste eigene!

Hi Mela,
jap die Front ist Vollholz. Ich glaube deswegen finden wir sie so toll...
Vielen Dank für deine neue Planung. Die Insel zu drehen wäre auf jeden Fall eine Idee. Mein Mann findets super weil "man dann ja auch den Fernseher sehen kann". Ich muss erstmal noch drüber nachdenken;-)
Zum Müll unter der Arbeitsplatte . Kann man den nicht auch in den Schrank links neben dem Spülschrank machen? Ist das doof?
Deine Bedenken mit der Höhe und den schönen breiten Wangen sind richtig... wir könnten ja auch einen 1,44erSchrank nehmen, oder? Damit sieht es nämlich immer so hübsch aus. Dann müsste ich auf den Hängeschrank daneben verzichten, aber naja. Das wäre ja zu verschmerzen.
Ich habs jetzt nochmal sehr dilettantisch im IkeaPlaner zusammen geklickt (händisch malen sah auch nicht besonders aus...), wie ich es dachte.
Die Insel hab ich nicht reingebaut, weil es mir jetzt erstmal um die Zeilen an den Wänden geht.
Achso, die Schiebetür: Die ist auf jeden Fall breiter... Ich müsste morgen mal ganze genau nachmessen, aber ich habe so 85 + Rahmen im Kopf. Die Tür existiert schon, sie ist ganz neu, ein Relikt dieses Altbaus und ich möchte sie superberen erhalten...

Also,
hier meine Vorstellung
1: Kühlschrank
2: Backofen (Lücke als Wangenersatz)
3: Kochfeld
4: Schrank (Müll?)
5: GSP
eins.jpg

6: Schrank
7: Spülenschrank

zwei.jpg

Ich glaube, es sähe hübsch aus, wenn man die breiten Wangen auch vom Wohnzimmer und so sieht... daher hab ich den hohen Schrank jetzt nochmal an die andere Wand gestellt.
Was denkt ihr?
 

Anhänge

  • zwei.pdf
    95,1 KB · Aufrufe: 196
  • eins.pdf
    109,9 KB · Aufrufe: 511
AW: offene Küche, die erste eigene!

Folgende Nachteile hat meiner Meinung nach deine Planung:

- Kochfeld direkt neben der Vollholzwange
- Spülmachine im Laufweg zwischen Herd und Spüle
- Spüle direkt am Rand

Die Sicht auf den Fernseher würde mich direkt von der Position der zuletzt von mir geplanten Insel abhalten. Ich finde gemeinsames Essen sollte der Kommunikation dienen. Ist aber nur meine persönliche Meinung.

Könntest du dir vorstellen, dass die Spüle und der GSA auf die Insel wandern? Denn du hast geschrieben:
Sanitäranschlüsse : vollkommen variabel


Edit:
Wie breit sind eigentlich die Wangen?
 
Zuletzt bearbeitet:
AW: offene Küche, die erste eigene!

hmhm. verstehe. Kochen an der Vollholzwand ist natürlich unschön. Stört die Spülmaschine denn zwischen Herd und Spüle? Ich meine die steht ja eh höchst selten auf, oder?
Spüle und Gsm auf der Insel - Klar. Wir kommen mit den Leitungen aus dem Keller... ist egal wo ich durchbohre;-)
Dann wären allerdings die 2 Becken ein Muss, damit da meine morgendliche Kaffeetasse reinwandern könnte.
Tv bei Essen - jaaaaa, ich weiß. Geht mir ähnlich. Aber der Mann...
Wie breit die Wangen sind, weiß ich nicht genau. Da müsste ich dem Verkäufer nochmal mailen, mach ich morgen!
 
AW: offene Küche, die erste eigene!

Kerstin schreibt immer, dass bei Kochaktionen die Tür der GSA aufsteht und sie so das benutzte Geschirr direkt einräumen kann.

Momentan habe ich die GSA noch im Laufweg und mir bereits einige Male das Schienbein gestoßen, wenn GöGa am ausräumen war und ich nicht aufpasste.
 
AW: offene Küche, die erste eigene!

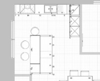
zur Insel:
Was sagt ihr zu so einer Lösung?
 
Zuletzt bearbeitet von einem Moderator:

Ähnliche Beiträge

Neff Hausgeräte Ballerina Küchen Blum Bewegungstechnologie Weibel - Intelligente Küchenlüftung

Neff Spezial

Blum Zonenplaner

Weibel Abluft-Tuning

Weibel Abluft-Tuning
Zurück
Oben