Nun traue ich mich auch!

Eichhorn

Mitglied
Beiträge
18
Hallo liebes Forum!
Dass ihr ganz toll seid, wisst ihr bestimmt schon, trotzdem von mir auch ein :top:
Könntet ihr mir auch helfen? Ich bin langsam am Verzweifeln...
Wir sind vor ein paar Jahren in unser Reihenäuschen umgezogen, aber die Küchenmöbel sind noch die neuen - eine Pino Küche. Es fällt schon langsam alles auseinander...

Nun folgt der Grundriss vom Erdgeschoss. Die rot markierten Wände haben wir entfernt, also befindet sich dort kein GästeWC mehr, die Küche ist also "größer".
grundriss Erdgeschoss umbau.jpg
Und hier ein Screenshot meiner Überlegung. Planlinks sollte sich eine Glas-Schiebetür befinden, also kommt diese Wand (z.T.) auch weg.
grundriss küche.PNG
Anghängt sind noch paar Vollbild-Ansichten.
vonoben.jpgplanlrechtsunten.jpgplanlinks.jpg
Ich hoffe das klappt jetzt mit den Alno -Dateien.
Anhang anzeigen Flur wand weg.POS Anhang anzeigen Flur wand weg.KPL
Anhang anzeigen Flur wand weg schraenke.POS Anhang anzeigen Flur wand weg schraenke.KPL
Wir hatten auch die Idee in die Wand planoben einen Durchbruch zu machen, es ist aber eine tragende Wand, das wäre teuerer. Wenn ihr aber der Meinung seid, dass dadurch eine bessere Küche möglich wäre, dann machen wir es ;-)
Die Geräte müssten in den 10T inklusive sein, außer Kühlschrank, den haben wir erst vor Kurzem gekauft. Nun fällt mir nichts mehr ein, also fragt mich. Ich bin oft vor dem PC, kann schell antworten.
Vielen, vielen Dank,
Sonja , der Eichhorn
PS: Ja, wir sind wirklich so groß! ;-)


Checkliste zur Küchenplanung von Eichhorn

Anzahl Personen im Haushalt : 4
Davon Kinder? : 2
Körpergrössen aller Hauptbenutzer (wegen Arbeitshöhe ) in cm : 193/183
Art des Gebäudes? : Bestandsbau, (kleinere) Umbauten möglich
Brüstungshöhe des Fensters (in cm) : 110
Fensterhöhe (in cm) :
Raumhöhe in cm: : 250
Heizung : Heizkörper wie im Grundriss
Sanitäranschlüsse : vollkommen variabel
Ausführung Kühlgerät? : Stand-Alone bis 75 cm Breite
Kühlgerät Größe : bis 175 cm Höhe
Ausführung Tiefkühl (TK)-Gerät : Im Kühlschrank ab 3 Schubladen unten
Dunstabzugshaube? : Abluft
Hochgebauter Backofen ? : Ja
Hochgebauter Geschirrspüler ? : wenn möglich
Kochfeldart? : Induktion
Kochfeldbreite ca. (in cm)? :
Spülenform: : 1,5 Becken mit Abtropffläche
Weitere geplante Heißgeräte :
Küchenstil? : modern
Sitzmöglichkeit in der Küche / im Küchenbereich als : Überstehende Arbeitsplatte
Sitzmöglichkeit: Für wieviel Personen? : für 2 Personen
Sitzmöglichkeit: Tisch - wenn gesonderter Tisch oder offene Küche : Keine
Gewünschte o. vorhandene Tischgröße : 200
Wofür soll der Sitzplatz in der Küche genutzt werden? Wie häufig? : Frühstück, Essenvorbeeiten
Welche Arbeitshöhe ist angedacht (in cm)? :
Was steht auf der Arbeitsplatte oder soll dort stehen? : Kaffeevollautomat, Küchenmaschine, Toaster, Brotbehälter, Obstschale
Welche weiteren Küchenmaschinen müssen in der Küche untergebracht werden? :
Was soll in der Küche außer den Standards untergebracht werden? : Sonstiges (evtl. im Beitragstext benennen)
Welchen Stauraum gibt es sonst noch? : Geschirr/Gläserschrank im Wohn-/Esszimmer, Keller
Was/wie wird gekocht? (Alltagsküche, Menüs, Snacks usw) : Alltagsküche
Wie häufig wird gekocht? : (fast) täglich 1x warm
Wird alleine gekocht? Oder auch gemeinsam? Mit und für Gäste? : alleine, 1 x Woche zu Zweit
Was stört an der bisherigen Küche und was soll die neue Küche unbedingt können? Warum? : Die Hochschränke, keine Sitzmöglichkeit zum Schnippeln
Preisvorstellung (Budget) : bis 10.000,-
 

Anhänge

  • grundriss Erdgeschoss alt.jpg
    grundriss Erdgeschoss alt.jpg
    42,1 KB · Aufrufe: 222
Zuletzt bearbeitet von einem Moderator:
AW: Nun traue ich mich auch!

Hallo Sonja,
mir gefällt deine Planung (wobei *größer* ja leicht gehetzt ist ;-)), sehe ich das richtig, dass die Glasbausteinwand eigentlich die Schiebetür Darstellung soll?

Den Kühlschrank würde ich vielleicht ganz in die Ecke stellen oder aber noch überbauen lassen, wobei ich nicht weiß, wie das bei 70/75 cm breiten Geräten ist, wäre wohl eine Sonderlösung :rolleyes:.

Durchbruch könnte natürlich eine Alternative sein, aber dann sollte zumindest an der planrechten Wand nicht viel davon stehen bleiben (einen Sturz kann man zur Not umbauen), damit man die Küche mehr ins WZ *ziehen* kann.
 
AW: Nun traue ich mich auch!

:welcome:

schöne komplette Vorstellung :2daumenhoch: - so mögen wir das.

  • Was sind die genauen Abmessungen eures Kühlis? Türöffnungsrichtung? Farbe?
  • Wie soll die Schiebetür laufen? In der Wand? Aussen? oder in der Küche?
  • Für Sitzplätze an denen gegessen werden soll muss man minimum 50cm an einer Bar einrechnen .. - das geht aber nur mit gutwilligen Spargeln oder Kindern. Auch nach hinten benötigt man minimium 60cm sonst kann man noch nichtmal aufstehen.
  • Die Sitzplätze klauen Dir natürlich kräftig Stauraum.
  • Deine Insel ist so klein, das dürfte schwierig werden.
 
AW: Nun traue ich mich auch!

ich habe Deinen Entwurf mal etwas angepasst, so dass man sich in dem Raum auch noch bewegen kann (Durchgänge sollte minimum 90cm breit sein) - das mag zwar vergleichsweise Langweilig daherkommen, dafür hat es den Vorteil zu funktionieren ;-)



eichhorn10.JPGeichhorn14.jpgeichhorn15.jpg

Die genauen Masse vom Kühli fehlen noch - deshalb nur summarisch:
60cm Vorratsschrank, Kühli, 60cm BO-Hochschrank
offenes Fach;
60cm Auszüge - darüber z.B. Glastablare an der Wand - tote Ecke
eichhorn12.jpg

100cm Kochfeldunterschrank
30cm Flaschen / Gewürze
Darüber Klapptürchenhänger mit Flachschirmhaube
eichhorn11.jpg
30cm Brettchen & Roste
60cm Spüle/Müll
60cm GSP
50cm Ansetztisch - dahinter noch 70cm Platz bis zur Wand.
eichhorn13.jpg
 

Anhänge

  • kf_eichhorn_nn_v1.POS
    10,2 KB · Aufrufe: 193
  • kf_eichhorn_nn_v1.KPL
    4,1 KB · Aufrufe: 178
AW: Nun traue ich mich auch!

Hallo Vanessa,
in der Liste steht:
Ausführung Kühlgerät? : Stand-Alone bis 75 cm Breite
Kühlgerät Größe : bis 175 cm Höhe
Ich denke mal, da hat Sonja die Maße so eingetragen... wobei dann noch die Tiefe fehlt ;-)
Bei der Breite würde ich ihn pragmatisch in die Ecke stellen :cool:

WENN die Heizung sich verlegen lässt (kommt billiger als ein Durchbruch), dann würde mir die V1 auch besser gefallen.
 
AW: Nun traue ich mich auch!

Super! Danke :rose:
Ich antworte allen später, muss nun meinen Sohn abholen.
Ich stell nur kurze meine andere Überlegung mit Durchbruch rein.
 

Anhänge

  • grundriss durchbruch.PNG
    grundriss durchbruch.PNG
    75,3 KB · Aufrufe: 203
  • durchbruch.jpg
    durchbruch.jpg
    47,6 KB · Aufrufe: 225
  • durchbruch2.jpg
    durchbruch2.jpg
    41,6 KB · Aufrufe: 198
  • durchbruch ver1.POS
    7,6 KB · Aufrufe: 178
  • durchbruch ver1.KPL
    4,1 KB · Aufrufe: 180
  • Heizung.jpg
    Heizung.jpg
    41,3 KB · Aufrufe: 222
AW: Nun traue ich mich auch!

Hallo, nun bin ich wieder da:

@Angelika95
Die Glasbausteinwand soll tatsächlich eine Schiebetür darstellen.
Die Kühschrankmaße sind B:60 cm / H:188 cm / T:67 cm.

@Nice-nofret
Die Front des Kühlschrank ist Edelstahl. Ich überlege aber immer mehr, doch einen Einbaukühlschrank zu holen. Wäre dann leichter unter zu bringen.
Die Schiebetür wäre auf jeden Fall draußen, egal ob die Wand planlinks oder planoben durchgebrochen wird.
Ja, das mit Sitzplätzen sehe ich ein :(, ich selbst brauche aber auf jeden Fall eine Sitzmöglichkeit, da ich krankheitsbedingt nicht lange stehen kann.

Dein Plan gefällt mir sehr gut, nur die Oberschränke über dem Herd will ich nie wieder -wie oft haben ich oder mein Mann uns damit am Kopf wehgetan ;-)
Ich habe es dementsprechend geändert und die Heizung ist noch da. Es sind dann weniger Schränke, ich habe aber viele Vorräte sowieso im Keller. Und es wäre mehr Geld für höherwertige Geräte. Was hälst du davon?

Danke nochmals, es würde mich freuen mehr von euch allen zu hören,
Sonja
 

Anhänge

  • grundriss v2.PNG
    grundriss v2.PNG
    27 KB · Aufrufe: 194
  • heizung.jpg
    heizung.jpg
    37,2 KB · Aufrufe: 202
  • herd.jpg
    herd.jpg
    41,7 KB · Aufrufe: 214
  • kf_eichhorn_nn_v2.KPL
    4,1 KB · Aufrufe: 174
  • kf_eichhorn_nn_v2.POS
    9,7 KB · Aufrufe: 178
  • tatale.jpg
    tatale.jpg
    26,3 KB · Aufrufe: 205
  • tür.jpg
    tür.jpg
    44,1 KB · Aufrufe: 207
AW: Nun traue ich mich auch!

Wo ist Dein GSP gelandet? Warum hast Du ihn rausgeworfen und warum hast Du dort jetzt eine Lücke?

Die Hänger kann man natürlich einfach weg lassen und dafür eine Kopffreihaube hängen ;-)
 
AW: Nun traue ich mich auch!

Und statt dem Heizkörper könnte man eine Naber Sockelheizung installieren. Die wird im Sockel der Unterschränke eingebaut und statt des Heizkörpers an die vorhandenen Heizungsrohre angeschlossen.
 
AW: Nun traue ich mich auch!

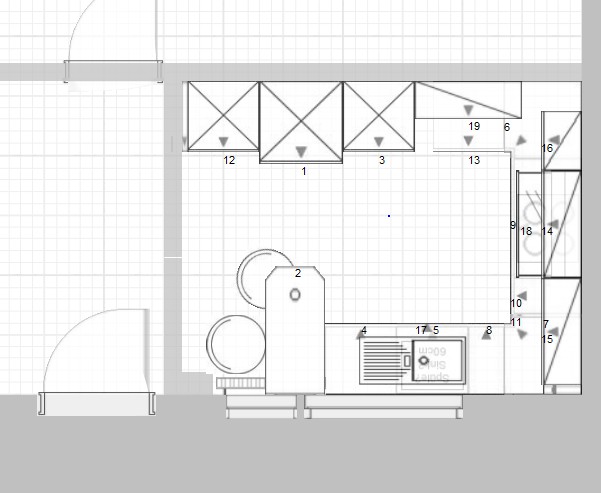
Hallo!
Nun, nach zwei (schlaflosen) Nächten und Träumen von offener großzügiger Küche, gebe ich es auf und habe folgende Idee: ganz normaler Zweiteiler. Keine Sitzmöglichkeit und die Sockelheizung wie von Kerstin vorgeschlagen.

grundriss zweizeiler.PNG

Die Schiebetür ist mittig und von da an entgegen der Uhrzeigerrichtung:
Blende,
60er Schrank (Töpfe etc),
Herd, auf 90 er Schrank (reicht das? nice-nofret hatte in Ihrem Plan 100er vorgeschlagen),
30er Gewürze und Flaschen,
60er Spülenschrank und Müll
60er GSP.
Hier müsste dann eine überlange Arbeitsplatte stehen (ganze 18 cm), geht das? Da brauche ich sowieso die Lüftungsschlitzer für Heizung, oder?
Stehen die Spüle und die Herdplatte zu nah an einander? Die Herdplatte könnte man vielleicht weiter planlinks verschieben? Oder den 30er Schrank an die Wand und den 60er zwischen Herd und Spüle? Und außerdem wäre es praktischer die Töpfe direkt aus dem GSP in den 60er Schrank in der Mitte zu verstauen.
v8 fenster.jpg
Dann gegenüber dem Eingang an der Wand entlag Regalbrett (Arbeitsplatte) 26 cm breit (die Breite des Kamins)

v8 wand2.jpg

Blende,
60er Seitenschrank mit Backofen ,
30er Unterschrank , 90 er Unterschrank, nur Auszüge, da ich in den oberen Auszug den Toaster verstauen wollte, darüber 120 er Regal (besitze ich schon), darüber 120er Staubschutz (gibt es so was?, Alno hatte es nur bis 100cm)
Kühlschrank, darüber Oberschrank (leider zu hoch),
60er Seitenschrank für Vorräte,
Blende.
v8 wand.jpg
Diese Wand würde ich gerne einkoffern, was hält ihr davon?

Und noch die Übersicht von oben:

v8 totale.jpg

Ich freue mich sehr auf Eure Kommentare,
lieben Gruß,
Sonja
 

Anhänge

  • kf_eichhorn_nn_v8 zweizeiler tausch.KPL
    4,1 KB · Aufrufe: 162
  • kf_eichhorn_nn_v8 zweizeiler tausch.POS
    10 KB · Aufrufe: 176
AW: Nun traue ich mich auch!

ich würde Spüle und Herd tauschen - dann kann die Uebertiefe auch von maximal vielen Auszügen genutzt werden und gibt üppig zusätzlich Stauraum.

Ventilationsschlitze braucht es keine in der Arbeitsplatte - die Sockelheizung bläst die warme Luft nach vorne ;-)
 
AW: Nun traue ich mich auch!

Liebe Vanessa,
vielen Dank für Deine Antwort!
Du meinst also so:
planunten_v10.jpg

Der GSP steht dann vor dem Eingang, wenn der offen ist kommt keiner rein.
Die Ecke links im Bild (plan unten rechts) sieht so leer aus. Hast du eine Idee dafür?
Du meinst auch ich soll dort übertiefe Unterschränke nehmen, im Plan habe ich normale Unterschränke genommen und nur die Arbeitsplatte vergößert. Geht das überhaupt so?
Sind sie übergroßen Schränke viel teuerer?
Danke nochmals!
totale_v10.jpg

Sonja
 

Anhänge

  • kf_eichhorn_nn_v10.POS
    10,2 KB · Aufrufe: 166
  • kf_eichhorn_nn_v10.KPL
    4,1 KB · Aufrufe: 158
AW: Nun traue ich mich auch!

Deine Küche hat eine Breite bei der eine U-Küche knapp Sinn macht, es gäbe etwas mehr Stauraum und deutlich mehr Arbeits- und Abstellfläche. Ich würde mir das nochmal überlegen.

Der GSP steht zwar in den Raum (60cm), man kommt aber bei Deiner Küchenbreite auch bei offenem GSP noch dran vorbei.

Uebertiefe Unterschränke bringen mehr als 1/3 Stauraumgewinn und kostet je nach Hersteller unterschiedlich viel - bei Aufschlägen von weniger als 36% kaufst Du billigen Stauraum, bei höheren Aufschlägen - natürlich nicht. Deine Küche ist aber nunmal nicht besonders üppig mit Stauraum bedacht, von daher kann Dir MEHR sicherlich nicht schaden ;-)
 
AW: Nun traue ich mich auch!

Danke für Deine Antwort Vanessa!
Ich werde in nächsten Wochen ein paar Küchenstudios abklappern und melde mich dann wieder.
Liebe Grüße,
Sonja
 
AW: Nun traue ich mich auch!

Bei dieser Seitengestaltung:
72216d1330078240-nun-traue-ich-mich-auch-v8-wand.jpg


würde ich den Vorratsschrank ganz rechts setzen, dann Backofenhochschrank, dann die Unterschränke und links den Kühlschrank dann als echten Standalone.

Dann auf jeden Fall bei dem Unterschrank eher Raster 1-1-2-2, denn man hat meist nicht soviel für 3-rasterige Auszüge --> https://www.kuechen-forum.de/forum/themen/38er-auszugshoehe-wie-nutzt-ihr-die.10759/

Was ich hier schade finde, ist, dass du auf den Sitzplatz verzichtest, der dir doch offensichtlich wichtig ist.
 
AW: Nun traue ich mich auch!

Hallo an alle!

Nach langer Zeit melde ich mich wieder aus der Versenkung.
Es hat sich schon einiges in unsere Kücheplanung geändert, deswegen weiß ich nicht, ob ein neuer Thred nicht besser wäre?

Ich füge erstmal einen neuen Grundris ein: wir haben uns entschieden die Wand zu Wohnzimmer durchzubrechen, es wird der einzige Zugang zu der Küche bleiben, die Wand planlinks zum Flur wird geschlossen.
Grundriss.JPG
Außerdem möchten wir nun einen integrierten Kühlschrank und (erstmal) keine Abzugshaube. Die Heizung planen wir als Sockelheizkörper.

Das erste Küchenstudio hat uns folgenden Vorschlag unterbreitet:
Von dem Wanddurchbruch aus im Uhrzeigersinn:

Blende (oder es wird eingekoffert)
60er Seitenschrank 60er Kühlschrank/TK
60er Seitenschrank mit BO
60er Mikro und Oberschrank
Seitenschrankwand.jpg

tote Ecke
50er Auszüge 1-1-2-2 (hier hat sich der KFB verrechnet, nach meinen Maßen passt da nur ein 40er US)
60er vollintegrierte GSP
60 Spüle mit Mülltrennung
50er Auszüge 1-1-2-2 (hier auch nur ein 40er Unterschrank )
tote Ecke
Spüle.jpg
50er Auszüge 1-1-2-2
100er Auszüge und Herd
50er Auszüge 1-1-2-2
Blende
Kochfeld.jpg

Es ist eine Schüller "pienza" Schichtstoff -Front, PGR 3 K111G* Brillantweiß hochglanz, Arbeitsplatte Schichtstoff Nussbaum,

Die Geräte sind alle von Neff , und zwar folgende:
Backofen
Neff - Mega EP 1542 N Elektro-Einbauherd Pyrolyse Edelstahl
Kochfeld
Neff - TI 8383 N FlexInduction GK-IndukSchalter Autarkes Elektro-Kochfeld mit integrierten Kochstellenreglern
GSP
Neff - GX 968 Großraum-Geschirrspüler 60 cm Vollintegrierbar
Kühl-TK-Kombination
Neff - K 345 Integrierbare VitaFresh Kühl-/Gefrier-Kombination CoolDeLuxe Integrierbar,Flachscharnier

Die Spüle (BLANCOCLARON 340-U | BLANCO) und die Armatur sind von Blanco .


Draufsicht.jpg
Der (überaus nette) KB machte uns den Preis von 10.490,-€, der Computer spuckte davor (ich habe es gesehen, der KB hat nicht gesagt) etwas über 13.000€.
Dieser Angebot scheint mir in Ordnung zu sein.

Ich füge noch die Bilder aus dem Kuchenstudio, die Fenster sind dort falsch eingezeichnet. Die Fensterbankunterkante ist 115cm hoch.
Edit: Bild raus, da mit Namen :-[



Wie findet ihr die Aufteilung? Was ich vermisse, ist ein hochgestellter GSP und ein Sitzplatz. Der Esstisch wird zwar direkt gegenüber sein, ich hätte aber gerne etwas Kommunikatives zum Schnippseln ;-)

Danke und lieben Gruß,
Sonja
Anhang anzeigen kf_eichhorn_nn_v1 wanddurchbruch.POS
Anhang anzeigen kf_eichhorn_nn_v1 wanddurchbruch.KPL
 
Zuletzt bearbeitet:
AW: Nun traue ich mich auch!

Das sieht doch auf den ersten Blick schon mal gut aus...

Frage....kein SBS mehr?
Hat es stauraumtechnische Gründe? Ansonsten würde ich auf beiden Seiten, die schmaleren Schränke zu einem zusammenfassen (statt 2x 50 einen Hunderter)
Einen breiten Schrank kannst du leicht unterteilen, gewinnst aber an Raum...

In die Lücke neben den Hochschränken, würde ich mal andenken, einen Ulla Schrank zu nehmen? Dann kannst du dort Sachen verstecken;-)

Und der Auzug unter dem Kochfeld kann nutzbar sein, wahrscheinlich hast du nur den falschen Schrank verwendet...;-)
 
AW: Nun traue ich mich auch!

Hallo,

von dem Kochfeld wirst Du begeistert sein !!!! Habe ich auch und finde es fantastisch.:kiss:

Ullaschrank in der Ecke würde für mich einfach perfekter aussehen.:rose:

Schade finde ich, dass bei Küche kein "Müll direkt unter der APL" eingeplant wurde.:'(
Wäre doch eigentlich genug Platz, oder?
Für diesen Schrank plädiere ich, da er sehr viele Vorteile bietet.:kiss:

PS: Falls jetzt nicht gleich, soll später eine DAH kommen. Wäre da alles "vorbereitet"?
 
AW: Nun traue ich mich auch!

Hallo Tara,

angedacht war unseren, nur paar Monate neuen, Kühl/TK in die neue Küche zu integrieren, aber von der Optik gefiel es mir nicht. Deswege verzichte ich nun auf die DAH, habe aber dafür eine einheitliche Seitenschrankwand.
Ja, du hast Recht: der US unter dem Kochfeld soll auch im 1-1-2-2-Raster.
Ich sehe gerade, dass ich die Bilder aus dem Küchenstudio nicht hochgeladen habe :'(, die stecken nämlich noch im Scanner im Büro; hole ich morgen nach.

Gruß, Sonja
 
AW: Nun traue ich mich auch!

Hallo Magnolia,

ja, vor dem Kochfeld stand ich verliebt im Studio und war mehr als begeistert. Meine Hoffnung ist, dass mein Mann (der eigentlich sehr gut kochen kann) dann eben mehr Zeit in der Küche verbringt (beim Kochen, selbstverständlich;-) )

Den Ullaschrank habe ich in die neue Planung integriert (und Taras Vorschlag mit einem großen US statt zwei kleinen in der Spüle-Zeile).
Spüle.jpg

Ulla Schrank.jpg
In den 80er Spülenschrank passt jetzt auch Müll direkt unter APL, oder?

In der neuen Küche hatten wir eine Umluft-DAH. Ich war so angenervt von dem Lärm, dass ich sie schon vor zwei Jahren rausgeschmissen habe. Und ich vermisse die DAH nicht! Eines Tages werden wir uns eine gute, leise (!) Haube leisten, bis dahin mache ich Fenster auf.

Grüße, Sonja

Anhang anzeigen kf_eichhorn_nn_v2.POS
Anhang anzeigen kf_eichhorn_nn_v2.KPL
 

Ähnliche Beiträge

Neff Hausgeräte Ballerina Küchen Blum Bewegungstechnologie Weibel - Intelligente Küchenlüftung

Neff Spezial

Blum Zonenplaner

Weibel Abluft-Tuning

Weibel Abluft-Tuning
Zurück
Oben