Fertiggestellte Küche Nobilia Küche für große Leute

AW: Nobilia Küche für große Leute

Dies ist ein Mitmach-Forum, wir planen nicht FÜR dich sondern MIT dir, da wir das hier alle in unserer Freizeit als Hobby machen ;-) wenn du mit dem Alno nicht zurecht kommst, dann probiere deine Planungen einmal als Grundriss Skizze auf einem Blatt Papier aus (die üblichen Schrankbreiten kannst du von der Herstellerseite entnehmen)
, dann siehst du was amchbar ist und was nicht. Eine "richtige" Kochinsel sollte nicht weniger tief als 98cmm sein und rechts und links min. 40-50cm neben dem Kochfeld haben das würde bei einem 80er Kochfeld eine Insel von 98x160cm als Minimum machen. Rund herum sollte die Gangbreite nicht 90cm unterschreiten, besser 100cm. Das ist in deiner Küche nicht möglich,

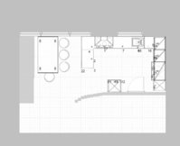
273cm Raumbreite
-98cm Insel
-90cm Gangbreite
-90cm Gangbreite
--------------------
-5cm :()

Und dann wäre da noch das Problem das dann an der hinteren Wand der SbS mit 91cm, mit genügend Abstand zur Wand, der hochgebaute BO (braucht ebenfalls genügend Abstand zur Wand, der GSP und die Spüle untergebracht werden soll.

273cm
-15cm Blende zwischen SbS und Wand damit der SBS noch komplett aufgeht (bitte die genaue erforderliche Breite der Blende einmal in der Anleitung dazu nachlesen und mitteilen.
-91cm SbS
-60cm Hochschrank BO/GSP
-1,6cm Blende wegen GSP
-1,6cm Blende wegen GSP
----------------------------------
103,8cm für die Spüle das ist nicht sehr großzügig, denn darin sind ja min noch 60cm Spüle, macht 20cm rechts und links dieser :( da ist nix mehr mit vorbereiten an der Spüle.

versuche dir das mal zu Hause nachzustellen, also 20cm rechts UND links neben deinem Spülbecken eine Wand bzw ein Hochschrank/SbS.

Wieviel Blende du dann tatsächlich über dem SbS hast udn wieviel neben dem Ullaschrank hängt von dem tatsächlichen Hersteller und eurem KFB ab, was da machbar ist und was nicht, DAS müsstet ihr dann mit dem genauer Besprechen, was an Sonderlösungen möglich ist und was nicht, und wenn ja zu welchem Preis ;-)
 
AW: Nobilia Küche für große Leute

Ist das der einzieg Essplatz im Haus oder habt ihr noch einen Essbereich?

Ich frage wegen dem Essplatz an der Insel, also sollte das dann der ausschließliche Essplatz sein in der Küche, dafür den esstisch streichen, oder noch zusätzlich? Dann ist die Frage warum direkt neben dem Esstisch noch mehr Sitzgelegenheiten sein müssen.
 
AW: Nobilia Küche für große Leute

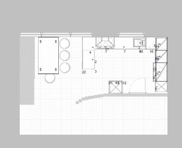
Ich habe dir das hier einmal nachgestellt im Alno

An der Wand

Blende
100cm Spülenunterschrank, oben Putzreling, unten Stauraum als 3 Raster ,mit 60er Spülbecken
1,6cm Blende
60cm hochgesetzte GSP, darüber BO
1,6cm Blende
SbS mit Hängeschrank darüber
15cm Blende


Insel: 235cmx98cm

2,5cm Wange
50cm Müll unter APL
90cm 1-1-2-2 mit Kochfeld etwas über den zweiten Unterschrank ragend (dann bleibt über dem Müll genug Platz zum schnippeln(vorbereiten)
90cm 1-1-2-2
2.5cm Wange

Rückseite:
100cm Drehtür in Hängeschranktiefe für Gläser etc
30cm Drehtür in Hängeschranktiefe
100cm Drehtür in Hängeschranktiefe

Gangbreite wäre dann um die Insel herum 87,5cm wenn man es gleich aufteilt. stelle das bitte einmal zu Hause nach, ob dir das Reicht.

Vorteile:
-große Kochinsel

Nachteil:
-geringe Gangbreiten
-wenig Platz um Spüle
-GSP in der Mitte der Zeile
 

Anhänge

  • 1.JPG
    1.JPG
    18,6 KB · Aufrufe: 210
  • 2.jpg
    2.jpg
    37 KB · Aufrufe: 220
  • 3.jpg
    3.jpg
    21,4 KB · Aufrufe: 212
  • 4.jpg
    4.jpg
    28,2 KB · Aufrufe: 223
  • 5.jpg
    5.jpg
    29,6 KB · Aufrufe: 238
  • efrike_LQ_Var3Insel.KPL
    4,1 KB · Aufrufe: 155
  • efrike_LQ_Var3Insel.POS
    9,6 KB · Aufrufe: 183
AW: Nobilia Küche für große Leute

Vermutlich reichen 15 cm SbS bis zur Wand nicht aus. Skizze Siemens -SbS:


Man müßte ausprobieren, wie das dann mit der Tür zum HWR wäre, spart vielleicht 10 cm.

Aber wesentlich, die Spüle geht so gar nicht.
 
Zuletzt bearbeitet von einem Moderator:
AW: Nobilia Küche für große Leute

Hier einmal eine Variante wo die gewünschten Sitzplätze an der Insel sind, und das Platzproblem um die Spüle geklärt ist, ABER es bleibt immer noch das Problem bei einer Insel mit den Ganbreiten vor und hinter dieser. Und der Sitzplatz ist deutlich kleiner geworden. Ebenso müsste das Wasser für die püle in die Mitte des raumes verlegt werden (evtl über den Keller möglich, dann braucht es keinen neuen Boden) und einen Zusätzlichen Wasser/Abwasseranschluss an der Hochschrankwand. - Ich habe hier also das "Planänderungen möglich" mal wörtlich genommen.
DAS müsst ihr für euch genau ausloten ob das für euch ok ist. Ich finde die Gangrebiten, zumal es sich um beide Seiten handelt zu schmal.

Hochschrankwand.
5cm Blende
60cm hochgebauter GSP (darüber wäre auch noch Platz für eine Micro hinter der Lifttür)
60cm hochgebauetr BO
SbS mit Hängeschrank darüber (es wären auch Flaschenregale oder Bücherregale möglich, das hängt von eurem Geschmack ab)
50cm Vorratsschrank mit Innenauszügen
5cm Blende

Insel:372,5x98cm

Kochseite:
2,5cm Blende
90cm Spülenunterschrank, Spüle rechtsbündig, oben Putzreling, unten Stauraum
50cm Müll unter APL
80cm 1-1-2-2
80cm 1-1-2-2 Kochfeld etwas linkslastig über beiden, damit genügens Abstand zum Sitzplatz ist
70cm überstehende APL als Sitzplatz

Rückseite:
3x100cm Drehtüreschrank in Hängeschranktiefe (hier könnte evtl auch noch ein Hängeschrank weggenommen werden um weitere Sitzmöglichkeiten zu schaffen.


Sitzplatz 70x100cm das reicht gerade für 3 Erwachsene oder 2 Erwachsene und 2 Kinder (an der "langen" Seite) für das Frühstück o.ä.
 

Anhänge

  • E1.JPG
    E1.JPG
    19 KB · Aufrufe: 188
  • E2.jpg
    E2.jpg
    29,9 KB · Aufrufe: 242
  • E3.jpg
    E3.jpg
    19,6 KB · Aufrufe: 187
  • E4.jpg
    E4.jpg
    27,5 KB · Aufrufe: 221
  • E5.jpg
    E5.jpg
    22 KB · Aufrufe: 185
  • E6.jpg
    E6.jpg
    25,9 KB · Aufrufe: 209
  • efrike_LQ_Var4 lange Insel.KPL
    4,1 KB · Aufrufe: 156
  • efrike_LQ_Var4 lange Insel.POS
    10,2 KB · Aufrufe: 174
AW: Nobilia Küche für große Leute

@Kerstin: Da bin ich ganz deiner Meinung (wie oben auch geschrieben) und wenn die 15cm nicht ausreichen wäre ja noch weniger Platz rund um die Spüle :/


Der entscheidende Unterschied zwischen den von dir gezeigten Bildern und deiner Küche ist einfach die Breite. Eine Insel kann nur realisiert werden wenn der Raum entsprechend Breit ist (möglichst nicht unter 3m, und dann muss er entsprechend lang sein damit man alles in der Insel unterbekommt).

.
 
AW: Nobilia Küche für große Leute

Ich denke der Raum paßt nicht für eine reine Insel. Und, der Essplatz ist wohl der einzige im Haus, daher ist mit angesetzter APL auch wenig zu machen, da ja auch mal 7 Personen untergebracht werden sollen.

Meine Variante:
- 45er Vorrats-/Gläserschrank plus Wangen je 2,5 cm rechts und links (wg. Abstand Wand und SbS)
- SbS
- 60er GSP/BO plus Wangen je 2,5 cm rechts und links, generell notwendig
- tote Ecke mit Jalousienschrank


90er
60er Müll unter der APL
60er Spülenschrank
90er

Am Ende in der Höhe reduziert ein Regal Richtung Esstisch z. B. für Toaster etc.

Auf der anderen Seite 2x90er, können auch weniger hoch sein. Kochfeld nicht ganz mittig, so dass zum Esstisch hin eine größere Arbeitsfläche entsteht.

Diese beiden 90er ca. 45 cm von der Wand weg. Da bleibt Richtung Hochschrankwand die Möglichkeit für ein offenes Element um Backbleche, Tabletts, evtl. Handtücher unterzubringen.

Richtung Essbereich dann ein 50er Drehtürelement. Evtl. Tischdecke, Vasen etc.

Drüber Abhängung für Decken-DAH mit Rüberführung zur Außenwand.

Die Hochschränke abgekoffert.

Zwischen Oberkante SbS und Hängeschrank dort wird immer ein kleiner Abstand sein, damit der SbS genug Luft bekommt.

Grundsätzlich würde ich wohl wenigstens die Spülenzeile so bauen, dass beim Spülenfenster die Fensterbank entfernt wird und die APL dort in Übertiefe reingeführt wird. Das ergibt einen schönen Arbeitsplatz.
 

Anhänge

  • kf_efrike_20120630_kb_var1.POS
    17,5 KB · Aufrufe: 165
  • kf_efrike_20120630_kb_var1_Ansicht1.jpg
    kf_efrike_20120630_kb_var1_Ansicht1.jpg
    115,3 KB · Aufrufe: 177
  • kf_efrike_20120630_kb_var1_Ansicht2.jpg
    kf_efrike_20120630_kb_var1_Ansicht2.jpg
    148,3 KB · Aufrufe: 201
  • kf_efrike_20120630_kb_var1_Ansicht3.jpg
    kf_efrike_20120630_kb_var1_Ansicht3.jpg
    137 KB · Aufrufe: 179
  • kf_efrike_20120630_kb_var1_Ansicht4.jpg
    kf_efrike_20120630_kb_var1_Ansicht4.jpg
    138,7 KB · Aufrufe: 204
  • kf_efrike_20120630_kb_var1_Ansicht5.jpg
    kf_efrike_20120630_kb_var1_Ansicht5.jpg
    149,9 KB · Aufrufe: 179
  • kf_efrike_20120630_kb_var1_Grundriss.jpg
    kf_efrike_20120630_kb_var1_Grundriss.jpg
    76,8 KB · Aufrufe: 183
  • kf_efrike_20120630_kb_var1.kpl
    4,1 KB · Aufrufe: 175
AW: Nobilia Küche für große Leute

Hier noch einmal ein Beispiel mit einer Halbinsel, ich finde einfach daran sieht man das es bei dir wesentlich optimalere Lösungen gibt.

"Vorteil"
-gewünschte Kochinsel realisiert

Nachteile:
-Weniger Stauraum
-keine hochgestellten geräte
-weniger Arbeitsplatte und vorhandere Arbeitsplatte "hinter" dem eigentlichen Küchenbereich auf der Rückseite der Insel
-viel "verschenkter" raum zwischen Küchenbereich und Sitzbereich
-Insel beginnt mitten im Fenster --> Optik? --> Decken DAH nötig damit Fenster noch geöffnet werden kann.

Also für mich wäre das nicht DIE Lösung da es nur eine aneinanderreihung von Kompromissen ist einzig und allein damit eine Kochinsel realisiert werden kann :/ das wäre Schade. Ist aber natürlich eure Entscheidung.
 

Anhänge

  • ef1.JPG
    ef1.JPG
    17,9 KB · Aufrufe: 187
  • ef2.jpg
    ef2.jpg
    27 KB · Aufrufe: 191
  • ef3.jpg
    ef3.jpg
    21 KB · Aufrufe: 190
  • ef4.jpg
    ef4.jpg
    22,1 KB · Aufrufe: 193
  • efrike_LQ_Var5 Halbinsel.KPL
    4,1 KB · Aufrufe: 138
  • efrike_LQ_Var5 Halbinsel.POS
    9,5 KB · Aufrufe: 166
AW: Nobilia Küche für große Leute

Ich persönlich würde in deiner Küche ein L bevorzugen (z.B. wie in Beitrag 32 gezeigt), wenn du genügend breite Gänge haben möchtest, dazu dann noch SbS+hochgestellte Geräte und eine ausreichende Arbeitsfläche kombiniert mit einem breiten kochfeld und einer entsprechenden Spüle. Und das ganze noch ohne wirklich etwas an der Wand mit der Tür/Durchgang zu stellen, aber in Kombination mit einem großen Tisch, dann sehe ich realistischerweise keine andere gut funktionierende Möglichkeit, wie du an den vielen Beispielen gesehen hast die euch aufgezeigt habe, alle haben wesentliche Nachteile :/ die leider die Funktionalität einschränken :/

Ich befürchte ihr werdet eine Kröte schlucken müssen. Entweder eine Halbinsel so wie Kerstin sie als Kochinsel oder ich als Arbeitsinsel aufgezeigt haben, oder ein L, oder einschränkungen inder der Funktionalität. Die Frage ist was für euch das kleinere Übel ist. Das müsstet ihr am besten austesten mit Kartons oder Klebeband auf dem Boden.
 
AW: Nobilia Küche für große Leute

Ich habe letzte Korrekturen am Grundriss im Alnoplan gemacht, zB die runde Wand nachgebaut. Der 201cm Eingang ist ja ein offener Durchgang.

Für eine echte Insel sehe ich hier auch keinen Platz.

Aber der Backofen habe ich jetzt mal aus den Hochschrankzeile entfernt und separat gestellt. Als halbhoher Schrank an der runden Wand ist er dann keine so froße optische Barriere. Eventuell kann man dort auch eine Mikrowelle mit unterbringen.

Ansonsten das Kochen an die Wand zwischen die Fenster verlegt. Bei eurer Größe bietet sich eine schräge Haube an, oder eine Deckenhaube in einer Abhängung.
Ein kleine Halbinsel als Platz zum Anrichten usw.

Durchgangsbreite zwischen Backofen und Halbinsel ist 90cm.

Der hochgestellte GSP jetzt links vom SbS, und als "Abstandshalter" zum Spülenschrank hin ein 40cm US (alternativ vielleicht sogar 50cm und den US links der Spüle nur 80 statt 90cm).

Rechts vom SbS ein 50cm Vorratsschrank mit Innenauszügen.

Für den Essplatz sind jetzt gute drei Meter von der Wand bis zur Halbinsel.
 

Anhänge

  • kf_efrike_mca_V10.KPL
    4,1 KB · Aufrufe: 157
  • kf_efrike_mca_V10.POS
    12,9 KB · Aufrufe: 166
  • kf_efrike_mca_V10_A1.jpg
    kf_efrike_mca_V10_A1.jpg
    48,9 KB · Aufrufe: 195
  • kf_efrike_mca_V10_A2.jpg
    kf_efrike_mca_V10_A2.jpg
    38,3 KB · Aufrufe: 191
  • kf_efrike_mca_V10_A3.jpg
    kf_efrike_mca_V10_A3.jpg
    44,8 KB · Aufrufe: 187
  • kf_efrike_mca_V10_A4.jpg
    kf_efrike_mca_V10_A4.jpg
    34,1 KB · Aufrufe: 192
  • kf_efrike_mca_V10_A5.jpg
    kf_efrike_mca_V10_A5.jpg
    43,6 KB · Aufrufe: 175
  • kf_efrike_mca_V10_G.JPG
    kf_efrike_mca_V10_G.JPG
    35 KB · Aufrufe: 203
AW: Nobilia Küche für große Leute

Hallo Ihr Lieben,

vielen-vielen Dank für alle Euren Vorschläge und Planungen! Ich bin total überwältigt, dass Ihr Euch so viel Mühe gebt mir zu helfen! :clap: Ich bin sehr-sehr froh darüber!

Leider kann ich Alno auf meinen Netbook nicht runterladen, sonst stürzt er ab:(, aber so tolle Planungen hätte ich nie hingekriegt.

Ich werde heute Abend alle Variante durchspielen und hoffentlich das Beste rauswählen!!!

Noch einmal vielen Dank!!! Ich halte Euch auf dem laufenden!!!

Liebe Grüße
Eva
 
AW: Nobilia Küche für große Leute

Ich glaube die beste Lösung ist doch eine L-Form mit einer 80cm tiefen APL. Alle Geräte hinten, GSP hoch, darüber BO und SbS auch hinten realisieren.

Lediglich befürchte ich, dass die gesamte Arbeitsfläche sehr wenig wird, und deswegen würde ich gerne noch die Idee von Menorca aufgreifen (mit einer kleinen Halbinsel als Platz zum Anrichten usw.) lediglich nicht so weit, dass die Halbinsel vor dem Fenster kommt, da das Fenster ca. 10cm niedriger wäre als die APL. Entweder als Schrank oder als Tisch.

Die 2. Variante wäre eine 100 - 120er Schrank an der rechten Wand, aber nur 60-er oder auch 80-er breite, keine "Insel". Evtl. paar Regale drüber.

Ich bräuchte auch noch Ideen wegen der Farbgestaltung;-)
Wir haben eine offene Wohn-, Essbereich und Küche. Im WZ wird dunkelbraunes Laminat gelegt, angrenzend kommen die helle Terracotta Fliesen im Essbereich und in der Küche. Die Schrankwand im WZ ist weiß-schwarz und das Sofa ist dunkelgrau.
Deswegen könnte ich in der Küche auch helle Korpus mit dunkelbrauner APL oder mit dunkelgrauer APL gut vorstellen. Oder die linke Zeile hell mit grauer APL und die hintere Zeile in dunkelbraun.


Was meint Ihr?:-)


Liebe Grüße
Eva
 
AW: Nobilia Küche für große Leute

Zu der Anrichtehalbinsel: die ginge ja auch mit einem 5-Raster-Korpus, der circa 13cm niedriger ist. Ohne die anderen Veränderungen eingearbeitet zu haben, sähe das dann ungefähr so aus (links vom Kochfeld noch möglichst viel AP weiterlaufen lassen):

kf_efrike_mca_V11_A1.jpg kf_efrike_mca_V11_A2.jpg
 
AW: Nobilia Küche für große Leute

Das halte ich für eine gute Entscheidung mit dem L!!! Und der Hochschrankwand hinten!

Zur Farbgestaltung, ich selber würde wahrscheinlich den Koprus dann in weiss nehmen, die APL passend zum Laminat und die Hochschrankwand dann auch in der APL Farbe, nicht noch eine dritte Farbe wählen.

Du könntest auch überlegne eine mobile Kücheninsel/waagen an die gegenüberliegende Wand zu stellen, dann bist du flexibel, kannst die bei Bedarf quasi andocken wie die Halbinsel oder an die andere Wand stellen jenachdem wie du es benötigst.

Sowas (dann ggf. farblich passend zur Küche oder zur Essgrupe lackiert)

FÖRHÖJA Servierwagen - IKEA

oder sowas ( da müsstet ihr dann nur die "APL" passend lackieren oder ein zusätzliches Stück von der "richtigen" APL bestellen und entsprechend anbringen)


STENSTORP Servierwagen - IKEA
 
AW: Nobilia Küche für große Leute

ich habe jetzt 4 Variante aus Euren Vorschläge ausgewählt. Die Idee mit der übertiefen APL, die auch in die Fensterbank "reinrutscht" über die Spüle (Höhe der APL 105,7cm, mein Ellbogen ist auf 120cm), mit der schrägen Abzugshaube, der Biomüll unter der APL und der Mikrowelle über den SbS finde ich toll!!!:clap:

Die Spüle sollte ein 1,5 Becken sein ohne Abtropffläche mit abnehmbarer Armatur wegen Fenster, aber rechts kommt noch eine Armatur für die Umkehrosmoseanlage, die man nicht abnehmen kann, also soll die Spüle rechtsbündig unter dem Fenster sein, oder?
Da die Maxi Schränke eine Korpushöhe von 86,5cm haben, die APL 4cm dick ist muss der Sockel 15,2cm Sockel haben um auf 105,7cm zu kommen. Ist das korrekt?

Liebe Grüße
Eva

Variante 1
eine reine L-Form von Littlequeen, lediglich ohne Insel auf der rechten Seite
 
Zuletzt bearbeitet von einem Moderator:
AW: Nobilia Küche für große Leute

uups jetzt mit Bilder;-)

Variante 1
attachment.php
attachment.php


Variante 2
attachment.php


Variante 3
eine kleine Halbinsel von Menorca, vielleicht mit Regale auf der Rück- und Seitenwand, und der BO soll nicht extra stehen, sondern über GSP in der Hochschrankwand integriert werden
attachment.php
attachment.php


Variante 4
soll auf der rechten Seite eine ca. 100-120cm breite Schrank mit rumherum Regale stehen (kein Servierwagen und ohne Halbinsel wegen Durchgang)
hier sind 2 Beispielbilder
attachment.php
attachment.php
 

Anhänge

  • Planung L6.jpg
    Planung L6.jpg
    28,7 KB · Aufrufe: 631
  • Planung L5.jpg
    Planung L5.jpg
    42,1 KB · Aufrufe: 165
  • Planung L7.jpg
    Planung L7.jpg
    39 KB · Aufrufe: 554
  • Planung L2.jpg
    Planung L2.jpg
    36,1 KB · Aufrufe: 486
  • Planung L11.jpg
    Planung L11.jpg
    6,8 KB · Aufrufe: 444
  • Planung L10.jpg
    Planung L10.jpg
    6,3 KB · Aufrufe: 483
  • Planung L13.jpg
    Planung L13.jpg
    56,8 KB · Aufrufe: 474
  • Planung L12.jpg
    Planung L12.jpg
    89,5 KB · Aufrufe: 513
AW: Nobilia Küche für große Leute

Ich stimme für V2:

Da habt ihr enorm viel mehr Stauraum wie bei V1. Es schaut ausserdem auch besser und klarer aus (der integrierte SbS ist nicht sooo mein Ding) . Es bleibt genügend Bewegungsspielraum, es gibt keine Engstellen und ihr werdet viel Freude an der Planung haben
 
AW: Nobilia Küche für große Leute

...sind eigentlich Rückwände und Nieschenverkleidungen out? Alle geplanten Küchen haben gar keine... Was macht man dann hinter das Kochfeld?

Mir gefallen die Rückwände, die ca. 30cm hoch sind und aus der APL sind, nur dünner oder das mit motiven bedruckte Plexiglas (Zitrone, Orange, usw) auch schmal

LG Eva
 
AW: Nobilia Küche für große Leute

Ich habe die Bodenfliesen hinter der Kochfeldzeile:
 
Zuletzt bearbeitet von einem Moderator:
AW: Nobilia Küche für große Leute

Doch, in natura hat quasi jede Küche eine Nischenrückwand oder wenigstens einen Spritzschutz hinter de Kochfeld.

Aber solange es vor allem um die Platzierung der Möbel geht, lasse ich die Details wie Beleuchtung und Nischenrückwände erstmal weg, denn auch das braucht (meine Frei-)Zeit, um das sorgfältig zu platzieren.
 

Ähnliche Beiträge

Neff Hausgeräte Ballerina Küchen Blum Bewegungstechnologie Weibel - Intelligente Küchenlüftung

Neff Spezial

Blum Zonenplaner

Weibel Abluft-Tuning

Weibel Abluft-Tuning
Zurück
Oben