Unbeendet Neubau, Insellösung

Bauloewe

Mitglied
Beiträge
10
Hallo zusammen.

Vorweg hoffe ich, alles richtig eingestellt zu haben. Ich möchte die Planung unserer Küche zur Diskussion stellen. Im Prinzip sollte sie genügend Platz bieten. Aber hier und da könnte es noch zwicken.

Unsere Küche im Neubau ist bereits geplant. Sollte hier im Plenum nicht noch bahnbrechende Ideen geben, möchten wir von der Aufteilung nicht abrücken. Offen hingegen ist noch die Geräteauswahl.
Der Bau steht knapp einen Monat vor der Abnahme. Wir sind noch zu zweit, irgendwann mal zu viert. Und nun zu den Details.

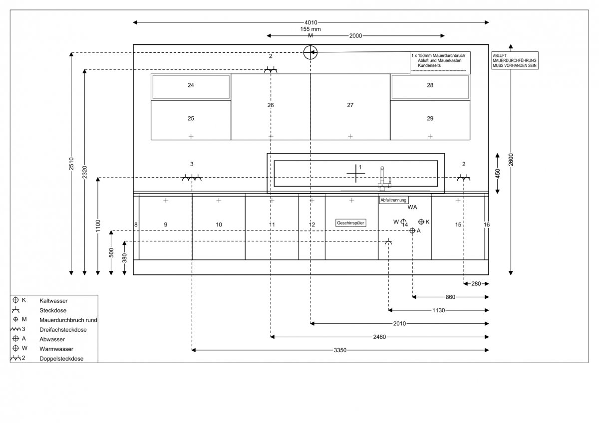
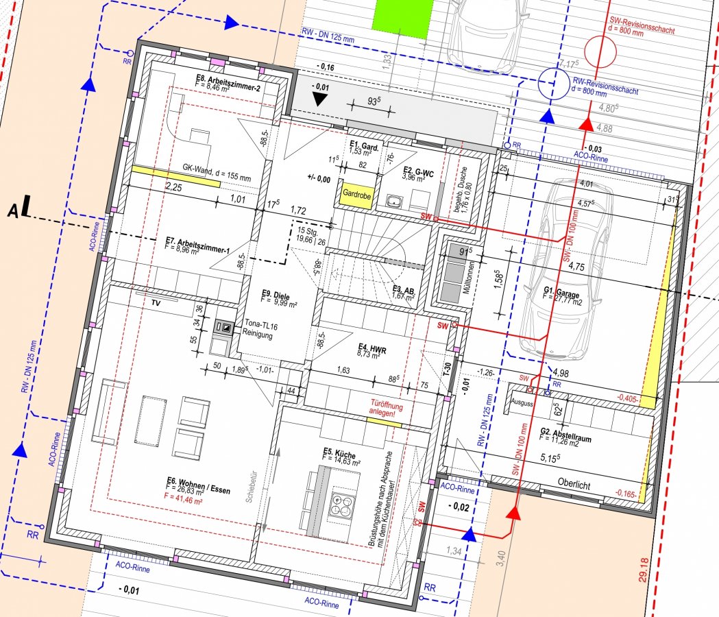
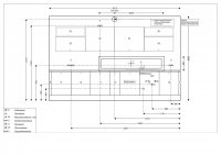
Auf dem Grundriss befindet sich die Küche rechts unten (SO). In der nördlichen Küchenwand ist eine gelbe Markierung für eine spätere Türöffnung hinterlegt. Diese Tür existiert und ist ein Durchgang zum HWR sowie zur Garage.
Zum WZ im westlichen Teil wird eine Schiebetür angebracht, die im WZ vor der Wand verläuft.
Das Fenster im Süden ist bodentief und führt in den Garten. Der linke Flügel (Blickrichtung Garten) öffnet zuerst, der rechte kollidiert mit dem Thekenbrett auf der Kochinsel. Das ist offenbar nicht anders machbar, wenn das Brett über die Insel schauen soll, ohne dass auf der anderen Seite der Durchgang zu schmal wird.
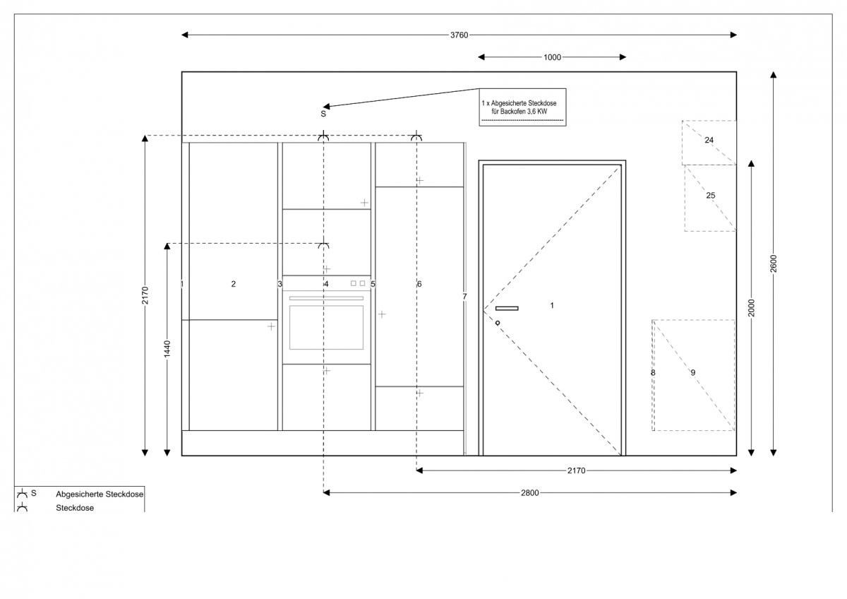
Das Fenster im östlichen Bereich hat eine Höhe von ca. 60 cm und ist nicht zum Öffnen. Die Arbeitsplatte schließt direkt unter dem Fenster in der Aussparung an, läuft in eins durch. Am oberen Ende des Fensters schließen direkt die Hochschränke an. In der Zeichnung ist noch etwas Luft dazwischen.

Über der Kochinsel soll eine Deckenhaube mit Abluft eingebaut werden. Das Abluftrohr führt nach oben weg, hat drei Knicke bis es hinausführt und ist ca. drei bis vier Meter lang.

Links neben dem Backofen ist ein ausziehbarer Apothekerschrank mit Drehtür, rechts der Kühlschrank. Die Schränke im unteren Bereich der langen Küchenzeile sind allesamt ausziehbar und beinhalten zwei bis drei Schubkästen bzw. die Mülltrennungsanlage und die Spülmaschine. Der kleine Schrank in der Mitte ist ein kleiner Apothekerschrank, z.B. für Flaschen.

Die Hochschränke sind mit Lifttüren und Einlegeböden versehen.

Die Kochinsel hat zur Arbeitsseite zwei Reihen à drei Auszüge, auf der gegenüberliegenden Seite vier Drehtüren mit je zwei oder drei Einlegeböden und verkürzter Tiefe.

Wenn ich noch etwas vergessen haben sollte, liefere ich das umgehend nach.

EDIT: Die Decke wird ca. 8 cm abgehangen (für Spots), die Deckenhaube entsprechend mehr. Zwischen offenem Hochschrank und Decke beträgt der Abstand 3 cm.



Checkliste zur Küchenplanung

Anzahl Personen im Haushalt: 2
Davon Kinder?:
Art des Gebäudes?:
Neu-/Umbau, Planänderungen nicht möglich
Körpergrössen aller Hauptbenutzer (wegen Arbeitshöhe ) in cm: 173 und 168
Brüstungshöhe des Fensters (in cm): 92
Fensterhöhe (in cm): 60 und 228
Raumhöhe in cm: 265
Heizung: Fussbodenheizung
Sanitäranschlüsse: fix
Ausführung Kühlgerät: Integriert im Hochschrank (60cm)
Kühlgerät Größe: bis 122 cm Höhe
Ausführung Tiefkühl (TK)-Gerät: Nicht erforderlich bzw. steht woanders
Dunstabzugshaube: Abluft
Backofen etc. hochgebaut?: Ja
Hochgebauter Geschirrspüler ?: Nein
Kochfeldart: Induktion
Kochfeldbreite ca. (in cm)?: 80
Spülenform: 1 Becken mit Abtropffläche
Geplante Heißgeräte: Standmikrowelle, Backofen
Küchenstil: Grifflos
Sitzmöglichkeit in der Küche / im Küchenbereich: Tresen in Barhöhe
Sitzmöglichkeit: Für wieviel Personen?: für 4 Personen
Sitzmöglichkeit: Tisch - wenn gesonderter Tisch oder offene Küche: Keiner
Gewünschte o. vorhandene Tischgröße:
Wofür soll der Sitzplatz in der Küche genutzt werden? Wie häufig?:
Essen und/oder Beisammensein; regelmäßig bis häufig, solange man nicht an den Esstisch ausweichen muss.
Welche Arbeitshöhe ist angedacht (in cm)?: 94,5
Was steht auf der Arbeitsplatte oder soll dort stehen?: Kaffeemaschine, Wasserkocher, Messerblock, Allesschneider, Toaster, Brotbehälter, Obstschale
Welche weiteren Küchenmaschinen müssen in der Küche untergebracht werden?: Allesschneider (z. B. in Schublade), Handrührgerät, Mixer, Pürierstab
Was soll in der Küche außer den Standards untergebracht werden?: Geschirr komplett (nichts in Ess-/Wohnzimmer)
Welchen Stauraum gibt es sonst noch?: Hauswirtschaftsraum
Was/wie wird gekocht? (Alltagsküche, Menüs, Snacks usw): Alltag, Snacks, seltenst mehrere Gänge.
Wie häufig wird gekocht?: (fast) täglich 1x warm
Wird alleine gekocht? Oder auch gemeinsam? Mit und für Gäste?: Alleine, wie auch gemeinsam und/oder mit Gästen.
Was stört an der bisherigen Küche und was soll die neue Küche unbedingt können? Warum?: Zu wenig Arbeitsfläche
Welche Mülltrennung soll in der Küche vorgehalten werden?: Biomüll, Gelber Sack Müll, Restmüll
Steht schon ein Küchenhersteller fest oder wird bevorzugt?: Steht fest, Nolte
Steht schon ein Gerätehersteller fest oder wird bevorzugt?: Siemens bevorzugt
Preisvorstellung (Budget): bis 15.000,-
 

Anhänge

  • Installationsplan Küche_1.jpg
    Installationsplan Küche_1.jpg
    93,2 KB · Aufrufe: 352
  • Installationsplan Küche_2.jpg
    Installationsplan Küche_2.jpg
    75,2 KB · Aufrufe: 325
  • Installationsplan Küche_3.jpg
    Installationsplan Küche_3.jpg
    69,7 KB · Aufrufe: 326
  • Grundriss.jpg
    Grundriss.jpg
    247 KB · Aufrufe: 516
Zuletzt bearbeitet von einem Moderator:
Herzlich willkommen!

Du möchtest die Planung der Küche zur Diskussion stellen, gleichzeitig sagst du aber, dass die Planung schon fest steht, sogar mit Küchenhersteller?! :so-what:
Dann wird sich wohl niemand ernsthaft die Mühe machen, eine Alternative zu entwickeln, sorry..

Für Gerätefragen gibt’s passende Unterforen hier, da bist du vielleicht besser ausgehoben.

EDIT: Apothekerschrank , Abluftführung um mehrere Ecken, Thekenbrett wären auf die Schnelle ein paar Dinge, die ich so nicht planen würde..
 
Danke schon mal. Es geht mir nur bedingt darum, Alternativen zu bekommen, sondern möchte eher erfahren, ob es da irgendwo grobe Planungsfehler gibt. Wir haben viele Ausstellungsstücke gesehen und sind bei dieser hier hängen geblieben.
Apothekerschrank , Abluftführung um mehrere Ecken, Thekenbrett wären auf die Schnelle ein paar Dinge, die ich so nicht planen würde..
Die Abluft ist nicht anders möglich gewesen, da die Hochschränke bzw. der Rollädenkasten im Weg sind.
Das Thekenbrett hat optische wie sitztechnische Gründe. Das Brett bündig mit der Inselbreite zu machen, sähe unserer Meinung nach nicht gut aus und es stünden dann laut Küchenbauer nur drei bequeme Sitzmöglichkeiten zur Verfügung.
Was ist mit dem Apothekerschrank?
 
Ich bin schon allgemein kein Freund von Kochfelder auf Inseln, aber auf dem Inselchen bleibt kaum Arbeits-/Abstellfläche übrig. Den restlichen Zipfel an Arbeitsfläche wird durch das aufgelegte Brett vernichtet.

Der GSP steht sehr unpraktisch und ungünstig mitten in der Zeile unter der Arbeitsfläche, die Abtropfe vernichtet auch Arbeitsfläche und sollte in die andere Richtung geplant werden.

Die Abfalltrennung unter der Spüle ist unpraktisch, hier empfehlen wir gerne Bio- und Restmüllbehälter in einem Auszug direkt unter der Arbeitsfläche zu platzieren ->

Euch ist es bewußt, dass das breite Fenster auf APL-Höhe Eure Bäuche nach Außen präsentiert? Und Ihr schaut auf dem Boden?

Wie seid Ihr auf dem Wert für die Arbeitshöhe gekommen? Abgesehen davon, dass es für die kleinere Person etwas zu hoch sein könnte, bedeutet dies bei Nolte (Korpushöhe 75) einen Sockel von mindestens 15 cm je nach APL. Das geht auch anders. Hier ein paar Tipps zur Bestimmung der Arbeitshöhe:
ARBEITSHÖHE ermitteln
3 Methoden haben sich da etabliert:
- abgewinkelter Ellbogen bis Boden messen und 15 cm abziehen
- Höhe Beckenknochen messen
- z. B. Bügelbrett nehmen und in verschiedenen Höhen Probeschnippeln und messen, wenn es einem am bequemsten erscheint, wobei dies der wichtigste Test ist.
Idealerweise ergeben alle 3 Methoden ca. denselben Wert
Ausführlicher in
Optimale Arbeitshöhen beschrieben.

Die US sind alle 60 cm: Somit muss man mehr Schränke bezahlen und bekommt im Gegenzug weniger Stauraum.

Ihr plant im Ernst ein 60 cm breiten Apothekerschrank ? D.h. Ihr wollt jedesmal Eure komplette Vorräte auf einmal herausziehen um dann den Schrank von der Seite durchzuwühlen, um auch nur ein Tütchen Backpulver herauszuholen? Praktischer wöre ein Hochschrank mit Innenauszüge:
Zum Apothekerschrank:
full


Und hier ein Foto vom Blum Space Tower mit Anschauung, was alles untergebracht werden kann:
Blum-lbx0313-73-74-1433960768.jpg
 
Zuletzt bearbeitet von einem Moderator:
Ahoi,

folgende Anregungen hätte ich:

-so wie ich das erkennen kann, sind die Schränke grifflos geplant? Das nimmt euch Stauraum. Alternative: Aufgesetzte Griffe

-die Primärzeile würde ich persönlich übertief machen. Platz dafür ist ja da.

-Die Sitzgelegenheit finde ich zwar nett aber wenn du in der Küche kochst, dann stehst du die meiste Zeit mit dem Rücken zu den Gästen weil du die meiste Zeit an der Spüle verbringst und nur sehr wenig am Kochfeld.

-Kühlschrank wäre für mich zu weit abseits und nicht im Kochdreieck (Kochen, Kühlen, Spülen)

-Anstelle des kleinen Apothekerschranks würde ich dort lieber einen MUPl planen.

-Der geöffnete GSP ist geöffnet komplett im Weg. Heißt bei großen Kochgelagen: auf zu auf zu auf zu auf zu. Platz zum hochsetzten am Zeilenende ist vorhanden.

-Backofen wäre mir auch zu weit weg und Abstellfläche nur auf der Insel.

Mit welchem Hersteller hast du geplant?

Beste Grüße!
 
Sorry für die späte Antwort. Lag das WE über flach.

Ich bin schon allgemein kein Freund von Kochfelder auf Inseln, aber auf dem Inselchen bleibt kaum Arbeits-/Abstellfläche übrig. Den restlichen Zipfel an Arbeitsfläche wird durch das aufgelegte Brett vernichtet.
Das klingt subjektiv. Neben dem Kochfeld bleiben jeweils 40 cm übrig, zum Thekenbrett ist dann auch noch Platz.

Der GSP steht sehr unpraktisch und ungünstig mitten in der Zeile unter der Arbeitsfläche, die Abtropfe vernichtet auch Arbeitsfläche und sollte in die andere Richtung geplant werden.
In die andere Richtung ist für Rechtshänder unpraktisch. Die Erfahrung haben wir jetzt jahrelang gemacht.

Die Abfalltrennung unter der Spüle ist unpraktisch, hier empfehlen wir gerne Bio- und Restmüllbehälter in einem Auszug direkt unter der Arbeitsfläche zu platzieren -> s. Link: * MUPL *
Das ist an sich eine gute Idee, doch dann geht ein US an Stauraum verloren. Unter der Spüle bliebe so gesehen nur ein halber US, der für Spülkram genutzt würde, ähnlich wie bei der Abfalltrennung in einem anderen Schrank. (siehe unten)

Euch ist es bewußt, dass das breite Fenster auf APL-Höhe Eure Bäuche nach Außen präsentiert? Und Ihr schaut auf dem Boden?
Verstehe den Einwand nicht ganz.

Wie seid Ihr auf dem Wert für die Arbeitshöhe gekommen? Abgesehen davon, dass es für die kleinere Person etwas zu hoch sein könnte, bedeutet dies bei Nolte (Korpushöhe 75) einen Sockel von mindestens 15 cm je nach APL.
Durch ausmessen verschiedener Küchen, inkl. unserer jetzigen. Tatsächlich kommt dann ein Wert von ca. 92-93 cm heraus, bei dem man mit geradem Rücken bequem arbeiten kann.

Die US sind alle 60 cm: Somit muss man mehr Schränke bezahlen und bekommt im Gegenzug weniger Stauraum.
Also sollten die breiter geplant werden?

Ihr plant im Ernst ein 60 cm breiten Apothekerschrank ? D.h. Ihr wollt jedesmal Eure komplette Vorräte auf einmal herausziehen um dann den Schrank von der Seite durchzuwühlen, um auch nur ein Tütchen Backpulver herauszuholen? Praktischer wöre ein Hochschrank mit Innenauszüge:
Ne, eben kein Apothekerschrank. Das ist von mir falsch benannt.
Es ist ein Schrank mit Drehtür, an der innen kleine Regale befestigt sind. Der Innenbereich ist dann ausziehbar. Im Prinzip so wie hier:
[/QUOTE]
-so wie ich das erkennen kann, sind die Schränke grifflos geplant? Das nimmt euch Stauraum. Alternative: Aufgesetzte Griffe
Da geht es uns ums Design werden wohl dabei bleiben. Aber warum geht dadurch Stauraum verloren?

-die Primärzeile würde ich persönlich übertief machen. Platz dafür ist ja da.
Ich habe nicht das Gefühl, dass Platz dafür da ist. Ansonsten würden die Laufwege zu schmal. Übertiefe wäre dann auch mit einem Aufpreis verbunden, wenn ich es recht im Sinn habe. Wie tief denn?

-Die Sitzgelegenheit finde ich zwar nett aber wenn du in der Küche kochst, dann stehst du die meiste Zeit mit dem Rücken zu den Gästen weil du die meiste Zeit an der Spüle verbringst und nur sehr wenig am Kochfeld.
Da gibt es Mittel und Wege ;-)

-Anstelle des kleinen Apothekerschranks würde ich dort lieber einen MUPl planen.
Das wäre eine Möglichkeit, sofern die Breite dazu nicht zu schmal ist.

Der geöffnete GSP ist geöffnet komplett im Weg. Heißt bei großen Kochgelagen: auf zu auf zu auf zu auf zu. Platz zum hochsetzten am Zeilenende ist vorhanden.
Das sieht dann doch nicht aus, wenn an den Seiten ein Hochschrank steht. Macht man das auf beiden Seiten, fehlen mindestens 120 cm Arbeitsfläche.
 
Zuletzt bearbeitet von einem Moderator:
Den Kühlschrank finde ich sehr unpraktisch ,weil man immer um die Tür herumlaufen muss.
Allerdings braucht ihr bei einem Linksanschlag ein weiteres senkrechtes Greifraumprofil
(wg der Optik eher 2)mit entsprechendem Platzbedarf.
 
Den Kühlschrank finde ich sehr unpraktisch ,weil man immer um die Tür herumlaufen muss.
Allerdings braucht ihr bei einem Linksanschlag ein weiteres senkrechtes Greifraumprofil
(wg der Optik eher 2)mit entsprechendem Platzbedarf.
Den Linksanschlag hatten wir dem Küchenbauer bereits kommuniziert. War uns auch aufgefallen. allerdings haben wir die Griffleiste nicht bedacht. Danke für den Hinweis.
 
- Dass das aufgesetzte Brett Fläche vernichtet ergibt sich dadurch, dass das Brett an sich zu schmal ist, um darauf bequem zu arbeiten. Die Arbeitsfläche ist von der Brettseite durch die Stufe nicht mehr frei nutzbar (z.B. zum Teige ausrollen zum Pizza oder Weihnachtsplätzchen backen).
- Da ihr ein GSP plant, wird nicht mehr lange Geschirr gespült. Insofern ist es egal, auf welche Seite die Abtropfe ist. Aber der GSP an der Stelle ist unbequem und die Abtropfe vernichtet Arbeitsfläche.
- Mit MUPL ist der Stauraum nicht verloren, sondern anders verteilt. Die Mülltrennung habt ihr so oder so. Im unteren Auszug unter der Spüle habe ich den gelben Sack, Putzmitteln und Einkaufstüten.
- Das Fenster ist unbequem zum Rausschauen und, da i.d.R. solche Fenster keine Gardinen haben, ist das Torso des Kochs/der Köchin auf dem Präsentierteller.
- bei Auszüge und Schubladen geht für die Mechanki Platz verloren. Breitere Unterschränke kosten nicht viel mehr als schmale, bieten dafür mehr Stauraum.
- wenn die Arbeitshöhe erprobt ist, dann ist es super. Bei 92-93 cm könnte man auch über einen Hersteller nachdenken, der Korpushöhe 78-80 mit * 6 Raster * bietet.
- beim ausgesuchten Ausziehschrank ist mir der Mehrwert ggü. eines Vorratschranks mit Innenauszügen nicht ersichtlich.
- bei Grifflos geht hauptsächlich dadurch Stauraum verloren, weil man wegen der Linienführung nicht frei ist in der Einteilung der vertikalen Stauraums in Schubladen und Auszüge.

Den Einwand, dass man in dieser Planung die meiste Zeit mit dem Rücken zum Raum und zu den Gäste ist richtig, da die meiste Zeit beim Kochen verbringt man mit Vorbereitung eher als mit Brutzeln. Manche Mahlzeiten sind kalt, Manches wird im Backofen zubereitet, aber die Spüle braucht man immer.
 

Ähnliche Beiträge

Neff Hausgeräte Ballerina Küchen Blum Bewegungstechnologie Weibel - Intelligente Küchenlüftung

Neff Spezial

Blum Zonenplaner

Weibel Abluft-Tuning

Weibel Abluft-Tuning
Zurück
Oben