Moderne Küche für Neubauwohnung

wenn, dann könnte ich es mir nur so vorstellen. Die eine Terrassentür ist dann blockiert.

Die Mininsel ist 1m lang. Rechts vom Kochfeld ist der BO.

Die Kochseite ist jetzt nur noch normal tief und der MUPL rechts der Spúle 40cm.
Zeilenabstände sind 90cm.

Ich hatte den Plan schon vor ein paar Tagen gemacht, aber wieder verworfen, denn es ist weder mehr Stauraum noch AP Fläche, wenn im Origanlplan ins tote Eck am Eingang ein 60er US geschoben wird. Nur hat man so einen 100er US am Stück und nicht 40+60cm breite US als Stauraum.

Das Thekenbrett würde ich drin lassen, es ist ein Singlehaushalt und nicht alles muss nur praktisch sein. Ich finde das Thekenbrett für einen Männerhaushalt gut. Er wird kaum Strudelteig ausrollen oder lieg ich da falsch?


Abu1.JPG Abu2.JPG Abu3.JPG
 

Anhänge

  • Abu_Evelin_PLAN1.KPL
    3,9 KB · Aufrufe: 130
  • Abu_Evelin_PLAN1.POS
    8,4 KB · Aufrufe: 144
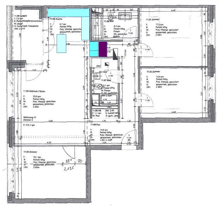
Hihi, das mit dem Kabuff im oberen Flur hab ich mir auch gleich so gedacht beim Anblick des Grundrisses. Viel zuviel nutzlose Verkehrsfläche auf Kosten einer brauchbaren Abstellkamer. Dafür wird dann wohl einer der Zimmer herhalten müssen. Teure Wohnfläche, die man auch besser nutzen könnte... :rolleyes:

Hier mal noch ein Vorschlag - zwar mit Kabuff - aber das geht auch ohne. Wenn der Flur tatsächlich 100cm breit ist, dann würde von Küchenseite her ein 60er Backofenschrank + 40er Vorratsschrank passen. Von der anderen Seite passt ein 100cm breiter IKEA Px Schrank als Putzmittel- und Staubsaugerschrank.

Der Rest des Küchen-L könnte aus Unterschränken bestehen und einem Kühlschrank planoben links.
4.jpg


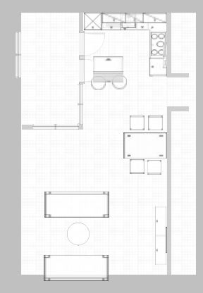
Viel wichtiger fände ich die Sitzgelegenheit als kleines "Inselchen" in die Mitte zu stellen, und zwar als sowas unten. Bartisch bzw. Gestell UTBY von IKEA mit Abreitshöhe 90cm. Da kann man bequem mit nur leicht erhöhten Stühlen sitzen, eine kleinere Person hätte damit aber auch bei Bedarf 120x60cm Arbeitsfläche in nur 90cm Höhe!! Somit könnte der Rest des L ein bischen höher ausfallen.

Ansonsten: wenn da sowieso ein Esstisch direkt daneben stehen wird, dann ist der Tresen doch komplett überflüssig.
utby-bartisch-schwarz__0209055_PE247826_S4.JPG
 
Ich schiebe auch gerade am Grundriss ... mich würde mal interessieren, wie Sofa und Esstisch gedacht sind. Das finde ich nämlich nicht so ganz einfach, zumal man ja immer im Sichtfeld des Eingangs sitzt.
 

Ähnliche Beiträge

Neff Hausgeräte Ballerina Küchen Blum Bewegungstechnologie Weibel - Intelligente Küchenlüftung

Neff Spezial

Blum Zonenplaner

Weibel Abluft-Tuning

Weibel Abluft-Tuning
Zurück
Oben