Fertig mit Bildern Küchenplanung Mietwohnung (Neubau)

Oggy

Mitglied
Beiträge
11
Hallo zusammen!

Ich bin in der glücklichen Situation Anfang 2014 zur Miete in einen Neubau zu ziehen. Das Niedrigenergiehaus befindet sich seit Kurzem im Bau.

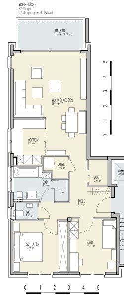
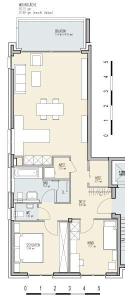
Der originale Grundriss (zu finden in meinem Album) des Architekten sieht vor, dass die Küche durch eine Zwischenwand vom Wohnraum abgetrennt wird. Es ist eine Schiebetür angedeutet.

Im Gespräch mit der Eigentümerin des Hauses hat sich gezeigt, dass diese sehr aufgeschlossen für Veränderungen im Bereich der Küche ist. Ich hatte den Wunsch geäußert, die Küche offen zu gestalten und eine Kochinsel geplant. Dies hat sie auch bedenkenlos abgenickt und mich darum gebeten, mich rechtzeitig mit meiner Küchenplanung /dem Installationsplan an die Installateure/Elektriker zu wenden, damit diese die nötigen Anschlüsse vorsehen.

Nachdem ich den Grundriss eingehend studiert habe, kam mir eine geringfügige Änderung der Raumaufteilung im Bereich Bad/Abstellraum/Küche in den Sinn. Im Grundriss ist in der Ecke von der Küche zur Außenwand eine Abkastung zu sehen. Vermutlich laufen hier Versorgungsleitungen. Diese Ecke wäre insoweit ein Problem, als dass in den Möbeln eine Aussparung vorgesehen werden müsste. Meine Idee war nun, diese Ecke zu vergrößern und somit eine Nische für Hochschränke zu erzeugen. Zusätzlich würde eine Änderung der Aufteilung Bad/Abstellraum diese Nische vergrößern, sodass in der Nische drei Hochschränke platziert werden könnten.

Ich würde hier in Kürze mit dem Architekten Kontakt aufnehmen und abstimmen, ob die Änderung prinzipiell durchführbar wäre. Sollte es von dessen Seite keine Einwände geben, würde ich mich an die Eigentümerin wenden und ihr den Vorschlag unterbreiten.

Davon aber abgesehen, tue ich mich seltsamerweise doch etwas schwer mit der weitergehenden Küchenplanung. Entlang des Fensters (Brüstungshöhe kenne ich aktuell nicht) wird natürlich eine Arbeitszeile mit Spüle und Geschirrspüler vorgesehen. Ich habe hier mal mit einer Länge zwischen 2,40 m und 2,70 m gerechnet. Ein Oberschrank rechts vom Fenster kommt für mich nicht in Frage. Knackpunkt ist die Kochinsel. Primär macht mir die Ausrichtung Kopfschmerzen. Derzeit habe ich eine Länge von 1,80 m für die Kochinsel geplant.

Wird die Insel längs (parallel) zur Arbeitszeile mit Spüle platziert, bleibt mir dahinter zur Sitzgruppe im Wohnbereich kein Platz für einen Esstisch. Daher wäre ich gezwungen - ähnlich des originalen Grundrisses - den Esstisch an der rechten Wand zu platzieren. Meine Vorbehalte gegen eine Sitzbank habe ich inzwischen zwar vollständig abgebaut, nachdem ich mir diverse Essgruppen bei Hülsta, Rolf Benz und Co. angeschaut habe. Das scheint wieder in Mode zu kommen. Richtig glücklich würde mich diese Platzierung allerdings nicht machen, da ich hier platzmäßig im Hinblick auf den Auszug des Tisches (bei größerer Besucherzahl) recht limitiert wäre.

Platziere ich die Kochinsel quer zur Arbeitszeile mit Spüle, könnte ich den Tisch durchaus dahinter zwischen Küche und Wohnbereich platzieren. Hier gäbe es auch beim Auszug des Tisches keine Platzprobleme. Allerdings frage ich mich, ob die Ausrichtung der Kochinsel unüblich und schlimmstenfalls auch unpraktisch ist (man kann sich nicht von der Kochstelle einfach umdrehen und steht direkt vor der Spüle).

Alternativ zur Kochinsel gäbe es noch die T-Form, womit man sogar das Dreieck Kochstelle-Kühlschrank/Backofen -Spüle erzeugen würde. Aber ich befürchte, dass mir diese Form letztendlich nicht gefallen würde.

Ich frage mich, wie ihr mit der Raumaufteilung umgehen würdet. Ich bin sehr offen für Anregungen und gespannt auf mögliche Vorschläge.

Beste Grüße
Oggy


Checkliste zur Küchenplanung von Oggy

Anzahl Personen im Haushalt : 1
Davon Kinder? : keine
Körpergrössen aller Hauptbenutzer (wegen Arbeitshöhe ) in cm : 185
Art des Gebäudes? : Neu-/Umbau, Planänderungen möglich
Brüstungshöhe des Fensters (in cm) : noch unbekannt
Fensterhöhe (in cm) : noch unbekannt
Raumhöhe in cm: : 260
Heizung : Fussbodenheizung
Sanitäranschlüsse : vollkommen variabel
Ausführung Kühlgerät? : Integriert im Hochschrank (60cm)
Kühlgerät Größe : bis 175 cm Höhe
Ausführung Tiefkühl (TK)-Gerät : Eigenständiges Gerät bis 72 cm Höhe
Dunstabzugshaube? : Umluft
Hochgebauter Backofen ? : Ja
Hochgebauter Geschirrspüler ? : nein
Kochfeldart? : Induktion
Kochfeldbreite ca. (in cm)? : 90
Spülenform: : 1,5 Becken ohne Abtropffläche
Weitere geplante Heißgeräte : Dampfgarer ohne Wasseranschluß, Wärmeschublade
Küchenstil? : modern
Sitzmöglichkeit in der Küche / im Küchenbereich als : Keine
Sitzmöglichkeit: Für wieviel Personen? : nein
Sitzmöglichkeit: Tisch - wenn gesonderter Tisch oder offene Küche : Wird nach Bedarf neu gekauft
Gewünschte o. vorhandene Tischgröße : 200 cm (ausziehbar bis 310 cm)
Wofür soll der Sitzplatz in der Küche genutzt werden? Wie häufig? : Gar nicht
Welche Arbeitshöhe ist angedacht (in cm)? : 92 ???
Was steht auf der Arbeitsplatte oder soll dort stehen? : Kaffeevollautomat, Messerblock
Welche weiteren Küchenmaschinen müssen in der Küche untergebracht werden? : Wasserkocher, Toaster, Schneidemaschine (z. B. in Schublade), Handrührgerät, Pürierstab
Was soll in der Küche außer den Standards untergebracht werden? : Geschirr komplett (nichts in Ess-/Wohnzimmer)
Welchen Stauraum gibt es sonst noch? : Speisekammer, Keller
Was/wie wird gekocht? (Alltagsküche, Menüs, Snacks usw) : Alltagsküche, für Gäste auch Menüs.
Wie häufig wird gekocht? : (fast) täglich 1x warm
Wird alleine gekocht? Oder auch gemeinsam? Mit und für Gäste? : Alleine und für/mit Gästen
Was stört an der bisherigen Küche und was soll die neue Küche unbedingt können? Warum? : Offene Küche für den direkten, geselligen Kontakt zu den Gästen.
Steht schon ein Küchenhersteller fest oder wird bevorzugt? : Schüller , Häcker
Steht schon ein Gerätehersteller fest oder wird bevorzugt? : Siemens (ggf. Miele )
Preisvorstellung (Budget) : bis 15.000,-
 

Anhänge

  • grundriss_orig.jpg
    grundriss_orig.jpg
    27,6 KB · Aufrufe: 367
  • grundriss_orig_ohne_abtrennung.jpg
    grundriss_orig_ohne_abtrennung.jpg
    24,6 KB · Aufrufe: 315
  • grundriss_mod.jpg
    grundriss_mod.jpg
    24,3 KB · Aufrufe: 344
Zuletzt bearbeitet:
AW: Küchenplanung Mietwohnung (Neubau)

Hallo Oggy,

verstehe ich das richtig, dass du auf den 6,xx Metern Tiefe, die der Raum hat, Küche plus Essplatz plus Wohnzimmer unterbringen möchtest, damit die rechte Wand weitgehend frei bleibt (höchsten TV und Bücher oä)?

Das wird sowieso nix, fürchte ich. Mach dir mal maßstabgerechte Möbel aus Papier und schiebe sie über den Plan. Esstisch 80 oder 90cm mal 200cm, Stühle drumrum mit 80cm (incl Platz zum Aufstehen), Sofa ??, Küche wie geplant. Dann bekommst du ein Gefühl für den Raum.

Ansonsten ist die Idee mit der Nische für drei Hochschränke eine gute Idee (circa 186cm breit).
 
AW: Küchenplanung Mietwohnung (Neubau)

Ich habe selber schon mal eine mögliche Variante (ziemlich) maßstabsgetreu erstellt. Ich weiß, dass die Raumnutzung durch die Insel nicht wirklich optimal ist, aber der Esstisch planrechts an der Wand finde ich noch unglücklicher.

Cheers
Oggy
 

Anhänge

  • grundriss_moebliert.jpg
    grundriss_moebliert.jpg
    26,4 KB · Aufrufe: 334
AW: Küchenplanung Mietwohnung (Neubau)

Ah, schaut ja doch gar nicht so schlecht aus. Dein Sofa scheint relativ zierlich zu sein; die meisten Leute haben ja eher die "Monster"-Ecksofas".
 
AW: Küchenplanung Mietwohnung (Neubau)

Damit kann ich auch dienen! ;-)
 

Anhänge

  • grundriss_moebliert_ecksofa.jpg
    grundriss_moebliert_ecksofa.jpg
    26,2 KB · Aufrufe: 333
AW: Küchenplanung Mietwohnung (Neubau)

Bei den Platzverhältnissen würde ich den Esstisch weglassen und eine Essinsel planen; ein Essplatz für 6 P. benötigt in der Breite minimum 250cm x 250cm darunter geht es nicht.
 
AW: Küchenplanung Mietwohnung (Neubau)

Der Tisch ist 1,80 m lang und ist grundsätzlich nur auf 4 Personen ausgelegt, jedoch mit der Option ihn auf 3,10 m auszuziehen und dann 6 (ggf. 8) Personen unterzubringen. Dass es dann etwas beengt wird, damit muss ich dann einfach umgehen.

Ich habe mal meine eigenen Konzepte angehängt.

Cheers
Oggy
 

Anhänge

  • grundriss_moebliert_theke.jpg
    grundriss_moebliert_theke.jpg
    26,6 KB · Aufrufe: 326
  • grundriss_moebliert_t-form.jpg
    grundriss_moebliert_t-form.jpg
    26,3 KB · Aufrufe: 320
  • grundriss_moebliert_insel2.jpg
    grundriss_moebliert_insel2.jpg
    26,1 KB · Aufrufe: 311
  • grundriss_moebliert_insel1.jpg
    grundriss_moebliert_insel1.jpg
    26,4 KB · Aufrufe: 328
AW: Küchenplanung Mietwohnung (Neubau)

Hi,

wenn ich richtig sehe hat die Whg. 2 Abstellräume? :-)
könnte man die zw. Küche und Bad killen und dafür die Wand nach rechts durchziehen? Dann wären mehr Hochschränke möglich und das Bad wäre auch größer.
Dann planunten HS und darüber parallel eine Halbinsel, die links an die Wand anschließt.

LG, Muckelina
 
AW: Küchenplanung Mietwohnung (Neubau)

Der Abstellraum zwischen Bad und Küche ist ein Technikraum. Dort wird die Luftwärmepumpe und ein Serverschrank stehen.

Ich möchte da auch nicht allzu sehr am Grundriss herumfuhrwerken, da ich schon diverse Sonderwünsche geäußert habe und nicht unbedingt die Grenze der Belastbarkeit testen möchte. ;D

Außerdem ist der zuätzliche Stauraum super!

Cheers
Oggy
 
AW: Küchenplanung Mietwohnung (Neubau)

Wollte hier nochmal nachfragen, ob vielleicht noch jemand Anregungen oder Vorschläge für die Küchengestaltung hat!?

Würde mich über Euren Input freuen. :-)
 
AW: Küchenplanung Mietwohnung (Neubau)

Wir können dir so keine Planung erstellen, da die exakten Maße des Grundrisses fehlen.

Optimal wäre es, wenn du dir den Alnoplaner herunterladen und deine bevorzugte Planung hier einstellen würdest.
 
AW: Küchenplanung Mietwohnung (Neubau)

Ich stimme Mela zu: jede gefühlt gute Lösung müsste anhand realistischer Größen und Planungen (nicht unbedingt ins Detail) überprüft werden, und dazu braucht es genaue Raummaße.
 
AW: Küchenplanung Mietwohnung (Neubau)

Sehe ich ein! :-) Ich bemühe mich, die Grundrissänderung so schnell wie möglich durchzubekommen und die neuen Maße zu bekommen.
 
1,5 Jahre sind vergangen und seit dem Frühjahr steht die Küche. Bilder gibt es in meinem Album.

Die Küche ist ein Traum, aber dennoch nur ein kurzes Intermezzo für mich gewesen, da ich etwas unplanmäßig umziehe. Der Grund hingegen ist ein Erfreulicher: Familiengründung. ;-)

Leider gibt das neue Domizil nicht die baulichen Voraussetzungen für einen Aufbau der Möbel her. Daher muss die Küche wieder verkauft werden.

Vielen Dank nochmal an alle hier, die mir bei der Planung in jedweder Form geholfen haben. Nicht nur über diesen Thread, sondern auch über all die Informationen, die ich hier forenübergreifend in zahlreichen anderen Diskussionen mitnehmen konnte.
 
Herzlichen Glückwunsch zur Familiengründung.

Schade, dass du die schöne Küche nicht mitnehmen kannst.
 

Ähnliche Beiträge

Neff Hausgeräte Ballerina Küchen Blum Bewegungstechnologie Weibel - Intelligente Küchenlüftung

Neff Spezial

Blum Zonenplaner

Weibel Abluft-Tuning

Weibel Abluft-Tuning
Zurück
Oben