lassewillken
Mitglied
- Beiträge
- 5
Hallo zusammen,
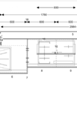
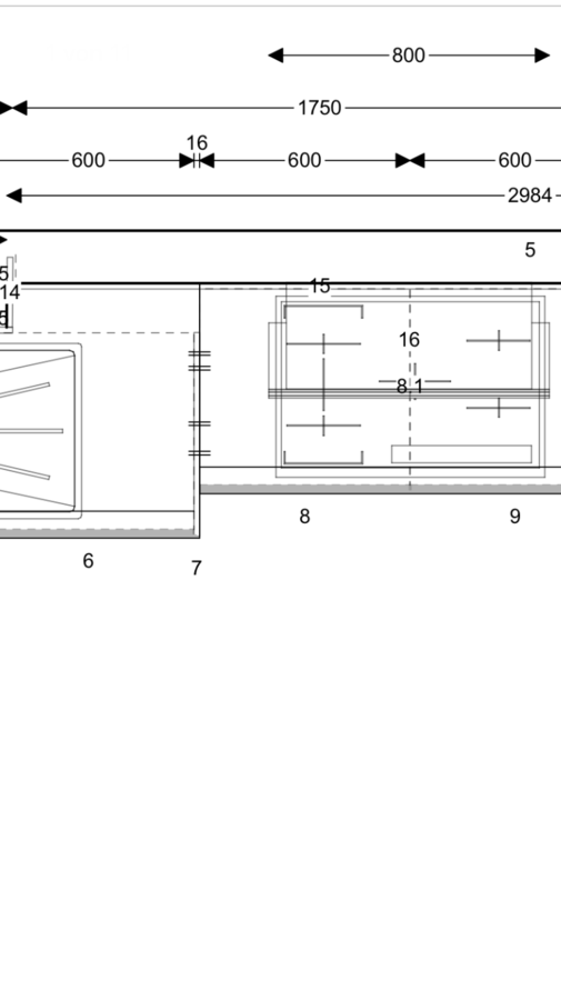
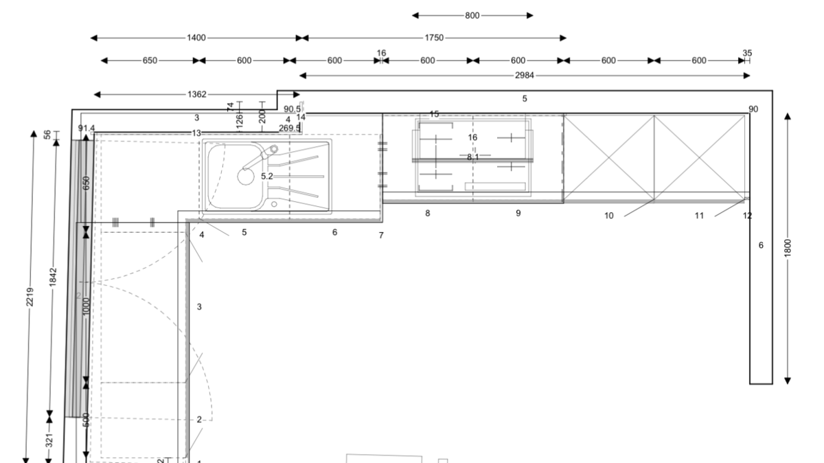
aufgrund eines 10cm Vorsprung würde unsere Küche leider nicht über die gesamte Länge bündig laufen. (Siehe Anhang).
Würde man die Gesamtfront gerade laufen lassen, würde die Dunstabzugshaube zu weit hinter dem Kochfeld sitzen.
Gibt es irgendeine Möglichkeit, die Haube weiter nach vorne zu setzen?
Jemand eine Idee, wie man die Kante in der Küchenfront vermeiden könnte?
aufgrund eines 10cm Vorsprung würde unsere Küche leider nicht über die gesamte Länge bündig laufen. (Siehe Anhang).
Würde man die Gesamtfront gerade laufen lassen, würde die Dunstabzugshaube zu weit hinter dem Kochfeld sitzen.
Gibt es irgendeine Möglichkeit, die Haube weiter nach vorne zu setzen?
Jemand eine Idee, wie man die Kante in der Küchenfront vermeiden könnte?
Anhänge
