Prof.H.Tibatong
Mitglied
- Beiträge
- 5
Ich ziehe mit meiner Familie in ein Mehrfamilienhaus, welches in Familienbesitz ist ein. EG ist vermietet, 1. und 2.OG nutzen wir (1.OG WC, Eßzimmer, Wohnzimmer, Küche 2.OG Bad, Kinderzimmer, Schlafzimmer). Leider ist die Küche nicht sehr große deswegen benötigen wir eine neue, die gut durchdacht ist und uns somit viel Stauraum bietet.
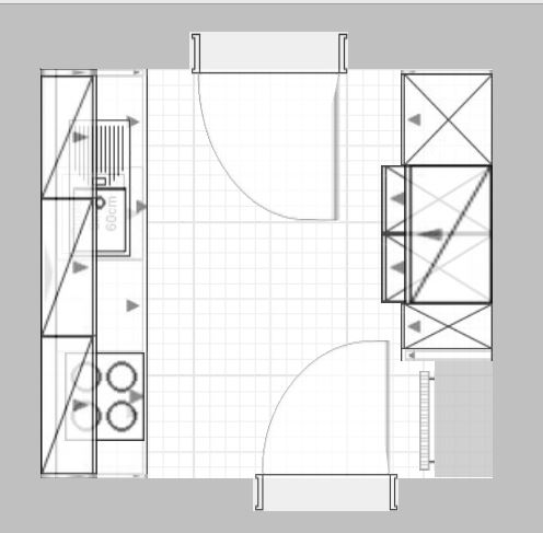
In der Lücke auf der Rechten Seite soll ein Side-by-Side rein, aber vielleicht könnt dieser auch woanders stehen?
Die Heizung befindet sich hinter der Tür am Kamin.
Wasseranschlüsse sind 2x vorhanden auf der Linken Seite, ebenso befindet sich dort der Anschluss für die Herd. (siehe Plan)
Aktuell sieht es in Alno so aus als geht die Küche in die Tür rein. An dieser stelle befindet sich wie ich auch im Plan eingezeichnet habe eine breite Türzarge, die entfernt oder in der Arbeitsplatte mit ausgeschnitten werden könnte?, alternative wäre ein 60er Unterschrank .
Ich habe schon einiges experimentiert und in der Anlage ist meine Lösung, aber vielleicht bin auch auch schon zu festgefahren?
Freue mich auf euer Feedback.
Checkliste zur Küchenplanung
Anzahl Personen im Haushalt: 4
Davon Kinder?: 2
Art des Gebäudes?: Bestandsbau, (kleinere) Umbauten möglich
Körpergrössen aller Hauptbenutzer (wegen Arbeitshöhe ) in cm: 165 und 178cm
Brüstungshöhe des Fensters (in cm): --
Fensterhöhe (in cm): --
Raumhöhe in cm: 250
Heizung: Heizkörper wie im Grundriss
Sanitäranschlüsse: fix
Ausführung Kühlgerät: Side by Side ca. 90cm breit
Kühlgerät Größe: bis 178 cm Höhe
Ausführung Tiefkühl (TK)-Gerät: Nicht erforderlich bzw. steht woanders
Dunstabzugshaube: Umluft
Backofen etc. hochgebaut?: Wenn möglich
Hochgebauter Geschirrspüler ?: Nein
Kochfeldart: Induktion
Kochfeldbreite ca. (in cm)?: wenn möglich 80cm
Spülenform: 1 Becken mit Abtropffläche
Geplante Heißgeräte: Backofen
Küchenstil: Modern
Sitzmöglichkeit in der Küche / im Küchenbereich: Keine
Sitzmöglichkeit: Für wieviel Personen?: Nein
Sitzmöglichkeit: Tisch - wenn gesonderter Tisch oder offene Küche: Keiner
Gewünschte o. vorhandene Tischgröße:
Wofür soll der Sitzplatz in der Küche genutzt werden? Wie häufig?:
Welche Arbeitshöhe ist angedacht (in cm)?:
Was steht auf der Arbeitsplatte oder soll dort stehen?: Wasserkocher
Welche weiteren Küchenmaschinen müssen in der Küche untergebracht werden?: Handrührgerät, Pürierstab
Was soll in der Küche außer den Standards untergebracht werden?: ALLE Vorräte
Welchen Stauraum gibt es sonst noch?: Geschirr/Gläserschrank im Wohn-/Esszimmer, Keller
Was/wie wird gekocht? (Alltagsküche, Menüs, Snacks usw): Alltagsküche, Menüs
Wie häufig wird gekocht?: (fast) täglich 1x warm
Wird alleine gekocht? Oder auch gemeinsam? Mit und für Gäste?: alleine
Was stört an der bisherigen Küche und was soll die neue Küche unbedingt können? Warum?: zu wenig Stauraum
Welche Mülltrennung soll in der Küche vorgehalten werden?: Altglas, Altpapier, Bio/Restmüll ungetrennt, Gelber Sack Müll, Restmüll
Steht schon ein Küchenhersteller fest oder wird bevorzugt?: nein
Steht schon ein Gerätehersteller fest oder wird bevorzugt?: Bosch /Siemens
Preisvorstellung (Budget): bis 10.000,-
---------------
Im Threadverlauf hinzugekommen:
vermaßter Grundriss aus PDF-Datei als Bild gewandelt
und dann mit Wassranschluss
In der Lücke auf der Rechten Seite soll ein Side-by-Side rein, aber vielleicht könnt dieser auch woanders stehen?
Die Heizung befindet sich hinter der Tür am Kamin.
Wasseranschlüsse sind 2x vorhanden auf der Linken Seite, ebenso befindet sich dort der Anschluss für die Herd. (siehe Plan)
Aktuell sieht es in Alno so aus als geht die Küche in die Tür rein. An dieser stelle befindet sich wie ich auch im Plan eingezeichnet habe eine breite Türzarge, die entfernt oder in der Arbeitsplatte mit ausgeschnitten werden könnte?, alternative wäre ein 60er Unterschrank .
Ich habe schon einiges experimentiert und in der Anlage ist meine Lösung, aber vielleicht bin auch auch schon zu festgefahren?
Freue mich auf euer Feedback.
Checkliste zur Küchenplanung
Anzahl Personen im Haushalt: 4
Davon Kinder?: 2
Art des Gebäudes?: Bestandsbau, (kleinere) Umbauten möglich
Körpergrössen aller Hauptbenutzer (wegen Arbeitshöhe ) in cm: 165 und 178cm
Brüstungshöhe des Fensters (in cm): --
Fensterhöhe (in cm): --
Raumhöhe in cm: 250
Heizung: Heizkörper wie im Grundriss
Sanitäranschlüsse: fix
Ausführung Kühlgerät: Side by Side ca. 90cm breit
Kühlgerät Größe: bis 178 cm Höhe
Ausführung Tiefkühl (TK)-Gerät: Nicht erforderlich bzw. steht woanders
Dunstabzugshaube: Umluft
Backofen etc. hochgebaut?: Wenn möglich
Hochgebauter Geschirrspüler ?: Nein
Kochfeldart: Induktion
Kochfeldbreite ca. (in cm)?: wenn möglich 80cm
Spülenform: 1 Becken mit Abtropffläche
Geplante Heißgeräte: Backofen
Küchenstil: Modern
Sitzmöglichkeit in der Küche / im Küchenbereich: Keine
Sitzmöglichkeit: Für wieviel Personen?: Nein
Sitzmöglichkeit: Tisch - wenn gesonderter Tisch oder offene Küche: Keiner
Gewünschte o. vorhandene Tischgröße:
Wofür soll der Sitzplatz in der Küche genutzt werden? Wie häufig?:
Welche Arbeitshöhe ist angedacht (in cm)?:
Was steht auf der Arbeitsplatte oder soll dort stehen?: Wasserkocher
Welche weiteren Küchenmaschinen müssen in der Küche untergebracht werden?: Handrührgerät, Pürierstab
Was soll in der Küche außer den Standards untergebracht werden?: ALLE Vorräte
Welchen Stauraum gibt es sonst noch?: Geschirr/Gläserschrank im Wohn-/Esszimmer, Keller
Was/wie wird gekocht? (Alltagsküche, Menüs, Snacks usw): Alltagsküche, Menüs
Wie häufig wird gekocht?: (fast) täglich 1x warm
Wird alleine gekocht? Oder auch gemeinsam? Mit und für Gäste?: alleine
Was stört an der bisherigen Küche und was soll die neue Küche unbedingt können? Warum?: zu wenig Stauraum
Welche Mülltrennung soll in der Küche vorgehalten werden?: Altglas, Altpapier, Bio/Restmüll ungetrennt, Gelber Sack Müll, Restmüll
Steht schon ein Küchenhersteller fest oder wird bevorzugt?: nein
Steht schon ein Gerätehersteller fest oder wird bevorzugt?: Bosch /Siemens
Preisvorstellung (Budget): bis 10.000,-
---------------
Im Threadverlauf hinzugekommen:
vermaßter Grundriss aus PDF-Datei als Bild gewandelt
und dann mit Wassranschluss
Anhänge
-
Maße Küche.pdf127,8 KB · Aufrufe: 286
-
Links.PNG834,5 KB · Aufrufe: 459 -
Rechts.PNG767,3 KB · Aufrufe: 414 -
Küche.KPL3,6 KB · Aufrufe: 221
-
Küche.POS4,8 KB · Aufrufe: 232
-
mit Oberschränke.PNG185,5 KB · Aufrufe: 374 -
ohne Oberschränke.PNG155,5 KB · Aufrufe: 391 -
Liste.txt1,2 KB · Aufrufe: 274
-
ProfHTibatong_201703_vermassterGrundriss.jpg35 KB · Aufrufe: 297
Zuletzt bearbeitet von einem Moderator:



