Fertig mit Bildern Günstige Lösung für Mietswohnung

AW: Günstige Lösung für Mietswohnung

Meine nicht, dass andere hier mitlesen.
Kerstin macht nur einen Bombenjob, da werden wir anderen blass um die Nase:cool:
 
AW: Günstige Lösung für Mietswohnung

Guten Morgen,

das haben wir schon bemerkt ;D

Habe jetzt das Küchenstudio mal auf den Pyrolyse -Ofen angehauen, aber ich befürchte das wird zu teuer, da es diesen nicht mit dem tollen Kochfeld TT 4388 im Set gibt... :'(

Gruß,
Pierre
 
AW: Günstige Lösung für Mietswohnung

Tja, die Entscheidung kann euch keiner abnehmen. Vor- und Nachteile, Nice to haves etc. habt ihr ja jetzt gehört. Jetzt müßt ihr für euch werten, budgetieren und entscheiden ;-)
 
AW: Günstige Lösung für Mietswohnung

Hallo Kerstin,

ja, da bleibt jetzt nur noch die Qual der Wahl... :rolleyes:

Könnten wir eigentlich "Bedienungsprobleme" bezüglich des Backofens bekommen, da dieser direkt an der Wand sitzt?

Ich überlege ja wirklich aus Kostengründen wieder auf die "zwei-Türme- Variante" zu gehen :'(

Gruß,
Pierre
 

Anhänge

  • 3D-Ansicht.jpg
    3D-Ansicht.jpg
    54 KB · Aufrufe: 193
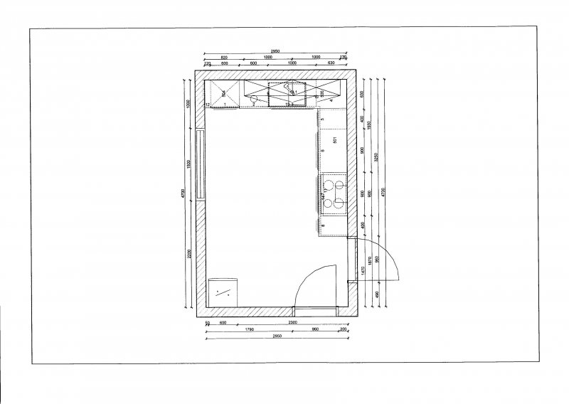
  • Grundriss.jpg
    Grundriss.jpg
    34,8 KB · Aufrufe: 176
Zuletzt bearbeitet:
AW: Günstige Lösung für Mietswohnung

Es sollte keine Bedienprobleme geben. Erstens wird es ja auch eine schmale Blende zur Wand geben und dann ist da ja auch gleich noch die Fensterlaibung.

Es ist eure Entscheidung ... ich würde die 2-Türmevariante wenn es irgend geht, vermeiden.
 
AW: Günstige Lösung für Mietswohnung

Hallo liebe Forengemeinde, hallo Kerstin,

die finale Planung steht soweit (hoffentlich) ;D

Burger Küche 5 Raster, 17 cm Sockel
Fronten Melaminharz weiß mit Dickkante
Arbeitsplatte und Alternativfronten Melaminharz "Wild Oak" mit Dickkante
Spüle Blanco Silgranit Metra 45 S
Armatur Blanco Mila-S
2 Unterschrankleuchten Naber Giro mit Leuchtstoffröhre
Neff Backofen BP 1842 N (inkl. Clou)
Neff Kochfeld TT 4388 N
Neff Dunstesse DSH 7952 N (inkl. Umluftset)
Neff Geschirrspüler GX 960
Lieferung und Montage

Das Küchenstudio möchte die nächsten Tage mit den aktuellen Mietern einen Termin zum Aufmaß ausmachen und dann hoffen wir mal, das alles passt und wir den Kaufvertrag fertig machen können. ;-)

Gruß,
Pierre
 

Anhänge

  • 3D-Ansicht.jpg
    3D-Ansicht.jpg
    67 KB · Aufrufe: 212
  • Draufsicht.jpg
    Draufsicht.jpg
    34,7 KB · Aufrufe: 211
  • Grundriss.jpg
    Grundriss.jpg
    36 KB · Aufrufe: 197
AW: Günstige Lösung für Mietswohnung

Na, dann herzlichen Glückwunsch :top: Ich finde es gut, dass ihr euch für die Variante flache Unterschränke am Kücheneingang entschieden habt. Der Raum wird großzügiger wirken. Und die Auszugsunterschränke werdet ihr lieben.

Dürfen wir mit Fotos rechnen, wenn alles eingebaut ist? Dann würde ich den Thread auf "Warten" umstellen. Ihr auf die Küche, wir auf die Fotos.
 
AW: Günstige Lösung für Mietswohnung

Hallo Kerstin,

klar kommen Fotos, wenn die Küche fertiggestellt wurde. Diese wäre ja niemals so entstanden, wenn Eure tolle Hilfe nicht gewesen wäre!!! :danke::goodjob:

Nur etwas günstiger wäre sie wahrscheinlich geworden :tounge:

Gruß,
Pierre
 
AW: Günstige Lösung für Mietswohnung

:kiss::rofl: ... Küchen, die hier geplant werden, haben seltsamerweise immer eine Tendenz ein wenig teurer zu werden :kiss: Allerdings sind das dann meist auch sehr überzeugte Nutzer ihrer neuen Küche.
 
AW: Günstige Lösung für Mietswohnung

Hallo ihr Planungsverrückten, ;-)

der Kaufvertrag ist unterschrieben. Vielleicht mag einer mal kurz darüber schauen?

Im Voraus ein großes :danke:

Gruß,
Pierre
 

Anhänge

  • Kaufvertrag001.jpg
    Kaufvertrag001.jpg
    24,7 KB · Aufrufe: 199
  • Kaufvertrag002.jpg
    Kaufvertrag002.jpg
    38,9 KB · Aufrufe: 209
  • Kaufvertrag003.jpg
    Kaufvertrag003.jpg
    34,2 KB · Aufrufe: 199
  • Kaufvertrag004.jpg
    Kaufvertrag004.jpg
    21,1 KB · Aufrufe: 231
  • Kaufvertrag005.jpg
    Kaufvertrag005.jpg
    15,6 KB · Aufrufe: 198
  • Final-3D.jpg
    Final-3D.jpg
    57,1 KB · Aufrufe: 206
  • Kaufvertrag006.jpg
    Kaufvertrag006.jpg
    40,4 KB · Aufrufe: 198
AW: Günstige Lösung für Mietswohnung

Die US Aufteilung gefällt mir.

Ich kann mir aber nicht so richtig vorstellen, wie der 172cm hohe HS in weiss mit den höheren OS und in einer anderen Frontausführung zusammenpassen. Meine Wahl wäre den HS mit der selben Oberkante wie die OS ausführen und den HS auch in derselben Frontfarbe, wie zB bei meiner Küche (ohne OS). Hab auf die Schnelle kein besseres Beispiel gefunden.
 

Anhänge

  • Ostern 2014 125.jpg
    Ostern 2014 125.jpg
    48 KB · Aufrufe: 199
AW: Günstige Lösung für Mietswohnung

Der Platz auf dem Hochschrank wird ein wunderbarer Abstellplatz für Obstschale oder ein sonstiges sperriges Trum ;D.

Jetzt kommt "Meckern auf hohem Niveau": ich würde bei dem Müllschrank den 3er Auszug oben und den 2er Auszug unten machen. Dann hat der Müll etwas größere Eimer und die Linienführung passt durchgehend.
 
AW: Günstige Lösung für Mietswohnung

Hallo,

danke für eure Anregungen.

Die Ablage auf dem Turm wird nur dekorativ genutzt werden, z.B. mit einer schönen Grünpflanze und einer Obstschale ;-)

Der MUPL ist oben 3 unten 2, ist nur auf dieser Darstellung falsch ;D

Ist der Kaufvertrag so in Ordnung?

Gruß,
Pierre
 
Zuletzt bearbeitet:
AW: Günstige Lösung für Mietswohnung

Noch etwas: meint ihr wir sollten die Hängeschränke lieber in 90 cm Breite ausführen, um mehr Luft links und rechts zu schaffen?

Nach Aufmaß wurde klar, dass die Wand auf Kochfeldseite etwas kürzer ist als angenommen. Deswegen haben wir jetzt die Blenden der Ecke beidseitig auf 3 statt 5 cm gekürzt, dadurch endet die Küchenzeile jetzt ca. 2 cm vor dem Türrahmen. Ist das ausreichend? Oder lieber einen 90er Schrank auf 80 kürzen?

Weiterhin ist somit die Verblendung zur Wand beim Backofen auf ca. 10-13 cm gewachsen...

Gruß,
Pierre
 
AW: Günstige Lösung für Mietswohnung

Ich finde es ausreichend .. und beim Backofen schaden die 10 bis 13 cm nicht. Dann ist auf jeden Fall Ellbogenfreiheit. Wobei natürlich, wenn es wirklich 13 cm sind, man überlegen könnte, einen Unterschrank 10 cm breiter auszuführen.
 
AW: Günstige Lösung für Mietswohnung

Hallo Kerstin,

einen Unterschrank 10 cm breiter geht laut KFB nicht, da ja Geräteschrank und Spülmaschine fix 60 cm sind und der Spülenschrank nur bis 100 cm verfügbar ist.

Man könnte die Eckblende asymmetrisch machen, ist nur die Frage, ob das was aussieht!?

Gruß,
Pierre
 
AW: Günstige Lösung für Mietswohnung

Ich hatte die Spülenschrankbreite nicht im Kopf ... Man könnte dann evtl. 60er Spülenschrank und 50er Unterschrank ?

Man könnte aber jetzt auch einfach sagen ... alles ok und das wird eine gute Küche ;-).

Wie gesagt, die breitere Blende am Backofenschrank zur Wand hin, ist ja kein Fehler.
 
AW: Günstige Lösung für Mietswohnung

Hallo Hightower, bezüglich der Vollständigkeit auf dem Studioschrieb: Ich habe mir meine Küchenzeichnung genommen und mit den Geräten auf der Auftragsbestätigung (AU) abgeglichen, also quasi die Nummern drangeschrieben. Ist gar nicht so schwierig, da auf er AU steht, wieviel Schubladen und welche Breite. Was dann übrig bleibt, kannste ja noch mal konkret fragen. ;-)
 
AW: Günstige Lösung für Mietswohnung

Hallo, ich nerve bestimmt so langsam...:rolleyes:

also die Küche bleibt jetzt so, ist ja eh schon bestellt...

Einziges Kriterium, was mir noch Kopfzerbrechen bereitet ist die Dunstabzugshaube... Ich wollte eigentlich von Anfang an eine Kopffrei, aber uns wurde mehrfach davon abgeraten. Leider habe ich die normalen Hauben auf Grund meiner Größe von 1,94 m immer "im Gesicht hängen".

Man könnte natürlich statt der bisher gewählten die Neff DSE 3949 S oder alternativ die Franke Maris nehmen. Was sagt ihr dazu?

Gruß,
Pierre
 
Neff Hausgeräte Ballerina Küchen Blum Bewegungstechnologie Weibel - Intelligente Küchenlüftung

Neff Spezial

Blum Zonenplaner

Weibel Abluft-Tuning

Weibel Abluft-Tuning
Zurück
Oben