muehli_eins
Mitglied
- Beiträge
- 9
Hallo,
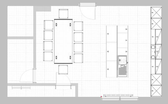
nachdem ich mich durch sehr viele Themen hier gelesen habe und diverse Möbelhäuser und Küchenverkäufer befragt habe würde ich jetzt gerne meine Planung zur Diskussion stellen. Sprich ich wüsste gerne wo aus euerer Sicht noch Optimierungsbedarf besteht und was ihr so gar nicht planen würdet.
Ich muss leider sagen, dass der Alno -Küchenplaner bei mir egal in welcher Version Fehlermeldungen liefert. Hab ihn mehrmals installiert. Hab jetzt mit Nobilia geplant. Bin aber gar nicht zufrieden mit dem Ergebnis. Nur die Auflistung der Einzelteile ist brauchbar. Ich hoffe, dass ich sie mit anhängen darf.
Hab allerdings eine Version von einem Küchenstudio da. Da haben haben wir mittlerweile aber den Kühlschrank geändert und bei der Insel auf der Rückseite die Aufteilung, da sollen jetzt ein 90er-Schrank, ein 30er mit Flaschenauszug und ein 60 Schrank hin. Anstatt zwei 90er mit Auszügen.
In den oberen Auszügen ist innen jeweils noch ein Schub mit verbaut.
Der Vorratsschrank im Highboard soll innen mit Auszügen sein.
Ich selber bin 31 und das wird die erste Küche von meinem Freund und mir.
Favorit ist eine Schüllerküche aus einem Küchenstudio mit einem Gerätemix aus Siemens und Constructa .
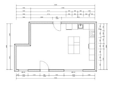
Im Geschossplan ist noch eine Wand dazwischen, die rausgerissen wird.
Ich hoffe ich hab jetzt keine wichtigen Details oder Infos vergessen und freue mich auf konstruktives Feedback.
Checkliste zur Küchenplanung
Anzahl Personen im Haushalt: 2
Davon Kinder?:
Art des Gebäudes?: Neu-/Umbau, Planänderungen möglich
Körpergrössen aller Hauptbenutzer (wegen Arbeitshöhe ) in cm: 173, 185
Brüstungshöhe des Fensters (in cm): 100
Fensterhöhe (in cm): 100
Raumhöhe in cm: 240
Heizung: Heizkörper wie im Grundriss
Sanitäranschlüsse: vollkommen variabel
Ausführung Kühlgerät: Integriert im Hochschrank (60cm)
Kühlgerät Größe: bis 122 cm Höhe
Ausführung Tiefkühl (TK)-Gerät: Nicht erforderlich bzw. steht woanders
Dunstabzugshaube: Abluft
Backofen etc. hochgebaut?: Ja
Hochgebauter Geschirrspüler ?: Ja
Kochfeldart: Induktion
Kochfeldbreite ca. (in cm)?: 60
Spülenform: 1 Becken mit Abtropffläche
Geplante Heißgeräte: Standmikrowelle, Backofen
Küchenstil: Modern
Sitzmöglichkeit in der Küche / im Küchenbereich: Gesonderter Tisch
Sitzmöglichkeit: Für wieviel Personen?: für 8 Personen
Sitzmöglichkeit: Tisch - wenn gesonderter Tisch oder offene Küche: Wird nach Bedarf neu gekauft
Gewünschte o. vorhandene Tischgröße: Es sollen definitiv 10 Leute bequem dort Essen können.
Wofür soll der Sitzplatz in der Küche genutzt werden? Wie häufig?: Eigentlich nur zum Essen und natürlich, wenn Gäste da sind. Gelegentlich wird man wohl auch Papierkram erledigen.
Welche Arbeitshöhe ist angedacht (in cm)?: 91
Was steht auf der Arbeitsplatte oder soll dort stehen?: Kaffeevollautomat, Wasserkocher, Messerblock, Allesschneider, Obstschale
Welche weiteren Küchenmaschinen müssen in der Küche untergebracht werden?: Küchenmaschine, Handrührgerät, Pürierstab
Was soll in der Küche außer den Standards untergebracht werden?: Geschirr komplett (nichts in Ess-/Wohnzimmer)
Welchen Stauraum gibt es sonst noch?: Speisekammer, Keller
Was/wie wird gekocht? (Alltagsküche, Menüs, Snacks usw): Gekocht wird bei uns gerade nur in den Küchen unserer jeweiligen Mütter. Wenn eigene vorhanden, dann vermutlich erstmal hauptsächlich am Wochenende, da wir eine Wochenendbeziehung führen. Später dann eigentlich täglich. Außerdem back ich relativ oft und gerne.
Wie häufig wird gekocht?: (fast) täglich 1x warm
Wird alleine gekocht? Oder auch gemeinsam? Mit und für Gäste?: Das ist unterschiedlich. Aber hauptsächlich werd wohl ich (173 cm) kochen.
Was stört an der bisherigen Küche und was soll die neue Küche unbedingt können? Warum?: Wenn ich die meiner Mutter sehe, dann weiß ich, dass ich keine Eckschranklösung will. Genauso wie ich eine gewisse Abneigung gegen Hängeschränke entwickelt habe. Denn bei uns ist nur in dem einen etwas sinnvolles (Geschirr) verstaut. Im Rest nur Zeug, dass selten benutzt wird.
Welche Mülltrennung soll in der Küche vorgehalten werden?: Altpapier, Biomüll, Plastik, Alu, Metall total getrennt, Restmüll
Steht schon ein Küchenhersteller fest oder wird bevorzugt?: Schüller
Steht schon ein Gerätehersteller fest oder wird bevorzugt?: Siemens oder Constructa
Preisvorstellung (Budget): bis 10.000,-
nachdem ich mich durch sehr viele Themen hier gelesen habe und diverse Möbelhäuser und Küchenverkäufer befragt habe würde ich jetzt gerne meine Planung zur Diskussion stellen. Sprich ich wüsste gerne wo aus euerer Sicht noch Optimierungsbedarf besteht und was ihr so gar nicht planen würdet.
Ich muss leider sagen, dass der Alno -Küchenplaner bei mir egal in welcher Version Fehlermeldungen liefert. Hab ihn mehrmals installiert. Hab jetzt mit Nobilia geplant. Bin aber gar nicht zufrieden mit dem Ergebnis. Nur die Auflistung der Einzelteile ist brauchbar. Ich hoffe, dass ich sie mit anhängen darf.
Hab allerdings eine Version von einem Küchenstudio da. Da haben haben wir mittlerweile aber den Kühlschrank geändert und bei der Insel auf der Rückseite die Aufteilung, da sollen jetzt ein 90er-Schrank, ein 30er mit Flaschenauszug und ein 60 Schrank hin. Anstatt zwei 90er mit Auszügen.
In den oberen Auszügen ist innen jeweils noch ein Schub mit verbaut.
Der Vorratsschrank im Highboard soll innen mit Auszügen sein.
Ich selber bin 31 und das wird die erste Küche von meinem Freund und mir.
Favorit ist eine Schüllerküche aus einem Küchenstudio mit einem Gerätemix aus Siemens und Constructa .
Im Geschossplan ist noch eine Wand dazwischen, die rausgerissen wird.
Ich hoffe ich hab jetzt keine wichtigen Details oder Infos vergessen und freue mich auf konstruktives Feedback.
Checkliste zur Küchenplanung
Anzahl Personen im Haushalt: 2
Davon Kinder?:
Art des Gebäudes?: Neu-/Umbau, Planänderungen möglich
Körpergrössen aller Hauptbenutzer (wegen Arbeitshöhe ) in cm: 173, 185
Brüstungshöhe des Fensters (in cm): 100
Fensterhöhe (in cm): 100
Raumhöhe in cm: 240
Heizung: Heizkörper wie im Grundriss
Sanitäranschlüsse: vollkommen variabel
Ausführung Kühlgerät: Integriert im Hochschrank (60cm)
Kühlgerät Größe: bis 122 cm Höhe
Ausführung Tiefkühl (TK)-Gerät: Nicht erforderlich bzw. steht woanders
Dunstabzugshaube: Abluft
Backofen etc. hochgebaut?: Ja
Hochgebauter Geschirrspüler ?: Ja
Kochfeldart: Induktion
Kochfeldbreite ca. (in cm)?: 60
Spülenform: 1 Becken mit Abtropffläche
Geplante Heißgeräte: Standmikrowelle, Backofen
Küchenstil: Modern
Sitzmöglichkeit in der Küche / im Küchenbereich: Gesonderter Tisch
Sitzmöglichkeit: Für wieviel Personen?: für 8 Personen
Sitzmöglichkeit: Tisch - wenn gesonderter Tisch oder offene Küche: Wird nach Bedarf neu gekauft
Gewünschte o. vorhandene Tischgröße: Es sollen definitiv 10 Leute bequem dort Essen können.
Wofür soll der Sitzplatz in der Küche genutzt werden? Wie häufig?: Eigentlich nur zum Essen und natürlich, wenn Gäste da sind. Gelegentlich wird man wohl auch Papierkram erledigen.
Welche Arbeitshöhe ist angedacht (in cm)?: 91
Was steht auf der Arbeitsplatte oder soll dort stehen?: Kaffeevollautomat, Wasserkocher, Messerblock, Allesschneider, Obstschale
Welche weiteren Küchenmaschinen müssen in der Küche untergebracht werden?: Küchenmaschine, Handrührgerät, Pürierstab
Was soll in der Küche außer den Standards untergebracht werden?: Geschirr komplett (nichts in Ess-/Wohnzimmer)
Welchen Stauraum gibt es sonst noch?: Speisekammer, Keller
Was/wie wird gekocht? (Alltagsküche, Menüs, Snacks usw): Gekocht wird bei uns gerade nur in den Küchen unserer jeweiligen Mütter. Wenn eigene vorhanden, dann vermutlich erstmal hauptsächlich am Wochenende, da wir eine Wochenendbeziehung führen. Später dann eigentlich täglich. Außerdem back ich relativ oft und gerne.
Wie häufig wird gekocht?: (fast) täglich 1x warm
Wird alleine gekocht? Oder auch gemeinsam? Mit und für Gäste?: Das ist unterschiedlich. Aber hauptsächlich werd wohl ich (173 cm) kochen.
Was stört an der bisherigen Küche und was soll die neue Küche unbedingt können? Warum?: Wenn ich die meiner Mutter sehe, dann weiß ich, dass ich keine Eckschranklösung will. Genauso wie ich eine gewisse Abneigung gegen Hängeschränke entwickelt habe. Denn bei uns ist nur in dem einen etwas sinnvolles (Geschirr) verstaut. Im Rest nur Zeug, dass selten benutzt wird.
Welche Mülltrennung soll in der Küche vorgehalten werden?: Altpapier, Biomüll, Plastik, Alu, Metall total getrennt, Restmüll
Steht schon ein Küchenhersteller fest oder wird bevorzugt?: Schüller
Steht schon ein Gerätehersteller fest oder wird bevorzugt?: Siemens oder Constructa
Preisvorstellung (Budget): bis 10.000,-
Anhänge



