Maximera
Mitglied
- Beiträge
- 2
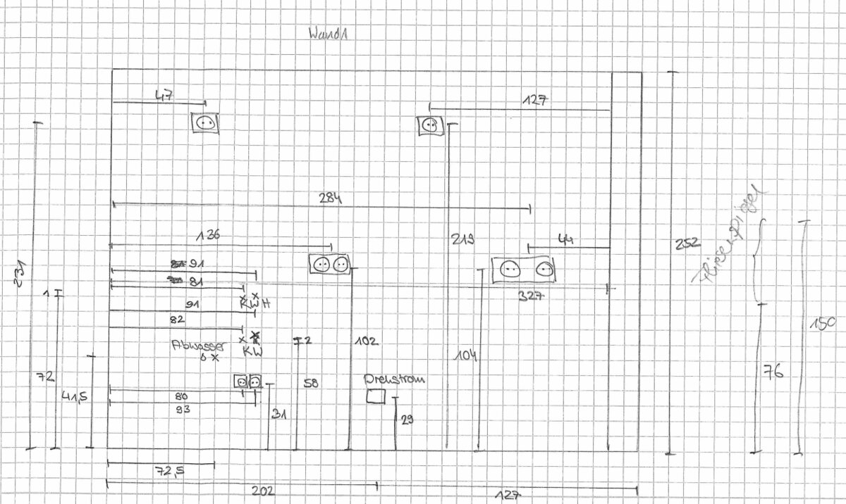
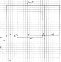
8,6 m² mit niedrigem Fenster
Liebe Küchenforumsplanungsexperten!
Aktuell versuche ich mich an der Planung für unsere frisch bezogene Mietwohnung. Für spannende Küchenkonzepte scheint in diesem 8,6 m² leider kein Platz zu sein, was für uns auch okay ist (die Wohnung wird wohl nicht für die Ewigkeit gehalten). Ein Ärgernis gibt es jedoch: Das (neue!) große Fenster hat leider nur eine Höhe von 86 cm (also der niedrigste Teil des Flügels). Bei einer geplanten Zeilenhöhe von 97 cm muss man also ein ordentliches Stück von der Küchenzeile ausnehmen, da es sonst zur Kollision kommt.
Mit dem ALNO Küchenplaner habe ich das auch mal mit einem halbtiefen Schrank gestellt, bin allerdings nicht ganz glücklich gewesen.
Nicht zuletzt, weil sich die Beschaffung wegen Corona noch weiter in die Länge ziehen könnte, habe ich auch schon an die Anschaffung einer IKEA Küche gedacht.
Dort habe ich mal eine andere Variante probiert, in dem der Herd ganz rechts und entsprechend so tief (85 cm) gesetzt sein soll, dass sich das Fenster (zumindest ohne Töpfe) öffnen ließe.
Happy bin ich aber mit beiden Planungen noch nicht so richtig.
Habt ihr vielleicht noch eine weitere Alternative?
Sicher bin ich mir auch noch nicht mit der Platzierung der Spülmaschine (schon vorhanden). Entweder direkt links an der Tür oder erst der Spülenschrank.
Vielen Dank, viele Grüße & bleibt gesund!
Checkliste zur Küchenplanung
Personenkriterien und Ergonomie
Anzahl Personen im Haushalt: 2
Davon Kinder: keine
Körpergrößen aller Hauptbenutzer in cm (wegen Arbeitshöhe ): 1,82 und 1,75
Welche Arbeitshöhe ist angedacht (in cm)?: 97
Gebäudekriterien
Art des Gebäudes: Miete
Brüstungshöhe des Fensters (in cm): 86
Fensterhöhe (in cm): 140
Raumhöhe in cm: 250
Heizung: Heizkörper wie im Grundriss
Sanitäranschlüsse: fix
Einbaugerätekriterien
Ausführung Kühlgerät: Integriert im Hochschrank (60cm)
Einbaukühlgerät Größe: 158cm
Ausführung Tiefkühl (TK)-Gerät: Im Kühlschrank ab 3 Schubladen unten
Dunstabzugshaube: Umluft
Hochgebauter Backofen : wenn möglich
Geplante Heißgeräte: Einbaumikrowelle, Backofen
Hochgebauter Geschirrspüler : nein
Art des Kochfeldes: Induktion
Kochfeldbreite (ca. in cm): 60
Sitzmöglichkeiten
Sitzmöglichkeit in der Küche / im Küchenbereich: Keine
Sitzmöglichkeit: Für wieviel Personen?: nein
Sitzmöglichkeit: Tisch - wenn gesonderter Tisch oder offene Küche: Keiner
Gewünschte oder vorhandene Tischgröße:
Wofür soll der Sitzplatz in der Küche genutzt werden und wie häufig:
Stauraumplanung
Was steht auf der Arbeitsplatte oder soll dort stehen?: Kaffeemaschine, Wasserkocher
Welche weiteren Küchenmaschinen müssen in der Küche untergebracht werden: Allesschneider (z.B. in Schublade), Handrührgerät, Mixer, Pürierstab
Was soll in der Küche außer den Standards untergebracht werden: N. a.
Welchen Stauraum gibt es sonst noch: Geschirr/Gläserschrank im Wohn-/Esszimmer, Hauswirtschaftsraum, Keller
Kochgewohnheiten
Was/wie wird gekocht? (Alltagsküche, Menüs, Snacks usw): Von Snacks bis Menü
Wie häufig wird gekocht: (fast) täglich 1x warm
Wird alleine gekocht? Oder auch gemeinsam? Mit und für Gäste?: Alles
Spülen und Müll
Spülenform: Noch nicht festgelegt
Welche Mülltrennung soll in der Küche vorgehalten werden: Altpapier, Gelber Sack Müll, Restmüll
Sonstiges
Steht schon ein Küchenhersteller fest oder wird bevorzugt:
Steht schon ein Gerätehersteller fest oder wird bevorzugt:
Küchenstil: Grifflose Küche
Was stört an der bisherigen Küche und was soll die neue Küche unbedingt können? Warum?: Neubezug
Preisvorstellung (Budget): 5000
Angehängte Dateien
Liebe Küchenforumsplanungsexperten!
Aktuell versuche ich mich an der Planung für unsere frisch bezogene Mietwohnung. Für spannende Küchenkonzepte scheint in diesem 8,6 m² leider kein Platz zu sein, was für uns auch okay ist (die Wohnung wird wohl nicht für die Ewigkeit gehalten). Ein Ärgernis gibt es jedoch: Das (neue!) große Fenster hat leider nur eine Höhe von 86 cm (also der niedrigste Teil des Flügels). Bei einer geplanten Zeilenhöhe von 97 cm muss man also ein ordentliches Stück von der Küchenzeile ausnehmen, da es sonst zur Kollision kommt.
Mit dem ALNO Küchenplaner habe ich das auch mal mit einem halbtiefen Schrank gestellt, bin allerdings nicht ganz glücklich gewesen.
Nicht zuletzt, weil sich die Beschaffung wegen Corona noch weiter in die Länge ziehen könnte, habe ich auch schon an die Anschaffung einer IKEA Küche gedacht.
Dort habe ich mal eine andere Variante probiert, in dem der Herd ganz rechts und entsprechend so tief (85 cm) gesetzt sein soll, dass sich das Fenster (zumindest ohne Töpfe) öffnen ließe.
Happy bin ich aber mit beiden Planungen noch nicht so richtig.
Habt ihr vielleicht noch eine weitere Alternative?
Sicher bin ich mir auch noch nicht mit der Platzierung der Spülmaschine (schon vorhanden). Entweder direkt links an der Tür oder erst der Spülenschrank.
Vielen Dank, viele Grüße & bleibt gesund!
Checkliste zur Küchenplanung
Personenkriterien und Ergonomie
Anzahl Personen im Haushalt: 2
Davon Kinder: keine
Körpergrößen aller Hauptbenutzer in cm (wegen Arbeitshöhe ): 1,82 und 1,75
Welche Arbeitshöhe ist angedacht (in cm)?: 97
Gebäudekriterien
Art des Gebäudes: Miete
Brüstungshöhe des Fensters (in cm): 86
Fensterhöhe (in cm): 140
Raumhöhe in cm: 250
Heizung: Heizkörper wie im Grundriss
Sanitäranschlüsse: fix
Einbaugerätekriterien
Ausführung Kühlgerät: Integriert im Hochschrank (60cm)
Einbaukühlgerät Größe: 158cm
Ausführung Tiefkühl (TK)-Gerät: Im Kühlschrank ab 3 Schubladen unten
Dunstabzugshaube: Umluft
Hochgebauter Backofen : wenn möglich
Geplante Heißgeräte: Einbaumikrowelle, Backofen
Hochgebauter Geschirrspüler : nein
Art des Kochfeldes: Induktion
Kochfeldbreite (ca. in cm): 60
Sitzmöglichkeiten
Sitzmöglichkeit in der Küche / im Küchenbereich: Keine
Sitzmöglichkeit: Für wieviel Personen?: nein
Sitzmöglichkeit: Tisch - wenn gesonderter Tisch oder offene Küche: Keiner
Gewünschte oder vorhandene Tischgröße:
Wofür soll der Sitzplatz in der Küche genutzt werden und wie häufig:
Stauraumplanung
Was steht auf der Arbeitsplatte oder soll dort stehen?: Kaffeemaschine, Wasserkocher
Welche weiteren Küchenmaschinen müssen in der Küche untergebracht werden: Allesschneider (z.B. in Schublade), Handrührgerät, Mixer, Pürierstab
Was soll in der Küche außer den Standards untergebracht werden: N. a.
Welchen Stauraum gibt es sonst noch: Geschirr/Gläserschrank im Wohn-/Esszimmer, Hauswirtschaftsraum, Keller
Kochgewohnheiten
Was/wie wird gekocht? (Alltagsküche, Menüs, Snacks usw): Von Snacks bis Menü
Wie häufig wird gekocht: (fast) täglich 1x warm
Wird alleine gekocht? Oder auch gemeinsam? Mit und für Gäste?: Alles
Spülen und Müll
Spülenform: Noch nicht festgelegt
Welche Mülltrennung soll in der Küche vorgehalten werden: Altpapier, Gelber Sack Müll, Restmüll
Sonstiges
Steht schon ein Küchenhersteller fest oder wird bevorzugt:
Steht schon ein Gerätehersteller fest oder wird bevorzugt:
Küchenstil: Grifflose Küche
Was stört an der bisherigen Küche und was soll die neue Küche unbedingt können? Warum?: Neubezug
Preisvorstellung (Budget): 5000
Angehängte Dateien
Anhänge
