Verbesserungsvorschläge Siematic-Küche

AW: Verbesserungsvorschläge Siematic -Küche

Ich sehe schon in 1-2 Jahren die ganzen I-Pad´s auf dem Schrank, da es dann keine gedruckte Zeitung mehr gibt... :rofl:

das wird teuer....

mfg

Racer
 
AW: Verbesserungsvorschläge Siematic -Küche

Nur mal zur Info für den TE, falls hier das Off-Topic-Geplänkel kritisiert werden sollte:

Mit der Planungsoptimierung läuft das entweder so wie hier oder so wie z.B. in dem Thema von pebs:

Fertiggestellte Küche - Vertrag unterschrieben - große Unsicherheit

Themeneröffnung gestern um 8:00
Heute um 23.00 = 127 Antworten und fast 1500 Hits

Wenn man mitmacht wird das auch was... ;-)
 
Zuletzt bearbeitet:
AW: Verbesserungsvorschläge Siematic -Küche

Oh Gott, oh Gott,
:cool: was mach ich nur, ich habe keine I-Pad und auch nicht die Absicht mir einen zuzulegen.

Aber das sagte ich beim Handy auch. :tounge:
 
AW: Verbesserungsvorschläge Siematic -Küche

...dann fängst du am besten schon mal an, Zeitungspapier zu sammeln. ;-) Ansonsten würde sich vielleicht auch die Küchenrolle eignen oder Servierten. Das wird aber teurer! :girlblum: ...ähm, teurer als Zeitungspapier, meinte ich. :cool:
 
AW: Verbesserungsvorschläge Siematic -Küche

Habe den Thread gerade erst entdeckt und muss mich gleich mal gegen Deine Einwände bzgl. meiner Küche bei Doppelkeks wehren,
und hier mal die Schreinerehre verteidigen;-)

Materialien sind Ausdruck des Budgets, und Farben/Dekore Ausdruck des privaten Geschmacks.
Für das, was dir die Siematic-Jungs aus der Nase ziehen, bekommst Du bei wohl den allermeisten Schreinern beinahe doppelt so viel Küche.
Und das zur Strafe auch noch...
-Individueller
-Kundenspezifischer
-viel mehr passende Detaillösungen
-Geht nicht gibts kaum beim Küchenschreiner (wobei ich Küchen... betone).

Was soll das kosten ? an die 45 T€ mit Geräten ?.

Da bauen bspw. ich und andere mit Sicherheit was ganz anderes als diese m.M. lieblos zusammengestellte 08/15-Siematic.
Hier im Forum kenne ich nur eine Küche mit höherem Budget, und die IST das Doppelte an Küche und eine Schreinerküche (nicht von einem Schreiner der hier vertreten ist)


Sorry... Das musst jetzt sein :knuppel: .

Samy

Beispiele, leider wohl eher in Farben die den Kunden selbst gefallen-
Alles Beispiele für 20 Jahre alten Einrichtungs-Stil
keine davon über 35 T€ Komplettpreis incl. Geräten.

Die Bilder sind Tumbnails (Links zu den Alben)

Spüle, Kochfeld (1,1m) flächenbündig
Insel aus dem Stein des Bodens
Fronten Eiche schwarz, gebürstet
Grifflose Ausführung

dito mit Miele Heissgerätesatz
APL 20 mm in Anorthosit, unten mit Edelstahl aufgedoppelt
Fronten Hochglanz Champagnermetalic


Spüle, Kochfeld flächenbündig
Arbeitsplatte Quarzkomposit 10 cm
Fronten weiss Hochglanz-Acryl


Kochfeld 1,60 Meter,
Arbeitsplatte 12 mm Quarzkomposit .
Fronten Echtaluminium
 
Zuletzt bearbeitet von einem Moderator:
AW: Verbesserungsvorschläge Siematic-Küche

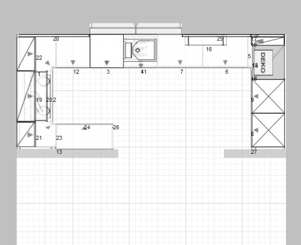
Haben wir eigentlich schon einen Küchengrundriss, also nicht die Küchenplanung an sich sondern einen vermaßten Raumgrundriss und Geschossgrundriss?

Dann könnte man ja auch mal nachbauen und Veränderungen visualisieren;-)

Ma ehrlich: einen Geschossgrundriss braucht es hier doch wirklich nicht.

Die Raumgröße ist im Küchenplan und vom TE bestätigt.
Die Trennwände kann man abschätzen, auch auf Grund der Fliesen am Boden aus dem Bild der neuen Küche, die 40x40 sein dürften (GSP steht auf genau 1,5 Fliesen). Und genauere Maße braucht man nicht unbedingt, denn bei 204cm Raumbreite wird doch keiner einen Zweizeiler planen wollen?? Da bliebe eine Gangbreite von 85cm, die hier ja nun nicht wirklich sein muss.

Also, wer Lust hat: los gehts! ;-)
 

Anhänge

  • kf_Küchenjung_Grundriss.POS
    2,4 KB · Aufrufe: 162
  • kf_Küchenjung_Grundriss.KPL
    4,1 KB · Aufrufe: 151
AW: Verbesserungsvorschläge Siematic-Küche

Also ich kann nur sagen, auch wenn das den TE nervt, hätte ich diese Summe für eine Küche zur Verfügung, ja dann, dann wäre Samy oder auch jeder andere gute Küchenschreiner sofort mein bester Freund. Mehr Individualität kann man doch gar nicht bekommen. Da wird einem doch quasi jeder Wunsch von den Augen abgelesen.
LG Hexe
 
AW: Verbesserungsvorschläge Siematic-Küche

Ich habe folgenden Vorschlag, in den die Tipps der Profis mit eingeflossen sind:

Als erstes einen 6-Raster Korpus wählen, der mehr Stauraum und mehr Möglichkeiten bietet, und dir eine gute Arbeitshöhe ohne allzugroßen Sockel bringt.
Vergleich 5-Raster zu 6-Raster (ein Raster = eine Schubladenhöhe):
-

planrechts 4cm Blende, 60cm KS, 60cm Heißgeräte-Schrank, 15cm Unterschrank (Backbleche, Handtücher,...), 60cm breiter und 60cm tiefer Aufsatzschrank mit Rolladen, in dem auch eine Stand-Mikrowelle verschwinden kann (Stand-MWs sind deutlich günstiger und können das gleiche). Neben dem Aufsatzschrank ein 15cm Kochbuch- oder Weinflaschenregal, nach Belieben auch mit Tür davor.

Tote Ecke. 2x 80cm Unterschrank in der Einteilung 1-1-2-2.
Spüle, GSP, 60cm US 3-3 für Biomüll direkt unter der AP (sehr praktisch beim Schnibbeln!)

Tote Ecke, 90cm Kochfeldunterschrank.
Tote Ecke und mindertiefer (45cm statt 60cm) 100cm US.
Diese beiden Schränke in der 1-2-3 Einteilung für die hohen Dinge, die man so unterbringen muss (Lesestoff).

Der Hängeschrankbereich deutlich reduziert. Das ergibt etwas weniger Stauraum, aber sieht halt viel besser und luftiger aus.
Am besten, du machst mal eine Stauraumplanung . Aber im Vergleich zu deiner neuen Küche dürfte das immer noch geschätzt doppelt so viel sein, und durch die Auszüge viel besser zugänglich. ;-)
 

Anhänge

  • kf_Küchenjung_V1.KPL
    4,1 KB · Aufrufe: 135
  • kf_Küchenjung_V1.POS
    7,2 KB · Aufrufe: 133
  • kf_Küchenjung_V1_A1.jpg
    kf_Küchenjung_V1_A1.jpg
    49,3 KB · Aufrufe: 225
  • kf_Küchenjung_V1_A2.jpg
    kf_Küchenjung_V1_A2.jpg
    47,7 KB · Aufrufe: 652
  • kf_Küchenjung_V1_A3.jpg
    kf_Küchenjung_V1_A3.jpg
    41,5 KB · Aufrufe: 678
  • kf_Küchenjung_V1_G.JPG
    kf_Küchenjung_V1_G.JPG
    51,1 KB · Aufrufe: 217
AW: Verbesserungsvorschläge Siematic-Küche

Liebe Annette,

vielen Dank für Deine Mühe-das haut mich ja fast von den Socken.
Danke, dass Du und ihr in Eurer Freizeit an meiner Küche helft-sieht man nicht oft.
Ergebnis: ich nutze meine einegeräumte Stornofrist und storniere die Küche, denn ich merke, dass meine Planung ein Schnellschuss war....

Annette-vielen Dank für die konkreten Vorschläge-sie helfen meiner Frau und mir so gut weiter!!
Vor allem sind sie produktiv für mich (im Gegensatz zu manch anderem Post), wei mir hier die Phantasie fehlt.

Was habe ich verstanden:
-weniger Sockelhöhe, dafür ein 6er Raster 1-2-3 in der Herdecke (planlinks) und planrechts ein 1-1-2-2-Raster: SUUPERTIPP
(Mich ärgert, dass der Küchemann mir das nicht vorgeschlagen hat...)
-15cm Unterschrank zum Rausziehen für Backbleche-da könne man ja eine der obersten Schubladen nehmen, denn ich brauche Dampfgarer, Backofen und Kaffeautomat
-tote Ecken sind uns klar, aber mit LeMans gewinnt man ja auch nicht viel Stauraum dazu

was wollen wir nicht
-Rolläden: halte ich für ne Modeerscheinung-nicht unser Geschmack
-Wein lagert besser im Keller
-waagerechte Bereiche, wo ich dann immer wischen muss


Danke Reinhold
 
AW: Verbesserungsvorschläge Siematic-Küche

Hallo Racer, Angelika, Michael und Mela

der Tipp mit der Unterbauhaube und dem Wrasen ...glaub ich nicht ganz als Physiker, denn:
Die Luftströmung ist am Rand fast ruhig-keine Geschwindigkeit. In meiner neuen Küche war auch ganz viel Wrasen und nichts ist kaputt...

Ja die Eckesn dind blind.
Der sockel hat die gleiche Farbe wie dieKüche.

Ja ich krauche auch ganz oben in die Oberschränke ein.

Ja, über den Hängeschränken ist eine Kranzleiste alles zu.

Es gibt auch Kühlschränke, die kein Lüftungsgitter benötigen (Siemens ).
 
AW: Verbesserungsvorschläge Siematic-Küche

Reinhold,
anstelle des Jalousienschrankes kannst du auch einen Ullaschrank oder einen Ausatztschrank mit unten Lifttür für Kaffeevollautomat nehmen - wären evtl. wegen des Maßes Sonderanfertigungen.

Meine Schwester hat anstelle eines 15er Unterschrankes die tote Ecke vegrößert und eine Tür eingebautund in der toten Ecke eine Zwischenwand - genaue Maße weiß ich leider nicht. Hier lagert sie das Hundefutter oder was du willst. Die Ecke ist dann nicht ganz tot.

Conny,
ich werde deinen Rat beherzigen oder noch und nach Bücher aussortieren. :tounge:;-)
 
AW: Verbesserungsvorschläge Siematic-Küche

Hallo Schreinersam,

vielen Dank für Deine Anregungen.
Diener Schreinerküchen gefallen mir gut. Das Problem wird sein, dass Du woanders wohnst-wir in der Nähe von Freiburg.

Naja-mir ist jetzt klar geworden, dass ich die Küchenplanung nicht über das Knie brechen sollte.


Danke auch für das Video-wir sind aber zum Glück schon beim Einzelhändler

Gruß Reinhold
 
AW: Verbesserungsvorschläge Siematic-Küche

Samy liefert überall hin ;-). Der ist räumlich nicht gebunden. Und die paar Euro mehr für einen weiteren Lieferweg fallen nicht wirklich ins Gewicht. Wobei Freiburg für ihn ja fast noch Vorortverkehr ist.
 
AW: Verbesserungsvorschläge Siematic-Küche

Bei der Schrankaufteilung kommt es jedoch auch auf die Art der grifflosen Küche an. Ich gehe mal davon aus, dass diese Aufteilung bei der Siematic auf Grund der Griffleiste nicht möglich ist. Somit musst Du entweder eine andere grifflose Küche nehmen, wo die Grifflosigkeit an der Front sitzt oder Fronten mit Griffleisten. Dann geht alles.

Zudem sehen zu viele Schubkästen und Auszüge bei einer Grifflosen schnell unruhig aus und die Küche sollte hier eigentlich dezent und ruhig wirken.

Somit solltet Ihr Euch auch Gedanken machen, was Euch wichtig ist und was Ihr wollt.

Alles Machbare ergibt sich mit folgenden Griffen: z.B.:

ALNO Art-pro.jpg

Griff 184.jpg

Alternativ kann man auch Schränke ohne Griffe bestellen und arbeitet zum Öffnen bei Auszügen mit einem Motor.

Die Mädels haben bestimmt auch noch andere Bilder und Beispielmöglichkeiten im Archiv.
 
AW: Verbesserungsvorschläge Siematic-Küche

Und es geht auch

soAran_Volare_laccato.jpg und Aran_Volare_laccato_2.jpg

oder so
ARAN_Masca_laccata.jpg

oder auch

soMendelson_Kueche 023.jpg

Weeste jetz wie ??
 
AW: Verbesserungsvorschläge Siematic-Küche

Das ist ein guter Ansatz: lass dir Zeit.
Ein Auto kauft man ja auch nicht zwischen Mittagessen und Kaffee, und das wir normalerweise schneller ausgetauscht. - Okay, du hast gar kein Auto, also nur als Beispiel.
Die Küche werdet ihr wahrscheinlich mehr als 20 Jahre haben. Da lohnt es sich schon, das Optimum aus Optik mit Funktionalität herauszuholen. Das dauert einfach länger als eine Sitzung beim :kfb:.
 
AW: Verbesserungsvorschläge Siematic-Küche

Mich würde schon mal interessieren, wie es weitergeht, denn meine Idee basiert darauf, die halbhohe Wand aufzudocken und zu einer 120 cm hohen Arbeitsfläche zu machen, die eben aufgrund der nur 204 cm Raumtiefe aber etwas Platz im angrenzenden Bereich kosten würde ;-)

Trotzdem hier mal die Idee:

Rechts Kühlschrank und BO/DG
Links hochgebaute GSP/Mikrowelle und in der Ecke der KVA ... evtl. ist er dort auch noch von der anderen Tresenseite erreichbar.

Die Fensterzeile in Übertiefe, die Fensterbank des Fensters entfernt und die APL dort reingeführt. Damit entsteht dort APL in 85 bis 90 cm Tiefe.

DAH als Deckenhaube mit Außenmotor, dadurch kann die Abhängung, die seitlich auch den Abschluß der Hochschränke zur Decke bildet, flach gehalten werden.

Über den toten Ecken rechts und links noch hochschranktiefe Hängeschränke für die eher selten benötigten Teile.

Ansonsten noch Müll unter der APL und die Abbildung einer möglichen Schreinerlösung.

120 cm breite Auszüge unten, die im oberen Bereich in schmaleren Abschnitten weitergeführt werden.

Ich habe das alles mal entsprechend beschriftet, auch was ich mir wo in der Unterbringung vorstellen kann.
 

Anhänge

  • kf_Küchenjung_20121018_kb_va1_Ansicht6.jpg
    kf_Küchenjung_20121018_kb_va1_Ansicht6.jpg
    29,1 KB · Aufrufe: 192
  • kf_Küchenjung_20121018_kb_va1_Ansicht1.jpg
    kf_Küchenjung_20121018_kb_va1_Ansicht1.jpg
    23,9 KB · Aufrufe: 192
  • kf_Küchenjung_20121018_kb_va1_Ansicht2.jpg
    kf_Küchenjung_20121018_kb_va1_Ansicht2.jpg
    32,9 KB · Aufrufe: 208
  • kf_Küchenjung_20121018_kb_va1_Ansicht2Inhalte.jpg
    kf_Küchenjung_20121018_kb_va1_Ansicht2Inhalte.jpg
    59,3 KB · Aufrufe: 192
  • kf_Küchenjung_20121018_kb_va1_Ansicht3.jpg
    kf_Küchenjung_20121018_kb_va1_Ansicht3.jpg
    22,9 KB · Aufrufe: 171
  • kf_Küchenjung_20121018_kb_va1_Ansicht3Inhalte.jpg
    kf_Küchenjung_20121018_kb_va1_Ansicht3Inhalte.jpg
    31,7 KB · Aufrufe: 191
  • kf_Küchenjung_20121018_kb_va1_Ansicht4.jpg
    kf_Küchenjung_20121018_kb_va1_Ansicht4.jpg
    23,5 KB · Aufrufe: 194
  • kf_Küchenjung_20121018_kb_va1_Ansicht4Inhalt.jpg
    kf_Küchenjung_20121018_kb_va1_Ansicht4Inhalt.jpg
    40,8 KB · Aufrufe: 200
  • kf_Küchenjung_20121018_kb_va1_Ansicht5.jpg
    kf_Küchenjung_20121018_kb_va1_Ansicht5.jpg
    33,2 KB · Aufrufe: 191
Zuletzt bearbeitet von einem Moderator:
AW: Verbesserungsvorschläge Siematic-Küche

... und hier noch Grundriss und Alnodateien
 

Anhänge

  • kf_Küchenjung_20121018_kb_va1_Grundriss.jpg
    kf_Küchenjung_20121018_kb_va1_Grundriss.jpg
    28,4 KB · Aufrufe: 145
  • kf_Küchenjung_20121018_kb_va1.POS
    12 KB · Aufrufe: 128
  • kf_Küchenjung_20121018_kb_va1.kpl
    4,1 KB · Aufrufe: 127
AW: Verbesserungsvorschläge Siematic-Küche

Die von Gatto1 oben gezeigten elektrischen p2o (push to open)-Auszüge sind sind dieser Preisklasse absolut unproblematisch. Gibt es auch schon mit dem neuen Spitzenauszug Arcitec von Hettich und nennt sich "easys".
Habe ich in der folgenden Küche integriert (easys, noch nicht Arcitec), zusammen mit einer pfiffigen Lösung für hochgebaute Geräte in einer grifflosen Hochschrankwand.

Da jammern die:girldance: immer "DAS geht gar nicht" .

Danke übrigens für deine Neubetrachtung des Themas Schreinerküche.

Samy
P.S.: Ob Freiburg im Breisgau, oder sonstwo in Europa ist mir wirklich schnuppe;-)
*Angebermodus off*
 
Zuletzt bearbeitet von einem Moderator:
AW: Verbesserungsvorschläge Siematic-Küche

ich möchte hier nicht mit einem Physiker diskutieren.. aber Hauben schaffen nie 100% des Wrasens weg..... Querströmungen durch Bewegung im Raum sind zu berücksichtigen...

ansonsten kann ich nur aus Erfahrung sprechen.. dazu gehört auch, dass die meisten Hauben zu spät eingeschaltet werden...

ich tausche gerade noch wieder eine Küche bei guten Freunden, die genau diesen Schaden links und rechts der Haube aufweisen... und selbst hier im Forum haben wir über diese Fälle und evtl. zu montierende Wrasenleitbleche mehr als einmal diskutiert...

mfg

Racer
 

Ähnliche Beiträge

Neff Hausgeräte Ballerina Küchen Blum Bewegungstechnologie Weibel - Intelligente Küchenlüftung

Neff Spezial

Blum Zonenplaner

Weibel Abluft-Tuning

Weibel Abluft-Tuning
Zurück
Oben