Ariel-Nova
Mitglied
- Beiträge
- 12
Hallo Ihr lieben Kreativen!
Vielleicht könnt ihr uns helfen. Als erstes muss ich mich entschuldigen, ich bin anscheint kein ALNO Naturtalent
Aber ich kann euch versichern, ich habe mich bemüht...
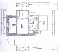
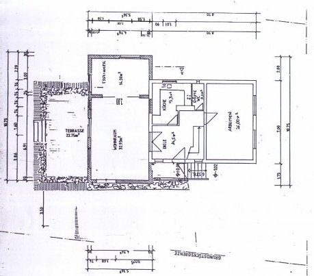
Wir haben uns gerade ein kleines "neues" Haus gekauft und planen jetzt wie wir es umbauen können, damit es zu uns passt. Leider hat das Haus nur eine winzige Küche 9qm, die auch noch recht dunkel ist. Deswegen haben wir uns überlegt, die Küche ins Wohnzimmer zu verlegen.
Die Küchenideen die wir bisher gesammelt haben (Ikea , Möbel Kraft) sind alle etwas langweilig und da ich hier so viele tolle Küchen gesehen habe, will ich jetzt auch eine super Küche! Leider mit einem kleine Budget -aber vielleicht habt ihr ja eine Idee.
Unsere Überlegung / Wünsche sind:
Ich hoffe ihr könnt uns helfen und habt ein paar Ideen.
Ich hoffe es hat mir den Bildern geklappt...
LG
Checkliste zur Küchenplanung von Ariel-Nova
Anzahl Personen im Haushalt : 3
Davon Kinder? : 2
Körpergrössen aller Hauptbenutzer (wegen Arbeitshöhe ) in cm : 173- 187 und die Kinder 116-140
Art des Gebäudes? : Bestandsbau, (kleinere) Umbauten möglich
Brüstungshöhe des Fensters (in cm) : 110
Fensterhöhe (in cm) : 120
Raumhöhe in cm: : 270
Heizung : Fussbodenheizung
Sanitäranschlüsse : vollkommen variabel
Ausführung Kühlgerät? : Side by Side ca. 90cm breit
Kühlgerät Größe : bis 158 cm Höhe
Ausführung Tiefkühl (TK)-Gerät : Nicht erforderlich bzw. steht woanders
Dunstabzugshaube? : Abluft
Hochgebauter Backofen ? : Ja
Hochgebauter Geschirrspüler ? : wenn möglich
Kochfeldart? : Induktion
Kochfeldbreite ca. (in cm)? :
Spülenform: : Noch nicht festgelegt
Weitere geplante Heißgeräte :
Küchenstil? : modern
Sitzmöglichkeit in der Küche / im Küchenbereich als : Gesonderter Tisch
Sitzmöglichkeit: Für wieviel Personen? : für 6 Personen
Sitzmöglichkeit: Tisch - wenn gesonderter Tisch oder offene Küche : Vorhandener Tisch
Gewünschte o. vorhandene Tischgröße : 1m x 2,50-3,50cm
Wofür soll der Sitzplatz in der Küche genutzt werden? Wie häufig? : Sitzen, essen, Kaffee trinken usw.
Welche Arbeitshöhe ist angedacht (in cm)? : 92cm
Was steht auf der Arbeitsplatte oder soll dort stehen? : Kaffeevollautomat, Wasserkocher, Toaster
Welche weiteren Küchenmaschinen müssen in der Küche untergebracht werden? : Handrührgerät, Mixer, Pürierstab, Eierkocher
Was soll in der Küche außer den Standards untergebracht werden? : Geschirr komplett (nichts in Ess-/Wohnzimmer)
Welchen Stauraum gibt es sonst noch? : Hauswirtschaftsraum, Keller
Was/wie wird gekocht? (Alltagsküche, Menüs, Snacks usw) : Von Alltagsküche bis Menü
Wie häufig wird gekocht? : (fast) täglich 1x warm
Wird alleine gekocht? Oder auch gemeinsam? Mit und für Gäste? : Alleine aber auch gerne mit den Kindern.
Was stört an der bisherigen Küche und was soll die neue Küche unbedingt können? Warum? : Die "neue" Küche ist viel viel zu klein und hat zuwenig Stauraum.
Steht schon ein Küchenhersteller fest oder wird bevorzugt? : evtl. Ikea?
Steht schon ein Gerätehersteller fest oder wird bevorzugt? :
Preisvorstellung (Budget) : bis 5.000,- (nur Möbel)
__________________________Ergänzungen im Threadverlauf:
Grundrissansichten einheitlich ausgerichtet!
Vielleicht könnt ihr uns helfen. Als erstes muss ich mich entschuldigen, ich bin anscheint kein ALNO Naturtalent
Wir haben uns gerade ein kleines "neues" Haus gekauft und planen jetzt wie wir es umbauen können, damit es zu uns passt. Leider hat das Haus nur eine winzige Küche 9qm, die auch noch recht dunkel ist. Deswegen haben wir uns überlegt, die Küche ins Wohnzimmer zu verlegen.
Die Küchenideen die wir bisher gesammelt haben (Ikea , Möbel Kraft) sind alle etwas langweilig und da ich hier so viele tolle Küchen gesehen habe, will ich jetzt auch eine super Küche! Leider mit einem kleine Budget -aber vielleicht habt ihr ja eine Idee.
Unsere Überlegung / Wünsche sind:
- möglichst die Spüle oder den Herd an die Wand zur ehemaligen Küche zulegen um die Leitungen nicht zulang werden zulassen.
- Hängeschränke mögen wir nicht sonderlich, also vereinzelnd schon, aber nicht die ganze Küche
- der Side by Side Kühlschrank ist ein Muss, sagt mein Mann *g*
- Ich hab hier bei Euch einige Küchen mit der Dunstabzugshaube an der Decke gesehen, dass gefällt uns
aber geht es auch bei 270 cm Deckenhöhe?
- Auf jeden Fall eine Keramikspüle (wahrscheinlich von Ikea)
- den Backofen hoch möchten wir unbedingt, beim Geschirrspüler sind wir unentschieden.
- wir möchten keinen Fliesenspiegel, was haltet ihr von Glas?
Ich hoffe ihr könnt uns helfen und habt ein paar Ideen.
Ich hoffe es hat mir den Bildern geklappt...
LG
Checkliste zur Küchenplanung von Ariel-Nova
Anzahl Personen im Haushalt : 3
Davon Kinder? : 2
Körpergrössen aller Hauptbenutzer (wegen Arbeitshöhe ) in cm : 173- 187 und die Kinder 116-140
Art des Gebäudes? : Bestandsbau, (kleinere) Umbauten möglich
Brüstungshöhe des Fensters (in cm) : 110
Fensterhöhe (in cm) : 120
Raumhöhe in cm: : 270
Heizung : Fussbodenheizung
Sanitäranschlüsse : vollkommen variabel
Ausführung Kühlgerät? : Side by Side ca. 90cm breit
Kühlgerät Größe : bis 158 cm Höhe
Ausführung Tiefkühl (TK)-Gerät : Nicht erforderlich bzw. steht woanders
Dunstabzugshaube? : Abluft
Hochgebauter Backofen ? : Ja
Hochgebauter Geschirrspüler ? : wenn möglich
Kochfeldart? : Induktion
Kochfeldbreite ca. (in cm)? :
Spülenform: : Noch nicht festgelegt
Weitere geplante Heißgeräte :
Küchenstil? : modern
Sitzmöglichkeit in der Küche / im Küchenbereich als : Gesonderter Tisch
Sitzmöglichkeit: Für wieviel Personen? : für 6 Personen
Sitzmöglichkeit: Tisch - wenn gesonderter Tisch oder offene Küche : Vorhandener Tisch
Gewünschte o. vorhandene Tischgröße : 1m x 2,50-3,50cm
Wofür soll der Sitzplatz in der Küche genutzt werden? Wie häufig? : Sitzen, essen, Kaffee trinken usw.
Welche Arbeitshöhe ist angedacht (in cm)? : 92cm
Was steht auf der Arbeitsplatte oder soll dort stehen? : Kaffeevollautomat, Wasserkocher, Toaster
Welche weiteren Küchenmaschinen müssen in der Küche untergebracht werden? : Handrührgerät, Mixer, Pürierstab, Eierkocher
Was soll in der Küche außer den Standards untergebracht werden? : Geschirr komplett (nichts in Ess-/Wohnzimmer)
Welchen Stauraum gibt es sonst noch? : Hauswirtschaftsraum, Keller
Was/wie wird gekocht? (Alltagsküche, Menüs, Snacks usw) : Von Alltagsküche bis Menü
Wie häufig wird gekocht? : (fast) täglich 1x warm
Wird alleine gekocht? Oder auch gemeinsam? Mit und für Gäste? : Alleine aber auch gerne mit den Kindern.
Was stört an der bisherigen Küche und was soll die neue Küche unbedingt können? Warum? : Die "neue" Küche ist viel viel zu klein und hat zuwenig Stauraum.
Steht schon ein Küchenhersteller fest oder wird bevorzugt? : evtl. Ikea?
Steht schon ein Gerätehersteller fest oder wird bevorzugt? :
Preisvorstellung (Budget) : bis 5.000,- (nur Möbel)
__________________________Ergänzungen im Threadverlauf:
Grundrissansichten einheitlich ausgerichtet!
Anhänge
-
3d.KPL3,9 KB · Aufrufe: 190
-
3d.POS7,9 KB · Aufrufe: 203
-
Küchenplanung.KPL3,9 KB · Aufrufe: 185
-
Küchenplanung.POS7,9 KB · Aufrufe: 195
-
Grundrisshaus.jpg56,1 KB · Aufrufe: 256 -
alno3d.jpg21 KB · Aufrufe: 245 -
ariel-nova20130127Alnoplanungsgrundrissgedreht.jpg20,1 KB · Aufrufe: 408 -
ariel-nova20130127Gesamtgrundriss.jpg102,6 KB · Aufrufe: 226
Zuletzt bearbeitet von einem Moderator:







