Unbeendet neue küche im Altbau

holzklopfer

Mitglied
Beiträge
2
Brauche Inspiration für kleine Küche

Wir planen eine neue Küche. Alte ist über 20 Jahre alt



Ich habe mit dem Alno Planer schon etwas erstellt.

Als Tisch ist eine halbrunder Tisch mit Befestigung an der wand und stütze geplant.

Wir denken die Küche selber aufzubauen oder was haltet Ihr davon?

Einbau Geräte werden nicht benötigt da vorhanden.

Ein plan mit Alno wird noch erstellt einmal mit neuer Aufteilung und einmal mit neuer Aufteilung so ich mir das gedacht habe.

Was mir an der Alten Küche nicht gefallen hat des man zu wenig Arbeitsfläche hatte wegen diverse geräte:

Wasserkocher, Allesschneíder, Toaster, Kaffee Pad Maschine

Einbaugeräte:

Herdkombi Ceranfeld & Backofen 60cm Marke Privileg mit Pyrolyse (12 Jahre alt).. ->bleibt erhalten
Unterbaudunstabzugshaube Marke AEG (20 Jahre alt)...->soll aber erneuert werden

Geschirrspüler
teilintegriert vorhanden Marke Privileg 45cm..-> wird ersetzt durch Siemens SR76T090EU

Kühlschrank
Liebherr CTPsl 2121 Comfort






Checkliste zur Küchenplanung von holzklopfer

Anzahl Personen im Haushalt : 3
Davon Kinder? : keine
Körpergrössen aller Hauptbenutzer (wegen Arbeitshöhe ) in cm : 180,175
Art des Gebäudes? : Neu-/Umbau, Planänderungen nicht möglich
Brüstungshöhe des Fensters (in cm) : 85
Fensterhöhe (in cm) :
Raumhöhe in cm: : 250
Heizung : Heizkörper wie im Grundriss
Sanitäranschlüsse : sind an der Wandseite variabel
Ausführung Kühlgerät? : Stand-Alone bis 60 cm Breite
Kühlgerät Größe : bis 102 cm Höhe
Ausführung Tiefkühl (TK)-Gerät : Im Kühlschrank als kleines Fach oben
Dunstabzugshaube? : Umluft
Hochgebauter Backofen ? : Nein
Hochgebauter Geschirrspüler ? : nein
Kochfeldart? : Ceran (herkömmlich)
Kochfeldbreite ca. (in cm)? : 60
Spülenform: : 1 Becken mit Abtropffläche
Weitere geplante Heißgeräte : Standmikrowelle
Küchenstil? : klassisch
Sitzmöglichkeit in der Küche / im Küchenbereich als : Arbeitsplatte in Tischhöhe
Sitzmöglichkeit: Für wieviel Personen? : für 3 Personen
Sitzmöglichkeit: Tisch - wenn gesonderter Tisch oder offene Küche : Wird nach Bedarf neu gekauft
Gewünschte o. vorhandene Tischgröße : 150cm
Wofür soll der Sitzplatz in der Küche genutzt werden? Wie häufig? : Frühstück, Mittag, Abendbrot
Welche Arbeitshöhe ist angedacht (in cm)? : 86
Was steht auf der Arbeitsplatte oder soll dort stehen? : Kaffeemaschine, Wasserkocher, Allesschneider
Welche weiteren Küchenmaschinen müssen in der Küche untergebracht werden? : Toaster, Handrührgerät, Pürierstab
Was soll in der Küche außer den Standards untergebracht werden? : Sonstiges (evtl. im Beitragstext benennen)
Welchen Stauraum gibt es sonst noch? : Keller
Was/wie wird gekocht? (Alltagsküche, Menüs, Snacks usw) : jeden tag kochen
Wie häufig wird gekocht? : (fast) täglich 1x warm
Wird alleine gekocht? Oder auch gemeinsam? Mit und für Gäste? : mit gäste
Was stört an der bisherigen Küche und was soll die neue Küche unbedingt können? Warum? : wenig arbeitsfläche
Steht schon ein Küchenhersteller fest oder wird bevorzugt? : Nolte Alno Ikea
Steht schon ein Gerätehersteller fest oder wird bevorzugt? : nein
Preisvorstellung (Budget) : bis 10.000,-
 

Anhänge

  • plan haus.jpg
    plan haus.jpg
    85,9 KB · Aufrufe: 344
Zuletzt bearbeitet:
AW: neue küche im Altbau

:welcome:

im Küchen-Forum!

Schöne Thread-Eröffnung und toll, dass du dich bereits in den Alno eingearbeitet hast.

Aufgefallen ist mir, dass du den Kühlschrank ganz an die Wand gestellt hast. Um ihn ganz öffnen zu können benötigst du einen gewissen Abstand.

Zusätzlich benötigst du an den Wänden Benden, damit die Auszüge oder Tür zu öffnen sind.
Planunten hast du sie eingeplant, bzw. Platz zur Wand gelassen, aber planoben rechts nicht.

Was willst du in die schmalen Auszüge beim Kochfeld stellen?

Dann ist mir die gewünschte Arbeitshöhe aufgefallen. Ist die bei eurer Körpergröße erprobt? Ich bin 1,63 große und meine neue Küche wird eine Arbeitshöhe von 91 cm haben.

Also:
ARBEITSHÖHE ermitteln
3 Methoden haben sich da etabliert:
- Ellbogen abwinkeln und von dort 15 cm runtermessen
- Höhe Beckenknochen messen
- z. B. Bügelbrett nehmen und in verschiedenen Höhen Probeschnippeln und messen, wenn es einem am bequemsten erscheint. Sich Vorbeugen, dann ist's zu niedrig, die Schultern hochziehen, dann ist's zu hoch.
Idealerweise ergeben alle 3 Methoden ca. denselben Wert

Und hier noch ein Hinweis zu den Rastermaßen:
Was es heißt 6rastig zu werden...
Bild in Originalgröße sehen - 596x466px.
Bild in Originalgröße sehen - 596x466px and 54KB.
full

Typische Korpushöhen für 5-rasterig: 65cm, 70 cm, 72 cm, 75cm.
Typische Korpushöhen für 6-rasterig: 78cm, 79,8cm, 86,4cm
In Korpushöhen - Rastermaße - Auszugs-Innenmaße - Stauraumplanung sind diverse Hersteller mit ihren Standardkorpushöhen verlinkt.
Wenn man dann z. B. einen 78cm hohen Korpus wählt, ergeben sich folgende Maße
- 78 cm Korpushöhe
- 4 cm APL-Höhe
- 14 cm Sockelhöhe
-----------------
= 96 cm Gesamthöhe=Arbeitshöhe
Typische Hersteller wären Schüller , Häcker , Ballerina, Bauformat , Beckermann , Brion, Leicht, Alno usw.
In diesem Zusammenhang empfehlen wir dann gerne, die Rasterung 1-1-2-2 zu verwenden, denn auch in Schubladen bringt man sehr viel unter, z. B. ein komplettes Kaffeegeschirr ;-).
3-rasterige Auszüge braucht man in aller Regel nur für wenige Sachen
--> 38er Auszugshöhe - wie nutzt ihr die?
Zum Angucken, wie Stauraum genutzt werden kann:
Gerbera mit ganz vielen übertiefen Auszügen
Stauraumnutzung von doppelkeks und die Küche dazu
Küche von Moiree
Küche von KerstinB und nach dem Umzug
Küche von Jelena
Küche von Ulla
Nekos Küche
Darlas Küche
Magnolias Küche
Vanessas Küche
Hemerocallis Küche
Littlequeenies Küche
Angelikas Küche
Küche von atmos
Küche von biggimaus
Küche von Bodybiene
Küche von Missjenny
Küche von träumerle
Muckelinas Küche
 
AW: neue küche im Altbau

Ich habe einmal geplant.

Deine Küche hat einen Breite von 240 cm. Zihe ich davon 75 cm für die Zeile und 60 cm für Kühlschrank und Platz für die Mikrowelle ab, dann bleibt eine Gangbreite von 105 cm. Ist zwar nicht üppig aber ausreichend.

Dann schreibst, dass du mit Gästen kochen willst. In deiner Planung sehe ich aber keinen Platz wo 2 Personen werkeln könnten.

Deswegen, einmal in Übertiefe geplant, 75 cm.
Beginnend planunten, rechts:
vor dem Kamin einen tiefenreduzierten Schrank auf 39 cm, kann auch höher sein

holzklopfer_Mela_Zeile2.jpg

dann
Blende
30er Auszug 3-3 mit Innenschublade oben für die typischen Kochhelfer
80er Auszug 1-1-2-2 mit Kochfeld mittig oder rechts, mit Kochbesteck, Töpfen etc.
80er Auszug 1-1-2-2 für Besteck, Geschirr
60er Spüle 3-3
30er Auszug 3-3 für Müll unter der Arbeitsplatte
GSA
20 cm Blende p2o für Geschirrtücher oder einfach überstehende Arbeitsplatte wegen Heizkörper

Oberschränke, davon einer mit Lüfterbaustein (Dunstabzugshaube)

holzklopfer_Mela_Zeile.jpg

So hättest du zwischen Spüle und Kochfeld und zwischen Spüle und Wand je einen Arbeitsplatz.

Planlinks:
160 cm Arbeitsplatte 50 cm tief für Essplatz, allerdings muss es dann Tellergerichte geben

60er Schrank 149,5 cm hoch mit Klappfach für Mikrowelle
Stand Alone - existiert dieser bereits? oder ist er nur ein Wunsch? Ein integrierter Kühlschrank würde weniger Platz in Anspruch nehmen.
 

Anhänge

  • holzklopfer_Mela_Kühli.jpg
    holzklopfer_Mela_Kühli.jpg
    54,5 KB · Aufrufe: 160
  • holzklopfer_Mela.KPL
    3,9 KB · Aufrufe: 169
  • holzklopfer_Mela.POS
    11 KB · Aufrufe: 171
  • holzklopfer_Mela_Draufsicht.jpg
    holzklopfer_Mela_Draufsicht.jpg
    41,4 KB · Aufrufe: 165
  • holzklopfer_Mela_Grundriss.JPG
    holzklopfer_Mela_Grundriss.JPG
    24,1 KB · Aufrufe: 154
AW: neue küche im Altbau

hier nun die ansichten neue küche und meine Vorschläge....

ich will ja mit Nolte auch eine planen nur da bekomme ich das mit die maße nicht hin bzw. den Schornstein.
 

Anhänge

  • küche_alt_5 raster.POS
    5,4 KB · Aufrufe: 160
  • küche_alt_5 raster.KPL
    3,9 KB · Aufrufe: 161
  • küche_alt_5 raster_2.jpg
    küche_alt_5 raster_2.jpg
    45,6 KB · Aufrufe: 164
  • küche_alt_5 raster.jpg
    küche_alt_5 raster.jpg
    68,3 KB · Aufrufe: 166
  • küche_neu_5 raster.POS
    8,1 KB · Aufrufe: 198
  • küche_neu_5 raster.KPL
    3,9 KB · Aufrufe: 160
  • küche_neu_5 raster_2.jpg
    küche_neu_5 raster_2.jpg
    42,3 KB · Aufrufe: 166
  • küche_neu_5 raster.jpg
    küche_neu_5 raster.jpg
    69,8 KB · Aufrufe: 166
AW: neue küche im Altbau

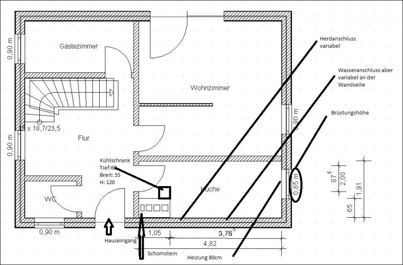
Was stimmt denn nun? Die Pläne sind Raumtiefe 245 cm, der eingestellte vermaßte Grundriss weist 191 cm aus:
124861d1382990763-neue-kueche-im-neubau-plan-haus.jpg




Es wäre auch sinnvoll, den Schacht in der Tiefe zu vermaßen. Dann den Heizkörper, insbesondere auch die Tiefe des Heizkörpers, wenn er in den Raum steht.

Zur vorhandenen Kombi Backofen /Kochfeld .. ich nehme an, dass Kochfeld ist nicht autark. Wäre es denkbar, den Backofen weiter zu nutzen, dann z. B. auch hocheingebaut und ein neues Kochfeld, evtl. Induktion , zu kaufen?
 

Ähnliche Beiträge

Neff Hausgeräte Ballerina Küchen Blum Bewegungstechnologie Weibel - Intelligente Küchenlüftung

Neff Spezial

Blum Zonenplaner

Weibel Abluft-Tuning

Weibel Abluft-Tuning
Zurück
Oben