Neubau Küche mit Tresen im Wohnraum

graschna

Mitglied
Beiträge
8
Hallo Liebe Community,

bin gerade dabei unsere Küche zu planen und habe noch Probleme bezüglich der Aufteilung.
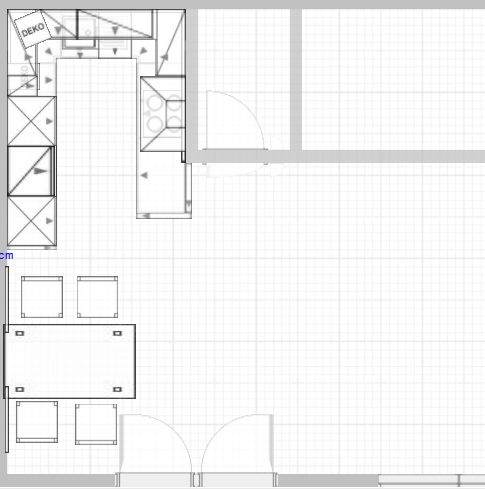
Am Grundriss sieht man recht gut, dass es eine Kochnische im Wohnraum ist (was man am Plan nicht so gut sieht, ist dass die Wasseranschlüsse 80 und 100cm von der linken Wand weg sind und der Anschluss für den Herd 2m von der oberen Wand entfernt).
Ich hätte gerne eine Küche mit einer Insel/einem Tresen zum Wohnraum hin.
Vielleicht könnet ihr ja mal einen Blick auf meine Wünsche und auf die Aufteilung werfen und mich auf mögliche Fehler oder Verbesserungen aufmerksam machen. Und auch ein bißchen ein Rat ob meine preisliche Vorstellung realistisch ist oder nicht.
Danke für eure Hilfe!

Wunschliste (nehmen wir zu den Planungsterminen mit)

Gestaltung:

Modern und geradlinig
Evtl. 2-färbig – Unterschränke dunkel, Wandschränke und Kühlschrank heller
Gewünschte Farben: fango bzw. sand/creme/ grün (Kein rot, orange, weiß, schwarz)
Keine Holzküche aber gerne für Akzente/ Wangen/ Arbeitsplatte
Unterschränke mit Auszug – keine Türen (Ausnahme: eventuelle Eckschrank)
Grundform U mit einer kürzeren Seite als Insel hin zum Essbereich
Die Küche soll zwischen 280 und 330 cm Tief sein (durchgehender Boden zum Essbereich)
Grifflose Fronten gewünscht bzw. wenn Griffe dann eher dezent gehalten
Kein Glas für die Schränke
Rückwand sowohl im Spül- als auch Kochbereich mit Wandpaneel
Keine Füße sondern Sockel
Vorderer Bereich (Kücheninsel) offen gestalten (keine Wandschränke)

E-Geräte
Sind generell Einbaugeräte gewünscht
Herd: Induktionsherd mit B 60cm
Geschirrspüler : B 60 cm evtl. erhöht
Backofen
Dunstabzug: Umluft, möglichst leise da direkt im Wohnraum
Kühl-/Gefrierkombination oder separat (kein Kühlschrank mit TK-Fach)
Spüle: 1 Becken mit Abtropffläche und Brauseauszug

Auf der Arbeitsfläche sollte Platz sein für Kaffee-Vollautomat, Brotschneidmaschine, Wasserkocher, evtl. Handstaubsauger
Mikrowelle soll wenn möglich an der Wand Platz finden

Aufteilung

Spülbereich hinten: Unterbauleuchte gewünscht
Stauraum für : Müll, Putzmittel, Besteck, Geschirr, Gläser, Vorratsbehälter

Kochbereich vorne: Stauraum für Gewürze und Co, Lebensmittel, Kochutensilien (2 Schubladen), Backbleche (Schublade), Messerschublade, Schwarzgeschirr

Unentschlossen bei der Platzierung der Mikrowelle , des Kühlschrank und bezüglich des Stauraums für die Kleinelektrogeräte

Anmerkungen: evtl. Eckschrank kein Gitter

Achja und meine Preisvorstellung für alles - als Küche+Elektrogeräte+Unterbauleucht+Wandpaneel+Lieferung und Montage - leigt bei €7500




Checkliste zur Küchenplanung von graschna

Anzahl Personen im Haushalt : 3
Davon Kinder? : 1
Körpergrössen aller Hauptbenutzer (wegen Arbeitshöhe ) in cm : 168, 174
Art des Gebäudes? : Neu-/Umbau, Planänderungen nicht möglich
Brüstungshöhe des Fensters (in cm) : 10
Fensterhöhe (in cm) : -
Raumhöhe in cm: : 250
Heizung : Heizkörper wie im Grundriss
Sanitäranschlüsse : fix
Ausführung Kühlgerät? : Integriert im Hochschrank (60cm)
Kühlgerät Größe : 178 cm
Ausführung Tiefkühl (TK)-Gerät : Nicht erforderlich bzw. steht woanders - 2 bis 3 Schubladen unten
Dunstabzugshaube? : Umluft
Backofen etc. hochgebaut? : Wenn möglich
Hochgebauter Geschirrspüler ? : wenn möglich
Kochfeldart? : Induktion
Kochfeldbreite ca. (in cm)? : 60
Spülenform: : 1 Becken mit Abtropffläche
Weitere geplante Heißgeräte : Standmikrowelle, Backofen
Küchenstil? : grifflos
Sitzmöglichkeit in der Küche / im Küchenbereich als : Gesonderter Tisch
Sitzmöglichkeit: Für wieviel Personen? : für 4 Personen
Sitzmöglichkeit: Tisch - wenn gesonderter Tisch oder offene Küche : Wird nach Bedarf neu gekauft
Gewünschte o. vorhandene Tischgröße : ?
Wofür soll der Sitzplatz in der Küche genutzt werden? Wie häufig? : im Wohnraum für das tägliche Essen und evtl. basteln/malen mit Kleinkind
Welche Arbeitshöhe ist angedacht (in cm)? : 92 cm
Was steht auf der Arbeitsplatte oder soll dort stehen? : Kaffeevollautomat, Wasserkocher, Allesschneider
Welche weiteren Küchenmaschinen müssen in der Küche untergebracht werden? : Küchenmaschine, Toaster, Handrührgerät, Mixer, Pürierstab
Was soll in der Küche außer den Standards untergebracht werden? : ALLE Vorräte, Geschirr komplett (nichts in Ess-/Wohnzimmer)
Welchen Stauraum gibt es sonst noch? : Geschirr/Gläserschrank im Wohn-/Esszimmer
Was/wie wird gekocht? (Alltagsküche, Menüs, Snacks usw) : Alltagsküche
Wie häufig wird gekocht? : (fast) täglich 1x warm
Wird alleine gekocht? Oder auch gemeinsam? Mit und für Gäste? : meist alleine
Was stört an der bisherigen Küche und was soll die neue Küche unbedingt können? Warum? : funktionell sein
Steht schon ein Küchenhersteller fest oder wird bevorzugt? : nein
Steht schon ein Gerätehersteller fest oder wird bevorzugt? : nein
Preisvorstellung (Budget) : bis 10.000,-
 

Anhänge

  • grundriss wohnung002.pdf
    374,1 KB · Aufrufe: 325
  • grundriss küche003.pdf
    254,6 KB · Aufrufe: 273
  • Küchenplaner Ausdruck.pdf
    215,7 KB · Aufrufe: 560
  • Küchenplaner Ausdruck2.pdf
    52,8 KB · Aufrufe: 315
Zuletzt bearbeitet von einem Moderator:
AW: Neubau Küche mit Tresen im Wohnraum

:welcome:

im Küchenforum!

Würdest du noch bitte die pdf.-Dateien als jpg. hochladen, damit jeder sich sofort ein Bild machen kann.

Ich schlage dir anstelle des U's einen Zweizeiler vor, d.h. planrechts Hochschränke und planlinks dann die Arbeitszeile. Dies würde aber die Verlegung des Wasseranschlusses erfordern.

Dann hast du
Welche Arbeitshöhe ist angedacht (in cm)? :
nicht ausgefüllt.

Deswegen:
ARBEITSHÖHE ermitteln

3 Methoden haben sich da etabliert:

- Ellbogen abwinkeln und von dort 15 cm runtermessen

- Höhe Beckenknochen messen

- z. B. Bügelbrett nehmen und in verschiedenen Höhen Probeschnippeln und messen, wenn es einem am bequemsten erscheint. Sich Vorbeugen, dann ist's zu niedrig, die Schultern hochziehen, dann ist's zu hoch.

Idealerweise ergeben alle 3 Methoden ca. denselben Wert

 
AW: Neubau Küche mit Tresen im Wohnraum

Heute morgen hatte ich leider keine Zeit mehr. Deswgen geht es jetzt weiter.

Deine Preisvorstellung stimmt mit deinen Wünschen nicht überein. Selbst bei einem günstigen Küchenanbieter und die Möbel mit Griffen, ist die PÜreisvorstellung sehr sportlich.
Eine gute DA kostet bereits ihr Geld, wenn sie nicht nur eine Kochstellenbeleuchtung sein soll.
 
AW: Neubau Küche mit Tresen im Wohnraum

So liebe Community,

jetzt lässt mir mein 9 Monate neuer Zwerg mal Zeit^^
Ich habe jetzt die Grundrisse als jpg angehängt, damit man sie gleich sieht.
Punkto grifflos habe ich jetzt auch gesehen, dass ich da wohl in einer anderen Liga spiele. Also denke ich, dass mir die Alternative Griffleiste am ehesten zusagt und auch leistbar sein sollte.
Oh ich dachte, dass ich mit €7500 in einem realistischen wenn auch günstigen Bereich unterwegs bin. Tja bis jetzt waren es nur die Standard Küchenzeilen aus dem Prospekt:-[ Welche meiner Wünsche seht ihr denn so als Kostentreiber?
Die Anschlüsse sind leider nicht mehr zu ändern.
Die "Insel" im vorderen Bereich würde ich mir als Arbeitsinsel wünschen. Mit der Aufteilung wie ich sie bis jetzt geplant habe, bin ich leider eh noch nicht wirklich zufrieden.
Vielleicht kann mir jemand von euch da ein paar Tips geben.
Danke für eure Hilfe!
 

Anhänge

  • grundriss wohnung.jpg
    grundriss wohnung.jpg
    54,6 KB · Aufrufe: 247
  • grundriss küche.jpg
    grundriss küche.jpg
    53,3 KB · Aufrufe: 247
  • küche2.jpg
    küche2.jpg
    14,6 KB · Aufrufe: 251
  • küche.jpg
    küche.jpg
    28,1 KB · Aufrufe: 264
AW: Neubau Küche mit Tresen im Wohnraum

Sorry, aber das geht gar nicht. Du unterbrichst dir deinen Hauptarbeitsbereich mit dem Kühlschrank.

Kühlschrankgröße .. wie groß soll er denn sein? TK-Fach woanders?

Hast du zwischenzeitlich mal ermittelt, was deine Ideal-Arbeitshöhe wäre?

Aufgesetzte Griffe kosten leider bei der Küchengröße auch schnell bis zu 1000 Euro Aufpreis.

Ist die Trennwand zum Flur wirklich nur 180 cm breit? Da hat dann wieder mal ein "Spezialist" geplant ;-)

Ist es eine Mietwohnung oder euer Eigentum?

Durchgehender Boden nur Essbereich, also quasi in Verlängerung der 180 cm Wand oder durchgehend auch im Wohnbereich?
 
AW: Neubau Küche mit Tresen im Wohnraum

Danke Kerstin für deine Antwort.
Ja mit der Aufteilung bin ich auch nicht wirklich zufrieden.
Ja die wand rechts ist wirklich nur 185 cm und hat auch keine Anschlüsse.
Es ist eine Mietwohnung.
Bei dem Kühlschrank würde ich mir schon einen größeren Wünschen. Also ich dachte ja an eine kühl-/gefrier-kombination mit 200+70l.
Ich habe überlegt an der hinteren wand die Spülmaschine, die spüle und den Kühlschrank unterzubringen und weiter vorne Links den Herd mit anschließendem arbeitstresen. Aber auch hier habe ich wieder keine durchgehende arbeitsfläche zwischen spüle und Herd. Ach es ist zum verzweifeln:'(
Bei den Griffen meine ich so Alu-Leisten, welche am oberen Rand der Tür bzw. Schubladenfront angebracht sind.Sind die auch so teuer?
Entschuldigt bitte auch meine Formatierung und meinen Stil. Mein zahnender Zwerg hält mich auf Trab und ich tippe auf Handy/tablet
Danke!
 
AW: Neubau Küche mit Tresen im Wohnraum

Ach ja der Boden ist im ganzen Wohnraum der selbe.
 
AW: Neubau Küche mit Tresen im Wohnraum

Ist die rechte Wand nun 180 oder 185 cm? Entscheidender Unterschied.
 
AW: Neubau Küche mit Tresen im Wohnraum

185cm
Ach ja und die Arbeitshöhe sollte 92cm sein
 
AW: Neubau Küche mit Tresen im Wohnraum

Also, eine Halbinsel von der planlinken Wand weg, paßt gar nicht. Entweder wird der Durchgangsbereich in die Küche supereng oder du hast nach planunten nur noch gut 200 cm für den Tisch.


Daher jetzt mal Hochschränke planlinks, insgesamt ein U und eine Halbinsel quasi als verlängerter U-Schenkel.

Dazu muß die Herdanschlußdose gesplittet werden und der gesplittete Kochfeldanschluß im Kabelkanal auf der Fußleiste an die planrechte Wand gelegt werden. Das sollte ein Elektriker für kleines Geld machen können und das ist bei Auszug auch jederzeit sehr kostengünstig reversibel.

Reihum:
- Kühl/TK-Schrank, damit auch nah zum Esstisch
- erhöhte GSP, drüber Klappfach für Standmikrowelle, oben selten gebrauchtes. Die Position spart die Extrawangen für die GSP und schafft ausreichend Abstand zu Spüle/Müll, damit diese beiden auch geöffnet sein können, um Reste abzustreichen etc.
- erhöhter Backofen , unten Platz für Vorräte.
- 40er Auszugsunterschrank für Kleinkram, Gewürze etc. Hier und über der toten Ecke Stellfläche für KVA und Brotschneidemaschine, die dadurch auch etwas versteckt sind.
- tote Ecke
- 45er Spülenschrank, innen Brett für küchentypische Putzmittel, im großen Auszug großer Behälter Gelber Sack Müll, evtl. kleiner Behälter Altpapier
- Für MUPL würde ich einen 40er Unterschrank mit Rasterung 2-2-2 empfehlen. Darin dann Ninka eins2vier Behälter. 2x12l für Bio/Restmüll.
- tote Ecke
- 90er Auszugsunterschrank 6-rasterig in Aufteilung 1-1-2-2, Kochfeld rechtsbündig, damit Abstand zum Spülenbereich entsteht.
- 90er Auszugsunterschrank 6-rasterig ebenfalls Aufteilung 1-1-2-2 .. insbesondere Geschirr etc.

6 Raster - was heißt das?
 

Anhänge

  • graschna_20140408_kb2-alt.KPL
    4,1 KB · Aufrufe: 180
  • graschna_20140408_kb2-alt.POS
    8,5 KB · Aufrufe: 184
  • graschna_20140408_kb2-alt_Grundriss.jpg
    graschna_20140408_kb2-alt_Grundriss.jpg
    29,4 KB · Aufrufe: 520
  • graschna_20140408_kb2-alt_Ansicht6.jpg
    graschna_20140408_kb2-alt_Ansicht6.jpg
    24 KB · Aufrufe: 185
  • graschna_20140408_kb2-alt_Ansicht5.jpg
    graschna_20140408_kb2-alt_Ansicht5.jpg
    29 KB · Aufrufe: 230
  • graschna_20140408_kb2-alt_Ansicht4.jpg
    graschna_20140408_kb2-alt_Ansicht4.jpg
    25,9 KB · Aufrufe: 232
  • graschna_20140408_kb2-alt_Ansicht3.jpg
    graschna_20140408_kb2-alt_Ansicht3.jpg
    23,3 KB · Aufrufe: 206
  • graschna_20140408_kb2-alt_Ansicht2.jpg
    graschna_20140408_kb2-alt_Ansicht2.jpg
    22,3 KB · Aufrufe: 226
  • graschna_20140408_kb2-alt_Ansicht1.jpg
    graschna_20140408_kb2-alt_Ansicht1.jpg
    25,3 KB · Aufrufe: 225
AW: Neubau Küche mit Tresen im Wohnraum

Liebe Kerstin,

Danke für deine Planung. Leider habe ich Links keinen Anschluss für einen Geschirrspüler . Der muss hinten neben der spüle Platz finden. Deswegen bin ich bei der Planung als U auch immer gescheitert - zwei tote ecken + Spülmaschine + spüle geht sich nicht so richtig aus.

Oh man,wie ich den Plan das erste mal gesehen habe, dachte ich super offener Wohnraum. Da kann ich eine hübsche Küche mit Tresen reinmachen und das wird ein richtig kommunikativer Ort. Wenn Gäste da sind, ...
Und jetzt habe ich sicher schon den fünften Plan gezeichnet, brüte täglich darüber und habe noch keinen Plan, in dem ich nicht einen Fehler von mir finde oder mir einfach nicht gefällt und das alles für einen Raum für den man mit Abstand am meisten ausgibt :(
 
AW: Neubau Küche mit Tresen im Wohnraum

Eine Spülmaschine muß nicht direkt neben der Spüle stehen. Du brauchst auch keinen extra Anschluss dafür da die Schläuche auch im Sockel der anderen Schränke weiter geführt werden können solange da keine 8 Meter zwischen liegen. ;-)

LG
Sabine
 
AW: Neubau Küche mit Tresen im Wohnraum

Liebe Sabine,

Danke für deine Antwort!also ist das kein Problem wenn der abfluss soweit weg ist?dachte das ist so wie bei der spüle - Max einen halben Meter weg.
Liebe grüße
 
AW: Neubau Küche mit Tresen im Wohnraum

Nein das ist kein Problem. Wir verkaufen im Laden oft Ab- bzw. Zulaufschläuche mit 3 m Länge. Verbaut sind von Werk aus (glaub ich) immer 1,5 m.

LG
Sabine
 
AW: Neubau Küche mit Tresen im Wohnraum

Genau, Sabine hat es ja schon erläutert. Sonst hätte ich etwas dazu geschrieben.

Was denkste denn sonst zu der Planung?
 
AW: Neubau Küche mit Tresen im Wohnraum

Hallo liebe Community,

so zahnendes Kind, Mann auf Milizübung und noch mit den blöden Handwerkern herumärgern - habe mich jetzt lange nicht gemeldet.
Bin jetzt aber auf die Baustelle gefahren (liegt leider etwas weiter weg) und habe die Küche nochmals ausgemessen und mir auch gleich ein paar Gedanken zur Küchenplanung gemacht.
Liebe Kerstin danke für deine Planung der Grundgedanke gefällt mir gut, aber ich glaube ich werde von der Idee mit dem U-Grundriss wegkommen. Ich denke ich werde mich da etwas eingeengt fühlen, vorallem wenn mein Mann mir hilft (und hoffentlich irgendwann auch der Zwerg).
Momentan spiele ich mit dem Gedanken eine L-Küche mit einem kleinen Tresen zu machen.
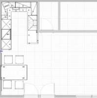
Ach ja und nun zu den Maßen:

die rechte Wand ist genau 184cm
die Hintere 215 cm mit dem Abfluss auf 137 cm von der rechten Wand weg
linke Wand ist 560cm
und die kleine Wand neben der Balkontür ist 132 cm

Habe mal eine Küchenplanung gestartet und bin auf eure Ideen und Einwände gespannt!

Aufteilung (beginnend hinten rechts):
hintere Wand:
Kühl-/Gefrierkombination B60cm
Spülenschrank mit Auszug B80cm
totes Eck
Linke Wand:
Geschirrspüler B 60cm (ja blöd an der Ecke aber irgendwie fehlt mir der platz)
Herd B 60cm
Auszug B60cm
Tresen:
Ecke mit Türe B60cm die sich zum Essbereich hin öffnen lässt
Schubladenschrank B80cm

Hängeschränke sind 80cm hoch so breit wie die Unterschränke und gehen zwecks der Optik nur bis zum DA, damit der Bereich vorne offen und hell ist.

Danke für eure Hilfe!
 

Anhänge

  • küche.jpg
    küche.jpg
    41,4 KB · Aufrufe: 218
AW: Neubau Küche mit Tresen im Wohnraum

Und, damit man die Abstände beurteilen kann, bitte eine Grundrissansicht der Planung einstellen.

Die Küche ist so 310 cm lang ... es bleiben dann noch 250 cm für den Tisch.

Du siehst an dem Grundriss meiner Planung, wie eng die Tischecke werden kann, wenn du nach planunten 145 cm Halbinsel machst und dann nur noch 250 cm Platz hast.
attachment.php

Allerdings ist in meiner Planung der Abstand sogar 270 cm nach planunten.


Ohne sie jetzt nachzustellen, wird sie einen recht schmalen Einlaß haben.

Die Hängeschränke direkt nach einer Flachschirm-DAH, die nur so breit wie das Kochfeld ist, aufhören zu lassen, ist nicht gut. Kochdünste gehen leicht V-förmig nach oben, d. h. links davon werden immer Dämpfe aufsteigen.

Die 60 cm tiefe Halbinsel soll genau für was gut sein?

Und, die GSP über Eck mit dem Schrank, der Wasser und Müll beherbergt, ist auch nicht gut.

Sinnvoll ist immer eine Stauraumplanung , um zu prüfen, ob diese Kriterien:
Was steht auf der Arbeitsplatte oder soll dort stehen? : Kaffeevollautomat, Wasserkocher, Allesschneider
Welche weiteren Küchenmaschinen müssen in der Küche untergebracht werden? : Küchenmaschine, Toaster, Handrührgerät, Mixer, Pürierstab
Was soll in der Küche außer den Standards untergebracht werden? : ALLE Vorräte, Geschirr komplett (nichts in Ess-/Wohnzimmer)

erfüllt werden. Wo kommt z. B. die Standmikrowelle hin?

Denn
Modern und geradlinigda reicht es eigentlich nicht, z. B. grifflose Unterschränke zu wählen und dann doch die ganze APL vollzustellen. Da geht jede Wirkung von modern und gradlinig verloren.
__________________________Nochmal eine abgeänderte Planung. Jetzt nur 2 Hochschränke, danach

- ein 90er Auszugsunterschrank mit Raster 1-1-2-2
- tote Ecke
- Für MUPL würde ich einen 40er Unterschrank mit Rasterung 2-2-2 empfehlen. Darin dannNinka eins2vier Behälter. 2x12l für Bio/Restmüll.
- 45er Spülenschrank, innen Brett für küchentypische Putzmittel, im großen Auszug großer Behälter Gelber Sack Müll, evtl. kleiner Behälter Altpapier
- tote Ecke
- 80er Auszugsunterschrank
- 60er GSP mit bodentiefem Wangenabschluß Richtung Wohnbereich

Die Hängeschränke.

Jetzt ist quasi deine Halbinselarbeitsfläche neben der Spüle und ist durch die Wand auch begrenzt. Denn 60 cm frei im Raum ist keine schöne Tiefe. Schnell ist das Ei oder die Tomate mal runtergerollt.

Mikrowelle ist untergebracht. Die restlichen Standgeräte auf der APL sind dann auf dem planrechten Unterschrankteil unterzubringen.
 

Anhänge

  • graschna_20140408_kb1-alt.POS
    8 KB · Aufrufe: 182
  • graschna_20140408_kb1-alt_Grundriss.jpg
    graschna_20140408_kb1-alt_Grundriss.jpg
    27 KB · Aufrufe: 182
  • graschna_20140408_kb1-alt_Ansicht6.jpg
    graschna_20140408_kb1-alt_Ansicht6.jpg
    19,4 KB · Aufrufe: 192
  • graschna_20140408_kb1-alt_Ansicht5.jpg
    graschna_20140408_kb1-alt_Ansicht5.jpg
    19,9 KB · Aufrufe: 197
  • graschna_20140408_kb1-alt_Ansicht4.jpg
    graschna_20140408_kb1-alt_Ansicht4.jpg
    12 KB · Aufrufe: 204
  • graschna_20140408_kb1-alt_Ansicht3.jpg
    graschna_20140408_kb1-alt_Ansicht3.jpg
    27 KB · Aufrufe: 211
  • graschna_20140408_kb1-alt_Ansicht2.jpg
    graschna_20140408_kb1-alt_Ansicht2.jpg
    14,9 KB · Aufrufe: 197
  • graschna_20140408_kb1-alt_Ansicht1.jpg
    graschna_20140408_kb1-alt_Ansicht1.jpg
    28,7 KB · Aufrufe: 197
  • graschna_20140408_kb1-alt.KPL
    4,1 KB · Aufrufe: 179

Ähnliche Beiträge

Neff Hausgeräte Ballerina Küchen Blum Bewegungstechnologie Weibel - Intelligente Küchenlüftung

Neff Spezial

Blum Zonenplaner

Weibel Abluft-Tuning

Weibel Abluft-Tuning
Zurück
Oben