DianaLEN
Mitglied
- Beiträge
- 11
Titel des Themas: Mehrgenerationen-Küche
Hallo liebe Community,
erstmal vielen Dank für die bereits vielen, hilfreichen Beiträge. Wir haben uns schon ein wenig eigelesen und sind schon mal schlauer als vorher.
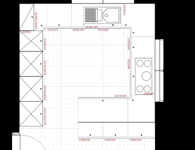
Wir kaufen ein Zweifamilienhaus und planen für uns eine große Küche, wo alle von klein bis groß zusammen kochen können. Die Küche soll halboffen sein, dafür werden wir auch eine Wand einreißen. Bis jetzt sind wir bei einer G-Küche geblieben. Eine Seite soll aus Hochschränken bestehen, so weit es eben geht, und zwei Backöfen enthalten. Wir brauchen auch viel Arbeitsplatz. Mein Mann wünscht sich eine Granit AP. Auch MUPL wäre wünschenswert aber wo? Als Mittelpunkt soll die Halbinsel dienen, hier sollen 2-3 Personen zusammen arbeiten können (schneiden, schälen etc. ). Evtl. wäre auch eine Sitzmöglichkeit nicht verkehrt, zumindest für unsere kleine Tochter (später auch ein Geschwister). Die Sitzmöglichkeit haben wir noch nicht zu Ende ausdisktutiert.
Mit Alno -Planer haben wir bereits etwas entworfen, das bitte aber nicht zu streng bewerten. Sieht jemand grobe Planungsfehler? Haben wir etwas nicht bedacht? Wir würden uns über Kritik, Verbesserungsvorschläge und jegliche Anregungen freuen. Vielleicht hat jemand sogar eine ähnliche Küche und kann über seine Erfahrungen berichten.
Und Küchenhersteller: Gibt es einen, der hochwertige Küchen herstellt, für dessen Namen man aber nicht (viel) bezahlen muss? Also wir suchen einen mit guten P/L-Verhältnis. Uns ist bewusst, mit dem Budget es sehr schwierig wird, alle unsere Wünsche zu erüllen.
Anbei sind auch Bilder der jetzigen Küche, die komplett entfernt wird.
Danke. LG
Diana
Checkliste zur Küchenplanung
Personenkriterien und Ergonomie
Anzahl Personen im Haushalt: 3
Davon Kinder: 1
Körpergrößen aller Hauptbenutzer in cm (wegen Arbeitshöhe ): 160, 177
Welche Arbeitshöhe ist angedacht (in cm)?: 90
Gebäudekriterien
Art des Gebäudes: Bestandsbau > (kleinere) Umbauten möglich
Brüstungshöhe des Fensters (in cm):
Fensterhöhe (in cm):
Raumhöhe in cm: 246
Heizung: Fußbodenheizung
Sanitäranschlüsse: fix
Einbaugerätekriterien
Ausführung Kühlgerät: Integriert im Hochschrank (60cm)
Einbaukühlgerät Größe: 178cm
Ausführung Tiefkühl (TK)-Gerät: Nicht erforderlich bzw. steht woanders
Dunstabzugshaube: Umluft
Hochgebauter Backofen : ja
Geplante Heißgeräte: Backofen
Hochgebauter Geschirrspüler : nein
Art des Kochfeldes: Ceran (herkömmliche Beheizung)
Kochfeldbreite (ca. in cm): 90
Sitzmöglichkeiten
Sitzmöglichkeit in der Küche / im Küchenbereich: Keine
Sitzmöglichkeit: Für wieviel Personen?: N. a.
Sitzmöglichkeit: Tisch - wenn gesonderter Tisch oder offene Küche: Vorhandener Tisch
Gewünschte oder vorhandene Tischgröße: 180
Wofür soll der Sitzplatz in der Küche genutzt werden und wie häufig:
Stauraumplanung
Was steht auf der Arbeitsplatte oder soll dort stehen?: Wasserkocher, Thermomix, Messerblock, Obstschale
Welche weiteren Küchenmaschinen müssen in der Küche untergebracht werden: Handrührgerät, Mixer, Pürierstab
Was soll in der Küche außer den Standards untergebracht werden: Geschirr komplett (nichts in Ess-/Wohnzimmer)
Welchen Stauraum gibt es sonst noch: Speisekammer, Keller
Kochgewohnheiten
Was/wie wird gekocht? (Alltagsküche, Menüs, Snacks usw): Alltagsküche 1x täglich, backen jeden 2. Tag
Wie häufig wird gekocht: (fast) täglich 2x warm
Wird alleine gekocht? Oder auch gemeinsam? Mit und für Gäste?: Mein Mann und ich kochen gemeinsam, unsere Tochter hilft oft mit, Oma wird voraussichtlich auch öfters mithelfen
Spülen und Müll
Spülenform: 1 Becken mit Abtropffläche
Welche Mülltrennung soll in der Küche vorgehalten werden: Biomüll, Restmüll
Sonstiges
Steht schon ein Küchenhersteller fest oder wird bevorzugt: nein, evtl. Schüller , Nolte ...
Steht schon ein Gerätehersteller fest oder wird bevorzugt: Bosch , Siemens o. ä.
Küchenstil: Klassisch
Was stört an der bisherigen Küche und was soll die neue Küche unbedingt können? Warum?:
Preisvorstellung (Budget): 16-17.000
Angehängte Dateien
Hallo liebe Community,
erstmal vielen Dank für die bereits vielen, hilfreichen Beiträge. Wir haben uns schon ein wenig eigelesen und sind schon mal schlauer als vorher.
Wir kaufen ein Zweifamilienhaus und planen für uns eine große Küche, wo alle von klein bis groß zusammen kochen können. Die Küche soll halboffen sein, dafür werden wir auch eine Wand einreißen. Bis jetzt sind wir bei einer G-Küche geblieben. Eine Seite soll aus Hochschränken bestehen, so weit es eben geht, und zwei Backöfen enthalten. Wir brauchen auch viel Arbeitsplatz. Mein Mann wünscht sich eine Granit AP. Auch MUPL wäre wünschenswert aber wo? Als Mittelpunkt soll die Halbinsel dienen, hier sollen 2-3 Personen zusammen arbeiten können (schneiden, schälen etc. ). Evtl. wäre auch eine Sitzmöglichkeit nicht verkehrt, zumindest für unsere kleine Tochter (später auch ein Geschwister). Die Sitzmöglichkeit haben wir noch nicht zu Ende ausdisktutiert.
Mit Alno -Planer haben wir bereits etwas entworfen, das bitte aber nicht zu streng bewerten. Sieht jemand grobe Planungsfehler? Haben wir etwas nicht bedacht? Wir würden uns über Kritik, Verbesserungsvorschläge und jegliche Anregungen freuen. Vielleicht hat jemand sogar eine ähnliche Küche und kann über seine Erfahrungen berichten.
Und Küchenhersteller: Gibt es einen, der hochwertige Küchen herstellt, für dessen Namen man aber nicht (viel) bezahlen muss? Also wir suchen einen mit guten P/L-Verhältnis. Uns ist bewusst, mit dem Budget es sehr schwierig wird, alle unsere Wünsche zu erüllen.
Anbei sind auch Bilder der jetzigen Küche, die komplett entfernt wird.
Danke. LG
Diana
Checkliste zur Küchenplanung
Personenkriterien und Ergonomie
Anzahl Personen im Haushalt: 3
Davon Kinder: 1
Körpergrößen aller Hauptbenutzer in cm (wegen Arbeitshöhe ): 160, 177
Welche Arbeitshöhe ist angedacht (in cm)?: 90
Gebäudekriterien
Art des Gebäudes: Bestandsbau > (kleinere) Umbauten möglich
Brüstungshöhe des Fensters (in cm):
Fensterhöhe (in cm):
Raumhöhe in cm: 246
Heizung: Fußbodenheizung
Sanitäranschlüsse: fix
Einbaugerätekriterien
Ausführung Kühlgerät: Integriert im Hochschrank (60cm)
Einbaukühlgerät Größe: 178cm
Ausführung Tiefkühl (TK)-Gerät: Nicht erforderlich bzw. steht woanders
Dunstabzugshaube: Umluft
Hochgebauter Backofen : ja
Geplante Heißgeräte: Backofen
Hochgebauter Geschirrspüler : nein
Art des Kochfeldes: Ceran (herkömmliche Beheizung)
Kochfeldbreite (ca. in cm): 90
Sitzmöglichkeiten
Sitzmöglichkeit in der Küche / im Küchenbereich: Keine
Sitzmöglichkeit: Für wieviel Personen?: N. a.
Sitzmöglichkeit: Tisch - wenn gesonderter Tisch oder offene Küche: Vorhandener Tisch
Gewünschte oder vorhandene Tischgröße: 180
Wofür soll der Sitzplatz in der Küche genutzt werden und wie häufig:
Stauraumplanung
Was steht auf der Arbeitsplatte oder soll dort stehen?: Wasserkocher, Thermomix, Messerblock, Obstschale
Welche weiteren Küchenmaschinen müssen in der Küche untergebracht werden: Handrührgerät, Mixer, Pürierstab
Was soll in der Küche außer den Standards untergebracht werden: Geschirr komplett (nichts in Ess-/Wohnzimmer)
Welchen Stauraum gibt es sonst noch: Speisekammer, Keller
Kochgewohnheiten
Was/wie wird gekocht? (Alltagsküche, Menüs, Snacks usw): Alltagsküche 1x täglich, backen jeden 2. Tag
Wie häufig wird gekocht: (fast) täglich 2x warm
Wird alleine gekocht? Oder auch gemeinsam? Mit und für Gäste?: Mein Mann und ich kochen gemeinsam, unsere Tochter hilft oft mit, Oma wird voraussichtlich auch öfters mithelfen
Spülen und Müll
Spülenform: 1 Becken mit Abtropffläche
Welche Mülltrennung soll in der Küche vorgehalten werden: Biomüll, Restmüll
Sonstiges
Steht schon ein Küchenhersteller fest oder wird bevorzugt: nein, evtl. Schüller , Nolte ...
Steht schon ein Gerätehersteller fest oder wird bevorzugt: Bosch , Siemens o. ä.
Küchenstil: Klassisch
Was stört an der bisherigen Küche und was soll die neue Küche unbedingt können? Warum?:
Preisvorstellung (Budget): 16-17.000
Angehängte Dateien
Anhänge
-
Übersicht.jpg105,7 KB · Aufrufe: 541 -
DSC_0210.JPG108,1 KB · Aufrufe: 546 -
DSC_0211.JPG90,7 KB · Aufrufe: 418 -
DSC_0213.JPG94,1 KB · Aufrufe: 418 -
BlickWohnzimmer.JPG43,1 KB · Aufrufe: 556 -
Herd.JPG72,2 KB · Aufrufe: 419 -
Halbinsel.JPG79,8 KB · Aufrufe: 533 -
Seitenschränke.JPG69,8 KB · Aufrufe: 509 -
zeichnung.JPG42,6 KB · Aufrufe: 392 -
grundriss.JPG27,2 KB · Aufrufe: 376


