Yuma
Mitglied
- Beiträge
- 105
- Wohnort
- Brandenburg
Hallo zusammen,
nachdem wir seit zwei Wochen in der Küchenplanung sind und mir langsam der Kopf raucht, bin ich sehr froh euch gefunden zu haben.
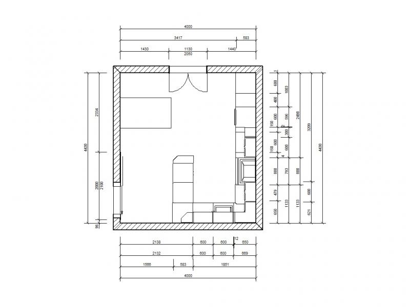
Wir haben einen Altbau und wollen in unserem neuen Gästezimmer nun eine Küche einbauen. Dieser Raum ist sozusagen noch nackt. Kein Betonfußboden und abgehängte Decke. Also alles ist möglich! Das zur Zeit vorhandene Fenster wird vorraus. durch eine Balkontür ersetzt (2-Flügel). Als Tür haben wir eine große Schiebetür vorgesehen.
Es soll passend zu unserem neuen Haus eine Landhausküche werden. Genau konnten wir uns noch nicht entscheiden. Sie soll nicht zu verspielt sein. Im Auge haben wir Lucca von Nobilia , Chalet von Schüller und verliebt habe ich mich in die Windsor von Häcker (soll aber viel zu teuer sein). Bis jetzt haben wir nur ein Preisangebot von der Schüller-Küche, das aber leider etwas über unserem Budget liegt.
Ich glaub das war erstmal das wichtigste. Ach ja....Apothekerschrank muss sein.
Nach dem studieren eurer Seite überlegen wir auf einen Eckschrank zu verzichten und eine tote Ecke zu machen.
Leider habe ich es noch nicht geschafft meinen alno -Plan hochzuladen. Ich find ihn irgendwie nicht auf meinem PC. Werde es aber weiter versuchen..
Ich freue mich auf viele neue Vorschläge und Anregungen. Ist meine erste eigene richtige und so... Einbauküche!
Gruß, Yuma
Checkliste zur Küchenplanung von Yuma
Anzahl Personen im Haushalt : 4
Davon Kinder? : keine, 2 Jungs (19 + 20)
Körpergrössen aller Hauptbenutzer (wegen Arbeitshöhe ) in cm : 170, 172
Art des Gebäudes? : Neu-/Umbau, Planänderungen möglich
Brüstungshöhe des Fensters (in cm) : kein Fenster, nur Balkontür
Fensterhöhe (in cm) :
Raumhöhe in cm: : 255
Heizung : Fussbodenheizung
Sanitäranschlüsse : vollkommen variabel
Ausführung Kühlgerät? : Integriert im Hochschrank
Kühlgerät Größe : bis 122 cm Höhe
Ausführung Tiefkühl (TK)-Gerät : Nicht erforderlich bzw. steht woanders
Dunstabzugshaube? : Abluft
Hochgebauter Backofen ? : Ja
Hochgebauter Geschirrspüler ? : nein
Kochfeldart? : Induktion
Kochfeldbreite ca. (in cm)? : 90
Spülenform: : Noch nicht festgelegt
Weitere geplante Heißgeräte : Standmikrowelle
Küchenstil? : Landhaus
Sitzmöglichkeit in der Küche / im Küchenbereich als : Esstisch mit 5-6 Stühlen
Sitzmöglichkeit: Für wieviel Personen? : für 5 Personen
Sitzmöglichkeit: Tisch - wenn gesonderter Tisch oder offene Küche : Vorhandener Tisch
Gewünschte o. vorhandene Tischgröße : 150 x 90
Wofür soll der Sitzplatz in der Küche genutzt werden? Wie häufig? :
Welche Arbeitshöhe ist angedacht (in cm)? : 90 cm , nach Überprüfung 92 cm
Was steht auf der Arbeitsplatte oder soll dort stehen? : Kaffeevollautomat, Wasserkocher, Toaster, Obstschale
Welche weiteren Küchenmaschinen müssen in der Küche untergebracht werden? : Küchenmaschine, Schneidemaschine (z. B. in Schublade)
Was soll in der Küche außer den Standards untergebracht werden? : ALLE Vorräte, Geschirr komplett (nichts in Ess-/Wohnzimmer)
Welchen Stauraum gibt es sonst noch? : Hauswirtschaftsraum
Was/wie wird gekocht? (Alltagsküche, Menüs, Snacks usw) : Viel Aufläufe, viel Fleisch, auch Geflügel..
Wie häufig wird gekocht? : (fast) täglich 1x warm
Wird alleine gekocht? Oder auch gemeinsam? Mit und für Gäste? : Fast immer mind. zu zweit. Oft auch für Gäste.
Was stört an der bisherigen Küche und was soll die neue Küche unbedingt können? Warum? : Alte Küche hat zu niedrige Hängeschränke. Alte Küche ist in einem anderen Raum. Brauche mehr Stauraum.
Preisvorstellung (Budget) : 12.000,- bis 15.000,-
nachdem wir seit zwei Wochen in der Küchenplanung sind und mir langsam der Kopf raucht, bin ich sehr froh euch gefunden zu haben.
Wir haben einen Altbau und wollen in unserem neuen Gästezimmer nun eine Küche einbauen. Dieser Raum ist sozusagen noch nackt. Kein Betonfußboden und abgehängte Decke. Also alles ist möglich! Das zur Zeit vorhandene Fenster wird vorraus. durch eine Balkontür ersetzt (2-Flügel). Als Tür haben wir eine große Schiebetür vorgesehen.
Es soll passend zu unserem neuen Haus eine Landhausküche werden. Genau konnten wir uns noch nicht entscheiden. Sie soll nicht zu verspielt sein. Im Auge haben wir Lucca von Nobilia , Chalet von Schüller und verliebt habe ich mich in die Windsor von Häcker (soll aber viel zu teuer sein). Bis jetzt haben wir nur ein Preisangebot von der Schüller-Küche, das aber leider etwas über unserem Budget liegt.
Ich glaub das war erstmal das wichtigste. Ach ja....Apothekerschrank muss sein.
Leider habe ich es noch nicht geschafft meinen alno -Plan hochzuladen. Ich find ihn irgendwie nicht auf meinem PC. Werde es aber weiter versuchen..
Ich freue mich auf viele neue Vorschläge und Anregungen. Ist meine erste eigene richtige und so... Einbauküche!
Gruß, Yuma
Checkliste zur Küchenplanung von Yuma
Anzahl Personen im Haushalt : 4
Davon Kinder? : keine, 2 Jungs (19 + 20)
Körpergrössen aller Hauptbenutzer (wegen Arbeitshöhe ) in cm : 170, 172
Art des Gebäudes? : Neu-/Umbau, Planänderungen möglich
Brüstungshöhe des Fensters (in cm) : kein Fenster, nur Balkontür
Fensterhöhe (in cm) :
Raumhöhe in cm: : 255
Heizung : Fussbodenheizung
Sanitäranschlüsse : vollkommen variabel
Ausführung Kühlgerät? : Integriert im Hochschrank
Kühlgerät Größe : bis 122 cm Höhe
Ausführung Tiefkühl (TK)-Gerät : Nicht erforderlich bzw. steht woanders
Dunstabzugshaube? : Abluft
Hochgebauter Backofen ? : Ja
Hochgebauter Geschirrspüler ? : nein
Kochfeldart? : Induktion
Kochfeldbreite ca. (in cm)? : 90
Spülenform: : Noch nicht festgelegt
Weitere geplante Heißgeräte : Standmikrowelle
Küchenstil? : Landhaus
Sitzmöglichkeit in der Küche / im Küchenbereich als : Esstisch mit 5-6 Stühlen
Sitzmöglichkeit: Für wieviel Personen? : für 5 Personen
Sitzmöglichkeit: Tisch - wenn gesonderter Tisch oder offene Küche : Vorhandener Tisch
Gewünschte o. vorhandene Tischgröße : 150 x 90
Wofür soll der Sitzplatz in der Küche genutzt werden? Wie häufig? :
Welche Arbeitshöhe ist angedacht (in cm)? : 90 cm , nach Überprüfung 92 cm
Was steht auf der Arbeitsplatte oder soll dort stehen? : Kaffeevollautomat, Wasserkocher, Toaster, Obstschale
Welche weiteren Küchenmaschinen müssen in der Küche untergebracht werden? : Küchenmaschine, Schneidemaschine (z. B. in Schublade)
Was soll in der Küche außer den Standards untergebracht werden? : ALLE Vorräte, Geschirr komplett (nichts in Ess-/Wohnzimmer)
Welchen Stauraum gibt es sonst noch? : Hauswirtschaftsraum
Was/wie wird gekocht? (Alltagsküche, Menüs, Snacks usw) : Viel Aufläufe, viel Fleisch, auch Geflügel..
Wie häufig wird gekocht? : (fast) täglich 1x warm
Wird alleine gekocht? Oder auch gemeinsam? Mit und für Gäste? : Fast immer mind. zu zweit. Oft auch für Gäste.
Was stört an der bisherigen Küche und was soll die neue Küche unbedingt können? Warum? : Alte Küche hat zu niedrige Hängeschränke. Alte Küche ist in einem anderen Raum. Brauche mehr Stauraum.
Preisvorstellung (Budget) : 12.000,- bis 15.000,-
Anhänge
Zuletzt bearbeitet:
