Fertig mit Bildern Landhausküche

AW: Landhausküche

Was meint ihr? Wenn wir nun das Fenster doch lassen...?? Dann könnten wir ja ganz anders planen, oder?? Mir persönllich wäre die Balkontür nicht so wichtig. Sie führt wie gesagt zwar in den Garten, aber die Terasse ist eh ca. 3 m weg. Vielleicht mache ich doch mal einen erweiterten Grundriss...werd's zumindest versuchen.
LG Yuma

Oh...hab grad mal geschaut, die Brüstung ist nur knapp 1 m hoch..das reicht nicht:'(
 
AW: Landhausküche

Ach quatsch 1 m....das sind nur 87 cm und die Fußbodenheizung muss noch rein..

Ich dachte, dass man sonst die Küchenzeile an die Fensterfront macht und hinten rechts von der Tür aus den Tisch. Dann könnte man links neben der tür doch evtl noch unsere Theke machen. Vielleicht doch mit Kochinsel. Habs aber jetzt noch nicht gerechnet.

Mir schwirrt der Kopf, ich hatte es mir eigentlich einfacher vorgestellt eine Küche zu planen. Was man da alles beachten muß! Vor allem hab ich schwierigkeiten mir das räumlich vorzustellen. Also reicht der Abstand und so.....das habt ihr ja gemerkt:girlblum:

Lg Yuma
 
AW: Landhausküche

Mit dem Alnoplaner kann man ja wenigstens schon mal in etwa die Räume durchwandern. Ansonsten muss man halt gewisse Situation mal mit Möbeln oder Kartons nachbauen.

87 cm und dann noch Reduzierung wg. Fußbodenheizung reicht nicht. Soll denn das Fenster, wenn es denn Fenster bliebe, auch getauscht werden? Man könnte höchstens dann über Erhöhung der Brüstungshöhe nachdenken.

Der Tisch ist ja eigentlich in Fensternähe auch ganz nett.
 
AW: Landhausküche

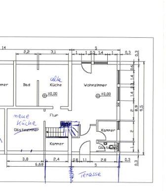
hier mal der Grundriss des Hauses..
 

Anhänge

  • grundriss014.jpg
    grundriss014.jpg
    27,2 KB · Aufrufe: 184
AW: Landhausküche

Was ist denn mit der Kammer? Von wo wird die betreten und für was genutzt?

Und jetzt lese ich ... Küchenbreite 380 cm, du hattest auf dem Nobilia -Plan 400 cm angegeben. Was ist richtig?
Und, wenn ich die 380 cm als gegeben nehme und im Grundriss per Umrechnung die Raumtiefe messe, dann sind das max. 432 cm und nicht 440 cm.

EDIT:
Der Weg zur Terrasse wäre ohne Terrassentür in der Küche aber weiter als 300 cm.
 
AW: Landhausküche

;D und was habt ihr mit der neuen Küche vor? Bleibt das Bad dort? Wie sieht das Treppenhaus aus? kann man die Küchentüre auch weiter Planrechts schieben?
 
AW: Landhausküche

du hast Recht, da stehen 3,8...komisch!
Das stimmt aber nicht. Wir haben nachgemessen. Und um 20 cm haben wir uns bestimmt nicht vertan. also 400 x 440 stimmt.

Die Kammer neben der Küche ist von der Terasse aus erreichbar. Sie liegt leider etwas höher, darum können wir sie von der küche aus nicht nutzen. Höchstens mit Treppchen in der Küche. Und dort ist die Stromversorgung untergebracht und Werkzeug.

Die Kammer neben der Gästetoilette ist mein HWS, dort steht der Gefrierschrank, Getränkekästen usw.

Klar ist der Weg zur Terasse weiter durch das Haus. Darum wollten wir ja die Balkontür machen. ;-) Ich dachte ja nur an eine bessere planung..

@nice-nofret:
Die neue Küche wird Gästezimmer, mit eigenem Bad. Darum wollte ich die Küche ja daraus haben. Die Tür im Flur soll ja eh verbreitert werden, auf ca. 110 - 120 cm... mehr geht nicht wegen der Treppe nach oben. Ich wollte es einfach offen lassen, aber mein Mann möchte eine Schiebetür.

LG Yuma
 
AW: Landhausküche

So, ich will nochmal versuchen euch von unserem Vorschlag zu überzeugen und hab versucht ihn an eure Tipps anzupassen.

Besser so?
 

Anhänge

  • PLAN1 - Kopie.POS
    10,4 KB · Aufrufe: 172
  • PLAN1.KPL
    4,1 KB · Aufrufe: 141
AW: Landhausküche

und jetzt hängst Du noch ein paar Ansichten und den :grundriss: ein - sowie die zusammengehörenden Dateien ;D
 
AW: Landhausküche

Dein Wunsch ist mir Befehl..:rose:

Sorry, aber der Alno -planer stürzt ständig ab. Dann muß ich immer erst den PC neu starten.

Aber diesmal muß der alno-Planer reichen.:sleep:

Gute Nacht!
 

Anhänge

  • Küche11.jpg
    Küche11.jpg
    44 KB · Aufrufe: 195
  • Küche12.jpg
    Küche12.jpg
    33,4 KB · Aufrufe: 187
  • Küche13.jpg
    Küche13.jpg
    38,1 KB · Aufrufe: 196
  • grundriss11.JPG
    grundriss11.JPG
    41,2 KB · Aufrufe: 171
AW: Landhausküche

Mhh immer noch knapp...mit der Tür und der Theke, oder?
 
AW: Landhausküche

Guten Morgen,
eigentlich habe ich nur die tote Ecke versucht reinzubringen und die beiden 60er in der Theke gegen einen 90er getauscht, so dass die Theke nicht so weit in den Raum reicht. Ich denke das würde auch reichen. Und wenn ich das richtig sehe, haben wir von der Tür bis zu den Hockern auch etwas mehr als einen Meter, aber es geht ja darum, dass man nicht sofort auf ein Hindernis läuft, wenn man zur Tür rein kommt.

Mein Mann ist diese Woche auf Montage. Wenn er am Wochenende wieder kommt wollen wir in dem Raum mal etwas bauen um zu sehen, wie es dann aussehen wird. Außerdem haben wir am Samstag Termin bei Höffi. Mal sehen was die uns anbieten. Vielleicht hat der :kfb:ja noch eine zündende Idee.

Kerstin, wenn wir eine L-Form machen, wie z.b. in deinem Plan, und den Tisch in die Mitte, kann man dann auf die andere Seite noch eine Vitrine oder so machen? Ich mein schließlich soll es eine Landhausküche werden;-). Dann gibts eben keine Theke.

Oder passt zur Landhausküche auch diese Theke auf einem Bein? Also auf der Arbeitsplatte und auf einem Fuß...ca. 80 cm...wißt ihr was ich meine?

LG Yuma
 
AW: Landhausküche

...findest du so eine Theke auf einem Bein hübsch? Ich finde nicht, das sie in eine Landhausküche passt. Ich würde ja draußen eine Theke bauen, wenn die Männer unbedingt eine brauchen...:girlblum: ...da können sie dann auch ein Bierfass aufstellen! :cool:

LG Conny
 
AW: Landhausküche

Wo willst du denn hier noch etwas hinstellen, ohne, dass die gerade geschaffenen Laufwege wieder zu sind?
57092d1313489327-landhauskueche-kf_yuma_20110816_kb_var1_grundriss.jpg



Versuch doch erstmal zu beschreiben, was dich hier stört. Wie sieht es z. B. mit meinem angedachten Stehtresen aus? Usw.
 
AW: Landhausküche

So Mädels,

jetzt nagelt mich nicht auf die Details fest - es ist nur ein erstes Konzept
GATTOCUCINE_000122_001.jpgGATTOCUCINE_000122_002.jpgGATTOCUCINE_000122_003.jpgGATTOCUCINE_000122_004.jpg
 

Ähnliche Beiträge

Neff Hausgeräte Ballerina Küchen Blum Bewegungstechnologie Weibel - Intelligente Küchenlüftung

Neff Spezial

Blum Zonenplaner

Weibel Abluft-Tuning

Weibel Abluft-Tuning
Zurück
Oben