dseydel
Mitglied
- Beiträge
- 13
Hallo liebe Küchenfreunde!
Wir planen gerade eine Küche für unsere Eigentumswohnung, die sich noch im Bau befindet (120qm2, 4 Zimmer + Balkon).
Nach ersten Besuchen im Küchenstudio mussten wir leider feststellen, dass der Grundriss für die Küche leider etwas küchenunfreundlich ist.
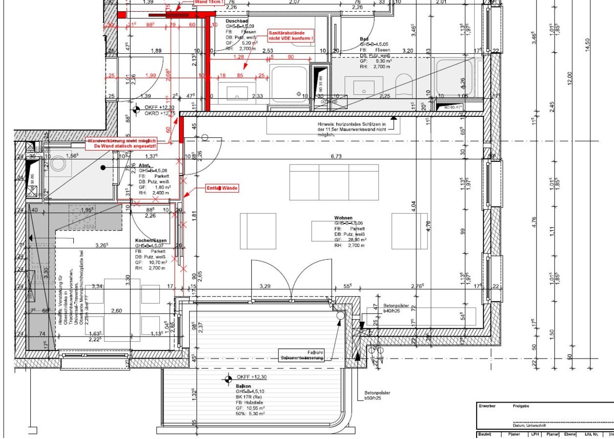
Insgesamt ist die Grundfläche mit 10,7qm2 recht klein und wir haben ein bodentiefes Fenster (das kleine), ein großes Fenster mit einer BH von 50cm und den HWR , der die Durchgangsdiagonale zum Wohnzimmer bestimmt. Die Spüle muss an der Wand liegen und kann nicht in einer möglichen Insel liegen.
Wie im Plan zu sehen ist, werden die Wände zwischen Küche/Wohnzimmer/Entree entfallen. Wir wünschen uns eine offene Wohnraumgestaltung. Neben der Küche sollen folgende Möbel im Wohnraum Platz finden: Esstisch (200x90cm mit 6 Stühlen), Sideboard (180cm), ein L-Sofa (ca. 280cm breit) und ein noch nicht gekauftes Lowboard gegenüber der Couch für TV etc.
Da die Wohnung noch nicht steht, können wir noch bedingt Einfluss auf den Grundriss nehmen. Aktuell überlegen wir, die Küche an die lange Wand im Wohnzimmer, vis a vis zum Balkon zu stellen.
Wir träumen eigentlich von einer Kochinsel, die so realisiert werden könnte. Der Essbereich stände dann in der "neuen" Küche und der hintere Teil des Wohnzimmers wäre der Sofabereich. Alternativ wäre die Küche in der Küche und der Essbereich gegenüber vom Balkon.
Grundsätzlich wünschen wir uns eine tolle Küche - sind aber unsicher, ob wir ihr wirklich so einen prominenten Platz geben wollen. Wenn wir in der angedachten Küche bleiben, ist wohl nicht viel mehr drin als ein L - evtl. noch mit beweglichem Teil....
Aber hier nun erstmal der bemaßte Plan: (Mod: Link entfernt, da Ortsangaben enthalten)
Wenn ich gleich rausfinde, wie ich das PDF anhängen kann, werde ich das auch tun.
Ach ja: Wir haben uns bereits für das Bora Basic entschieden. :-D
Im ersten Planungsschritt müssen wir nun also diese erste Entscheidung treffen und hierzu hätte ich gerne Eure Experteneinschätzung.
Freue mich schon auf Rückmeldungen!
Checkliste zur Küchenplanung
Anzahl Personen im Haushalt: 4
Davon Kinder?: 2
Art des Gebäudes?: Neu-/Umbau, Planänderungen möglich
Körpergrössen aller Hauptbenutzer (wegen Arbeitshöhe ) in cm: 172cm und 176cm
Brüstungshöhe des Fensters (in cm): Küche 50 cm und 0 cm, sonst 75cm
Fensterhöhe (in cm): Küche 222cm, sonst 197,5
Raumhöhe in cm: 270cm
Heizung: Fussbodenheizung
Sanitäranschlüsse: vollkommen variabel
Ausführung Kühlgerät: Integriert im Hochschrank (60cm)
Kühlgerät Größe: noch unbekannt
Ausführung Tiefkühl (TK)-Gerät: Im Kühlschrank ab 3 Schubladen unten
Dunstabzugshaube: keine - nee, Bora Basic ist angedacht
Backofen etc. hochgebaut?: Wenn möglich
Hochgebauter Geschirrspüler ?: Wenn möglich
Kochfeldart: Induktion
Kochfeldbreite ca. (in cm)?: noch nicht entschieden
Spülenform: Noch nicht festgelegt
Geplante Heißgeräte: Dampfgarer ohne Wasseranschluß, Backofen
Küchenstil: Grifflos
Sitzmöglichkeit in der Küche / im Küchenbereich: Keine
Sitzmöglichkeit: Für wieviel Personen?:
Sitzmöglichkeit: Tisch - wenn gesonderter Tisch oder offene Küche:
Gewünschte o. vorhandene Tischgröße: 200 x 90 cm
Wofür soll der Sitzplatz in der Küche genutzt werden? Wie häufig?: Ggf. kleiner Tresen in der Küche für ein schnelles Frühstück o.ä.
Welche Arbeitshöhe ist angedacht (in cm)?: noch unentschieden
Was steht auf der Arbeitsplatte oder soll dort stehen?: Kaffeemaschine, Messerblock, Obstschale
Welche weiteren Küchenmaschinen müssen in der Küche untergebracht werden?: Wasserkocher, Allesschneider (z. B. in Schublade), Handrührgerät, Mixer, Pürierstab
Was soll in der Küche außer den Standards untergebracht werden?:
Welchen Stauraum gibt es sonst noch?: Geschirr/Gläserschrank im Wohn-/Esszimmer, Hauswirtschaftsraum, Keller
Was/wie wird gekocht? (Alltagsküche, Menüs, Snacks usw): Alltagsküche
Wie häufig wird gekocht?(fast) täglich 1x warm[/COLOR]
Wird alleine gekocht? Oder auch gemeinsam? Mit und für Gäste?: Gemeinsam (mit Kindern)
Was stört an der bisherigen Küche und was soll die neue Küche unbedingt können? Warum?:
Steht schon ein Küchenhersteller fest oder wird bevorzugt?: Next125 gefällt uns gut. Zusätzlich fanden wir die Beratung bei Eggersmann sehr gut. Die beiden Hersteller sind grad also in der engeren Auswahl. Generell aber noch nicht entschieden.
Steht schon ein Gerätehersteller fest oder wird bevorzugt?:
Preisvorstellung (Budget): mehr als 25.000,-
---------------
Von Mod im Threadverlauf hinzugefügt:
Auszug nur Koch/Wohnbereich als Bild für die Übersicht:
PDF-Datei Originalgrundriss vermaßt, allerdings ohne Ortsangabe:
Wir planen gerade eine Küche für unsere Eigentumswohnung, die sich noch im Bau befindet (120qm2, 4 Zimmer + Balkon).
Nach ersten Besuchen im Küchenstudio mussten wir leider feststellen, dass der Grundriss für die Küche leider etwas küchenunfreundlich ist.
Wie im Plan zu sehen ist, werden die Wände zwischen Küche/Wohnzimmer/Entree entfallen. Wir wünschen uns eine offene Wohnraumgestaltung. Neben der Küche sollen folgende Möbel im Wohnraum Platz finden: Esstisch (200x90cm mit 6 Stühlen), Sideboard (180cm), ein L-Sofa (ca. 280cm breit) und ein noch nicht gekauftes Lowboard gegenüber der Couch für TV etc.
Da die Wohnung noch nicht steht, können wir noch bedingt Einfluss auf den Grundriss nehmen. Aktuell überlegen wir, die Küche an die lange Wand im Wohnzimmer, vis a vis zum Balkon zu stellen.
Wir träumen eigentlich von einer Kochinsel, die so realisiert werden könnte. Der Essbereich stände dann in der "neuen" Küche und der hintere Teil des Wohnzimmers wäre der Sofabereich. Alternativ wäre die Küche in der Küche und der Essbereich gegenüber vom Balkon.
Grundsätzlich wünschen wir uns eine tolle Küche - sind aber unsicher, ob wir ihr wirklich so einen prominenten Platz geben wollen. Wenn wir in der angedachten Küche bleiben, ist wohl nicht viel mehr drin als ein L - evtl. noch mit beweglichem Teil....
Aber hier nun erstmal der bemaßte Plan: (Mod: Link entfernt, da Ortsangaben enthalten)
Wenn ich gleich rausfinde, wie ich das PDF anhängen kann, werde ich das auch tun.
Ach ja: Wir haben uns bereits für das Bora Basic entschieden. :-D
Im ersten Planungsschritt müssen wir nun also diese erste Entscheidung treffen und hierzu hätte ich gerne Eure Experteneinschätzung.
Checkliste zur Küchenplanung
Anzahl Personen im Haushalt: 4
Davon Kinder?: 2
Art des Gebäudes?: Neu-/Umbau, Planänderungen möglich
Körpergrössen aller Hauptbenutzer (wegen Arbeitshöhe ) in cm: 172cm und 176cm
Brüstungshöhe des Fensters (in cm): Küche 50 cm und 0 cm, sonst 75cm
Fensterhöhe (in cm): Küche 222cm, sonst 197,5
Raumhöhe in cm: 270cm
Heizung: Fussbodenheizung
Sanitäranschlüsse: vollkommen variabel
Ausführung Kühlgerät: Integriert im Hochschrank (60cm)
Kühlgerät Größe: noch unbekannt
Ausführung Tiefkühl (TK)-Gerät: Im Kühlschrank ab 3 Schubladen unten
Dunstabzugshaube: keine - nee, Bora Basic ist angedacht
Backofen etc. hochgebaut?: Wenn möglich
Hochgebauter Geschirrspüler ?: Wenn möglich
Kochfeldart: Induktion
Kochfeldbreite ca. (in cm)?: noch nicht entschieden
Spülenform: Noch nicht festgelegt
Geplante Heißgeräte: Dampfgarer ohne Wasseranschluß, Backofen
Küchenstil: Grifflos
Sitzmöglichkeit in der Küche / im Küchenbereich: Keine
Sitzmöglichkeit: Für wieviel Personen?:
Sitzmöglichkeit: Tisch - wenn gesonderter Tisch oder offene Küche:
Gewünschte o. vorhandene Tischgröße: 200 x 90 cm
Wofür soll der Sitzplatz in der Küche genutzt werden? Wie häufig?: Ggf. kleiner Tresen in der Küche für ein schnelles Frühstück o.ä.
Welche Arbeitshöhe ist angedacht (in cm)?: noch unentschieden
Was steht auf der Arbeitsplatte oder soll dort stehen?: Kaffeemaschine, Messerblock, Obstschale
Welche weiteren Küchenmaschinen müssen in der Küche untergebracht werden?: Wasserkocher, Allesschneider (z. B. in Schublade), Handrührgerät, Mixer, Pürierstab
Was soll in der Küche außer den Standards untergebracht werden?:
Welchen Stauraum gibt es sonst noch?: Geschirr/Gläserschrank im Wohn-/Esszimmer, Hauswirtschaftsraum, Keller
Was/wie wird gekocht? (Alltagsküche, Menüs, Snacks usw): Alltagsküche
Wie häufig wird gekocht?(fast) täglich 1x warm[/COLOR]
Wird alleine gekocht? Oder auch gemeinsam? Mit und für Gäste?: Gemeinsam (mit Kindern)
Was stört an der bisherigen Küche und was soll die neue Küche unbedingt können? Warum?:
Steht schon ein Küchenhersteller fest oder wird bevorzugt?: Next125 gefällt uns gut. Zusätzlich fanden wir die Beratung bei Eggersmann sehr gut. Die beiden Hersteller sind grad also in der engeren Auswahl. Generell aber noch nicht entschieden.
Steht schon ein Gerätehersteller fest oder wird bevorzugt?:
Preisvorstellung (Budget): mehr als 25.000,-
---------------
Von Mod im Threadverlauf hinzugefügt:
Auszug nur Koch/Wohnbereich als Bild für die Übersicht:
PDF-Datei Originalgrundriss vermaßt, allerdings ohne Ortsangabe:
Anhänge
Zuletzt bearbeitet von einem Moderator:
