Fertig mit Bildern Küchenbau Planung

AW: Küchenbau Planung

In Bilder gefasst:


GEfällt mir aber nicht wirklich!

attachment.php
 
AW: Küchenbau Planung

Hallo Stefman,

die Mädels würden Dir sicher hier gerne helfen, aber dazu brauchen wir Informationen von Dir.
Wir arbeiten hier mit dem Alno -Planer , einem Planungsprogramm des Küchenherstellers Alno zur Visualisierung (in 3D!). Hier legen wir zuerst einen Grundriss vom gesamten Raum, evtl. sogar von den umlaufenden Räumen an, um die Wirkung der Küche im gesamten Raum zu testen.

Informationen kommen von Dir nur bruchstückhaft und somit sinkt die Bereitschaft irgendetwas für Dich zu planen.

Nochmal, was wir brauchen:
- Gesamtgrundriss des EG
- Vermaßung des gesamten Raumes inkl. angrenzender Räume (keine ca-Maße!)
- Wenn Fenster vorhanden sind, wie groß sind die, wo ist die Brüstungshöhe
- Sollten Schächte, Heizungen, Wasseranschlüsse, Herdanschlüsse schon feststehen, benötigen wir die GENAUE Position.

Wenn wir Dir helfen sollen, müsstest Du uns die o.g. Informationen erst einmal liefern.

Danke!
 
AW: Küchenbau Planung

In Bilder gefasst: ....Gefällt mir aber nicht wirklich!

...und das hab ich gemeint, als ich schrieb, die Fenster sind ein bisschen unglücklich geplant, für die Küche, die du dir vorstellst. ;-) Warum müssen es unbedingt Lichtbänder sein, und dann noch um die Ecke geplant? Du hast von einem richtigen Fenster einen viel größeren Nutzen, oder lasse wenigstens das kleine Fenster über Eck weg und ziehe das große etwas aus der Ecke raus. Dann würde es etwas harmonischer aussehen.

...und noch einmal, bitte vermaße deinen Grundriss.
 
AW: Küchenbau Planung

Nun gut, ich sehe, dass das große Element Kochinsel (mit wie geplant 200x90) sich nur schwer verwirklich lässt mit der asymetrischen Fenster Anordnung im Eck!

Vielleicht doch wieder zurück zur ursprünglichen Planung wie im ersten Plan ganz oben!
 
AW: Küchenbau Planung

Ich liiiiebe selektives Lesen ... :rolleyes: *ironieoff*
 
AW: Küchenbau Planung

Jaydee, was erwartest du denn:cool: Wir sind doch erst auf S.1:rofl:
 
AW: Küchenbau Planung

Die ursprünliche Planung ist auch Murks. Warum diese komische Ecke planoben rechts und dann die Lücke bis zur Spüle?

LG
Sabine
 
AW: Küchenbau Planung

@ Stefmann.....hier blickt bald keiner mehr durch,


Könntest du bitte nochmal einen Beitrag mit allen erforderlichen Infos hier einstellen? Damit man vernünftig planen kann?
 
AW: Küchenbau Planung

Gesagt getan, hiernochmal ein Plan mit allen Infos auf einen Blick - mit dem Alno -Planer komm ich nicht zurecht zumal er nicht auf einem 64Bit System läuft, geschweigedenn auf Macintosh! :stocksauer:

Ich hoffe es reicht??:rose:
 

Anhänge

  • Küche_Essen.jpg
    Küche_Essen.jpg
    42,6 KB · Aufrufe: 153
AW: Küchenbau Planung

Hast du den Beitrag #22 gelesen?

Wir benötigen die Maße des GANZEN Raumes! Da offene Küche, bitte auch das Esszimmer vermaßen.
 
AW: Küchenbau Planung

Stefan, diese Maße haben wir doch schon, wir brauchen auch die Maße von der anderen Hälfte des Raumes...

Gesamtbreite, aber die hattest du zwischendrinn ja schon mit 8,50m angegeben, breite der Durchgänge, auch den zum Wohnzimmer, Fenster Plan unten links und Plan links.
 
AW: Küchenbau Planung

Ich hab den Raum mal im Alno angelegt. Esszimmerfenster und die Position des Mauerstücks im Durchgang sind nur geschätzt, aber für die Küchenplanung ja auch nicht wirklich relevant. Was aber noch fehlt, ist die genaue Breite des planrechten Küchenfensters - für den Fall, dass jemand Hochschränke an der Stirnwand platzieren möchte. ;-)

stefman_t00_vonesstisch.jpgstefman_t00_grundriss.JPG
 

Anhänge

  • stefman_t00.KPL
    3,9 KB · Aufrufe: 116
  • stefman_t00.POS
    9,3 KB · Aufrufe: 126
AW: Küchenbau Planung

Taylor, das Fenster Plan rechts ist 159cm breit. Das hat Stefan einige Post zuvor geschrieben...

Ich hab auch eine Planung gemacht, die Fenster und Durchgänge des Essbereichs auch nur geschätzt.

Ich habe die Ursprungsplanug ein bisschen überarbeitet. Die Kochinsel habe ich beibehalten, eine herabhängende DAH gefiel mir wegen der Fenstersituation gar nicht, deshalb habe ich einen Deckenlüfter gewählt.

Den GSP habe ich hochgebaut in die Hochschrankwand geplant, ein Unterschrank für Müll unter der APL, darf natürlich auch nicht fehlen.

full


Die Wand zwischen Hochschrankwand und Fenster, wirkt auf dem Planungsfoto ein bisschen leer. Hier könnte ich mir ein tolles Wandtatoo vorstellen... :cool:

Den Tresen habe ich als aufgelegtes Brett angedacht. Ein Beispiel aus Taras Küche...

tara-12655-album1028-bild125400.jpg



Im Eingangspost hat du von einer Schreinerküche geschrieben, du hast 15K als Budget angegeben, das halte ich für eine Schreinerküche ein wenig knapp... Aber auch mit einem industriellen Hersteller, werden 15K knapp werden, die Küche ist doch recht groß... :rose:




Verplant habe ich...

- Trockenbau
- Kühlschrank
- Gefrierschrank
- BO - Mikrowelle
- GSP hochgestellt
- Stützwange
- tote Ecke mit Aufsatzschrank, der Einfachheit halber, habe ich einen Rolladenschrank gewählt, schöner fände ich einen Ullaschrank , am besten das untere Fach mit Lifttür oder als offenes Fach
- Blende
- 80er Unterschrank im Raster 1-2-3
- 45er für Müll unter der APL im Raster 3-3
- 80er Spülenschrank im Raster 3-3
- 80er Unterschrank im Raster 1-2-3
- 50er Unterschrank im Raster 1-2-3

Insel

- Wange
- 80er Unterschrank im Raster 1-1-2-2, 60cm tief
- 80er Unterschrank im Raster 1-1-2-2, 75cm übertief
- 80er Unterschrnak im Raster 1-1-2-2, 75cm übertief
- Blende

Rückseite

- 80er Unertschrank mit Drehtüren und Schwerlastauszüge für Getränkekisten, ohne Griff, daher mit Push to open
- 80er Raumteiler
- 80er Raumteiler
- Blende
 

Anhänge

  • stefman - conny.KPL
    3,9 KB · Aufrufe: 133
  • stefman - conny.POS
    11,2 KB · Aufrufe: 125
  • stefman.jpg
    stefman.jpg
    43,4 KB · Aufrufe: 159
  • stefman1.jpg
    stefman1.jpg
    33,8 KB · Aufrufe: 144
  • stefman3.jpg
    stefman3.jpg
    33,6 KB · Aufrufe: 153
  • stefman2.jpg
    stefman2.jpg
    36,5 KB · Aufrufe: 134
  • stefman4.jpg
    stefman4.jpg
    39,4 KB · Aufrufe: 136
  • stefman5.jpg
    stefman5.jpg
    37,9 KB · Aufrufe: 152
  • stefman-grundriss.JPG
    stefman-grundriss.JPG
    20,5 KB · Aufrufe: 150
AW: Küchenbau Planung

Conny :2daumenhoch:.
LG, Muckelina

PS: ich würde nur den TK unter den KS setzen und einen Schrank mit Innenauszügen für Vorräte vorsehen.
und ggf könnte man die Spüle etwas näher zum GSP setzen, da steht man sich auch nicht im Wege, wenn einer kocht und einer spült ...
 
AW: Küchenbau Planung

Moin Mädels!

WOW!!!! Ich bin sprachlos! Super!

Muss mal die ganzen Infos aufnehmen. Habe (endlich :-[) einen vollständigen Plan als jpeg!

Also eine Arbeitsplatte in Granit hab ich schon, am Montag nochmal ein Gesrpäch mit Meister Schreiner, d.h. die 15T€ sind dehnbar! Das entscheidet sich dann aber wahrscheinlich bei den technischen Geräten!? Gut, aber erstmal Form und soweiter!

Hier der Plan

GlG Stefan
 

Anhänge

  • Plan EG.jpg
    Plan EG.jpg
    71,6 KB · Aufrufe: 176
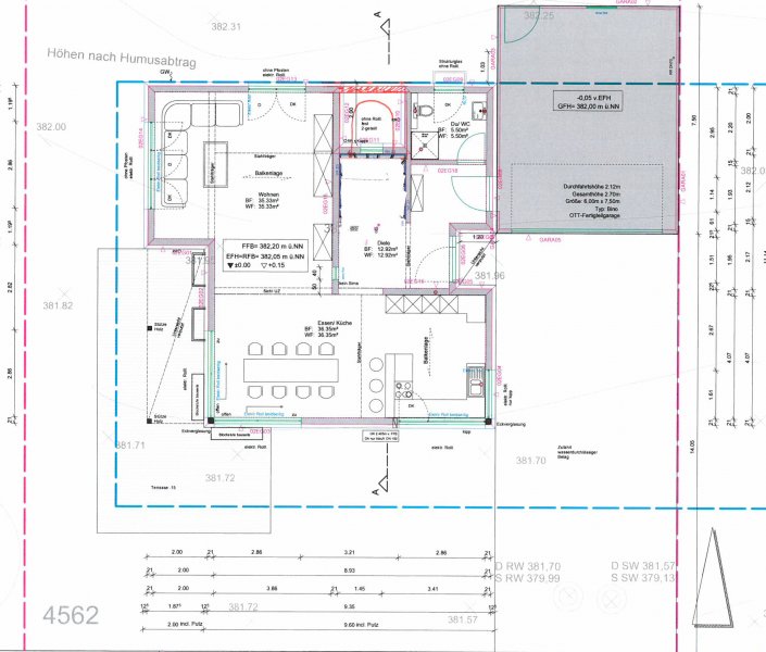
AW: Küchenbau Planung

Ich hoffe der Plan ist qualitativ besser!


LG
Stefan
 

Anhänge

  • Plan EG.pdf
    2,7 MB · Aufrufe: 200
AW: Küchenbau Planung

Ja, nun ist der Plan gut zu lesen. :top: Ich hab die Maße auch fast richtig geraten ;D allerdings ist der Raum etwas größer als die 8,50m, die du genannt hattest. Aber größer ist besser als kleiner. ;-) Ihr baut sowieso, sehr großzügig. :kiss:

Prima, das die 15K dehnbar sind. :top: ...unter Umständen, können Geräte auch ganz gut zu Buche schlagen. :w00t: :cool:

Muckelina, ich hatte auch erst überlegt, den Gefrierschrank unter den Kühlschrank zu planen, hab davon aber Abstand genommen, weil ein Gerät für eine 88er Nische gewünscht ist und der Kühlschrank für die 165cm große Person, dann einfach zu hoch kommt.
Das hatte ich in meiner neuen Küche so, der Gefrierschrank war auch für eine 88er Nische, da hab ich mich 20 Jahre drüber geärgert, weil ich die obere Ablage vom Kühlschrank nur bedingt nutzen konnte...
 
AW: Küchenbau Planung

Was heisst Gerät für ne 88er Nische gewünscht? Auch auf die 1,65 meiner Frau bezogen? Gewünscht ist eigentlich nur weiß und die Arbeitsplatte aus Granit - für allen REst bin ich offen! :kfb:
 
AW: Küchenbau Planung

Was heisst Gerät für ne 88er Nische gewünscht? Auch auf die 1,65 meiner Frau bezogen? Gewünscht ist eigentlich nur weiß und die Arbeitsplatte aus Granit - für allen REst bin ich offen! :kfb:


lg
Stefan
 
Neff Hausgeräte Ballerina Küchen Blum Bewegungstechnologie Weibel - Intelligente Küchenlüftung

Neff Spezial

Blum Zonenplaner

Weibel Abluft-Tuning

Weibel Abluft-Tuning
Zurück
Oben