Stefman
Mitglied
- Beiträge
- 61
Hallo miteinander,
so nun der zweite Versuch.
Wir bauen Küche und ich plane selbst!
Schreiner und Steinmetz stehen fest, jetzt gehts an die Details.
Ich baue mir eine Küche in mattweiß mit versenkten Griffen oder normalen (wenn meine Frau die Hosen anbehält)
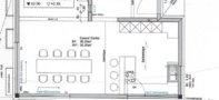
mit einer Kochinsel, d.h. der Plan unten stimmt nicht mehr ganz.
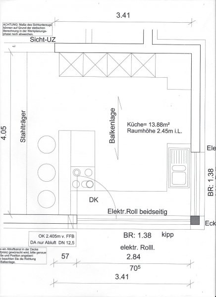
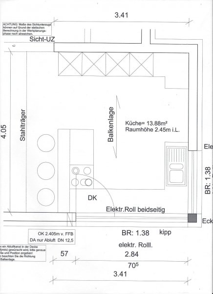
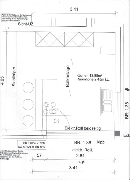
Die Küchenbreite liegt bei 405cm. Die Kochinsel wird 200cm lang und 90 breit, wenn ihr mir nichts besseres vorschlagt
Da der Platz links und rechs bis zum Schrank, bzw. der Spüle/ Arbeitsplatte (soll 60cm tief werden) dann jeweils mit 97cm relativ groß ist?
Die Arbeitsplatten werden aus Granit gemacht mit flächenbündigem Kochfeld und unterbauter Spüle, bzw. im Granit integrierter Abtropffläche.
Geräte uns sonstiger PUnkte bin ich noch unklar!
Bitte um wertvolle Infos!
LGStefan
Checkliste zur Küchenplanung von Stefman
Anzahl Personen im Haushalt : 3
Davon Kinder? : 1
Körpergrössen aller Hauptbenutzer (wegen Arbeitshöhe ) in cm : 1,86 + 1,65
Art des Gebäudes? : Neu-/Umbau, Planänderungen möglich
Brüstungshöhe des Fensters (in cm) : 138
Fensterhöhe (in cm) : 70,5
Raumhöhe in cm: : 245
Heizung : Fussbodenheizung
Sanitäranschlüsse : vollkommen variabel
Ausführung Kühlgerät? : Integriert im Hochschrank (60cm)
Kühlgerät Größe : noch unbekannt
Ausführung Tiefkühl (TK)-Gerät : Eigenständiges Gerät bis 88 cm Höhe
Dunstabzugshaube? : Abluft
Hochgebauter Backofen ? : Nein
Hochgebauter Geschirrspüler ? : nein
Kochfeldart? : Induktion
Kochfeldbreite ca. (in cm)? : 74
Spülenform: : 1 Becken mit Abtropffläche
Weitere geplante Heißgeräte : Einbaumikrowelle
Küchenstil? : modern
Sitzmöglichkeit in der Küche / im Küchenbereich als : Keine
Sitzmöglichkeit: Für wieviel Personen? : für 1 Person
Sitzmöglichkeit: Tisch - wenn gesonderter Tisch oder offene Küche : Vorhandener Tisch
Gewünschte o. vorhandene Tischgröße : 280x94
Wofür soll der Sitzplatz in der Küche genutzt werden? Wie häufig? : Kurzweilig Sitzen und Kaffe trinken evtl., seitig an der Kochinsel mit Barhocker evlt.!
Welche Arbeitshöhe ist angedacht (in cm)? : 90
Was steht auf der Arbeitsplatte oder soll dort stehen? : Kaffeevollautomat, Wasserkocher, Messerblock, Toaster, Brotbehälter, Obstschale
Welche weiteren Küchenmaschinen müssen in der Küche untergebracht werden? :
Was soll in der Küche außer den Standards untergebracht werden? : ALLE Vorräte, Getränkekisten, Geschirr komplett (nichts in Ess-/Wohnzimmer)
Welchen Stauraum gibt es sonst noch? : Geschirr/Gläserschrank im Wohn-/Esszimmer, Keller
Was/wie wird gekocht? (Alltagsküche, Menüs, Snacks usw) : Alltagsküche, Snacks
Wie häufig wird gekocht? : (fast) täglich 1x warm
Wird alleine gekocht? Oder auch gemeinsam? Mit und für Gäste? : So wohl als auch
Was stört an der bisherigen Küche und was soll die neue Küche unbedingt können? Warum? : Vergrößern
Steht schon ein Küchenhersteller fest oder wird bevorzugt? : Ja
Steht schon ein Gerätehersteller fest oder wird bevorzugt? : Nein
Preisvorstellung (Budget) : bis 15.000,-
so nun der zweite Versuch.
Wir bauen Küche und ich plane selbst!
Schreiner und Steinmetz stehen fest, jetzt gehts an die Details.
Ich baue mir eine Küche in mattweiß mit versenkten Griffen oder normalen (wenn meine Frau die Hosen anbehält)
mit einer Kochinsel, d.h. der Plan unten stimmt nicht mehr ganz.
Die Küchenbreite liegt bei 405cm. Die Kochinsel wird 200cm lang und 90 breit, wenn ihr mir nichts besseres vorschlagt
Die Arbeitsplatten werden aus Granit gemacht mit flächenbündigem Kochfeld und unterbauter Spüle, bzw. im Granit integrierter Abtropffläche.
Geräte uns sonstiger PUnkte bin ich noch unklar!
Bitte um wertvolle Infos!
LGStefan

Checkliste zur Küchenplanung von Stefman
Anzahl Personen im Haushalt : 3
Davon Kinder? : 1
Körpergrössen aller Hauptbenutzer (wegen Arbeitshöhe ) in cm : 1,86 + 1,65
Art des Gebäudes? : Neu-/Umbau, Planänderungen möglich
Brüstungshöhe des Fensters (in cm) : 138
Fensterhöhe (in cm) : 70,5
Raumhöhe in cm: : 245
Heizung : Fussbodenheizung
Sanitäranschlüsse : vollkommen variabel
Ausführung Kühlgerät? : Integriert im Hochschrank (60cm)
Kühlgerät Größe : noch unbekannt
Ausführung Tiefkühl (TK)-Gerät : Eigenständiges Gerät bis 88 cm Höhe
Dunstabzugshaube? : Abluft
Hochgebauter Backofen ? : Nein
Hochgebauter Geschirrspüler ? : nein
Kochfeldart? : Induktion
Kochfeldbreite ca. (in cm)? : 74
Spülenform: : 1 Becken mit Abtropffläche
Weitere geplante Heißgeräte : Einbaumikrowelle
Küchenstil? : modern
Sitzmöglichkeit in der Küche / im Küchenbereich als : Keine
Sitzmöglichkeit: Für wieviel Personen? : für 1 Person
Sitzmöglichkeit: Tisch - wenn gesonderter Tisch oder offene Küche : Vorhandener Tisch
Gewünschte o. vorhandene Tischgröße : 280x94
Wofür soll der Sitzplatz in der Küche genutzt werden? Wie häufig? : Kurzweilig Sitzen und Kaffe trinken evtl., seitig an der Kochinsel mit Barhocker evlt.!
Welche Arbeitshöhe ist angedacht (in cm)? : 90
Was steht auf der Arbeitsplatte oder soll dort stehen? : Kaffeevollautomat, Wasserkocher, Messerblock, Toaster, Brotbehälter, Obstschale
Welche weiteren Küchenmaschinen müssen in der Küche untergebracht werden? :
Was soll in der Küche außer den Standards untergebracht werden? : ALLE Vorräte, Getränkekisten, Geschirr komplett (nichts in Ess-/Wohnzimmer)
Welchen Stauraum gibt es sonst noch? : Geschirr/Gläserschrank im Wohn-/Esszimmer, Keller
Was/wie wird gekocht? (Alltagsküche, Menüs, Snacks usw) : Alltagsküche, Snacks
Wie häufig wird gekocht? : (fast) täglich 1x warm
Wird alleine gekocht? Oder auch gemeinsam? Mit und für Gäste? : So wohl als auch
Was stört an der bisherigen Küche und was soll die neue Küche unbedingt können? Warum? : Vergrößern
Steht schon ein Küchenhersteller fest oder wird bevorzugt? : Ja
Steht schon ein Gerätehersteller fest oder wird bevorzugt? : Nein
Preisvorstellung (Budget) : bis 15.000,-
