Fertig mit Bildern Küchenbau Planung

AW: Küchenbau Planung

Die 88er Nische bezieht sich auf die Höhe des Tiefkühlers. Also Sockel , Tiefkühler und darüber dann den Einbaukühlschrank. Conny meinte damit, dass dann der Kühlschrank zu hoch kommt in Bezug auf die Körpergröße deiner Frau.
 
AW: Küchenbau Planung

Ah - i see! :rolleyes:

Im Prinzip will ich einen großen Kühlschrank wie jetzt - d.h. Kühlteil mit eigener Tür und Gefrierfach mit eigener Tür uns ca. 4 Schubladen. Ich werde im Keller evtl. noch eine große Gefriertruhe haben, d.h. ich muss nicht alles in der Küche stauen!

Also wenn sich so etwas besseres, oder geschickteres für den Alltag planen lässt - her mit den Vorschlägen!!!! :rose:

LG
Stefan
 
AW: Küchenbau Planung

Was mir auffällt ist die Treppe .. wird die gewendelt und dann so schmal?:w00t: Gibt es da keine Probleme mit Betten oder Schrank nach oben?
 
AW: Küchenbau Planung

Hallo,

ich habe mal Connys Planung :rose: etwas geändert. Diese Planung folgt mehr den Fenstern, die sehen dann - meiner Meinung nach - etwas integrierter und wirken nicht so wie einfach dahin gesetzt.
 

Anhänge

  • stefman - Jaydee.KPL
    3,9 KB · Aufrufe: 120
  • stefman - Jaydee.POS
    11,2 KB · Aufrufe: 122
  • Stefman1.JPG
    Stefman1.JPG
    24,8 KB · Aufrufe: 111
  • Stefman.jpg
    Stefman.jpg
    44,8 KB · Aufrufe: 119
AW: Küchenbau Planung

Moin Mädels!

Danke für die Vorschläge.

Also Connys Plan gefällt mir auch sehr gut. Meine Bedenken sind nur Abstand Einbauofen bis zur Arbeitsplatte , wobei das kein KO-Kriterium darstellt! Bezüglich des Abluftsystems: Saugt das alles ab, da sich der Herd nun sehr nahe in der Raummitte befindet?

Julia, dein Plan ist im Prinzip die logische Konsequenz aus meinen "Störgefühlen" (also keine KO-Kriterien ;-)) zu oben. Diese Schrankwand "links im Eck" bis zur Decke wirkt aber nicht ganz so modern?

Was meint Ihr?


Liebe Grüße
Stefan
 
AW: Küchenbau Planung

Hallo,

ich finde die Fenster mit der Linienführung der Küche an sich bei Julia "integrierter".

Irgendwie sind die Fenster bei deinem momentangen Grundriss schwierig passend.

Connys plan gefällt mir persönlich zwar auch besser, aber das schmale Fenster so "unmotiviert" an dieser Stelle erinnert mich irgendwie an einen .... Bunker. Ich finde da nicht die passende Beschreibung.

Und mal ganz generell: Du wirst merken wieviel Tageslist Dir mit dieser Art von Fenstern fehlen wird. ;-)

Vielleicht könnte man bei Connys Plan einfach die passenden Fenster dazubasteln. Das Haus ist doch noch in Planung und vieles kann man doch noch ändern.
 
AW: Küchenbau Planung

Ich hatte ja schon ganz zu Anfang geschrieben, das diese Fenster, einfach nicht zum Raum und zur gewünschten Küche passen.... Ich verstehe irgendwie auch nicht ganz, warum so wehement daran festgehalten wird.

Jaydees Planung ist eigentlich nur die Schlussvolgerung aus dieser unglücklichen Fenstersituation, richtig passend finde ich sie nicht, für diesen an sich tollen Raum.
 
AW: Küchenbau Planung

Wegen dem Dunstabzug, so ganz glücklich ist die Situation natürlich nicht, kochen an der Wand, ist wesentlich effektiver. Aus diesem Grund hatte ich gestern auch noch das Kochfeld an die Wand geplant. Optisch ist an der Planung, sicher nocht Bearbeitungsbedarf, sie stellt also zunächst nur eine Stellprobe da. ;-)
Die Hochschrankposition für den BO, kann man natürlich auch verändern, wir stehen noch ganz am Anfang der Planungsphase. Die Abstellmöglichkeiten für Backbleche, sind eigentlich von jeder Position in der Hochschrankwand, gut erreichbar.


Die Alnodateien werde ich später erst hochladen, weil ich dort die Raummaße noch nicht angepasst habe.
 

Anhänge

  • stefman stellprobe.jpg
    stefman stellprobe.jpg
    44,2 KB · Aufrufe: 123
  • stefman-grundriss.JPG
    stefman-grundriss.JPG
    20 KB · Aufrufe: 115
AW: Küchenbau Planung

@ Conny: ja, so wollte ich das auch rüberbringen ;-) (s. Beitrag 47 und 48)
Also "dezent" darauf hinweisen, dass die Fenster einfach deplaziert sind und es unverständlich ist, warum der TE so daran festhält. :w00t:
 
AW: Küchenbau Planung

Von aussen mögen die Fenster mit Sicherheit "stylisch und cool" aussehen, aber im Inneren finde ich sie auch nicht so doll.

Man wohnt ja im Haus und sollte die Fenster nach den Räumen anpassen.
 
AW: Küchenbau Planung

Nur damit du es einmal gesehen hast, ein paar Stellproben mit anderen Fenstern...
 

Anhänge

  • stefman stellprobe.jpg
    stefman stellprobe.jpg
    38,7 KB · Aufrufe: 125
  • stefman stellprobe1.jpg
    stefman stellprobe1.jpg
    35 KB · Aufrufe: 128
  • stefman stellprobe2.jpg
    stefman stellprobe2.jpg
    39,1 KB · Aufrufe: 123
  • stefman stellprobe3.jpg
    stefman stellprobe3.jpg
    38,8 KB · Aufrufe: 140
Zuletzt bearbeitet:
AW: Küchenbau Planung

Wenn die Fenster so bleiben (müssen), dann läuft es wohl auf die Planung in #45 heraus, alles andere sieht irgendwie seltsam aus.

Soll der Pfeil in der Zeichnung in #36 ein Nordpfeil sein? Dann wäre es nämlich wünschenswert auf jeden Fall an der planrechten Seite ein Fenster zu haben. Osten = Morgensonne. :kiss: Also z.B. zwei getrennte Fenster oder (wie bei mir) ein schmaleres, bodentiefes Eckelement. Dann wäre auch eine echte Insel möglich.
 
AW: Küchenbau Planung

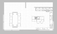
Ich habe noch mal eine Planung mit den Fensterbänder versucht... Ein U mit Spüleninsel. Unter dem Fenster Plan rechts, habe ich 39cm tiefe Unterschränke verplant. Diese lassen für die Insel genügend Platz und das Fenster wirkt nicht verloren. :cool: Durch die geringe Tiefe, kann man hier ohne weiteres auf Auszüge verzichten.
Ich hatte zunächst überlegt, hier den Kaffeevollautomaten drauf zu stellen, aber wahrscheinlich wird dieser wohl tiefer als 39 cm sein?

Deshalb habe ich für den Kaffeevollautomaten, in der Hochschrankwand ein Fach mit Lifttür und Tablar zum Ausziehen vorgesehen. Hier könnte man noch überlegen diesen Hochschrank evtl. mit dem BO-Schrank zu tauschen, optisch finde ich es aber so schöner.

Das Kochfeld habe ich an die Wand geplant. Damit der Weg vom Kochfeld zur Spüle nicht so weit ist, habe ich ein kleines Ausgussbecken unter das Fenster gesetzt. Das ist auch ideal zum Kochen mit Gästen, so drängt sich nicht alles um das große Spülbecken auf der Insel. :cool:

Das Budget müss für diese Planung mit Sicherheit ordentlich aufgestockt werden... Alleine der Granit, wird ordentlich zu Buche schlagen. Aus diesem Grunde habe ich auch mehr im Raster 1-2-3 geplant, irgendwo muss man ja anfangen zu sparen und an Stauraum, wird es in dieser Küche, mit Sicherheit nicht mangeln... :cool:

Verplant habe ich...

- Trockenbau für die Hochschrankwand
- Kühl - Gefrierschrank
- BO-Hochschrank
- GSP-Hochschrank
- Hochschrank mit Fach für den Kaffeevollautomaten
- tote Ecke mit Aufsatzschrank
- 80er Unterschrank mit Auszügen
- 80er Kochfeldschrank
- 80er Unterschrank mit Auszügen
- 60er Spülenschrank im Raster 3-3 mit kleinem Ausgussbecken
- tote Ecke
- 80er Unterschrank mit Drehtüren, 39cm tief
- 80er Unterschrank mit Drehtüren, 39cm tief
- 80er Unterschrank mit Drehtüren, 39cm tief
- Wange

Insel

- Wange
- 80er Unterschrank im Raster 1-1-2-2
- 60er Spülenschrank
- 30er Unterschrank für Müll unter der APL im Raster 4-2
- 45er Unterschrank im Raster 1-1-2-2
- Wange
- überstehende APL für 2 Stühle
- 80er Unterschrank mit Drehtür, 39cm tief
 

Anhänge

  • stefman.jpg
    stefman.jpg
    37,4 KB · Aufrufe: 135
  • stefman1.jpg
    stefman1.jpg
    28,6 KB · Aufrufe: 371
  • stefman2.jpg
    stefman2.jpg
    48 KB · Aufrufe: 124
  • stefman3.jpg
    stefman3.jpg
    38,3 KB · Aufrufe: 134
  • stefman4.jpg
    stefman4.jpg
    33,3 KB · Aufrufe: 142
  • stefman - conny U mit Insel.KPL
    3,9 KB · Aufrufe: 112
  • stefman - conny U mit Insel.POS
    12 KB · Aufrufe: 109
  • stefman - grundriss.JPG
    stefman - grundriss.JPG
    19,4 KB · Aufrufe: 135
AW: Küchenbau Planung

Ja, das könnte man auch machen oder in Jaydees Planung die Halbinsel zur Kochinsel machen .. dann halt auch so ausgerichtet wie jetzt in Connys letzter Planung die Spüleninsel.
 
AW: Küchenbau Planung

Abend!

Toll Conny! Danke!

Habe heute Nachmittag herkömmlich mit Stift und Papier was ähnliches gezeichnet, ausser, dass bei mir die Spüle und Kochfeld vertauscht sind! ;-)

Ich glaub wir sind ganz nah an meiner Wunsch-Aufstellung!


Liebe Grüße
Stefan
 
AW: Küchenbau Planung

Kerstin, Jaydees Planung + Insel wie in meiner letzten Planung, hatte ich auch schon versucht und wieder verworfen, weil dann Insel und Tisch, nicht mehr in einer Linie stehen können. Das gefiel mir optisch, irgendwie gar nicht...
 
AW: Küchenbau Planung

Das ginge gerade so, aber eigentlich ist der Tisch zu groß dafür... *find*
 

Anhänge

  • stefman - grundriss.JPG
    stefman - grundriss.JPG
    19,7 KB · Aufrufe: 111
AW: Küchenbau Planung

Also mir gefällts! Werd mir das heute im Laufe des Tages noch ein Paar mal ansehen!

@Conny

Vielen Dank erstmal! :rose:
Gibt's in diesem AlNO -Planer eine Übersicht wieviele Schubladen wir hätten? Und wie breit die sind, wobei das hast du ja schon oben geschrieben?
Hab ja heut Nachmittag ein Treffen mit meinem Schreiner, werde ihm dann das mal so vorlegen! Mal sehen!

lg
stefan
 
Neff Hausgeräte Ballerina Küchen Blum Bewegungstechnologie Weibel - Intelligente Küchenlüftung

Neff Spezial

Blum Zonenplaner

Weibel Abluft-Tuning

Weibel Abluft-Tuning
Zurück
Oben