Unbeendet Küche mit niedriger Brüstungshöhe

Donu87

Mitglied
Beiträge
1
Hallo Zusammen,

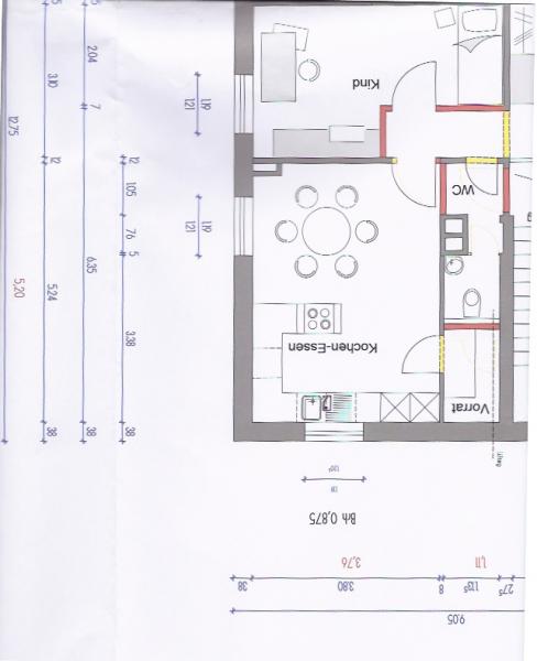
mein Mann und ich planen derzeit eine neue Küche und waren eigentlich sehr zufrieden mit unserer Planung. Doch heute morgen beim Frühstück ist uns ein massiver Planungsfehler aufgefallen.... die Brüstungshöhe der Fenster in unserer Küche (in einer neuen denkmalgeschützten Villa) beträgt gerade mal ca. 87 cm. Da in die Wohnung aber überall ein neuer Paketboden mit Fußbodenheizung verlegt wird, kann man davon locker noch 5 cm abziehen, so dass nur noch 82 cm für die Arbeitsplatte (in unserem jetzigen Plan) übrig wären und das wäre definitiv zu niedrig. Ich bin ca. 1.65 m groß und mein Mann 1,87 m. Habt ihr vielleicht Ideen wie wir diese Küche neugestallten können?

Noch ein paar Eckdaten:

- hinter der Kochinsel (also wenn ich koche, im Rücken von mir befindet sich die Spüle + Arbeitsfläche)
- gegenüber von der Kochinsel ist ein Highboard geplant mit Backofen und Dampfgarer
- rechts von der Kochinsel sind zwei Hochschränke geplant, in einem soll der Kühlschrank untergebracht werden und der andere dient zur Verstaungszwecken.. die zwei schmälere Schränke daneben waren als beleuchtete Vitrine gedacht...
- Links vom Waschbecken sollte in den Unterschränken Spülmaschine und Waschmaschine untergebracht werden und links neben dieser Küchenzeile befindet sich auch der Eingang in den Vorratsraum...

Ich hoffe meine Ausführungen sind anhand des Planes leicht verständlich ;-)

Ich danke euch jetzt schon mal für euere Hilfe ;-)

lg


Checkliste zur Küchenplanung von Donu87

Anzahl Personen im Haushalt :
Davon Kinder? :
Körpergrössen aller Hauptbenutzer (wegen Arbeitshöhe ) in cm : 1.65 und 1.87
Art des Gebäudes? : Bestandsbau, Umbauten ausgeschlossen
Brüstungshöhe des Fensters (in cm) : 0,875
Fensterhöhe (in cm) :
Raumhöhe in cm: :
Heizung : Fussbodenheizung
Sanitäranschlüsse : vollkommen variabel
Ausführung Kühlgerät? : Integriert im Hochschrank
Kühlgerät Größe : noch unbekannt
Ausführung Tiefkühl (TK)-Gerät : Nicht erforderlich bzw. steht woanders
Dunstabzugshaube? : Umluft
Hochgebauter Backofen ? : Ja
Hochgebauter Geschirrspüler ? : nein
Kochfeldart? : Induktion
Kochfeldbreite ca. (in cm)? : 90
Spülenform: : 1 Becken ohne Abtropffläche
Weitere geplante Heißgeräte : Dampfgarer ohne Wasseranschluß
Küchenstil? : grifflos
Sitzmöglichkeit in der Küche / im Küchenbereich als : Tresen in Barhöhe
Sitzmöglichkeit: Für wieviel Personen? : für 2 Personen
Sitzmöglichkeit: Tisch - wenn gesonderter Tisch oder offene Küche : Keine
Gewünschte o. vorhandene Tischgröße : keine Vorstellung
Wofür soll der Sitzplatz in der Küche genutzt werden? Wie häufig? : kurzes Frühstück
Welche Arbeitshöhe ist angedacht (in cm)? :
Was steht auf der Arbeitsplatte oder soll dort stehen? : Kaffeevollautomat, Wasserkocher, Messerblock, Küchenmaschine, Toaster, Brotbehälter, Obstschale
Welche weiteren Küchenmaschinen müssen in der Küche untergebracht werden? :
Was soll in der Küche außer den Standards untergebracht werden? : Geschirr komplett (nichts in Ess-/Wohnzimmer)
Welchen Stauraum gibt es sonst noch? : Speisekammer
Was/wie wird gekocht? (Alltagsküche, Menüs, Snacks usw) : Alltagsküche
Wie häufig wird gekocht? : (fast) täglich 1x warm
Wird alleine gekocht? Oder auch gemeinsam? Mit und für Gäste? :
Was stört an der bisherigen Küche und was soll die neue Küche unbedingt können? Warum? : siehe text
Preisvorstellung (Budget) : mehr als 25.000,-
 

Anhänge

  • Scannen 120220000.pdf
    719,8 KB · Aufrufe: 454
  • Grundriss_neu 1.jpg
    Grundriss_neu 1.jpg
    27,4 KB · Aufrufe: 609
  • Donu1.JPG
    Donu1.JPG
    29 KB · Aufrufe: 784
  • Donu2.JPG
    Donu2.JPG
    26 KB · Aufrufe: 418
  • Donu3.JPG
    Donu3.JPG
    38,5 KB · Aufrufe: 1.299
Zuletzt bearbeitet von einem Moderator:
AW: Küche mit niedriger Brüstungshöhe

:welcome:

Schöne Vorstellung - leider fehlen im Grundriss die Masse (breite der jeweiligen Wandstücke) - bitte nachreichen. Am besten ladet ihr euch den Alno -Planer runter, baut den Raum nach und schiebt selber mal. Hier geht es zu einer problemlosen Version des Alno-Planers:


Bitte trage in der Brüstungshöhe die fertige Brüstungshöhe ein und ergänze den Abstand vom Fensterflügel bis zum Boden. Wie tief ist die Fensterlaibung? Fotos wären nicht schlecht.

Bitte ergänzt die optimalen Arbeitshöhen
ARBEITSHÖHE ermitteln:
- Ellbogen abwinkeln und von dort 15 cm runter messen
- z. B. Bügelbrett nehmen und in verschiedenen Höhen Probeschnippeln und messen, wenn es einem am bequemsten erscheint.
- maximale Höhe ist Oberkante Beckenknochen.
Sobald man die Schultern hochzieht ist es zu hoch; wenn man sich vorbeugt zu niedrig.
Ausführlicher in Optimale Arbeitshöhen beschrieben.
 
Zuletzt bearbeitet von einem Moderator:
AW: Küche mit niedriger Brüstungshöhe

ist das Fenster schon drin ? oder gibt es neue Fenster ?
Dann könnte das Fenster unten einen breiteren Rahmenbekommen, und man könnte mit der APL direkt bis unter den Fensterflügel gehen.

Alternativ ist ein tieferes Kochfeld ergonomisch auch ganz O.K., man könnte die Insel vom Kochen befreien (eh meist besser) und hätte das Problem dann so gelöst.

Eine Bitte... Bilder bitte in die richtige Richtung drehen... Kopf schieflegen ist manchmal *autsch*;-)

*winke*
Samy
 
AW: Küche mit niedriger Brüstungshöhe

Spontan hätte ich gedacht die Spülenzeile an die Planlinke Wand, Kochinsel nicht quer sondern längs in den Raum, dann müsste das gehen, genaueres geht aber erst mit dem vermaßten grundriss
 
AW: Küche mit niedriger Brüstungshöhe

Hier stimme ich zu:

Das Kochfeld ist auf der Mini-Halbinsel denkbar ungünstig geplant (kaum Ablagefläche rechts und links vom Kochfeld, Fettspritzer auf dem Boden, Pfannenstile können über den Schrank ragen --> Sturzgefahr) und eine günstige Alternative wäre der Platz vor dem Fenster!

Da würde die niedrige Brüstungshöhe auch nicht stören und so ein tiefergelegtes Kochfeld finde ich etwas Feines. Denn man schaut ja idealerweise immer von oben in die Töpfe und rührt von oben nach unten.
 

Ähnliche Beiträge

Neff Hausgeräte Ballerina Küchen Blum Bewegungstechnologie Weibel - Intelligente Küchenlüftung

Neff Spezial

Blum Zonenplaner

Weibel Abluft-Tuning

Weibel Abluft-Tuning
Zurück
Oben