Unbeendet Küche für zu renovierendes Haus

Legira

Mitglied
Beiträge
2
Küche für zu renovierendes Haus

Hallo zusammen,

wir sind auf der Suche nach Ideen für unsere neue Küche. Wir haben bis jetzt immer Küchen der Vormieter übernommen daher sind wir noch unerfahren im selbst planen.

Wir sind zu dritt, Tochter ist allerdings erst 1. Normalerweise kocht nur einer, aber oft hilft der zweite beim schnibbeln. Es wird fast täglich frisch gekocht. Wir haben keine Speisekammer, deswegen sollte es möglichst viel Stauraum geben um alle Vorräte zu lagern. Kühlschrank haben wir einen freistehenden den würden wir mitnehmen. Zusätzlich haben wir einen Backofen und ein Kochfeld die mitkommen.

Wir haben ein bestehendes Haus von 1977 gekauft und müssen dort alle Wasserleitungen erneuern, daher sind diese variabel.
Wir waren schon in einem Inhabergeführten Möbelhaus mit großem separaten Küchengeschäft und haben uns dort eine Küche planen lassen. Diese wäre ok, aber irgendwie fragen wir uns, ob es nicht noch besser geht. Sie hat uns eine Nobilia Küche erstellt, die ich im Alno planer versucht habe nachzuplanen. Dort hat mich gestört, dass meine gewünschte Farbkombination nicht möglich ist. Sie hat uns die Lackimitatfront der Preiskategorie 4 mit Antifingerprint empfohlen, die es aber leider nicht in meiner gewünschten Farbe Magnolie gibt. Sollte es wirklich diese teure Front sein? Durch das Kind sollte es schon einiges aushalten. Haltbarkeit geht für uns vor Optik.
Vor das Fenster kann eigentlich nichts gebaut werden da direkt darunter die Heizung ist. Die Fensterbank steht leider 5 cm in den Raum, daher hat die Küchenplanerin der Nobilia Küche ein kleines offenes Regal neben den Backofen , zur Wand hin, geplant. Dieses konnte ich im Alno Planer hinzufügen. Auch war es mir nicht möglich die Ecke des Kamins mit einer Arbeitsplatte auszufüllen.
Wir haben leider keine Möglichkeit einer Speisekammer aufgrund des Grundrisses, höchstens die Möglichkeit eines Schranks in der Diele.
Im Untergeschossgrundriss ist der Raum "Küche" aktuell ein Wäscheraum und das wird er auch bleiben. Der Raum mit "Waschen" ist nur ein offener Treppenbereich, hier kommt dann noch eine weitere Gefriertruhe (zusätzlich zu unserer aktuellen Gefrier-/Kühlkombination in der Küche). Eine Küche soll es bei uns nur im Erdgeschoss geben.

Ansonsten sind unsere Wünsche:
-Kühl-/Gefrierkombination mit ausreichend Gefrierstauraum (Ein Fach ist nicht ausreichend).
-Große Spüle mit "normal großem" Abtropfblech in Edelstahl.
-Abluft-Dunstabzug
-Hängeschränke mit Falt-Lift-Türen
-möglichst viele große Schubladen
-Backofen im Hochschrank , darunter zwei schmalere Schubladen und eine hohe.
-Über dem Backofen ein Fach mit Lift-Tür für die Mikrowelle
-möglichst viel Stauraum (da keine Speisekammer)
-Mülltrennsystem mit 3 möglichst großen Eimern (ich schau mir diesbezüglich auch noch Ideen im Forum an)

Nächste Woche sind wir noch bei einem Küchenbauer mit Ballerina und Schüller Küchen und wollen uns deshalb schon mal weiter informieren.

Vielen Dank für eure Tipps und Ratschläge!

Checkliste zur Kuechenplanung

Personenkriterien und Ergonomie
Anzahl Personen im Haushalt:
3
Davon Kinder: 1
Körpergrößen aller Hauptbenutzer in cm (wegen Arbeitshoehe): 168 cm, 172cm
Welche Arbeitshöhe ist angedacht (in cm)?: circa 84 cm

Gebäudekriterien
Art des Gebäudes:
Neu-/Umbau > Planänderungen möglich, Eigentum
Bruestungshöhe des Fensters (in cm): wissen wir noch nicht, da Fenster getauscht werden und evtl. auch die Heizung darunter wegfällt
Fensterhöhe (in cm): 1340 cm kann sich aber noch ändern weil das Fenster getauscht wird
Raumhöhe in cm: 2500
Heizung: Heizkörper wie im Grundriss
Sanitäranschlüsse: vollkommen variabel

Einbaugerätekriterien
Ausführung Kühlgerät:
Stand-Alone bis 60cm Breite
Einbaukühlgerät Größe: N. a.
Ausführung Tiefkühl (TK)-Gerät: Im Kühlschrank ab 3 Schubladen unten
Dunstabzugshaube: Abluft
Hochgebauter Backofen : ja
Geplante Heißgeräte: Standmikrowelle, Backofen
Hochgebauter Geschirrspüler : wenn möglich
Art des Kochfeldes: Induktionskochfeld
Kochfeldbreite (ca. in cm): 80

Sitzmöglichkeiten
Sitzmöglichkeit in der Küche / im Küchenbereich:
Keine
Sitzmöglichkeit: Für wieviel Personen?: nein
Sitzmöglichkeit: Tisch - wenn gesonderter Tisch oder offene Küche: Keiner
Gewünschte oder vorhandene Tischgröße:
Wofür soll der Sitzplatz in der Küche genutzt werden und wie häufig:

Stauraum-Planung
Was steht auf der Arbeitsplatte oder soll dort stehen?:
Wasserkocher, Thermomix, Messerblock, Obstschale
Welche weiteren Küchenmaschinen müssen in der Küche untergebracht werden: Allesschneider (z.B. in Schublade), Handrührgerät, Mixer, Pürierstab
Was soll in der Küche außer den Standards untergebracht werden: ALLE Vorräte
Welchen Stauraum gibt es sonst noch: Geschirr/Gläserschrank im Wohn-/Esszimmer, Keller

Kochgewohnheiten
Was/wie wird gekocht? (Alltagsküche, Menüs, Snacks usw):
Alltagsküche
Wie häufig wird gekocht: (fast) täglich 1x warm
Wird alleine gekocht? Oder auch gemeinsam? Mit und für Gäste?: alleine, aber auch mal zu zweit bzw. zu dritt mit Kind im Lernturm

Spülen und Müll
Spülenform:
1 Becken mit Abtropffläche
Welche Mülltrennung soll in der Küche vorgehalten werden: Altpapier, Gelber Sack Müll, Restmüll

Sonstiges
Steht schon ein Küchenhersteller fest oder wird bevorzugt:
nein
Steht schon ein Gerätehersteller fest oder wird bevorzugt: nein
Küchenstil: Klassisch
Was stört an der bisherigen Küche und was soll die neue Küche unbedingt können? Warum?: Die alte Küche in der Mietswohnung ist eigentlich ok, mehr Stauraum, eine Abluftdunstabzugshaube und der Backofen nach oben wären schön.
Preisvorstellung (Budget): 10.000€

Angehängte Dateien
 

Anhänge

  • Küche_Grundriss_Alno.jpg
    Küche_Grundriss_Alno.jpg
    99,7 KB · Aufrufe: 172
  • Küche1.jpg
    Küche1.jpg
    118,1 KB · Aufrufe: 155
  • Küche2.jpg
    Küche2.jpg
    149,1 KB · Aufrufe: 146
  • Küche3.jpg
    Küche3.jpg
    153,8 KB · Aufrufe: 144
  • Küche4.jpg
    Küche4.jpg
    148 KB · Aufrufe: 131
  • Küche5.jpg
    Küche5.jpg
    101,6 KB · Aufrufe: 123
  • Küche6.jpg
    Küche6.jpg
    157,8 KB · Aufrufe: 126
  • 1725511414750.jpg
    1725511414750.jpg
    35,7 KB · Aufrufe: 94
  • 1725511456831.jpg
    1725511456831.jpg
    118,9 KB · Aufrufe: 96
  • 1725511487320.jpg
    1725511487320.jpg
    100,6 KB · Aufrufe: 95
Zuletzt bearbeitet von einem Moderator:
Hallo und ein herzliches :welcome:im Küchenforum!

Ich fang mal mit der Checkliste an:
Art des Gebäudes: Neu-/Umbau > Planänderungen möglich, Eigentum
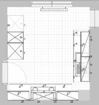
Ich würde mit der Änderung des Türanschlags anfangen: In Deinem Entwurf kann man einen Teil der Kochzeile nicht wirklich verwenden weil entweder steht die offene Tür davor, oder man riskiert, diese in den Nacken zu bekommen, wenn man gerade dort steht.

Warum ist Deine Planung so geworden? Irgendwie kriege ich die Grundrisse nicht zusammmen: Wo ist der Küchenraum, den Du planen möchtest? Erdgeschoss? Ist die Öffnung planrechts oben den Zugang zum Esszimmer? Willst Du das so beibehalten? Oder vielleicht die Wand zum Esszimmer komplett entfernen und eine offene Küche planen?

Vor das Fenster kann eigentlich nichts gebaut werden da direkt darunter die Heizung ist.
? Meinst Du, dass der Heizkörper unterm Fenster ist? Das kann man mit wenig Aufwand ändern, das wäre jetzt kein Planungshindernis. Man muss allerdings die Gesamtsituation betrachten. Und in der Checkliste steht:
Bruestungshöhe des Fensters (in cm): wissen wir noch nicht, da Fenster getauscht werden und evtl. auch die Heizung darunter wegfällt
Das müsstet ihr halt vorgeben, die neue Fenster sind die Chance, den Ist-Zustand an Euren Bedürfnissen anzupassen!
Körpergrößen aller Hauptbenutzer in cm (wegen Arbeitshoehe): 168 cm, 172cm
Welche Arbeitshöhe ist angedacht (in cm)?: circa 84 cm
Die Arbeitshöhe ist ein Tippfehler, oder? Das kann nicht ernst gemeint sein. Für alle Fälle hinterlasse ich hier ein paar Faustregeln zur Bestimmung, die Du unbedingt verwenden solltest. Die Arbeitshöhe beeinflusst die gesamte Planung!
ARBEITSHÖHE ermitteln - 3 Methoden haben sich da etabliert:
  • abgewinkelter Ellbogen bis Boden messen und 15 cm abziehen
  • Höhe Beckenknochen messen
  • z. B. Bügelbrett nehmen und in verschiedenen Höhen Probeschnippeln und messen, wenn es einem am bequemsten erscheint, wobei dies der wichtigste Test ist.
Idealerweise ergeben alle 3 Methoden ca. denselben Wert
Ausführlicher in Optimale Arbeitshöhen beschrieben. *
 
@Legira ... wenn du möchtest, dass es hier weitergeht, wäre es sinnvoll zu den Anmerkungen von @isabella mal Stellung zu nehmen. Es sind auch die ersten Punkte, die mir gleich aufgefallen sind.

Vielleicht überlegt ihr auch mal, die Raumsituation insgesamt anzupassen ...Kochen/Essen mehr Richtung Terrasse, Sofa/TV/Lesen mehr Richtung planoben als Ruhebereich.
 
Wohnt ihr eigentlich schon in dem Haus oder macht ihr erst die Renovierungsarbeiten und zieht dann ein?

Erfahrungsgemäß ist ja dann das Budget nie so richtig groß, sieht man ja an den 10000 Euro. Evtl. lohnt es sich eine Zukunftsperspektive aufzubauen und 3 bis 5 Jahre mit einer Gebrauchtlösung zu überbrücken, um dann in optimal vorbereiteten Räumen mit einer tollen Küchenplanung loszulegen.
 
Hallo Isabella und Kerstin,

vielen Dank für eure Antworten und Einwände.
Wir waren leider gerade vollkommen mit der Abwicklung des Hauskaufes beschäftigt und hatten keinen freien Moment.

@isabella :
Ich würde mit der Änderung des Türanschlags anfangen: In Deinem Entwurf kann man einen Teil der Kochzeile nicht wirklich verwenden weil entweder steht die offene Tür davor, oder man riskiert, diese in den Nacken zu bekommen, wenn man gerade dort steht.
Den Türanschlag zu verändern ist tatsächlich ist das eine sehr gute Idee, die unsere 2. Küchenplanerin auch angestoßen hat, und die definitiv in die Tat umgesetzt wird. Somit wird die Tür der Küche im Erdgeschoss (das ist das obere Stockwerk...) in Zukunft in die Diele geöffnet.

Warum ist Deine Planung so geworden? Irgendwie kriege ich die Grundrisse nicht zusammmen: Wo ist der Küchenraum, den Du planen möchtest? Erdgeschoss? Ist die Öffnung planrechts oben den Zugang zum Esszimmer? Willst Du das so beibehalten? Oder vielleicht die Wand zum Esszimmer komplett entfernen und eine offene Küche planen?
Der Grundriss basiert auf einem Untergeschoss (Keller) in Hanglage, das heißt, dass die linke Hälfte des Plans noch unter der Erde ist, während die rechte Hälfte regulär freistehend ist. Das Erdgeschoss ist oberhalb des Untergeschosses ein normales Vollgeschoss. Der Dachboden ist nicht ausgebaut. --> Die Schlafzimmer sind "unten", die Wohnräume "oben".
Wir möchten die "obere" Küche planen, die untere der Einliegerwohnung wird zum Schlafzimmer.

Der planrechts angeordnete Durchgang zum Esszimmer ist eine in der Wand eingelassene Schiebetür von 70cm breite. Diese verschwindet in der Wand (was evtl. auch das aufhängen von Hängeschränken erschweren könnte).
Die Tür soll beibehalten werden, eine offene Küche kommt bei uns aufgrund der Katzen nicht in Frage

? Meinst Du, dass der Heizkörper unterm Fenster ist? Das kann man mit wenig Aufwand ändern, das wäre jetzt kein Planungshindernis. Man muss allerdings die Gesamtsituation betrachten.
Die Aktuelle Planung sieht eine Fußbodenheizung im ganzen Haus vor, allerdings vorbehaltlich der Angebote der Heizungsbauer, die noch ausstehen. Dementsprechend wäre der Heizkörper kein Hindernis, auch die Brüstungshöhe des Fensters, wie auch die Art der Fensterflügel könnten noch an die neue Küche angepasst werden. Da dieser Bereich aber so oder so ein Durchgangsbereich der Schiebetür zum Esszimmer ist, wird hier das Stellen von Schränken schwierig...

Was die Arbeitshöhe angeht:
Wir haben bei uns beiden den jeweils horizontal stehenden, anliegenden Ellbogen auf dessen Unterseite in der Höhe vermessen und dabei kam bei ihr (Die kleinere Person von beiden) 84cm heraus. Die oberste Kante des Beckenknochen endet tatsächlich ebenfalls in dieser Höhe.
Unsere aktuelle Küche hat eine Arbeitsflächenhöhe (Oberkante Arbeitsfläche) von 90,5cm. Diese ist ihr leicht zu hoch.

@KerstinB :
Die Raumsituation stellt uns vollends zufrieden und möchten wir nicht ändern, auch wenn der Küche hierbei eher weniger Raum zur Verfügung gestellt wird und man immer durch die Diele auf die Terrasse laufen muss. Teilweise ist das auch durch die Ausrichtung des Hauses und den Sonneneinfall begründet.

Wir werden erst die Renovierungs- und umfangreichen Sanierungs-/Modernisierungsarbeiten durchführen, und erst nach der Fertigstellung eines Großteils der Arbeiten einziehen.

Bei einer gebrauchten Küche bzw. einer Ausstellungsküche war bei uns entweder die preisliche Schmerzgrenze erreicht (Wenn ich die 10.000€ bereits für eine gebrauchte/Ausstellungs-Küche ausgebe, dann kann ich auch die Neue fürs gleiche Geld kaufen) oder die Nachteile der verfügbaren, gebrauchten Küchen zu groß, die deutlich unter den 10.000€ lagen. Eine Küche für 1 oder mehrere Jahresgehälter kommt für uns nicht in Frage.

Vielen Dank für eure weiteren Anregungen!
 
Zur Arbeitshöhe noch eine Kleinigkeit: Unbedingt mit den üblichen Hausschuhe bestimmen (oder ohne, wenn man normalerweise barfuß unterwegs ist). 84 Arbeitshöhe wird bedeuten, dass ihr darauf achten müsst, dass die Korpushöhe 72 bis 75 ist, also 5-rastrig.
 
ehrlich gesagt kommt mir das mit Beckenknochen und 84cm bei einer Körpergröße von 168 (hast du dich verschrieben?) ungewöhnlich vor. Ich kann mich nicht erinnern, dass wir jemals eine so niedrige AP Höhe im Forum hatten für eine nicht körperlich behinderte Person. Es gibt einige, die 155 cm groß sind, aber keine verlangte eine so niedrige AP Höhe.

Wenn die 84 cm Fakt sind, so kommt vermutlch nur Nolte mit einem 75er Korpus in Frage, dazu ein GSP mit Varioscharnier oder Miele .

Zu der Schiebetürwand.
Klopf doch mal die ganze Wand ab, um festzustellen, ob ein Teil davon Trockenbau ist. Wenn die Schiebetür in Trockenbau läuft, dürfte es kein Problem sein, diese zu entfernen und neu neben dem Fenster zu installieren, sodass man zumindest bei Tageslicht arbeiten kann und nicht die ganze Zeit in der dunkelsten Ecke kochen muss, zumal der Raum auch noch zu sein soll wegen der Katzen. Warum dürfen die nicht in die Küche? Ich habe etwa 50 Jahre immer mit einer Katze gelebt, bei meinen Eltern oder später in meinem Haushalt. Nicht das ich eine Katze haben wollte. Natürlich kann jeder mit seinen Tieren machen, was er will, bei uns sind sie immer "king of the castle" gewesen, weil wir sie aufgenommen haben oder sie uns zugelaufen sind.
 

Ähnliche Beiträge

Neff Hausgeräte Ballerina Küchen Blum Bewegungstechnologie Weibel - Intelligente Küchenlüftung

Neff Spezial

Blum Zonenplaner

Weibel Abluft-Tuning

Weibel Abluft-Tuning
Zurück
Oben