MisterVegas
Mitglied
- Beiträge
- 14
Hallo zusammen,
wir (meine NOCH schwangere Frau und ich) möchten in Kürze mit dem Bau einer Doppelhaushälfte beginnen. Der Entwurf ist fast schon fertig und demnächst möchten wir den Bauantrag fertigstellen.
Nun hat mich meine Frau damit beauftragt(
), eine Küche für unser neues Haus zu planen. Je früher man sich mit dem Thema beschäftigt, desto besser. Noch können wir ja Einfluß auf das ein oder andere Detail nehmen. Ich habe mich zunächst allgemein über das Thema Küche informiert und schon gemerkt, dass die Materie ziemlich heftig ist
Durch dieses klasse Forum habe ich aber bereits einige wichtige Sachen gelernt wie die verschiedenen Korpushöhen der Hersteller, Rastersysteme, unnütze Eckschränke oder Apothekerschränke. Ich bin schonmal sehr froh, meine Frau davon überzeugt zu haben, dass wir kein Eck-Karussel und keinen Apothekerschrank haben wollen
... Obwohl doch jeder im Bekanntenkreis sagt, wie praktisch diese Schränke ja sind und dass die Ecken besser genutzt werden>
...
Wir haben uns auf die Farbe geeinigt (Magnolie glänzend). Die Oberschränke sollen maximal 65cm hoch sein, da wir uns immer über unsere Oberschränke aufregen, die ganz bis zur Decke gehen. Es soll ein 6-fach-Raster-System mit vielen Auszügen sein. Ein breites Induktionsfeld möchte meine Chefin auch haben, und natürlich einen hochgebauten Backofen . Meiner bescheidenen Meinung nach wäre eigentlich ein hochgebauter Geschirrspüler wichtiger. Aber ich muss noch überlegen, wie ich ihr das beibringen kann. Wenn man mal ehrlich ist, benutzt man den Geschirrspüler doch viel öfter als den Backofen . Und wenn man vielleichtsogar noch Pyrolyse hat, muss man den Backofen nicht mal aufwändig reinigen.
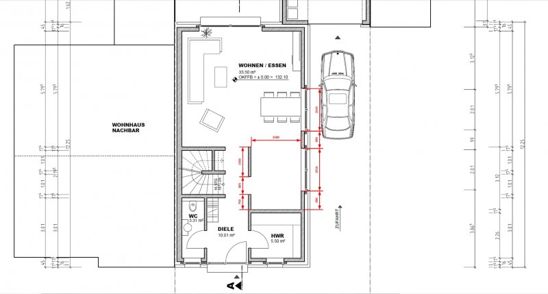
Ansonsten habe ich eigentlich freie Hand. Leider bin ich nicht so kreativ was die Anordnung der Schränke angeht besonders im Bezug auf Ergonomie usw. Ich habe Angst, Anfängerfehler zu machen wie z.B. mal ganz platt ausgedrückt "keine Arbeitsfläche zwischen Spüle und Kochstelle". In verschiedenen Küchengeschäften habe ich mir mal eine Planung erstellen lassen und den Grundriss der Küche gezeigt. Eigentlich haben die alle genau das umgesetzt, was die Architektin in den Grundriss gezeichnet hat und waren nicht sehr kreativ. Deshalb habe ich die im Grundriss eingezeichneten Küchenmöbel mal weiß übermalt.
Noch eine Sache wir haben uns kürzlich einen Gefrierschrank von Liebherr gekauft. Diesen würden wir gerne mitnehmen. Man könnte ihn in den HWR stellen (siehe Grundriss). Deshalb bräuchte das Gefrierfach des neuen Kühlschranks nicht ganz so groß sein. Aber ganz ohne GF sollte er auch nicht sein, damit man nicht für alles in den HWR rüberlaufen muss.
In der Küche selbst benötigen wir keinen Essplatz, da der Essplatz direkt an die Küche angrenzt, siehe Grundriss.
Bei folgenden Sachen sind wir noch unschlüssig:
- Umluft- oder Ablufthaube (Es wird ein KFW70-Haus mit kontrollierter Wohnraumlüftung)
- Art der Spüle (Material und Ausführung)
- Frontenmaterial (es muss nicht unbedingt Lack sein, robust muss es aber sein)
Budgetmäßig liegen wie bei max. 10T€ inkl. Geräte und allem drum und dran. (auch knapp drüber ist erlaubt)
Vielleicht habt Ihr Ideen?
Mit freundlichen Grüßen
Vegas
Anhang anzeigen grundriss.POS
Anhang anzeigen grundriss.KPL





Checkliste zur Küchenplanung von MisterVegas
Anzahl Personen im Haushalt : 3
Davon Kinder? : 1
Körpergrössen aller Hauptbenutzer (wegen Arbeitshöhe ) in cm : 162cm und 172cm
Art des Gebäudes? : Neu-/Umbau, Planänderungen möglich
Brüstungshöhe des Fensters (in cm) : 145
Fensterhöhe (in cm) : 80
Raumhöhe in cm: : 256
Heizung : Fussbodenheizung
Sanitäranschlüsse : vollkommen variabel
Ausführung Kühlgerät? : Integriert im Hochschrank (60cm)
Kühlgerät Größe : noch unbekannt
Ausführung Tiefkühl (TK)-Gerät : Im Kühlschrank als kleines Fach oben
Dunstabzugshaube? : Umluft
Hochgebauter Backofen ? : Ja
Hochgebauter Geschirrspüler ? : wenn möglich
Kochfeldart? : Induktion
Kochfeldbreite ca. (in cm)? : 80
Spülenform: : Noch nicht festgelegt
Weitere geplante Heißgeräte :
Küchenstil? : klassisch
Sitzmöglichkeit in der Küche / im Küchenbereich als : Keine
Sitzmöglichkeit: Für wieviel Personen? : nein
Sitzmöglichkeit: Tisch - wenn gesonderter Tisch oder offene Küche : Keine
Gewünschte o. vorhandene Tischgröße : 200cm
Wofür soll der Sitzplatz in der Küche genutzt werden? Wie häufig? : kein Sitzplatz in der Küche
Welche Arbeitshöhe ist angedacht (in cm)? : 92
Was steht auf der Arbeitsplatte oder soll dort stehen? : Kaffeemaschine, Kaffeevollautomat, Wasserkocher, Toaster
Welche weiteren Küchenmaschinen müssen in der Küche untergebracht werden? : Mixer, Pürierstab
Was soll in der Küche außer den Standards untergebracht werden? : Geschirr komplett (nichts in Ess-/Wohnzimmer)
Welchen Stauraum gibt es sonst noch? : Geschirr/Gläserschrank im Wohn-/Esszimmer, Hauswirtschaftsraum
Was/wie wird gekocht? (Alltagsküche, Menüs, Snacks usw) : Querbeet: Fleisch- / Fischgerichte. Manchmal Fertigtüten, meistens frisch. Ich brate mir schonmal ein Steak.
Wie häufig wird gekocht? : (fast) täglich 1x warm
Wird alleine gekocht? Oder auch gemeinsam? Mit und für Gäste? : oft auch zu zweit
Was stört an der bisherigen Küche und was soll die neue Küche unbedingt können? Warum? : Spüle in Ecke
Geschirrspüler in Ecke
nicht genügend Stauraum
keine Auszüge
Oberschränke zu hoch (ich muss oft die Sachen für meine Frau oben rausholen)
Steht schon ein Küchenhersteller fest oder wird bevorzugt? : in der Nähe stehen gute Händler mit Häcker , Schüller und Alno zur Verfügung
Steht schon ein Gerätehersteller fest oder wird bevorzugt? : Siemens -Klasse (auch z.B. Bosch oder AEG erlaubt)
Preisvorstellung (Budget) : bis 10.000,-
wir (meine NOCH schwangere Frau und ich) möchten in Kürze mit dem Bau einer Doppelhaushälfte beginnen. Der Entwurf ist fast schon fertig und demnächst möchten wir den Bauantrag fertigstellen.
Nun hat mich meine Frau damit beauftragt(
Wir haben uns auf die Farbe geeinigt (Magnolie glänzend). Die Oberschränke sollen maximal 65cm hoch sein, da wir uns immer über unsere Oberschränke aufregen, die ganz bis zur Decke gehen. Es soll ein 6-fach-Raster-System mit vielen Auszügen sein. Ein breites Induktionsfeld möchte meine Chefin auch haben, und natürlich einen hochgebauten Backofen . Meiner bescheidenen Meinung nach wäre eigentlich ein hochgebauter Geschirrspüler wichtiger. Aber ich muss noch überlegen, wie ich ihr das beibringen kann. Wenn man mal ehrlich ist, benutzt man den Geschirrspüler doch viel öfter als den Backofen . Und wenn man vielleichtsogar noch Pyrolyse hat, muss man den Backofen nicht mal aufwändig reinigen.
Ansonsten habe ich eigentlich freie Hand. Leider bin ich nicht so kreativ was die Anordnung der Schränke angeht besonders im Bezug auf Ergonomie usw. Ich habe Angst, Anfängerfehler zu machen wie z.B. mal ganz platt ausgedrückt "keine Arbeitsfläche zwischen Spüle und Kochstelle". In verschiedenen Küchengeschäften habe ich mir mal eine Planung erstellen lassen und den Grundriss der Küche gezeigt. Eigentlich haben die alle genau das umgesetzt, was die Architektin in den Grundriss gezeichnet hat und waren nicht sehr kreativ. Deshalb habe ich die im Grundriss eingezeichneten Küchenmöbel mal weiß übermalt.
Noch eine Sache wir haben uns kürzlich einen Gefrierschrank von Liebherr gekauft. Diesen würden wir gerne mitnehmen. Man könnte ihn in den HWR stellen (siehe Grundriss). Deshalb bräuchte das Gefrierfach des neuen Kühlschranks nicht ganz so groß sein. Aber ganz ohne GF sollte er auch nicht sein, damit man nicht für alles in den HWR rüberlaufen muss.
In der Küche selbst benötigen wir keinen Essplatz, da der Essplatz direkt an die Küche angrenzt, siehe Grundriss.
Bei folgenden Sachen sind wir noch unschlüssig:
- Umluft- oder Ablufthaube (Es wird ein KFW70-Haus mit kontrollierter Wohnraumlüftung)
- Art der Spüle (Material und Ausführung)
- Frontenmaterial (es muss nicht unbedingt Lack sein, robust muss es aber sein)
Budgetmäßig liegen wie bei max. 10T€ inkl. Geräte und allem drum und dran. (auch knapp drüber ist erlaubt)
Vielleicht habt Ihr Ideen?
Mit freundlichen Grüßen
Vegas
Anhang anzeigen grundriss.POS
Anhang anzeigen grundriss.KPL





Checkliste zur Küchenplanung von MisterVegas
Anzahl Personen im Haushalt : 3
Davon Kinder? : 1
Körpergrössen aller Hauptbenutzer (wegen Arbeitshöhe ) in cm : 162cm und 172cm
Art des Gebäudes? : Neu-/Umbau, Planänderungen möglich
Brüstungshöhe des Fensters (in cm) : 145
Fensterhöhe (in cm) : 80
Raumhöhe in cm: : 256
Heizung : Fussbodenheizung
Sanitäranschlüsse : vollkommen variabel
Ausführung Kühlgerät? : Integriert im Hochschrank (60cm)
Kühlgerät Größe : noch unbekannt
Ausführung Tiefkühl (TK)-Gerät : Im Kühlschrank als kleines Fach oben
Dunstabzugshaube? : Umluft
Hochgebauter Backofen ? : Ja
Hochgebauter Geschirrspüler ? : wenn möglich
Kochfeldart? : Induktion
Kochfeldbreite ca. (in cm)? : 80
Spülenform: : Noch nicht festgelegt
Weitere geplante Heißgeräte :
Küchenstil? : klassisch
Sitzmöglichkeit in der Küche / im Küchenbereich als : Keine
Sitzmöglichkeit: Für wieviel Personen? : nein
Sitzmöglichkeit: Tisch - wenn gesonderter Tisch oder offene Küche : Keine
Gewünschte o. vorhandene Tischgröße : 200cm
Wofür soll der Sitzplatz in der Küche genutzt werden? Wie häufig? : kein Sitzplatz in der Küche
Welche Arbeitshöhe ist angedacht (in cm)? : 92
Was steht auf der Arbeitsplatte oder soll dort stehen? : Kaffeemaschine, Kaffeevollautomat, Wasserkocher, Toaster
Welche weiteren Küchenmaschinen müssen in der Küche untergebracht werden? : Mixer, Pürierstab
Was soll in der Küche außer den Standards untergebracht werden? : Geschirr komplett (nichts in Ess-/Wohnzimmer)
Welchen Stauraum gibt es sonst noch? : Geschirr/Gläserschrank im Wohn-/Esszimmer, Hauswirtschaftsraum
Was/wie wird gekocht? (Alltagsküche, Menüs, Snacks usw) : Querbeet: Fleisch- / Fischgerichte. Manchmal Fertigtüten, meistens frisch. Ich brate mir schonmal ein Steak.
Wie häufig wird gekocht? : (fast) täglich 1x warm
Wird alleine gekocht? Oder auch gemeinsam? Mit und für Gäste? : oft auch zu zweit
Was stört an der bisherigen Küche und was soll die neue Küche unbedingt können? Warum? : Spüle in Ecke
Geschirrspüler in Ecke
nicht genügend Stauraum
keine Auszüge
Oberschränke zu hoch (ich muss oft die Sachen für meine Frau oben rausholen)
Steht schon ein Küchenhersteller fest oder wird bevorzugt? : in der Nähe stehen gute Händler mit Häcker , Schüller und Alno zur Verfügung
Steht schon ein Gerätehersteller fest oder wird bevorzugt? : Siemens -Klasse (auch z.B. Bosch oder AEG erlaubt)
Preisvorstellung (Budget) : bis 10.000,-







