sumsasasum
Mitglied
- Beiträge
- 10
Hallo,
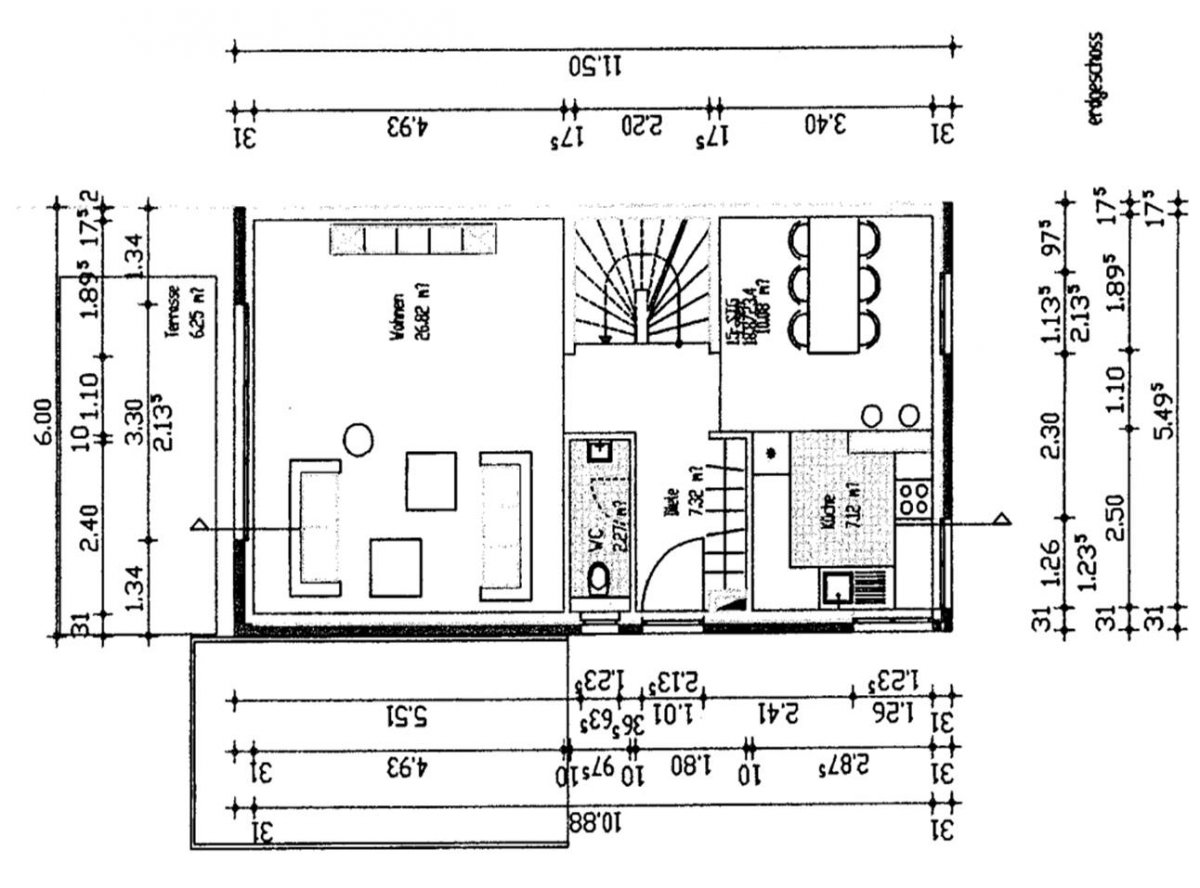
wir planen schon lange den Tausch von heutiger Küche mit dem heutigem Wohnzimmer.
Wichtig ist viel Arbeitsfläche (kinder wollen immer mitkoche) und trotz der Größe der Küche effiziente Laufwege.
In den Küchenstudios bekommen wir 0815 angeboten, also klassisch eine Zeile und eine Insel.
Zur Info: Falls es eine Insel wird, soll dort die Spüle stehen. Ich möchte auf keinen Fall den Herd dort.
Was mich daran zur Zeit stört: Ich finde es langweilig, mir fehlen hier die Highlights. Ich finde die Laufwege zum Tisch zu lang. ich finde die Gefahr, das die Insel 'zuramscht' sehr groß.
Ich hatte jetzt mal ein Alternativvorschlag erarbeitet. Hier raten mir aber all ab, da die Hochschränke, insbesondere der Kühlschrank zu weit weg von der Arbeitsfläche wäre.
Was sagt ihr?
Lieben Dank
Sabine
Checkliste zur Küchenplanung
Anzahl Personen im Haushalt: 4
Davon Kinder?: 2
Art des Gebäudes?: Bestandsbau, (kleinere) Umbauten möglich
Körpergrössen aller Hauptbenutzer (wegen Arbeitshöhe ) in cm: 175 und 160
Brüstungshöhe des Fensters (in cm): 0
Fensterhöhe (in cm): 200
Raumhöhe in cm: 220
Heizung: Fussbodenheizung
Sanitäranschlüsse: vollkommen variabel
Ausführung Kühlgerät: Integriert im Hochschrank (60cm)
Kühlgerät Größe: bis 178 cm Höhe
Ausführung Tiefkühl (TK)-Gerät: Eigenständiges Gerät bis 88 cm Höhe
Dunstabzugshaube: Abluft
Backofen etc. hochgebaut?: Ja
Hochgebauter Geschirrspüler ?: Wenn möglich
Kochfeldart: Induktion
Kochfeldbreite ca. (in cm)?: 80
Spülenform: 2 Becken mit Abtropffläche
Geplante Heißgeräte: Standmikrowelle, Dampfbackofen (DGC) ohne Wasseranschluß
Küchenstil: Landhaus
Sitzmöglichkeit in der Küche / im Küchenbereich: Gesonderter Tisch
Sitzmöglichkeit: Für wieviel Personen?: für 8 Personen
Sitzmöglichkeit: Tisch - wenn gesonderter Tisch oder offene Küche: Wird nach Bedarf neu gekauft
Gewünschte o. vorhandene Tischgröße: 200x100
Wofür soll der Sitzplatz in der Küche genutzt werden? Wie häufig?: Essen, Gesellschaftsspiele, malen/zeichnen/basteln mit den Kindern
Welche Arbeitshöhe ist angedacht (in cm)?: 92
Was steht auf der Arbeitsplatte oder soll dort stehen?: Wasserkocher, Messerblock, Brotbehälter
Welche weiteren Küchenmaschinen müssen in der Küche untergebracht werden?: Küchenmaschine, Handrührgerät, Mixer, Pürierstab
Was soll in der Küche außer den Standards untergebracht werden?: Staubsauger/Wischer etc., Geschirr komplett (nichts in Ess-/Wohnzimmer)
Welchen Stauraum gibt es sonst noch?: Keller
Was/wie wird gekocht? (Alltagsküche, Menüs, Snacks usw): Alltagsküche
Wie häufig wird gekocht?: (fast) täglich 1x warm
Wird alleine gekocht? Oder auch gemeinsam? Mit und für Gäste?: Mist zu viert gemeinsam mit den Kindern
Was stört an der bisherigen Küche und was soll die neue Küche unbedingt können? Warum?: viel Arbeitsfläche.
Welche Mülltrennung soll in der Küche vorgehalten werden?: Biomüll, Gelber Sack Müll, Restmüll
Steht schon ein Küchenhersteller fest oder wird bevorzugt?:
Steht schon ein Gerätehersteller fest oder wird bevorzugt?: Miele
Preisvorstellung (Budget): bis 25.000,-
wir planen schon lange den Tausch von heutiger Küche mit dem heutigem Wohnzimmer.
Wichtig ist viel Arbeitsfläche (kinder wollen immer mitkoche) und trotz der Größe der Küche effiziente Laufwege.
In den Küchenstudios bekommen wir 0815 angeboten, also klassisch eine Zeile und eine Insel.
Zur Info: Falls es eine Insel wird, soll dort die Spüle stehen. Ich möchte auf keinen Fall den Herd dort.
Was mich daran zur Zeit stört: Ich finde es langweilig, mir fehlen hier die Highlights. Ich finde die Laufwege zum Tisch zu lang. ich finde die Gefahr, das die Insel 'zuramscht' sehr groß.
Ich hatte jetzt mal ein Alternativvorschlag erarbeitet. Hier raten mir aber all ab, da die Hochschränke, insbesondere der Kühlschrank zu weit weg von der Arbeitsfläche wäre.
Was sagt ihr?
Lieben Dank
Sabine
Checkliste zur Küchenplanung
Anzahl Personen im Haushalt: 4
Davon Kinder?: 2
Art des Gebäudes?: Bestandsbau, (kleinere) Umbauten möglich
Körpergrössen aller Hauptbenutzer (wegen Arbeitshöhe ) in cm: 175 und 160
Brüstungshöhe des Fensters (in cm): 0
Fensterhöhe (in cm): 200
Raumhöhe in cm: 220
Heizung: Fussbodenheizung
Sanitäranschlüsse: vollkommen variabel
Ausführung Kühlgerät: Integriert im Hochschrank (60cm)
Kühlgerät Größe: bis 178 cm Höhe
Ausführung Tiefkühl (TK)-Gerät: Eigenständiges Gerät bis 88 cm Höhe
Dunstabzugshaube: Abluft
Backofen etc. hochgebaut?: Ja
Hochgebauter Geschirrspüler ?: Wenn möglich
Kochfeldart: Induktion
Kochfeldbreite ca. (in cm)?: 80
Spülenform: 2 Becken mit Abtropffläche
Geplante Heißgeräte: Standmikrowelle, Dampfbackofen (DGC) ohne Wasseranschluß
Küchenstil: Landhaus
Sitzmöglichkeit in der Küche / im Küchenbereich: Gesonderter Tisch
Sitzmöglichkeit: Für wieviel Personen?: für 8 Personen
Sitzmöglichkeit: Tisch - wenn gesonderter Tisch oder offene Küche: Wird nach Bedarf neu gekauft
Gewünschte o. vorhandene Tischgröße: 200x100
Wofür soll der Sitzplatz in der Küche genutzt werden? Wie häufig?: Essen, Gesellschaftsspiele, malen/zeichnen/basteln mit den Kindern
Welche Arbeitshöhe ist angedacht (in cm)?: 92
Was steht auf der Arbeitsplatte oder soll dort stehen?: Wasserkocher, Messerblock, Brotbehälter
Welche weiteren Küchenmaschinen müssen in der Küche untergebracht werden?: Küchenmaschine, Handrührgerät, Mixer, Pürierstab
Was soll in der Küche außer den Standards untergebracht werden?: Staubsauger/Wischer etc., Geschirr komplett (nichts in Ess-/Wohnzimmer)
Welchen Stauraum gibt es sonst noch?: Keller
Was/wie wird gekocht? (Alltagsküche, Menüs, Snacks usw): Alltagsküche
Wie häufig wird gekocht?: (fast) täglich 1x warm
Wird alleine gekocht? Oder auch gemeinsam? Mit und für Gäste?: Mist zu viert gemeinsam mit den Kindern
Was stört an der bisherigen Küche und was soll die neue Küche unbedingt können? Warum?: viel Arbeitsfläche.
Welche Mülltrennung soll in der Küche vorgehalten werden?: Biomüll, Gelber Sack Müll, Restmüll
Steht schon ein Küchenhersteller fest oder wird bevorzugt?:
Steht schon ein Gerätehersteller fest oder wird bevorzugt?: Miele
Preisvorstellung (Budget): bis 25.000,-
Anhänge
-
Grundriss EG.jpg142,8 KB · Aufrufe: 745 -
Küche1_1.jpg37,3 KB · Aufrufe: 1.230 -
Küche1_2.jpg32,9 KB · Aufrufe: 690 -
Küche2_1.jpg25,6 KB · Aufrufe: 652 -
Küche2_2.jpg35,6 KB · Aufrufe: 648 -
sumsasasum_201711_Kueche2-3_Grundriss.jpg29,8 KB · Aufrufe: 615 -
sumsasasum_201711_Kueche1-3_Grundriss.jpg26,2 KB · Aufrufe: 603
Zuletzt bearbeitet von einem Moderator:
