Hilfe zu Küche ohne Fenster

AW: Hilfe zu Küche ohne Fenster

Ok, bei 60 cm habe ich den Durchbruch jetzt auch beginnen lassen, aber nur knapp 90 cm wg. dem Kochfeld.

Die APL würde ich ja drüber führen, und dann muss man halt die 93 cm Höhe etwas reduzieren ;-)
 
AW: Hilfe zu Küche ohne Fenster

Kerstin, warum nicht Spüle und Kochfeld tauschen, um die maximale Durchbruchsbreite auszunützen? 30 cm mehr Lichteinfall wären ja nicht zu verachten.
 
AW: Hilfe zu Küche ohne Fenster

Weil ich auch Fan der hochgestellten GSP bin :cool::cool:

Und, weil ich denke, das man Kühlschrank - Spüle - Kochfeld arbeitet.
 
AW: Hilfe zu Küche ohne Fenster

Die Zutaten holt man sich aber doch oft aus verschiedenen Ecken - Kühlschrank, Vorratsschrank, Speisekammer, Garten ... Von daher würde ich die Position des Kühlschranks eher nachrangig sehen. Hochgebaute Spülmaschine ist natürlich ein bedenkenswertes Argument, weil schon sehr komfortabel. Andererseits ist Tageslicht auch nicht ganz unwichtig, und wenn schon Mauer weggeklopft wird, würde ich schon das Maximum rausholen wollen. Nuja - Prioritäten sind was ziemlich Subjektives. ;-)
 
AW: Hilfe zu Küche ohne Fenster

Taylor, du hast natürlich Recht ... aber, ich wollte "meine" hochgebaute GSP nicht so allein stehen lassen :cool::cool: ... außerdem finde ich eben, dass die Hauptfläche zwischen Spüle und Kochfeld ja von dem Durchbruch profitiert.
 
AW: Hilfe zu Küche ohne Fenster

Kerstin, du hast natürlich auch Recht (mei, da schmeiß ma uns die Blumen zu ;D ) - aber ich denk halt, das Esszimmerfenster als Tageslichtquelle ist etwa 4 Meter weg vom Durchbruch. Das heißt, da kommt eh nur noch wenig Licht an. Und je schmaler der Durchbruch, umso weniger von dem Effekt - der eh mehr emotional ist, Pflanzen würden sagen, da ist finstere Nacht - bleibt übrig. Wobei ich noch vermuten würde, dass die Lichtmenge sich nicht linear, sondern exponenziell reduziert.

Btw, es sollten unbedingt helle Möbel gewählt werden, wie in deinem Plan - jedes dunkle Farbpigment schluckt noch extra Licht.
 
AW: Hilfe zu Küche ohne Fenster

Taylor ... jetzt nochmal die Variante mit der Maximum-Breite des Durchbruches.
 

Anhänge

  • kf_oezze_20101128_Var1b_Ansicht2.jpg
    kf_oezze_20101128_Var1b_Ansicht2.jpg
    99,2 KB · Aufrufe: 131
  • kf_oezze_20101128_Var1b_Ansicht1.jpg
    kf_oezze_20101128_Var1b_Ansicht1.jpg
    129,8 KB · Aufrufe: 162
  • kf_oezze_20101128_Var1b_Grundriss.jpg
    kf_oezze_20101128_Var1b_Grundriss.jpg
    93,6 KB · Aufrufe: 285
AW: Hilfe zu Küche ohne Fenster

So viel Licht! :cool: Sieht doch gleich besser aus. :clap:
Dass das Kochfeld recht nah an den Rand rutscht, scheint mir das kleinste Übel zu sein.

Aber sag mal, ließe sich der breite Durchbruch nicht doch in deiner vorherigen Anordnung lösen? Statt Herd nach außen Dunstabzug Richtung Decke?
 
AW: Hilfe zu Küche ohne Fenster

Wollte ich auch erst. Allerdings ist DAH Richtung Decke auch ein bisschen eine Preisfrage und GEstneuungsfrage. Man müßte ja wieder eine Abhängung und Verkleidung schaffen und das drückt dort auch wieder richtig. Deshalb habe ich die Unterschränke nochmal umgestellt.

Und ja, das Kochfeld hat links jetzt relativ wenig Platz .. 30 cm. Die sollten aber ausreichen. Weniger darf es allerdings nicht werden.
 
AW: Hilfe zu Küche ohne Fenster

Ok, das leuchtet mir ein. Und 30 cm neben dem Kochfeld sind absolut vertretbar. Also für meinen Geschmack hast du das Optimum rausgeholt. Und mit der schmalen Zeile zwischen den Türen wirkt das Ganze wirklich rund und stimmig. :top:
 
AW: Hilfe zu Küche ohne Fenster

Hallo !

Nun nach einiger Zeit haben wir uns mal ein paar Küchen "live" bei Händlern angeschaut um mal zu sehen wo in etwa Unterschiede bestehen und welche Farben wir
gerne wählen würden.
Zwischenzeitlich sieht der Planungsstand für die Küche in etwa so aus (siehe Anhänge). Entgegen der ersten Annahme, daß wir die Abluft über das Esszimmer nach aussen führen müssen, hat sich nun nach einigen Vermessungen der Aussenwände gezeigt, daß wir doch noch direkt aus der Ecke ohne Umweg rauskommen! Zu der aktuell geplanten Küche noch die Anmerkung, daß die 5 cm Seitenwände (Einfassungen) kein muß sind und wir diese nur bei "geringen" Mehrkosten, rein für die Optik nehmen würden. Die drei aneinandergebauten Schränke an der Wand sollen weiteren Stauraum bringen (Staubsauger, Besen, Getränkekiste, Lebensmittel,etc,) und kann sicher auch noch optimiert werden.
Was denkt ihr über den Baustand ? Ich wäre über Eure Rückmeldungen und Verbeserungsvorschläge sehr dankbar.
 

Anhänge

  • Planstand 301210 Ansicht_1.jpg
    Planstand 301210 Ansicht_1.jpg
    33,5 KB · Aufrufe: 145
  • Planstand 301210 Ansicht_2.jpg
    Planstand 301210 Ansicht_2.jpg
    33,7 KB · Aufrufe: 142
  • Planstand 301210.KPL
    4,1 KB · Aufrufe: 119
  • Planstand 301210.POS
    9,8 KB · Aufrufe: 140
  • Planstand 301210 Ansicht_3.jpg
    Planstand 301210 Ansicht_3.jpg
    31,1 KB · Aufrufe: 183
AW: Hilfe zu Küche ohne Fenster

Zu wenig Arbeitsfläche zwischen Spüle und Kochfeld ... und du nutzt dadurch den Durchbruch überhaupt nicht ... im Gegensatz zu dieser grundsätzlichen Anordnung:

36806d1290969910-hilfe-zu-kueche-ohne-fenster-kf_oezze_20101128_var1b_grundriss.jpg
 
AW: Hilfe zu Küche ohne Fenster

.. Wenn Du den Herd hinten mittig setzt und die Spüle nach links verschoben vor den Durchbruch ginge es auch; Dir geht bei dieser Anordnung dann halt der Vorteil einer hochgebauten SpüMa verloren - das ist schade.
 
AW: Hilfe zu Küche ohne Fenster

Eckspüle ist ok, wenn eine verzwickte Raumsituation wirklich nix anderes zulässt - aber davon kann bei dir ja keine Rede sein. Also lass das lieber, man steht wirklich ausgesprochen unbequem an Eckspülen - und dort verbringt man viel Zeit: Nicht der Herd, sondern die Spüle ist das zentrale Element in der Küche. Also gönn ihr bitte eine Position, wo sich auch bequem dran arbeiten lässt. Dass du bei deinem Ansatz ausgerechnet dort am wenigsten Arbeitsfläche hast, wo du am meisten brauchen würdest, und damit ohne Not die Vorteile des Durchbruchs verschenkst, hat Kerstin eh schon erwähnt.
 
AW: Hilfe zu Küche ohne Fenster

Ich habe langsam den Eindruck, dass Eck-Unterschränke und -spülen gerne verkauft werden von Küchenberatern, weil sie teurer sind als normale, gerade Unterschränke. Stauraummäßig verlierst Du bei einem Eck-Unterschrank , neben den bereits erwähnten Argumenten, die gegen eine Eckspüle sprechen.

Optisch gefällt es mir persönlich übrigens auch nicht, aber das ist natürlich nur subjektiv mein Eindruck.
 
AW: Hilfe zu Küche ohne Fenster

Hallo!

Ich verstehe Eure durchaus berechtigten Argumente -ganz klar! Je mehr Arbeitsfläche zwischen Kochfeld und Spüle umso besser --> das wäre auch mein Ziel. Die Spüle sollte aber auch nicht im direkten Durchreichenbereich liegen. Das Kochfeld sollte aufgrund der Abluftposition an der "U-Unterseite" liegen. Jedoch sollte die Spüle und das Kochfeld nicht zu nah den beiden Hochschränke liegen, damit man noch genug Ellenbogenfeiheit hat.
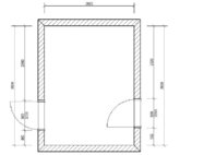
Zudem kommt inzwischen erschwerend dazu, daß die bisherigen Planungen so nicht mehr umsetzbar sind, da ich an den Schenkeln des U-Profils nur noch max.238 cm (Durchbruchseite) Stellfläche und auf der anderen U-Seite nur noch max. 235 cm zur Verfügung habe (siehe aktueller Grundriss).

Unter diesen Voraussetzungen habe ich meine aktulle Planung gemacht. Ich wäre dennoch dankbar wenn ihr Eure Ideen darstellen könntet.
Guten Rutsch wünsche ich... Özkan

...und entschuldigt falls ich Euch zu sehr damit strapaziere - ich merke im Moment das es doch sehr kompliziert wird alles zu berücksichtigen :rose:.
 

Anhänge

  • aktueller Grundriss.POS
    6,2 KB · Aufrufe: 125
  • aktueller Grundriss.KPL
    4,1 KB · Aufrufe: 116
AW: Hilfe zu Küche ohne Fenster

aktuelle grundrisse wären als Bild goil... mit Maßen... Nicht jede(r) hat den Alno

*winke* und guten Rutsch in den ersten-ersten-elf

Samy
 
AW: Hilfe zu Küche ohne Fenster

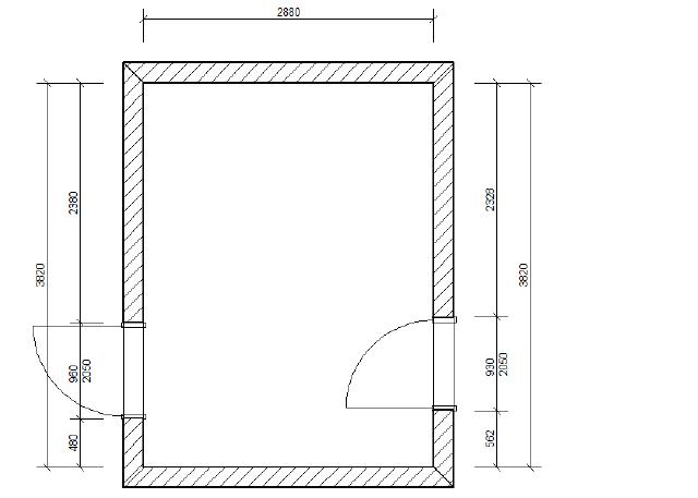
Hallo !

o.k. -grht klar...anbei noch einmal der Grundriss als .jpg.
Dazu noch folgende Infos:
1.) Die Abluft muß in der Ecke oben links an der 288 cm Wand nach außen geführt werden
2.) In der linken Wand ist eine Durchreiche, beginnend bei 65 cm von der Ecke oben links aus mit einer Länge von ca.115 cm. Brüstungshöhe ca. 100 cm.

Guten Rutsch noch einmal Allen !
 

Anhänge

  • Grundriss.JPG
    Grundriss.JPG
    26,6 KB · Aufrufe: 143
AW: Hilfe zu Küche ohne Fenster

Oezze, dein Alnoplan entspricht aber nicht dem Grundriss. Ich hab ihn mal an dessen Maße angepasst, falls schon wer von Silvester erholt ist und schieben mag. ;-)
 

Anhänge

  • kf_oezzeneu_00.POS
    6,2 KB · Aufrufe: 117
  • kf_oezzeneu_00.KPL
    4,1 KB · Aufrufe: 111
Angebot zu Bauformat Küche für unsere "fensterlose Küche"


Hallo!
Da wir unsere Vorstellungen nicht mit der, vor kurzem angedachten, Brinkmeier Küche realiseren konnten, haben wir inzwischen ein neues Angebot eingeholt.

Es geht diesmal um eine Bauformat - Küche (Cube 130) mit einer Front aus Lack (matt / magnolie) und einer Arbeitsplatte (helle Eiche) mit einem Angebotspreis, inklusive Lieferung und Aufbau, von 9600 Euro. Dazu würde ich gerne Eure Meinung, im speziellen für das Preis/Leistungsverhältnis wissen wollen.

@Kerstin:Bitte sei mir nicht böse, daß ich nach wie vor bei meinem Stellplan
bleibe :-).


Folgende "Holzteile" sind darin enthalten:

- 1 x 80 cm Unterschränke (3 Auszüge)
- 1 x 80 cm Unterschrank für das Kochfeld (3 Auszüge)
- 1 x 50 cm Unterschrank (3 Auszüge)
- 1 x 30 cm Unterschrank (3 Auszüge)
- 1 x Eckspülenschrank 90x90 cm
- 1 x Unterschrank 60 cm für eine vollintegrierte GSP
- 1 x Hochschrank ca. 150 cm für einen Backofen und Auszügen
- 1 x Hochschrank ca. 150 cm für Kühlschrank
- 2 x Hochschrank ca. 150 cm (Tiefe 40 cm), Drehtür und 4 Böden
- 1 x Hochschrank ca. 150 cm (Tiefe 40 cm), Drehtür und Nische für Einbaumikrowelle

- Je 2 und 3 Hochschränke sind in 5 cm Wangen und Abdeckplatten in Arbeitspalltendekor eingefasst.
- 1 x Abhängung und Blende in Arbeitsplattendekor
ca. 290 cm x 35 x 2,5 cm unter der Decke zwecks "Verkleidung Abluftrohr der DAH , inklusive 3 Spots.
- ca 7 m x 0,25 m Spritzschutz in Arbeitplattendekor für die Wand, erhöht am Kochfeld bis unter die Haube.

Elektrogeräte (mittlerer Internetpreis ca.3100 Euro)
- AEG Backofen BP3003001M (Pyrolyse , Teleskopauszüge)
- Neff Kochfeld mit T14T40N0 (60 cm, autark, Twistpad)
- AEG GSP Öko Favorit 78000 ___
- AEG Kühl und Gefrierkombination SDS51200S0 (122 cm Nische)
- Neff Einbaumikrowelle
- Bosch Dunstabzugshaube DWB09E850


Weiteres

- Naber Mauerkasten Compair "Flowstar" inklusive 4 m Flachkanal/Bögen
- 2 x Besteckeinsatz für 80 cm und 50 cm Unterschrank-Schublade
- Hailo "Dreh- und Auszugmülleimer"
- Blanco Spültisch "Blancodelta" (Silgranit)
- Armatur "Talis S" von hansgrohe (Brause)


So - ich glaube das war`s ! Ich hänge noch den Planungstand an. In dem sind ein paar Auszüge und Grifpositionen noch anders gestaltet als oben angegeben und geplant. Der Spritzschutz ist nicht dargestellt.

Vielen lieben Dank für Eure Rückmeldungen und Unterstützung im Voraus.

Schönen Gruß - Özze!




 

Anhänge

  • Angebot Bauformat_3.jpg
    Angebot Bauformat_3.jpg
    33,7 KB · Aufrufe: 148
  • Planstand Bauformat.KPL
    4,1 KB · Aufrufe: 107
  • Planstand Bauformat.POS
    9,7 KB · Aufrufe: 116
  • Angebot Bauformat_1.jpg
    Angebot Bauformat_1.jpg
    33,7 KB · Aufrufe: 139
  • Angebot Bauformat_2.jpg
    Angebot Bauformat_2.jpg
    31,7 KB · Aufrufe: 138

Ähnliche Beiträge

Neff Hausgeräte Ballerina Küchen Blum Bewegungstechnologie Weibel - Intelligente Küchenlüftung

Neff Spezial

Blum Zonenplaner

Weibel Abluft-Tuning

Weibel Abluft-Tuning
Zurück
Oben