su rosi
Mitglied
- Beiträge
- 24
Kochfeld vor Fenster u.a. Fragen
Hallo, ich hätte gerne Eure Meinungen zu
Kochfeld mit Abzug vs. DAH
( NEFF T58TL6EN2 VS. BERBEL SMARTLINE)?
NEFF - T58TL6EN2 - Induktionskochfeld mit Dunstabzug
Kopffreihaube Smartline | berbel Ablufttechnik GmbH
schafft ein Kochfeldabzug auch die Dünste von z.B. Thermomix und Airfryer?
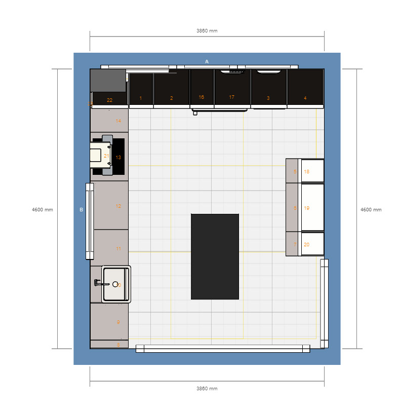
Kochfeld mit Muldenlüfter vor Fenster? ist das möglich gefällt mir von der Raumaufteilung besser s. Bilder, da ja auch ein Tisch noch mittig steht
Erfahrungen mit Blanco Keramik?
ich habe bisher nur Erfahrungen mit Ikea Keramik, das hat mich nicht überzeugt. Blanco liegt preislich zwischen Ikea und Villeroy & Boch
PANOR 60
Angebote von Nobilia und Burger liegen aus einem Küchenstudio vor
Vorteil: hier hätte ich den Rund-um-Service und weniger Stress und fühle mich technisch gut aufgehoben, wir haben viel Umbau vor (mit Fenster-Einbau und Anschlüsse müssen gelegt werden)
Ikea ist nur ein Hauch günstiger
Vorteil: ich bin mehr Typ "ich liebe Flexibilität" und wenn mal was kaputt geht oder mir die Aufteilung nicht gefällt tausche ich aus.
Dazu muss ich sagen, dass nur der Ikea-Berater "um die Ecke gedacht" hat und diese Lösung gezaubert hat, alle anderen (auch o.g. und noch 3 verschiedene KS) sind immer nur auf die alte Anordnung gekommen)
ich habe auch hier einen guten Küchenbauer mit pfiffigen Lösungen
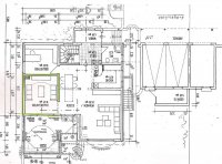
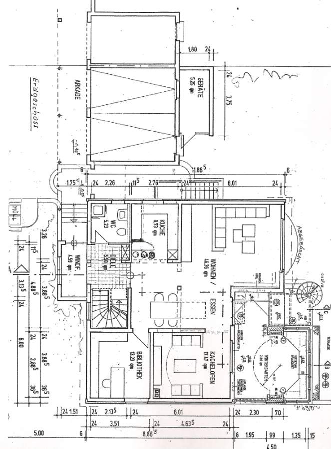
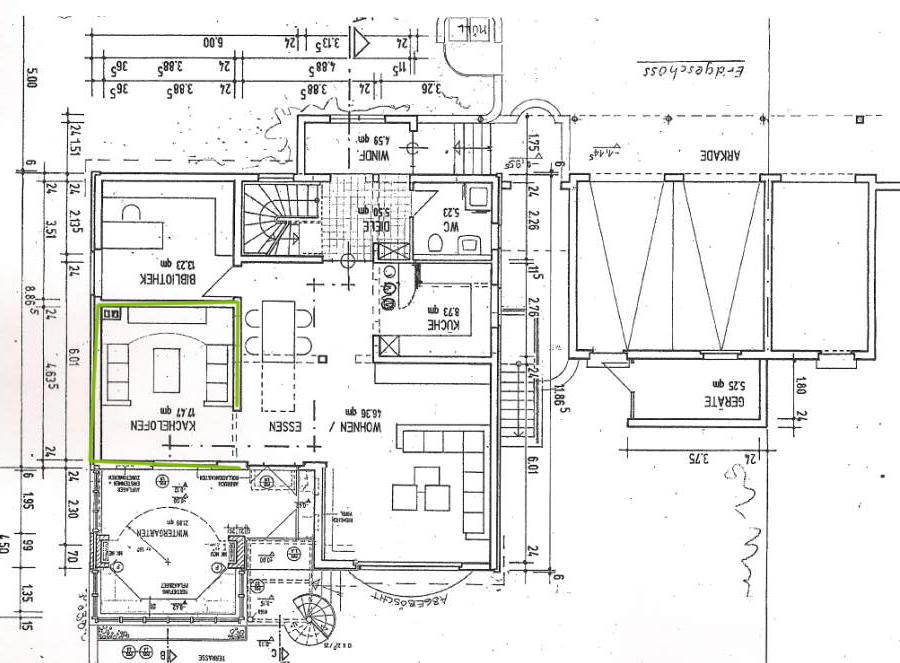
Zum Grundriss: Küche wird in "Kachelofen" gelegt.
Fenster wird noch eingebaut, ist von der Position noch variabel, macht aber an der gezeigten Stelle am meisten Sinn, da vom Wintergarten viel Licht einfällt, der Bereich beim Schornstein aber sehr dunkel ist.
In die Küche wird noch ein vorhandener Esstisch integriert und ein alter Buffetschrank. Maße Tisch 80x160cm, Maße Schrank 160cm Breite,60 cm Tiefe (s. Bild der Raumsituation, in den die Küche kommt)
Hochschränke werden tw. "Gerätegarage" für Wasserkocher, normale Kaffeemaschine, Allesschneider, Sodastream, Toaster, Handstaubsauger
Ich freue mich sehr über INPUT!!!
Checkliste zur Küchenplanung
Personenkriterien und Ergonomie
Anzahl Personen im Haushalt: 4
Davon Kinder: 2
Körpergrößen aller Hauptbenutzer in cm (wegen Arbeitshöhe ): 170,180
Welche Arbeitshöhe ist angedacht (in cm)?: 90-92
Gebäudekriterien
Art des Gebäudes: Bestandsbau > (kleinere) Umbauten möglich, Eigentum
Brüstungshöhe des Fensters (in cm): flexibel
Fensterhöhe (in cm): 125
Raumhöhe in cm: 250
Heizung: Heizkörper wie im Grundriss
Sanitäranschlüsse: vollkommen variabel
Einbaugerätekriterien
Ausführung Kühlgerät: Side by Side (ca. 90cm breit)
Einbaukühlgerät Größe: N. a.
Ausführung Tiefkühl (TK)-Gerät: Nicht erforderlich bzw. steht woanders
Dunstabzugshaube: Umluft
Hochgebauter Backofen : ja
Geplante Heißgeräte: Standmikrowelle, Dampfbackofen (DGC) ohne Wasseranschluß
Hochgebauter Geschirrspüler : nein
Art des Kochfeldes: Induktion
Kochfeldbreite (ca. in cm): 80
Sitzmöglichkeiten
Sitzmöglichkeit in der Küche / im Küchenbereich: Separater Tisch
Sitzmöglichkeit: Für wieviel Personen?: Für 6 Personen
Sitzmöglichkeit: Tisch - wenn gesonderter Tisch oder offene Küche: Vorhandener Tisch
Gewünschte oder vorhandene Tischgröße: 88x160
Wofür soll der Sitzplatz in der Küche genutzt werden und wie häufig: täglich alle Mahlzeiten
Stauraumplanung
Was steht auf der Arbeitsplatte oder soll dort stehen?: Kaffeemaschine, Thermomix, Küchenmaschine
Welche weiteren Küchenmaschinen müssen in der Küche untergebracht werden: Sonstiges (evtl. im Beitragstext benennen)
Was soll in der Küche außer den Standards untergebracht werden: N. a.
Welchen Stauraum gibt es sonst noch: Keller
Kochgewohnheiten
Was/wie wird gekocht? (Alltagsküche, Menüs, Snacks usw): Alltagsküche, bei Geburtstagen etc. auch für 20 Leute, Wochenende "schöner"
Wie häufig wird gekocht: (fast) täglich 1x warm
Wird alleine gekocht? Oder auch gemeinsam? Mit und für Gäste?: gerne mit den Kindern und auch bei spontanen Küchenparties
Spülen und Müll
Spülenform: N. a.
Welche Mülltrennung soll in der Küche vorgehalten werden: Altpapier, Bio/Restmüll ungetrennt, Biomüll, Gelber Sack Müll
Sonstiges
Steht schon ein Küchenhersteller fest oder wird bevorzugt: Ikea, Nobilia, Burger
Steht schon ein Gerätehersteller fest oder wird bevorzugt: Siemens , Berbel, Neff
Küchenstil: Grifflose Küche
Was stört an der bisherigen Küche und was soll die neue Küche unbedingt können? Warum?: kaum Kopffreiheit, kein Platz für Tisch, kaum Arbeitsfläche (wegen der Geräte)
Preisvorstellung (Budget): 25000 mit Umbau
Angehängte Dateien
Hallo, ich hätte gerne Eure Meinungen zu
Kochfeld mit Abzug vs. DAH
( NEFF T58TL6EN2 VS. BERBEL SMARTLINE)?
NEFF - T58TL6EN2 - Induktionskochfeld mit Dunstabzug
Kopffreihaube Smartline | berbel Ablufttechnik GmbH
schafft ein Kochfeldabzug auch die Dünste von z.B. Thermomix und Airfryer?
Kochfeld mit Muldenlüfter vor Fenster? ist das möglich gefällt mir von der Raumaufteilung besser s. Bilder, da ja auch ein Tisch noch mittig steht
Erfahrungen mit Blanco Keramik?
ich habe bisher nur Erfahrungen mit Ikea Keramik, das hat mich nicht überzeugt. Blanco liegt preislich zwischen Ikea und Villeroy & Boch
PANOR 60
Angebote von Nobilia und Burger liegen aus einem Küchenstudio vor
Vorteil: hier hätte ich den Rund-um-Service und weniger Stress und fühle mich technisch gut aufgehoben, wir haben viel Umbau vor (mit Fenster-Einbau und Anschlüsse müssen gelegt werden)
Ikea ist nur ein Hauch günstiger
Vorteil: ich bin mehr Typ "ich liebe Flexibilität" und wenn mal was kaputt geht oder mir die Aufteilung nicht gefällt tausche ich aus.
Dazu muss ich sagen, dass nur der Ikea-Berater "um die Ecke gedacht" hat und diese Lösung gezaubert hat, alle anderen (auch o.g. und noch 3 verschiedene KS) sind immer nur auf die alte Anordnung gekommen)
ich habe auch hier einen guten Küchenbauer mit pfiffigen Lösungen
Zum Grundriss: Küche wird in "Kachelofen" gelegt.
Fenster wird noch eingebaut, ist von der Position noch variabel, macht aber an der gezeigten Stelle am meisten Sinn, da vom Wintergarten viel Licht einfällt, der Bereich beim Schornstein aber sehr dunkel ist.
In die Küche wird noch ein vorhandener Esstisch integriert und ein alter Buffetschrank. Maße Tisch 80x160cm, Maße Schrank 160cm Breite,60 cm Tiefe (s. Bild der Raumsituation, in den die Küche kommt)
Hochschränke werden tw. "Gerätegarage" für Wasserkocher, normale Kaffeemaschine, Allesschneider, Sodastream, Toaster, Handstaubsauger
Ich freue mich sehr über INPUT!!!
Checkliste zur Küchenplanung
Personenkriterien und Ergonomie
Anzahl Personen im Haushalt: 4
Davon Kinder: 2
Körpergrößen aller Hauptbenutzer in cm (wegen Arbeitshöhe ): 170,180
Welche Arbeitshöhe ist angedacht (in cm)?: 90-92
Gebäudekriterien
Art des Gebäudes: Bestandsbau > (kleinere) Umbauten möglich, Eigentum
Brüstungshöhe des Fensters (in cm): flexibel
Fensterhöhe (in cm): 125
Raumhöhe in cm: 250
Heizung: Heizkörper wie im Grundriss
Sanitäranschlüsse: vollkommen variabel
Einbaugerätekriterien
Ausführung Kühlgerät: Side by Side (ca. 90cm breit)
Einbaukühlgerät Größe: N. a.
Ausführung Tiefkühl (TK)-Gerät: Nicht erforderlich bzw. steht woanders
Dunstabzugshaube: Umluft
Hochgebauter Backofen : ja
Geplante Heißgeräte: Standmikrowelle, Dampfbackofen (DGC) ohne Wasseranschluß
Hochgebauter Geschirrspüler : nein
Art des Kochfeldes: Induktion
Kochfeldbreite (ca. in cm): 80
Sitzmöglichkeiten
Sitzmöglichkeit in der Küche / im Küchenbereich: Separater Tisch
Sitzmöglichkeit: Für wieviel Personen?: Für 6 Personen
Sitzmöglichkeit: Tisch - wenn gesonderter Tisch oder offene Küche: Vorhandener Tisch
Gewünschte oder vorhandene Tischgröße: 88x160
Wofür soll der Sitzplatz in der Küche genutzt werden und wie häufig: täglich alle Mahlzeiten
Stauraumplanung
Was steht auf der Arbeitsplatte oder soll dort stehen?: Kaffeemaschine, Thermomix, Küchenmaschine
Welche weiteren Küchenmaschinen müssen in der Küche untergebracht werden: Sonstiges (evtl. im Beitragstext benennen)
Was soll in der Küche außer den Standards untergebracht werden: N. a.
Welchen Stauraum gibt es sonst noch: Keller
Kochgewohnheiten
Was/wie wird gekocht? (Alltagsküche, Menüs, Snacks usw): Alltagsküche, bei Geburtstagen etc. auch für 20 Leute, Wochenende "schöner"
Wie häufig wird gekocht: (fast) täglich 1x warm
Wird alleine gekocht? Oder auch gemeinsam? Mit und für Gäste?: gerne mit den Kindern und auch bei spontanen Küchenparties
Spülen und Müll
Spülenform: N. a.
Welche Mülltrennung soll in der Küche vorgehalten werden: Altpapier, Bio/Restmüll ungetrennt, Biomüll, Gelber Sack Müll
Sonstiges
Steht schon ein Küchenhersteller fest oder wird bevorzugt: Ikea, Nobilia, Burger
Steht schon ein Gerätehersteller fest oder wird bevorzugt: Siemens , Berbel, Neff
Küchenstil: Grifflose Küche
Was stört an der bisherigen Küche und was soll die neue Küche unbedingt können? Warum?: kaum Kopffreiheit, kein Platz für Tisch, kaum Arbeitsfläche (wegen der Geräte)
Preisvorstellung (Budget): 25000 mit Umbau
Angehängte Dateien
Anhänge
