peter.banz
Mitglied
- Beiträge
- 4
Hallo!
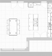
Die Planung unserer Küche ist leider etwas ins stocken geraten, da wir erstens nicht sicher sind, ob sie genug Stauraum bietet und zweitens das Angebot noch nicht zu unseren Preisvorstellungen passt.
Kann man da was besser machen?
Danke und Grüße
Peter
Checkliste zur Küchenplanung von peter.banz
Anzahl Personen im Haushalt : 4
Davon Kinder? : 2
Körpergrössen aller Hauptbenutzer (wegen Arbeitshöhe ) in cm : 182+174
Art des Gebäudes? : Neu-/Umbau, Planänderungen möglich
Brüstungshöhe des Fensters (in cm) : 1
Fensterhöhe (in cm) : 238
Raumhöhe in cm: : 275
Heizung : Fussbodenheizung
Sanitäranschlüsse : vollkommen variabel
Ausführung Kühlgerät? : Stand-Alone bis 60 cm Breite
Kühlgerät Größe : bis 175 cm Höhe
Ausführung Tiefkühl (TK)-Gerät : Nicht erforderlich bzw. steht woanders
Dunstabzugshaube? : Abluft
Hochgebauter Backofen ? : Ja
Hochgebauter Geschirrspüler ? : wenn möglich
Kochfeldart? : Induktion
Kochfeldbreite ca. (in cm)? : 80-85
Spülenform: : Noch nicht festgelegt
Weitere geplante Heißgeräte : Standmikrowelle, Dampfgarer mit Wasseranschluß, Wärmeschublade
Küchenstil? : grifflos
Sitzmöglichkeit in der Küche / im Küchenbereich als : Keine
Sitzmöglichkeit: Für wieviel Personen? : nein
Sitzmöglichkeit: Tisch - wenn gesonderter Tisch oder offene Küche : Wird nach Bedarf neu gekauft
Gewünschte o. vorhandene Tischgröße : 210x100
Wofür soll der Sitzplatz in der Küche genutzt werden? Wie häufig? : keiner vorhanden
Welche Arbeitshöhe ist angedacht (in cm)? : 92-94
Was steht auf der Arbeitsplatte oder soll dort stehen? : Kaffeemaschine, Wasserkocher, Messerblock, Toaster, Brotbehälter
Welche weiteren Küchenmaschinen müssen in der Küche untergebracht werden? : Wasserkocher, Toaster, Handrührgerät, Mixer, Pürierstab
Was soll in der Küche außer den Standards untergebracht werden? : ALLE Vorräte
Welchen Stauraum gibt es sonst noch? : Speisekammer, Keller
Was/wie wird gekocht? (Alltagsküche, Menüs, Snacks usw) : Alltagsküche und Menüs
Wie häufig wird gekocht? : (fast) täglich 1x warm
Wird alleine gekocht? Oder auch gemeinsam? Mit und für Gäste? : Gemeinsam, meistens für Gäste
Was stört an der bisherigen Küche und was soll die neue Küche unbedingt können? Warum? : Budgetüberschreitung
Steht schon ein Küchenhersteller fest oder wird bevorzugt? : Leicht Avance-FS
Steht schon ein Gerätehersteller fest oder wird bevorzugt? : Miele , Induktionsfeld eventuell anderer Hersteller
Preisvorstellung (Budget) : bis 20.000,-
Die Planung unserer Küche ist leider etwas ins stocken geraten, da wir erstens nicht sicher sind, ob sie genug Stauraum bietet und zweitens das Angebot noch nicht zu unseren Preisvorstellungen passt.
Kann man da was besser machen?
Danke und Grüße
Peter
Checkliste zur Küchenplanung von peter.banz
Anzahl Personen im Haushalt : 4
Davon Kinder? : 2
Körpergrössen aller Hauptbenutzer (wegen Arbeitshöhe ) in cm : 182+174
Art des Gebäudes? : Neu-/Umbau, Planänderungen möglich
Brüstungshöhe des Fensters (in cm) : 1
Fensterhöhe (in cm) : 238
Raumhöhe in cm: : 275
Heizung : Fussbodenheizung
Sanitäranschlüsse : vollkommen variabel
Ausführung Kühlgerät? : Stand-Alone bis 60 cm Breite
Kühlgerät Größe : bis 175 cm Höhe
Ausführung Tiefkühl (TK)-Gerät : Nicht erforderlich bzw. steht woanders
Dunstabzugshaube? : Abluft
Hochgebauter Backofen ? : Ja
Hochgebauter Geschirrspüler ? : wenn möglich
Kochfeldart? : Induktion
Kochfeldbreite ca. (in cm)? : 80-85
Spülenform: : Noch nicht festgelegt
Weitere geplante Heißgeräte : Standmikrowelle, Dampfgarer mit Wasseranschluß, Wärmeschublade
Küchenstil? : grifflos
Sitzmöglichkeit in der Küche / im Küchenbereich als : Keine
Sitzmöglichkeit: Für wieviel Personen? : nein
Sitzmöglichkeit: Tisch - wenn gesonderter Tisch oder offene Küche : Wird nach Bedarf neu gekauft
Gewünschte o. vorhandene Tischgröße : 210x100
Wofür soll der Sitzplatz in der Küche genutzt werden? Wie häufig? : keiner vorhanden
Welche Arbeitshöhe ist angedacht (in cm)? : 92-94
Was steht auf der Arbeitsplatte oder soll dort stehen? : Kaffeemaschine, Wasserkocher, Messerblock, Toaster, Brotbehälter
Welche weiteren Küchenmaschinen müssen in der Küche untergebracht werden? : Wasserkocher, Toaster, Handrührgerät, Mixer, Pürierstab
Was soll in der Küche außer den Standards untergebracht werden? : ALLE Vorräte
Welchen Stauraum gibt es sonst noch? : Speisekammer, Keller
Was/wie wird gekocht? (Alltagsküche, Menüs, Snacks usw) : Alltagsküche und Menüs
Wie häufig wird gekocht? : (fast) täglich 1x warm
Wird alleine gekocht? Oder auch gemeinsam? Mit und für Gäste? : Gemeinsam, meistens für Gäste
Was stört an der bisherigen Küche und was soll die neue Küche unbedingt können? Warum? : Budgetüberschreitung
Steht schon ein Küchenhersteller fest oder wird bevorzugt? : Leicht Avance-FS
Steht schon ein Gerätehersteller fest oder wird bevorzugt? : Miele , Induktionsfeld eventuell anderer Hersteller
Preisvorstellung (Budget) : bis 20.000,-
Anhänge
-
Terrassentür.jpg31 KB · Aufrufe: 202 -
EG.jpg41,6 KB · Aufrufe: 374 -
Grundriss Eigen.jpg23,2 KB · Aufrufe: 400 -
Grundriss Kueche.jpg35,9 KB · Aufrufe: 200 -
Alno Plan V2.KPL4,1 KB · Aufrufe: 170
-
Alno Plan V2.POS10,2 KB · Aufrufe: 175
-
Essen 2.jpg34,9 KB · Aufrufe: 202 -
Essen.jpg35,7 KB · Aufrufe: 205 -
Kühlschrank.jpg40,5 KB · Aufrufe: 206







