tdb7
Mitglied
- Beiträge
- 2
Hallo zusammen,
wir stehen kurz davor unseren Küchenkauf abzuschließen. Und zwar suchen wir (2 Personen) eine weiße hochglanz Küche in L-Form mit Insel.
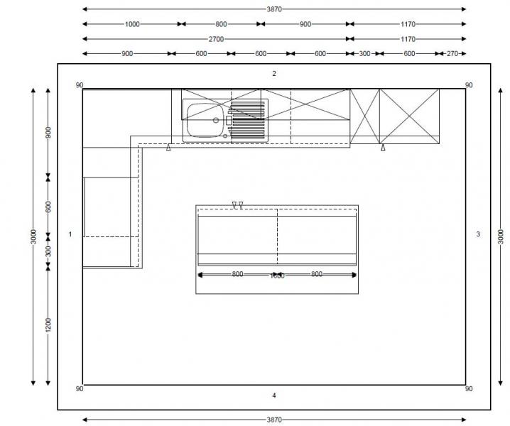
Aufbau sollte wie folgt sein und auf dem Bild ersichtlich (von links).
1) Auszugschrank für Flaschen
2) Herd+Ceran+Dunst
3) Eckschrank 90 cm mit Karusell
4) Auszugsschrank für Teller und Töpfe
5) Spüle+Mülltrennung
6) Spülmaschine voll integriert
7) Apothekerschrank
8) Kühl/Gefrier-Kombi
9a) Unterschrank für Insel mit Auszügen
9b) Unterschrank für Insel mit normaler Tür und Böden
Es handelt sich um ein Wohn-Esszimmer mit ca. 40qm Wohnfläche. Der Bereich der Küche ist gefließt in 3,87m x 2,08. Es liegen schon Steckdosen, aber laut Bauherr=Vermieter sind die Anschlüsse noch frei wählbar.
Anbieter/Angebote haben wir drei zur Auswahl:
1) Wellmann oder Impulse
2) Ballerina
3) Asmo mit Hausmarke Asmo Selection
Die Preise liegen relativ eng zusammen zwischen ca. 3.900 € und 4.500 €.
Haltet ihr die Planung für okay? Haben noch überlegt wegen dem Platz zwischen Spülmaschine und Insel und bezüglich der Problematik beim Entleeren der Spülmaschine, denke aber das sollte so passen.
Kennt Ihr den Anbieter Asmo Küchen (Variante Selection 1)? Laut Asmo, verbirgt sich dahinter ein Küchenwerk in Bad Oeyenhausen, welches auch die Küchen vom nordischen Möbelhaus "Kraft" baut. Wer das aber genau ist weiß ich leider nicht!!! Einer von Euch?? Die Fronten sind bei Impulse/Well aber dünner gewesen als Ballerina und Asmo.
Bezüglich Frontoberfläche bin ich aber total verwirrt!! Wellmann/Impuls sind anscheinend melaminharzbeschichtungete Fronten. Die Ballerina Fronten sind an allen vier Seiten laminiert und das weiß ist nur glänzend, nicht hochglanz - Material - keine Ahnung! Ähnlich bei Asmo, hier sind aber zwei Seiten der Front "rund" und nur zwei laminiert!
Weiß zufällig jemand die Lieferzeiten bei Ballerina? Angeblich bei heutiger Bestellung bis KW34...
Checkliste zur Küchenplanung von tdb7
Anzahl Personen im Haushalt : 2
Davon Kinder? : keine
Körpergrössen aller Hauptbenutzer (wegen Arbeitshöhe ) in cm : 182 + 165
Art des Gebäudes? : Neu-/Umbau, Planänderungen möglich
Brüstungshöhe des Fensters (in cm) : französiche Fenster
Fensterhöhe (in cm) :
Raumhöhe in cm: :
Heizung : Fussbodenheizung
Sanitäranschlüsse : variabel an aktueller Wand
Ausführung Kühlgerät? : Integriert im Hochschrank
Kühlgerät Größe : noch unbekannt
Ausführung Tiefkühl (TK)-Gerät : Eigenständiges Gerät bis 178 cm Höhe
Dunstabzugshaube? : Umluft
Hochgebauter Backofen ? : Nein
Hochgebauter Geschirrspüler ? : nein
Kochfeldart? : Ceran (herkömmlich)
Kochfeldbreite ca. (in cm)? : 55
Spülenform: : 1 Becken mit Abtropffläche
Weitere geplante Heißgeräte :
Küchenstil? : modern
Sitzmöglichkeit in der Küche / im Küchenbereich als : Arbeitsplatte in Tischhöhe
Sitzmöglichkeit: Für wieviel Personen? : für 2 Personen
Sitzmöglichkeit: Tisch - wenn gesonderter Tisch oder offene Küche : Keine
Gewünschte o. vorhandene Tischgröße : 80-100
Wofür soll der Sitzplatz in der Küche genutzt werden? Wie häufig? : Als "Snack-Ecke"
Welche Arbeitshöhe ist angedacht (in cm)? : normal
Was steht auf der Arbeitsplatte oder soll dort stehen? : Kaffeemaschine, Wasserkocher, Toaster
Welche weiteren Küchenmaschinen müssen in der Küche untergebracht werden? : Mixer, Pürierstab, Eierkocher
Was soll in der Küche außer den Standards untergebracht werden? : ALLE Vorräte, Getränkekisten
Welchen Stauraum gibt es sonst noch? : Hauswirtschaftsraum
Was/wie wird gekocht? (Alltagsküche, Menüs, Snacks usw) : alltagsküche
Wie häufig wird gekocht? : ab und zu
Wird alleine gekocht? Oder auch gemeinsam? Mit und für Gäste? : auch gemeinsam
Was stört an der bisherigen Küche und was soll die neue Küche unbedingt können? Warum? : nichts->Umzug
Preisvorstellung (Budget) : bis 5.000,-
wir stehen kurz davor unseren Küchenkauf abzuschließen. Und zwar suchen wir (2 Personen) eine weiße hochglanz Küche in L-Form mit Insel.
Aufbau sollte wie folgt sein und auf dem Bild ersichtlich (von links).
1) Auszugschrank für Flaschen
2) Herd+Ceran+Dunst
3) Eckschrank 90 cm mit Karusell
4) Auszugsschrank für Teller und Töpfe
5) Spüle+Mülltrennung
6) Spülmaschine voll integriert
7) Apothekerschrank
8) Kühl/Gefrier-Kombi
9a) Unterschrank für Insel mit Auszügen
9b) Unterschrank für Insel mit normaler Tür und Böden
Es handelt sich um ein Wohn-Esszimmer mit ca. 40qm Wohnfläche. Der Bereich der Küche ist gefließt in 3,87m x 2,08. Es liegen schon Steckdosen, aber laut Bauherr=Vermieter sind die Anschlüsse noch frei wählbar.
Anbieter/Angebote haben wir drei zur Auswahl:
1) Wellmann oder Impulse
2) Ballerina
3) Asmo mit Hausmarke Asmo Selection
Die Preise liegen relativ eng zusammen zwischen ca. 3.900 € und 4.500 €.
Haltet ihr die Planung für okay? Haben noch überlegt wegen dem Platz zwischen Spülmaschine und Insel und bezüglich der Problematik beim Entleeren der Spülmaschine, denke aber das sollte so passen.
Kennt Ihr den Anbieter Asmo Küchen (Variante Selection 1)? Laut Asmo, verbirgt sich dahinter ein Küchenwerk in Bad Oeyenhausen, welches auch die Küchen vom nordischen Möbelhaus "Kraft" baut. Wer das aber genau ist weiß ich leider nicht!!! Einer von Euch?? Die Fronten sind bei Impulse/Well aber dünner gewesen als Ballerina und Asmo.
Bezüglich Frontoberfläche bin ich aber total verwirrt!! Wellmann/Impuls sind anscheinend melaminharzbeschichtungete Fronten. Die Ballerina Fronten sind an allen vier Seiten laminiert und das weiß ist nur glänzend, nicht hochglanz - Material - keine Ahnung! Ähnlich bei Asmo, hier sind aber zwei Seiten der Front "rund" und nur zwei laminiert!
Weiß zufällig jemand die Lieferzeiten bei Ballerina? Angeblich bei heutiger Bestellung bis KW34...
Checkliste zur Küchenplanung von tdb7
Anzahl Personen im Haushalt : 2
Davon Kinder? : keine
Körpergrössen aller Hauptbenutzer (wegen Arbeitshöhe ) in cm : 182 + 165
Art des Gebäudes? : Neu-/Umbau, Planänderungen möglich
Brüstungshöhe des Fensters (in cm) : französiche Fenster
Fensterhöhe (in cm) :
Raumhöhe in cm: :
Heizung : Fussbodenheizung
Sanitäranschlüsse : variabel an aktueller Wand
Ausführung Kühlgerät? : Integriert im Hochschrank
Kühlgerät Größe : noch unbekannt
Ausführung Tiefkühl (TK)-Gerät : Eigenständiges Gerät bis 178 cm Höhe
Dunstabzugshaube? : Umluft
Hochgebauter Backofen ? : Nein
Hochgebauter Geschirrspüler ? : nein
Kochfeldart? : Ceran (herkömmlich)
Kochfeldbreite ca. (in cm)? : 55
Spülenform: : 1 Becken mit Abtropffläche
Weitere geplante Heißgeräte :
Küchenstil? : modern
Sitzmöglichkeit in der Küche / im Küchenbereich als : Arbeitsplatte in Tischhöhe
Sitzmöglichkeit: Für wieviel Personen? : für 2 Personen
Sitzmöglichkeit: Tisch - wenn gesonderter Tisch oder offene Küche : Keine
Gewünschte o. vorhandene Tischgröße : 80-100
Wofür soll der Sitzplatz in der Küche genutzt werden? Wie häufig? : Als "Snack-Ecke"
Welche Arbeitshöhe ist angedacht (in cm)? : normal
Was steht auf der Arbeitsplatte oder soll dort stehen? : Kaffeemaschine, Wasserkocher, Toaster
Welche weiteren Küchenmaschinen müssen in der Küche untergebracht werden? : Mixer, Pürierstab, Eierkocher
Was soll in der Küche außer den Standards untergebracht werden? : ALLE Vorräte, Getränkekisten
Welchen Stauraum gibt es sonst noch? : Hauswirtschaftsraum
Was/wie wird gekocht? (Alltagsküche, Menüs, Snacks usw) : alltagsküche
Wie häufig wird gekocht? : ab und zu
Wird alleine gekocht? Oder auch gemeinsam? Mit und für Gäste? : auch gemeinsam
Was stört an der bisherigen Küche und was soll die neue Küche unbedingt können? Warum? : nichts->Umzug
Preisvorstellung (Budget) : bis 5.000,-
Anhänge
Zuletzt bearbeitet:
